208 Pine Arbor Circle Saint Augustine, FL 32084
For Sale MLS# TB8379613
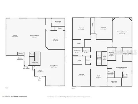
5 beds 4 baths 3,129 sq ft Single Family
Details for 208 Pine Arbor Circle
MLS# TB8379613
Description for 208 Pine Arbor Circle, Saint Augustine, FL, 32084
Motivated Sellers Must Relocate! Submit Your Highest & Best Today! Experience luxury living in beautiful Heritage Park, St. Augustine! This exceptional 5 bedroom, 4 bathroom home boasts a brand-new roof for added value and peace of mind. The open concept layout is an entertainer’s dream featuring a spacious great room that flows seamlessly into a gourmet kitchen with stainless steel appliances, granite countertops, and a generous island. Unwind in the elegant master suite, complete with a spa-inspired en suite bathroom and a walk-in closet. With additional bedrooms and bathrooms thoughtfully designed for comfort and flexibility, there is space for everyone to feel right at home.
Listing Information
Property Type: Residential, Single Family Residence
Status: Active
Bedrooms: 5
Bathrooms: 4
Lot Size: 0.18 Acres
Square Feet: 3,129 sq ft
Year Built: 2006
Garage: Yes
Stories: 2 Story
Construction: Block
Subdivision: Heritage Park Prcl E-1
Foundation: Slab
County: St Johns
Room Information
Main Floor
Primary Bathroom:
Primary Bedroom:
Living Room:
Kitchen:
Bathrooms
Full Baths: 4
Additonal Room Information
Laundry: Laundry Room, Upper Level
Interior Features
Appliances: Convection Oven, Water Softener, Dishwasher, Disposal, Microwave, Range, Refrigerator
Flooring: Carpet,Ceramic Tile
Additional Interior Features: Ceiling Fan(s), Open Floorplan
Utilities
Water: Public
Sewer: Public Sewer
Other Utilities: Municipal Utilities
Cooling: Ceiling Fan(s), Central Air
Heating: Central
Exterior / Lot Features
Attached Garage: Attached Garage
Garage Spaces: 2
Roof: Shingle
Community Features
Homeowners Association: Yes
HOA Dues: $69 / Monthly
Driving Directions
From Woodlawn Rd right o Hefferon Dr, left on Hidden wood LN , left on Pine Arbor Cir, home will be on the left.
Financial Considerations
Terms: Cash,Conventional,FHA,VA Loan
Tax/Property ID: 103204-0280
Tax Amount: 4517.64
Tax Year: 2024
A broker reciprocity listing courtesy: LPT REALTY, LLC
Based on information provided by Stellar MLS as distributed by the MLS GRID. Information from the Internet Data Exchange is provided exclusively for consumers’ personal, non-commercial use, and such information may not be used for any purpose other than to identify prospective properties consumers may be interested in purchasing. This data is deemed reliable but is not guaranteed to be accurate by Edina Realty, Inc., or by the MLS. Edina Realty, Inc., is not a multiple listing service (MLS), nor does it offer MLS access.
Copyright 2025 Stellar MLS as distributed by the MLS GRID. All Rights Reserved.
Payment Calculator
Interest rate and annual percentage rate (APR) are based on current market conditions, are for informational purposes only, are subject to change without notice and may be subject to pricing add-ons related to property type, loan amount, loan-to-value, credit score and other variables. Estimated closing costs used in the APR calculation are assumed to be paid by the borrower at closing. If the closing costs are financed, the loan, APR and payment amounts will be higher. If the down payment is less than 20%, mortgage insurance may be required and could increase the monthly payment and APR. Contact us for details. Additional loan programs may be available. Accuracy is not guaranteed, and all products may not be available in all borrower's geographical areas and are based on their individual situation. This is not a credit decision or a commitment to lend.
Sales History & Tax Summary for 208 Pine Arbor Circle
Sales History
| Date | Price | Change |
|---|---|---|
| Currently not available. | ||
Tax Summary
| Tax Year | Estimated Market Value | Total Tax |
|---|---|---|
| Currently not available. | ||
Data powered by ATTOM Data Solutions. Copyright© 2025. Information deemed reliable but not guaranteed.
Schools
Schools nearby 208 Pine Arbor Circle
| Schools in attendance boundaries | Grades | Distance | Rating |
|---|---|---|---|
| Loading... | |||
| Schools nearby | Grades | Distance | Rating |
|---|---|---|---|
| Loading... | |||
Data powered by ATTOM Data Solutions. Copyright© 2025. Information deemed reliable but not guaranteed.
The schools shown represent both the assigned schools and schools by distance based on local school and district attendance boundaries. Attendance boundaries change based on various factors and proximity does not guarantee enrollment eligibility. Please consult your real estate agent and/or the school district to confirm the schools this property is zoned to attend. Information is deemed reliable but not guaranteed.
SchoolDigger ® Rating
The SchoolDigger rating system is a 1-5 scale with 5 as the highest rating. SchoolDigger ranks schools based on test scores supplied by each state's Department of Education. They calculate an average standard score by normalizing and averaging each school's test scores across all tests and grades.
Coming soon properties will soon be on the market, but are not yet available for showings.