2085 Massachusetts Avenue NE Saint Petersburg, FL 33703 - TAMPA BAY
For Sale MLS# TB8414755
4 beds 4 baths 2,748 sq ft Single Family
Details for 2085 Massachusetts Avenue NE
MLS# TB8414755
Description for 2085 Massachusetts Avenue NE, Saint Petersburg, FL, 33703 - TAMPA BAY
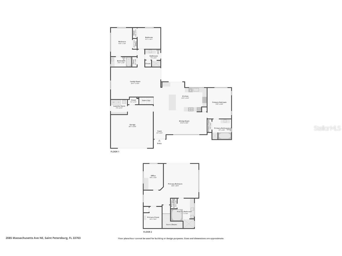
Welcome to this beautifully renovated executive residence located in one of the Bay Area’s most desirable boating communities, Venetian Isles. Perfectly positioned on a spacious lot at the end of a quiet cul-de-sac, this four-bedroom, four-bath, two-car garage pool home has been completely remodeled and is truly move-in ready. The open-concept kitchen is designed for entertaining, featuring a wet bar, granite counters, stainless steel double ovens, and a gas cooktop. The first floor offers generous living areas filled with natural light along with three bedrooms, two with en-suite baths, and a third full bath that also serves the pool area. Upstairs, the expansive master suite is a private retreat with vaulted ceilings, a spa-inspired bathroom boasting a Jacuzzi tub, walk-in shower, dual sinks, custom cabinetry, granite counters, and stained-glass accents. The suite also includes a private office with custom built-ins for two, an oversized walk-in closet, and a balcony spanning the back of the home with sweeping waterfront views. Outdoor living shines with a saltwater pool surrounded by lush tropical landscaping, covered dining and lounge areas, and an updated dock with a 16,000-pound boat lift plus a lower platform for kayaks and paddleboards. The home sits on deep sailboat water with no bridges to contend with, offering direct Gulf access. Recent updates provide comfort and peace of mind, including a new tile roof (2025), hurricane-rated windows and doors, plantation shutters, newer seawall, two Trane A/C units, a whole-house Generac generator, STILTZ elevator, LED lighting, and a mini-split A/C in the garage laundry room. With quick access to downtown St. Petersburg, world-class beaches, shopping, dining, and airports, this home is the perfect combination of luxury, convenience, and Florida waterfront living. Call today to schedule your private showing.
Listing Information
Property Type: Residential, Single Family Residence
Status: Active
Bedrooms: 4
Bathrooms: 4
Lot Size: 0.22 Acres
Square Feet: 2,748 sq ft
Year Built: 1968
Garage: Yes
Stories: 2 Story
Construction: Block
Subdivision: Venetian Isles
Foundation: Slab
County: Pinellas
Room Information
Main Floor
Laundry: 7.1x7.5
Bedroom 4: 13.4x9.1
Bedroom 3: 13.4x9.1
Bedroom 2: 15.2x11.4
Living Room: 15.8x13.8
Dining Room: 25x11
Kitchen: 18x12
Upper Floor
Office: 12.8x9.4
Primary Bedroom: 16.6x16
Bathrooms
Full Baths: 4
Additonal Room Information
Laundry: In Garage
Interior Features
Appliances: Electric Water Heater, Built-In Oven, Freezer, Microwave, Refrigerator, Cooktop, Dishwasher, Disposal
Flooring: Bamboo,Ceramic Tile
Doors/Windows: Window Treatments
Additional Interior Features: Walk-In Closet(s), High Ceilings, Window Treatments, Split Bedrooms, Elevator, Eat-In Kitchen, Vaulted Ceiling(s), Built-in Features, Kitchen/Family Room Combo, Open Floorplan, Solid Surface Counters, Stone Counters, Wood Cabinets
Utilities
Water: Public
Sewer: Public Sewer
Other Utilities: Electricity Connected,Sewer Connected,Water Connected
Cooling: Central Air
Heating: Central
Exterior / Lot Features
Attached Garage: Attached Garage
Garage Spaces: 2
Parking Description: Garage Door Opener, Guest, driveway, on street, Garage
Roof: Concrete
Pool: In Ground, Pool Sweep, Salt Water
Lot View: Bay,Canal,Intercoastal,Ocean,Water
Lot Dimensions: 63x128
Additional Exterior/Lot Features: Rain Gutters, Sprinkler/Irrigation, Balcony, Lighting, Balcony, Covered, Level, Flat, Landscaped, Cul-de-Sac, Cleared, City Lot, Outside City Limits
Waterfront Details
Standard Water Body: TAMPA BAY
Water Front Features: Canal Access
Driving Directions
From 4th Street North, head east on 40th Avenue Northeast. Then north (left) on Overlook Drive Northeast. Left on Grand Canal Boulevard and right on Massachusetts Avenue Northeast. Home is at end of the cul-de-sac on the left.
Financial Considerations
Terms: Cash,Conventional
Tax/Property ID: 03-31-17-93870-006-0150
Tax Amount: 23465.7
Tax Year: 2024
A broker reciprocity listing courtesy: RE/MAX ACTION FIRST OF FLORIDA
Based on information provided by Stellar MLS as distributed by the MLS GRID. Information from the Internet Data Exchange is provided exclusively for consumers’ personal, non-commercial use, and such information may not be used for any purpose other than to identify prospective properties consumers may be interested in purchasing. This data is deemed reliable but is not guaranteed to be accurate by Edina Realty, Inc., or by the MLS. Edina Realty, Inc., is not a multiple listing service (MLS), nor does it offer MLS access.
Copyright 2026 Stellar MLS as distributed by the MLS GRID. All Rights Reserved.
Payment Calculator
Interest rate and annual percentage rate (APR) are based on current market conditions, are for informational purposes only, are subject to change without notice and may be subject to pricing add-ons related to property type, loan amount, loan-to-value, credit score and other variables. Estimated closing costs used in the APR calculation are assumed to be paid by the borrower at closing. If the closing costs are financed, the loan, APR and payment amounts will be higher. If the down payment is less than 20%, mortgage insurance may be required and could increase the monthly payment and APR. Contact us for details. Additional loan programs may be available. Accuracy is not guaranteed, and all products may not be available in all borrower's geographical areas and are based on their individual situation. This is not a credit decision or a commitment to lend.
Sales History & Tax Summary for 2085 Massachusetts Avenue NE
Sales History
| Date | Price | Change |
|---|---|---|
| Currently not available. | ||
Tax Summary
| Tax Year | Estimated Market Value | Total Tax |
|---|---|---|
| Currently not available. | ||
Data powered by ATTOM Data Solutions. Copyright© 2026. Information deemed reliable but not guaranteed.
Schools
Schools nearby 2085 Massachusetts Avenue NE
| Schools in attendance boundaries | Grades | Distance | Rating |
|---|---|---|---|
| Loading... | |||
| Schools nearby | Grades | Distance | Rating |
|---|---|---|---|
| Loading... | |||
Data powered by ATTOM Data Solutions. Copyright© 2026. Information deemed reliable but not guaranteed.
The schools shown represent both the assigned schools and schools by distance based on local school and district attendance boundaries. Attendance boundaries change based on various factors and proximity does not guarantee enrollment eligibility. Please consult your real estate agent and/or the school district to confirm the schools this property is zoned to attend. Information is deemed reliable but not guaranteed.
SchoolDigger ® Rating
The SchoolDigger rating system is a 1-5 scale with 5 as the highest rating. SchoolDigger ranks schools based on test scores supplied by each state's Department of Education. They calculate an average standard score by normalizing and averaging each school's test scores across all tests and grades.
Coming soon properties will soon be on the market, but are not yet available for showings.