209 Standish Drive Ormond Beach, FL 32176
For Sale MLS# V4946749
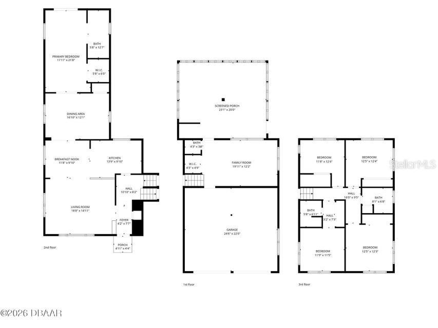
5 beds 4 baths 2,990 sq ft Single Family
Details for 209 Standish Drive
MLS# V4946749
Description for 209 Standish Drive, Ormond Beach, FL, 32176
One or more photo(s) has been virtually staged. It's The Salt Life at this exceptional split-level home just one half block from the beach. A rare opportunity to enjoy flexible space and or multi- generational living. Offering 5 beds, 3.5 baths. A thoughtfully designed primary suite addition (2018) features a private entrance a luxurious bath with a curb less walk-in shower, and convenient ramp access. Four additional bedrooms are located on the next level, including one en-suite bedroom. An inviting kitchen is appointed with granite countertops and stainless-steel appliances. Behind the two-car garage, versatile bonus rooms offer endless possibilities for a game room, hobby space, home gym, or studio. Hardwood and tile floors run throughout the home. A fenced rear yard with a separate storage shed, are an added bonus. Notable Updates Include: Main A/C: 2015, Mini-split A/C systems: 2019, Hot water heater: 2010, Roof is approx 12 years. All measurements are approximate. Some images are digitally altered.
Listing Information
Property Type: Residential, Single Family Residence
Status: Active
Bedrooms: 5
Bathrooms: 4
Lot Size: 0.29 Acres
Square Feet: 2,990 sq ft
Year Built: 1963
Garage: Yes
Construction: Block,Concrete
Subdivision: Standish Shores Bellewood
Foundation: Block
County: Volusia
Room Information
Main Floor
Gym: 19x22
Primary Bedroom: 10x21
Game Room: 12x20
Living Room: 14x18
Dining Room: 9x11
Kitchen: 8x13
Upper Floor
Bedroom 5: 10x11
Bedroom 4: 9x11
Bedroom 3: 12x12
Bedroom 2: 11x14
Bathrooms
Full Baths: 3
1/2 Baths: 1
Additonal Room Information
Laundry: Inside
Interior Features
Appliances: Microwave, Dishwasher, Range, Refrigerator
Flooring: Tile,Wood
Doors/Windows: Storm Window(s)
Accessibility: Accessible Entrance, Accessible Full Bath
Additional Interior Features: Ceiling Fan(s), Other
Utilities
Water: Public
Sewer: Public Sewer
Other Utilities: Cable Available,Electricity Available,Sewer Available,Water Available
Cooling: Ceiling Fan(s), Central Air, Wall/Window Unit(s)
Heating: Electric
Exterior / Lot Features
Attached Garage: Attached Garage
Garage Spaces: 2
Parking Description: Garage, Garage Door Opener
Roof: Shingle
Lot Dimensions: 75x166
Additional Exterior/Lot Features: Other, Front Porch
Out Buildings: Shed(s)
Driving Directions
From E Granada Blvd and Ocean Shore go North on Ocean Shore to Standish
Financial Considerations
Terms: Cash,Conventional
Tax/Property ID: 4210-12-00-0400
Tax Amount: 7477
Tax Year: 2025
A broker reciprocity listing courtesy: ADAMS, CAMERON & CO., REALTORS
Based on information provided by Stellar MLS as distributed by the MLS GRID. Information from the Internet Data Exchange is provided exclusively for consumers’ personal, non-commercial use, and such information may not be used for any purpose other than to identify prospective properties consumers may be interested in purchasing. This data is deemed reliable but is not guaranteed to be accurate by Edina Realty, Inc., or by the MLS. Edina Realty, Inc., is not a multiple listing service (MLS), nor does it offer MLS access.
Copyright 2026 Stellar MLS as distributed by the MLS GRID. All Rights Reserved.
Payment Calculator
Interest rate and annual percentage rate (APR) are based on current market conditions, are for informational purposes only, are subject to change without notice and may be subject to pricing add-ons related to property type, loan amount, loan-to-value, credit score and other variables. Estimated closing costs used in the APR calculation are assumed to be paid by the borrower at closing. If the closing costs are financed, the loan, APR and payment amounts will be higher. If the down payment is less than 20%, mortgage insurance may be required and could increase the monthly payment and APR. Contact us for details. Additional loan programs may be available. Accuracy is not guaranteed, and all products may not be available in all borrower's geographical areas and are based on their individual situation. This is not a credit decision or a commitment to lend.
Sales History & Tax Summary for 209 Standish Drive
Sales History
| Date | Price | |
|---|---|---|
| Currently not available. | ||
Tax Summary
| Tax Year | Estimated Market Value | Total Tax |
|---|---|---|
| Currently not available. | ||
Data powered by ATTOM Data Solutions. Copyright© 2026. Information deemed reliable but not guaranteed.
Schools
Schools nearby 209 Standish Drive
| Schools in attendance boundaries | Grades | Distance | Rating |
|---|---|---|---|
| Loading... | |||
| Schools nearby | Grades | Distance | Rating |
|---|---|---|---|
| Loading... | |||
Data powered by ATTOM Data Solutions. Copyright© 2026. Information deemed reliable but not guaranteed.
The schools shown represent both the assigned schools and schools by distance based on local school and district attendance boundaries. Attendance boundaries change based on various factors and proximity does not guarantee enrollment eligibility. Please consult your real estate agent and/or the school district to confirm the schools this property is zoned to attend. Information is deemed reliable but not guaranteed.
SchoolDigger ® Rating
The SchoolDigger rating system is a 1-5 scale with 5 as the highest rating. SchoolDigger ranks schools based on test scores supplied by each state's Department of Education. They calculate an average standard score by normalizing and averaging each school's test scores across all tests and grades.
Coming soon properties will soon be on the market, but are not yet available for showings.