2090 Pennsylvania Avenue Englewood, FL 34224
For Sale MLS# D6145743
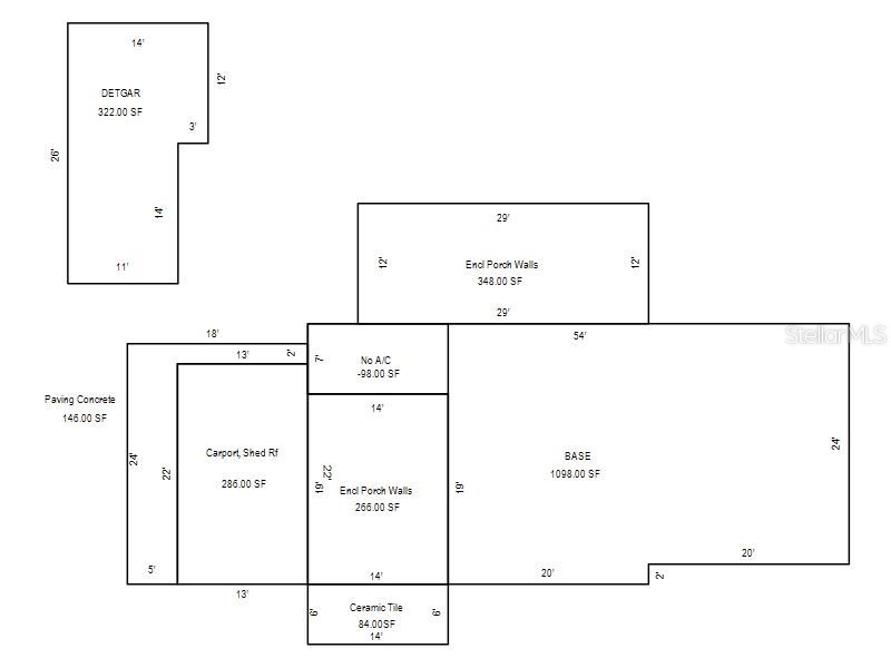
3 beds 2 baths 1,544 sq ft Single Family
Details for 2090 Pennsylvania Avenue
MLS# D6145743
Description for 2090 Pennsylvania Avenue, Englewood, FL, 34224
Completely remodeled coastal retreat offering both style and functionality. Calling all boating enthusiasts! This move-in ready home features a brand-new kitchen with a quartz island bar top, updated cabinetry, and modern finishes throughout. Polished original terrazzo floors add timeless Old Florida vintage character while providing durability and easy maintenance. A standout feature is the large (approx. 344 sq ft) detached shed/workshop, equipped with electricity and window AC, making it ideal for storage, golfcart / motorcycle and lawn mower parking, hobbies, or a home workspace. As you enter the front door of the home, there is a sitting area and laundry room including a half bathroom. The main living space has an inviting open floor plan with plenty of natural light flowing in from all the new windows adorned with new plantation shutters. The 3rd bedroom is at the back of the home and can be entered from the dining room or by an outside door coming from the Carport and workshop. *2022 Roof *2023 Electric panel including an outdoor RV outlet *2023 Plumbing *2020 Impact Windows *2023 Carport (28x12) with Pan Roof, 6’” Aluminum beams on an extended concrete driveway. Embrace the SW Florida lifestyle and enjoy the rare convenience of a PRIVATE COMMUNITY BOAT RAMP access for a small yearly fee. Location is Key for boaters, beach lovers, tiki-bar & live entertainment seekers and golfers! Along with your nearby boat ramp you are close to Marinas, public boat ramps and the Freedom Boat Club. Only a short boat trip or car ride to Boca Grande, Stump Pass, and Manasota Key. This thoughtfully updated property blends comfort, practicality, and coastal living – ideal as a full-time residence, seasonal getaway or investment property! No HOA restrictions. Hooked to County Water & Sewer. Don’t let this one slip out from underneath you… Call Today for a Private Showing!
Listing Information
Property Type: Residential, Single Family Residence
Status: Active
Bedrooms: 3
Bathrooms: 2
Lot Size: 0.23 Acres
Square Feet: 1,544 sq ft
Year Built: 1971
Stories: 1 Story
Construction: Block,Wood Frame
Subdivision: Grove City Terrace Un 03
Foundation: Slab
County: Charlotte
Room Information
Main Floor
Laundry: 8x7
Bedroom 3: 15x11
Bedroom 2: 11x10
Primary Bedroom: 15x11
Den: 13x17
Dining Room: 11x12
Living Room:
Kitchen: 24x10
Bathrooms
Full Baths: 1
1/2 Baths: 1
Additonal Room Information
Laundry: Laundry Room, Inside
Interior Features
Appliances: Dishwasher, Dryer, Range, Refrigerator, Washer
Flooring: Ceramic Tile,Terrazzo
Doors/Windows: Window Treatments
Additional Interior Features: Ceiling Fan(s), Eat-In Kitchen, High Ceilings, Window Treatments, Open Floorplan
Utilities
Water: Public
Sewer: Public Sewer
Other Utilities: Cable Available,Electricity Connected,Municipal Utilities,Sewer Connected,Water Connected
Cooling: Central Air, Ceiling Fan(s)
Heating: Central
Exterior / Lot Features
Roof: Shingle
Lot Dimensions: 101x100
Additional Exterior/Lot Features: Awning(s), Lighting, Storage, Covered, Front Porch, Corner Lot, Outside City Limits
Out Buildings: Shed(s), Storage, Workshop
Waterfront Details
Water Front Features: Bay Access
Community Features
Community Features: Street Lights
Homeowners Association: Yes
HOA Dues: $50 / Monthly
Driving Directions
Turn onto Pennsylvania Ave off Placida Rd.
Financial Considerations
Terms: Cash,Conventional,Trade,VA Loan
Tax/Property ID: 412008482011
Tax Amount: 1358.8
Tax Year: 2025
A broker reciprocity listing courtesy: PARADISE EXCLUSIVE INC
Based on information provided by Stellar MLS as distributed by the MLS GRID. Information from the Internet Data Exchange is provided exclusively for consumers’ personal, non-commercial use, and such information may not be used for any purpose other than to identify prospective properties consumers may be interested in purchasing. This data is deemed reliable but is not guaranteed to be accurate by Edina Realty, Inc., or by the MLS. Edina Realty, Inc., is not a multiple listing service (MLS), nor does it offer MLS access.
Copyright 2026 Stellar MLS as distributed by the MLS GRID. All Rights Reserved.
Payment Calculator
Interest rate and annual percentage rate (APR) are based on current market conditions, are for informational purposes only, are subject to change without notice and may be subject to pricing add-ons related to property type, loan amount, loan-to-value, credit score and other variables. Estimated closing costs used in the APR calculation are assumed to be paid by the borrower at closing. If the closing costs are financed, the loan, APR and payment amounts will be higher. If the down payment is less than 20%, mortgage insurance may be required and could increase the monthly payment and APR. Contact us for details. Additional loan programs may be available. Accuracy is not guaranteed, and all products may not be available in all borrower's geographical areas and are based on their individual situation. This is not a credit decision or a commitment to lend.
Sales History & Tax Summary for 2090 Pennsylvania Avenue
Sales History
| Date | Price | |
|---|---|---|
| Currently not available. | ||
Tax Summary
| Tax Year | Estimated Market Value | Total Tax |
|---|---|---|
| Currently not available. | ||
Data powered by ATTOM Data Solutions. Copyright© 2026. Information deemed reliable but not guaranteed.
Schools
Schools nearby 2090 Pennsylvania Avenue
| Schools in attendance boundaries | Grades | Distance | Rating |
|---|---|---|---|
| Loading... | |||
| Schools nearby | Grades | Distance | Rating |
|---|---|---|---|
| Loading... | |||
Data powered by ATTOM Data Solutions. Copyright© 2026. Information deemed reliable but not guaranteed.
The schools shown represent both the assigned schools and schools by distance based on local school and district attendance boundaries. Attendance boundaries change based on various factors and proximity does not guarantee enrollment eligibility. Please consult your real estate agent and/or the school district to confirm the schools this property is zoned to attend. Information is deemed reliable but not guaranteed.
SchoolDigger ® Rating
The SchoolDigger rating system is a 1-5 scale with 5 as the highest rating. SchoolDigger ranks schools based on test scores supplied by each state's Department of Education. They calculate an average standard score by normalizing and averaging each school's test scores across all tests and grades.
Coming soon properties will soon be on the market, but are not yet available for showings.