$439,400
2095 River Bend Trail Mayer, MN 55360
For Sale MLS# 6675056
3 beds 3 baths 1,750 sq ft Single Family
Details for 2095 River Bend Trail
MLS# 6675056
Description for 2095 River Bend Trail, Mayer, MN, 55360
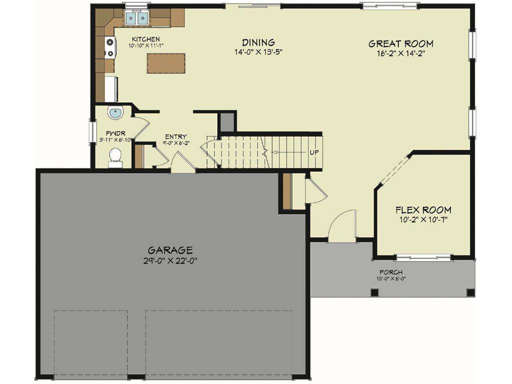
To Be Built by Loomis Homes. Welcome to the Stratford! As you enter through the large front porch, you'll see a large open floor plan with a flex room and plenty of natural light! The kitchen has an island and a window over the sink, the dining room looks out over the back yard and the large great room has plenty of space to make your own! This two-story home has laundry and 3 bedrooms on the upper level, including the spacious primary with a walk-in closet and private bath. The mudroom on main level includes half bath and coat closet through the 3 car garage. Make your preferred selections for your new home at our design center! We are happy to provide info on other lots and models available!
Listing Information
Property Type: Residential, Single Family
Status: Active
Bedrooms: 3
Bathrooms: 3
Lot Size: 0.23 Acres
Square Feet: 1,750 sq ft
Year Built: 2025
Foundation: 939 sq ft
Garage: Yes
Stories: 2 Stories
Construction Display: New Construction
Subdivision: Coldwater Crossing
Builder: LOOMIS HOMES LLC
County: Carver
Days On Market: 295
Construction Status: To Be Built/Floor Plan
School Information
District: 111 - Watertown-Mayer
Room Information
Main Floor
Dining Room: 14x13
Flex Room: 10x10
Foyer: 9x6
Great Room: 16x14
Kitchen: 10x11
Porch: 6x18
Upper Floor
Bedroom 1: 12x14
Bedroom 2: 11x12
Bedroom 3: 11x10
Primary Bath: 10x5
Walk-In Closet: 5x5
Bathrooms
Full Baths: 1
3/4 Baths: 1
1/2 Baths: 1
Additonal Room Information
Family: Great Room,Main Level
Dining: Kitchen/Dining Room
Bath Description: 3/4 Primary,Main Floor 1/2 Bath,Private Primary,Upper Level Full Bath
Interior Features
Square Footage above: 1,750 sq ft
Appliances: Dishwasher, Microwave, Range, Refrigerator
Basement: Poured Concrete, Drain Tiled, Sump Pump, Unfinished
Additional Interior Features: Kitchen Window, Washer/Dryer Hookup, Kitchen Center Island, 2nd Floor Laundry, 3 BR on One Level, Primary Bdr Suite
Utilities
Water: City Water/Connected
Sewer: City Sewer/Connected
Cooling: Central
Heating: Forced Air, Natural Gas
Exterior / Lot Features
Attached Garage: Attached Garage
Garage Spaces: 3
Parking Description: Driveway - Asphalt, Attached Garage, Garage Dimensions - 29x22, Garage Sq Ft - 638.0
Exterior: Brick/Stone, Vinyl
Roof: Age 8 Years or Less, Asphalt Shingles
Zoning: Residential-Single Family
Additional Exterior/Lot Features: Porch, Road Frontage - City
Driving Directions
1st st nw/30 to right on coldwater crossing to river bend trl
Financial Considerations
Tax/Property ID: 501320230
Tax Amount: 620
Tax Year: 2024
HomeStead Description: Homesteaded
A broker reciprocity listing courtesy: Keller Williams Realty Integrity Lakes
The data relating to real estate for sale on this web site comes in part from the Broker Reciprocity℠ Program of the Regional Multiple Listing Service of Minnesota, Inc. Real estate listings held by brokerage firms other than Edina Realty, Inc. are marked with the Broker Reciprocity℠ logo or the Broker Reciprocity℠ thumbnail and detailed information about them includes the name of the listing brokers. Edina Realty, Inc. is not a Multiple Listing Service (MLS), nor does it offer MLS access. This website is a service of Edina Realty, Inc., a broker Participant of the Regional Multiple Listing Service of Minnesota, Inc. IDX information is provided exclusively for consumers personal, non-commercial use and may not be used for any purpose other than to identify prospective properties consumers may be interested in purchasing. Open House information is subject to change without notice. Information deemed reliable but not guaranteed.
Copyright 2025 Regional Multiple Listing Service of Minnesota, Inc. All Rights Reserved.
Payment Calculator
Interest rate and annual percentage rate (APR) are based on current market conditions, are for informational purposes only, are subject to change without notice and may be subject to pricing add-ons related to property type, loan amount, loan-to-value, credit score and other variables. Estimated closing costs used in the APR calculation are assumed to be paid by the borrower at closing. If the closing costs are financed, the loan, APR and payment amounts will be higher. If the down payment is less than 20%, mortgage insurance may be required and could increase the monthly payment and APR. Contact us for details. Additional loan programs may be available. Accuracy is not guaranteed, and all products may not be available in all borrower's geographical areas and are based on their individual situation. This is not a credit decision or a commitment to lend.
Sales History & Tax Summary for 2095 River Bend Trail
Sales History
| Date | Price | Change |
|---|---|---|
| Currently not available. | ||
Tax Summary
| Tax Year | Estimated Market Value | Total Tax |
|---|---|---|
| Currently not available. | ||
Data powered by ATTOM Data Solutions. Copyright© 2025. Information deemed reliable but not guaranteed.
Schools
Schools nearby 2095 River Bend Trail
| Schools in attendance boundaries | Grades | Distance | Rating |
|---|---|---|---|
| Loading... | |||
| Schools nearby | Grades | Distance | Rating |
|---|---|---|---|
| Loading... | |||
Data powered by ATTOM Data Solutions. Copyright© 2025. Information deemed reliable but not guaranteed.
The schools shown represent both the assigned schools and schools by distance based on local school and district attendance boundaries. Attendance boundaries change based on various factors and proximity does not guarantee enrollment eligibility. Please consult your real estate agent and/or the school district to confirm the schools this property is zoned to attend. Information is deemed reliable but not guaranteed.
SchoolDigger ® Rating
The SchoolDigger rating system is a 1-5 scale with 5 as the highest rating. SchoolDigger ranks schools based on test scores supplied by each state's Department of Education. They calculate an average standard score by normalizing and averaging each school's test scores across all tests and grades.
Coming soon properties will soon be on the market, but are not yet available for showings.