2100 Kings Highway #781 Port Charlotte, FL 33980
For Sale MLS# C7516571
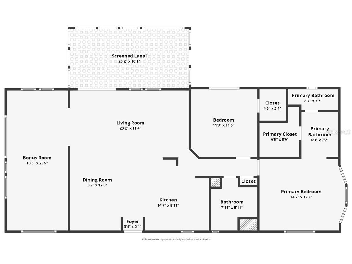
2 beds 2 baths 1,256 sq ft Single Family
Details for 2100 Kings Highway #781
MLS# C7516571
Description for 2100 Kings Highway #781, Port Charlotte, FL, 33980
Charming 1980 Manufactured Home on the award winning Maple Leaf Golf Course! Welcome to this spacious 1980 Jacobsen built manufactured home with 1256 square feet of living space so you'll have loads of space whether you like room to roam or whether you love to entertain. With 2 bedrooms / 2 full bathrooms there's extra space for guests, a home office, craft room, exercise room.....the possibilities are endless! Need more space? The versatile bonus room can serve as a home office, hobby space, or even a den to relax in. The bright, open concept living and dining areas are perfect for gatherings and family time. The functional kitchen has a breakfast bar, new backsplash and is ready for you to put your culinary skills to work while still being able to interact with guests. With built-in cabinets and walk in closets, this home offers plenty of storage space for all your needs. Per the Seller there is new flooring in all rooms except guest bedroom. Interior has been painted. Step outside to your large private covered patio, ideal for morning coffee or evening relaxation while taking in the peaceful golf course views. The delightful enclosed lanai extends your living space, providing year-round enjoyment and GOLF COURSE AND WATER VIEWS! Relax and unwind from a perfect day of enjoying all Maple Leaf has to offer. Perfect for golf enthusiasts! Home is sold furnished and does include an unwarranted golf cart with two new tires and all new batteries in December 2024. Located in the sought-after 55+ golfing community of Maple Leaf Golf & Country Club, this property combines comfort, convenience, and a prime location right on the golf course. Whether you’re looking for a peaceful retreat or an entertainer’s haven, this home has it all! **Be sure to check out the 3-D virtual tour and walk through video links** Located in award winning Maple Leaf Golf & Country Club. In Maple Leaf you'll enjoy a social community with over 75+ clubs and activities, golf course, 4 pickleball courts, 5 tennis courts, 4 swimming pools, 2 shuffleboard court centers, mini golf, horseshoe pits, 2 hot tubs, clubhouses, 2 restaurants, tiki bar and the list just goes on and on. If you want to hit the interstate and head out to other destinations for a day trip interstate 75 is just a short drive away. There's plenty of restaurants and shopping all within a short drive. If staying local is your thing head down Kings Highway to the Sunseeker resort for many types of dining or to Punta Gorda where downtown always has something to offer. Don't miss out on this opportunity to live in a thriving community where there are more things to do than hours in the day!
Listing Information
Property Type: Residential, Manufactured Home
Status: Active
Bedrooms: 2
Bathrooms: 2
Lot Size: 0.12 Acres
Square Feet: 1,256 sq ft
Year Built: 1980
Stories: 1 Story
Construction: Vinyl Siding
Construction Display: New Construction
Subdivision: Maple Leaf Estates
Foundation: Crawlspace
County: Charlotte
Construction Status: New Construction
School Information
Elementary: Kingsway
Middle: Port Charlotte Middle
High: Charlotte High
Room Information
Main Floor
Porch: 10x20
Bonus Room: 23x10
Bathroom 2: 8x7
Bedroom 2:
Primary Bathroom: 13x14
Primary Bedroom: 12x14
Dining Room: 12x8
Living Room: 11x20
Kitchen: 8x14
Bathrooms
Full Baths: 2
Additonal Room Information
Laundry: Other
Interior Features
Appliances: Range, Refrigerator, Washer, Dishwasher, Dryer, Microwave, Electric Water Heater
Flooring: Carpet,Luxury Vinyl,Other
Basement: Crawl Space
Additional Interior Features: Walk-In Closet(s), Built-in Features, Ceiling Fan(s), Open Floorplan
Utilities
Water: Public
Sewer: Public Sewer
Other Utilities: Cable Available,Electricity Connected,Fiber Optic Available,Municipal Utilities,Sewer Connected,Underground Utilities,Water Connected
Cooling: Ceiling Fan(s), Central Air
Heating: Central
Exterior / Lot Features
Parking Description: driveway, Covered
Roof: Roof Over
Pool: Association, Community
Lot View: Golf Course,Lake,Water
Additional Exterior/Lot Features: Sprinkler/Irrigation, Side Porch, Covered, Patio, Enclosed, On Golf Course, Landscaped, Private Road, Buyer Approval Required
Out Buildings: Shed(s)
Community Features
Community Features: Fitness, Golf Carts OK, Restaurant, Gated, Community Mailbox, Golf, Clubhouse, Pool, Tennis Court(s)
Security Features: Gated Community, Gated with Guard
Association Amenities: Tennis Court(s), Pool, Spa/Hot Tub, Golf Course, Security, Laundry, Fitness Center, Clubhouse, Pickleball, Shuffleboard Court, Gated, Maintenance Grounds
HOA Dues Include: Maintenance Grounds, Reserve Fund, Road Maintenance, Pool(s), Association Management, Internet
Homeowners Association: Yes
HOA Dues: $458 / Monthly
Driving Directions
24 hour gated community, photo ID and appointment required to enter. From I75 take exit 170 (Kings Highway) SW towards Port Charlotte 1.4 miles. Turn left into Maple Leaf, check in with the guard at the security gate. Take the 3rd right Queensway Rd. and follow around and after you pass Scotia Dr (on your left) the property will be on your left.
Financial Considerations
Terms: Cash
Tax/Property ID: 402318327914
Tax Amount: 2477
Tax Year: 2025
A broker reciprocity listing courtesy: RE/MAX PALM PCS
Based on information provided by Stellar MLS as distributed by the MLS GRID. Information from the Internet Data Exchange is provided exclusively for consumers’ personal, non-commercial use, and such information may not be used for any purpose other than to identify prospective properties consumers may be interested in purchasing. This data is deemed reliable but is not guaranteed to be accurate by Edina Realty, Inc., or by the MLS. Edina Realty, Inc., is not a multiple listing service (MLS), nor does it offer MLS access.
Copyright 2025 Stellar MLS as distributed by the MLS GRID. All Rights Reserved.
Payment Calculator
Interest rate and annual percentage rate (APR) are based on current market conditions, are for informational purposes only, are subject to change without notice and may be subject to pricing add-ons related to property type, loan amount, loan-to-value, credit score and other variables. Estimated closing costs used in the APR calculation are assumed to be paid by the borrower at closing. If the closing costs are financed, the loan, APR and payment amounts will be higher. If the down payment is less than 20%, mortgage insurance may be required and could increase the monthly payment and APR. Contact us for details. Additional loan programs may be available. Accuracy is not guaranteed, and all products may not be available in all borrower's geographical areas and are based on their individual situation. This is not a credit decision or a commitment to lend.
Sales History & Tax Summary for 2100 Kings Highway #781
Sales History
| Date | Price | Change |
|---|---|---|
| Currently not available. | ||
Tax Summary
| Tax Year | Estimated Market Value | Total Tax |
|---|---|---|
| Currently not available. | ||
Data powered by ATTOM Data Solutions. Copyright© 2025. Information deemed reliable but not guaranteed.
Schools
Schools nearby 2100 Kings Highway #781
| Schools in attendance boundaries | Grades | Distance | Rating |
|---|---|---|---|
| Loading... | |||
| Schools nearby | Grades | Distance | Rating |
|---|---|---|---|
| Loading... | |||
Data powered by ATTOM Data Solutions. Copyright© 2025. Information deemed reliable but not guaranteed.
The schools shown represent both the assigned schools and schools by distance based on local school and district attendance boundaries. Attendance boundaries change based on various factors and proximity does not guarantee enrollment eligibility. Please consult your real estate agent and/or the school district to confirm the schools this property is zoned to attend. Information is deemed reliable but not guaranteed.
SchoolDigger ® Rating
The SchoolDigger rating system is a 1-5 scale with 5 as the highest rating. SchoolDigger ranks schools based on test scores supplied by each state's Department of Education. They calculate an average standard score by normalizing and averaging each school's test scores across all tests and grades.
Coming soon properties will soon be on the market, but are not yet available for showings.