2100 Kings Highway #840 Port Charlotte, FL 33980
For Sale MLS# C7505916
2 beds 2 baths 1,056 sq ft Single Family
Details for 2100 Kings Highway #840
MLS# C7505916
Description for 2100 Kings Highway #840, Port Charlotte, FL, 33980
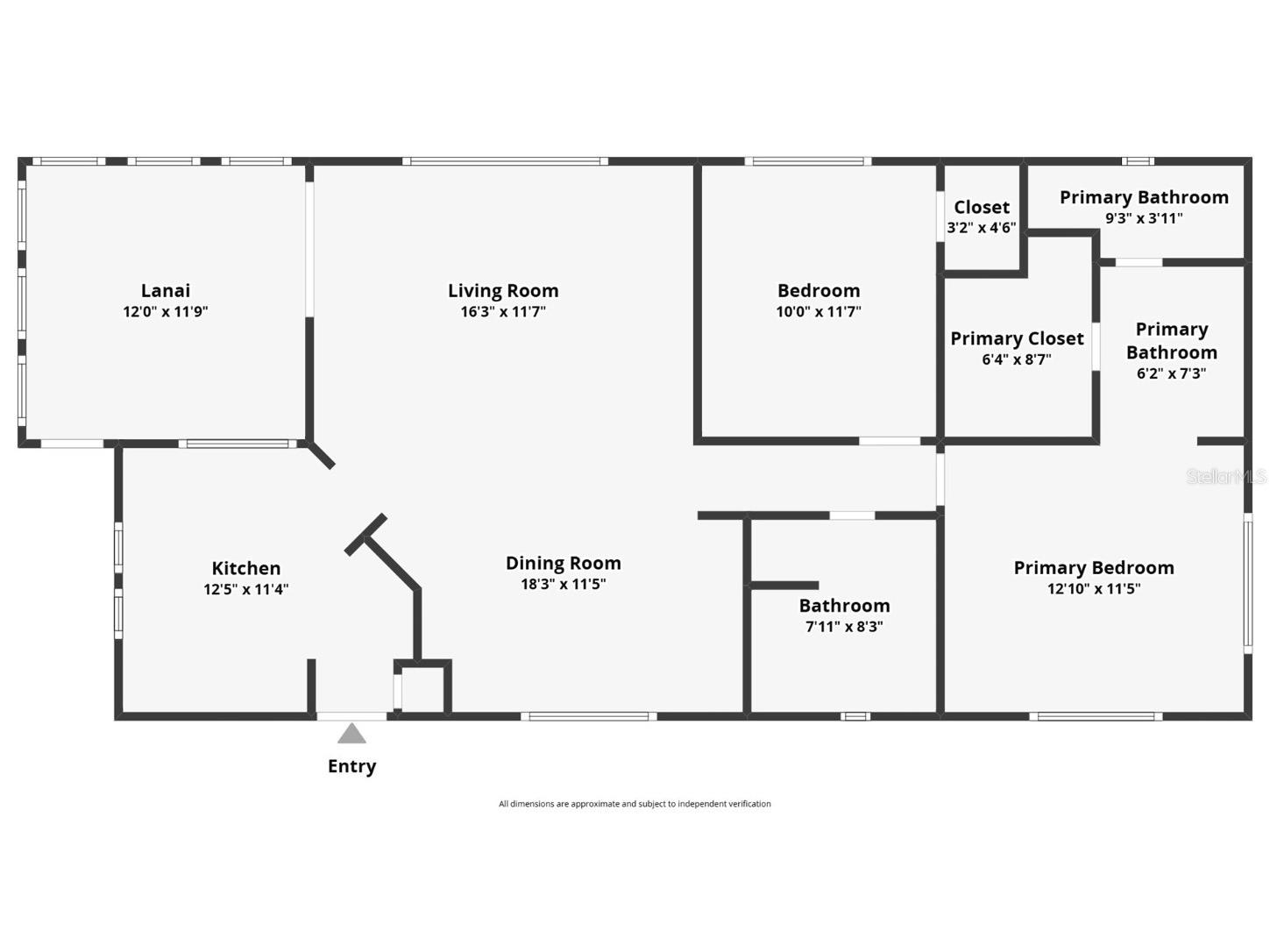
Welcome to 840 Scotia Dr in the center of Maple Leaf's 285 acres. This Jacobsen Imperial home situated on a Premium Interior Lot in Maple Leaf Golf and Country Club is being offered furnished, with a negotiable golf cart. Beautiful and spacious floor plan with 2 bedrooms, 2 bathrooms, 144sq Lanai, a rear patio that overlooks three quarters of an acre of greenspace, 128sq storage shed that houses the washer/dryer, a utility sink and also serves as a workshop with a workbench and plenty of room for your pool/beach supplies and golf clubs. The kitchen has ample cabinets for storage and a breakfast bar that leads out to the dining/living area. Pass through window from kitchen to Lanai. The large dining room has built in cabinets for additional storage and entertaining area. The equally large living room has sliding doors that lead out to the covered and enclosed lanai offers an extension to your living area. The primary suite features a large walk-in closet, an en-suite bathroom with a large vanity and walk in shower. The secondary bathroom has a large vanity as well and features a tub/shower combo. Recent upgrades include luxury vinyl plank flooring, Lanai replaced in 2023, New roof 2023, new furniture and appliance package, upgraded vapor barrier and more. Home being sold turn-key furnished with a previously loved golf cart **Be sure to check out the 3-D virtual tour and walk through video links** Located in award winning Maple Leaf Golf & Country Club, a popular 55+ gated golf course community with an active resort lifestyle. Features a Par 62, 18 hole golf course, 5 tennis courts, bocce ball, lawn bowling, 2 shuffleboard courts, 4 heated swimming pools, 2 hot tubs, fitness facility, woodworking facility, 75+ clubs/activities, 4 pickleball courts, restaurant with full service bar, tiki hut/bar and more. Don't miss out on this opportunity to live in a thriving community where every day feels like a vacation. It's true what they say, it's all about the lifestyle.
Listing Information
Property Type: Residential, Manufactured Home
Status: Active
Bedrooms: 2
Bathrooms: 2
Lot Size: 0.09 Acres
Square Feet: 1,056 sq ft
Year Built: 1982
Stories: 1 Story
Construction: Vinyl Siding
Construction Display: New Construction
Subdivision: Maple Leaf Estates
Foundation: Crawlspace
County: Charlotte
Construction Status: New Construction
School Information
Elementary: Kingsway
Middle: Port Charlotte Middle
High: Charlotte High
Room Information
Main Floor
Porch: 11x12
Bedroom 2: 11x10
Primary Bedroom: 11x12
Dining Room: 11x18
Living Room: 11x16
Kitchen: 11x12
Bathrooms
Full Baths: 2
Additonal Room Information
Laundry: Outside
Interior Features
Appliances: Electric Water Heater, Dishwasher, Dryer, Washer, Range, Refrigerator, Microwave
Flooring: Carpet,Luxury Vinyl
Basement: Crawl Space
Additional Interior Features: Ceiling Fan(s), Walk-In Closet(s), Built-in Features
Utilities
Water: Public
Sewer: Public Sewer
Other Utilities: Cable Available,Electricity Connected,Fiber Optic Available,Municipal Utilities,Phone Available,Sewer Connected,Underground Utilities,Water Connected
Cooling: Central Air, Ceiling Fan(s)
Heating: Central
Exterior / Lot Features
Parking Description: driveway, Covered
Roof: Other
Pool: Heated, Association, In Ground, Community
Lot View: Park/Greenbelt
Additional Exterior/Lot Features: Rain Gutters, Lighting, Covered, Patio, Porch, Side Porch, Front Porch, Enclosed, Screened, Landscaped, Private Road, Buyer Approval Required, Greenbelt, Near Golf Course
Community Features
Community Features: Golf Carts OK, Community Mailbox, Fitness, Restaurant, Golf, Street Lights, Gated, Clubhouse, Pool, Tennis Court(s), Sidewalks
Security Features: Gated Community, Gated with Guard
Association Amenities: Security, Fitness Center, Clubhouse, Recreation Facilities, Tennis Court(s), Pool, Sauna, Shuffleboard Court, Pickleball, Gated, Spa/Hot Tub, Golf Course
HOA Dues Include: Maintenance Grounds, Association Management, Reserve Fund, Road Maintenance, Pool(s), Internet, Recreation Facilities, Security
Homeowners Association: Yes
HOA Dues: $395 / Monthly
Driving Directions
24 hour gated community, photo ID and appointment required to enter. From I75 take exit 170 (Kings Highway) SW towards Port Charlotte 1.4 miles. Turn left into Maple Leaf, check in with the guard at the security gate. Take the 3rd right onto Queensway. Turn left onto Scotia Dr. Property will be on your left.
Financial Considerations
Terms: Cash
Tax/Property ID: 402318177908
Tax Amount: 2349
Tax Year: 2025
A broker reciprocity listing courtesy: RE/MAX PALM PCS
Based on information provided by Stellar MLS as distributed by the MLS GRID. Information from the Internet Data Exchange is provided exclusively for consumers’ personal, non-commercial use, and such information may not be used for any purpose other than to identify prospective properties consumers may be interested in purchasing. This data is deemed reliable but is not guaranteed to be accurate by Edina Realty, Inc., or by the MLS. Edina Realty, Inc., is not a multiple listing service (MLS), nor does it offer MLS access.
Copyright 2026 Stellar MLS as distributed by the MLS GRID. All Rights Reserved.
Payment Calculator
Interest rate and annual percentage rate (APR) are based on current market conditions, are for informational purposes only, are subject to change without notice and may be subject to pricing add-ons related to property type, loan amount, loan-to-value, credit score and other variables. Estimated closing costs used in the APR calculation are assumed to be paid by the borrower at closing. If the closing costs are financed, the loan, APR and payment amounts will be higher. If the down payment is less than 20%, mortgage insurance may be required and could increase the monthly payment and APR. Contact us for details. Additional loan programs may be available. Accuracy is not guaranteed, and all products may not be available in all borrower's geographical areas and are based on their individual situation. This is not a credit decision or a commitment to lend.
Sales History & Tax Summary for 2100 Kings Highway #840
Sales History
| Date | Price | Change |
|---|---|---|
| Currently not available. | ||
Tax Summary
| Tax Year | Estimated Market Value | Total Tax |
|---|---|---|
| Currently not available. | ||
Data powered by ATTOM Data Solutions. Copyright© 2026. Information deemed reliable but not guaranteed.
Schools
Schools nearby 2100 Kings Highway #840
| Schools in attendance boundaries | Grades | Distance | Rating |
|---|---|---|---|
| Loading... | |||
| Schools nearby | Grades | Distance | Rating |
|---|---|---|---|
| Loading... | |||
Data powered by ATTOM Data Solutions. Copyright© 2026. Information deemed reliable but not guaranteed.
The schools shown represent both the assigned schools and schools by distance based on local school and district attendance boundaries. Attendance boundaries change based on various factors and proximity does not guarantee enrollment eligibility. Please consult your real estate agent and/or the school district to confirm the schools this property is zoned to attend. Information is deemed reliable but not guaranteed.
SchoolDigger ® Rating
The SchoolDigger rating system is a 1-5 scale with 5 as the highest rating. SchoolDigger ranks schools based on test scores supplied by each state's Department of Education. They calculate an average standard score by normalizing and averaging each school's test scores across all tests and grades.
Coming soon properties will soon be on the market, but are not yet available for showings.