$139,900
211 Glenwood Drive Lake Wales, FL 33898
For Sale MLS# S5145220
2 beds 2 baths 1,348 sq ft Single Family
Details for 211 Glenwood Drive
MLS# S5145220
Description for 211 Glenwood Drive, Lake Wales, FL, 33898
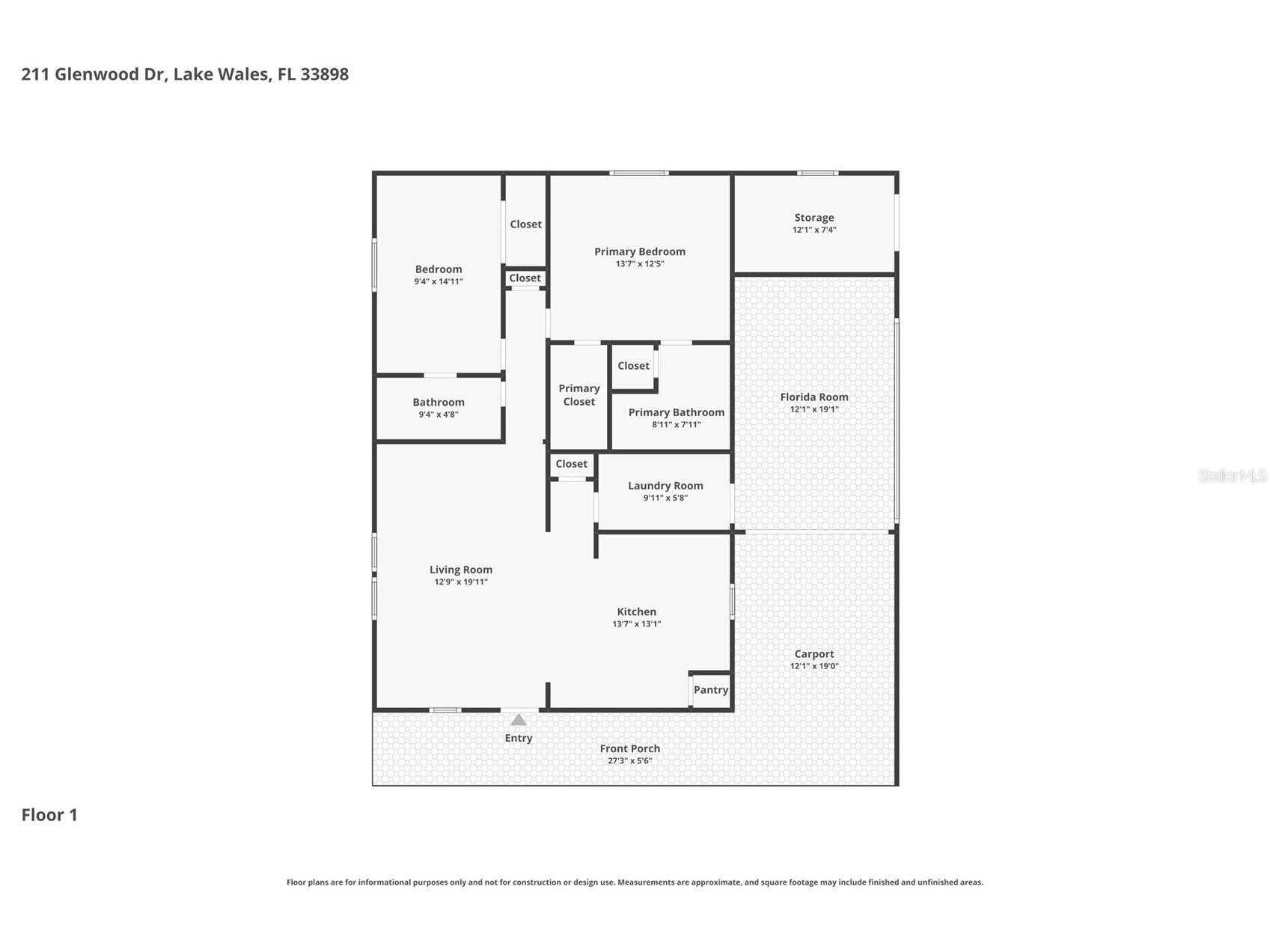
Welcome to this well maintained furnished 2002 built 2 bedroom, 2 bath manufactured home offering 1,348 square feet of comfortable living space in the desirable Twin Fountains 55+ community. A covered front porch creates a welcoming entrance, while the carport provides convenient covered parking. Inside, the home features a bright eat in kitchen with a skylight and closet pantry, providing both natural light and functional storage.The spacious layout includes a Florida room under central air and heat, offering additional space to relax, entertain, or enjoy the Florida sunshine year-round. Spacious primary bedroom with ensuite primary bathroom featuring dual sinks and a walk in shower. The inside laundry room includes built in cabinets for extra storage, adding to the home's practicality and convenience. The roof was recently replaced. Located in Twin Fountains, a desirable land-owned 55+ community, residents enjoy low maintenance living with a monthly HOA fee of just $180, which includes water, sewer, lawn maintenance, cable, and internet. Community amenities include a heated pool, clubhouse, shuffleboard courts, and storage area (subject to availability).Conveniently located near shopping, restaurants, and medical facilities, Twin Fountains offers the perfect balance of peaceful community living with easy access to everyday essentials. Schedule your private showing today and experience the relaxed Florida lifestyle this home has to offer.
Listing Information
Property Type: Residential, Manufactured Home
Status: Active
Bedrooms: 2
Bathrooms: 2
Lot Size: 0.11 Acres
Square Feet: 1,348 sq ft
Year Built: 2002
Stories: 1 Story
Construction: Vinyl Siding
Construction Display: New Construction
Subdivision: Twin Fountains Inc A Condo Mhp
Foundation: Crawlspace
County: Polk
Construction Status: New Construction
Room Information
Main Floor
Florida Room: 12x19
Bedroom 2: 9x14
Primary Bedroom: 12x13
Kitchen: 13x13
Living Room: 19x19
Bathrooms
Full Baths: 2
Additonal Room Information
Laundry: Inside, Laundry Room
Interior Features
Appliances: Electric Water Heater, Washer, Microwave, Range, Refrigerator, Dishwasher, Dryer
Flooring: Ceramic Tile,Laminate,Vinyl
Basement: Crawl Space
Doors/Windows: Blinds
Additional Interior Features: Walk-In Closet(s), Ceiling Fan(s), Eat-In Kitchen, Vaulted Ceiling(s), Main Level Primary
Utilities
Water: Private
Sewer: Private Sewer
Other Utilities: Cable Connected,Electricity Connected,Sewer Connected,Water Connected
Cooling: Ceiling Fan(s), Central Air
Heating: Central
Exterior / Lot Features
Attached Garage: Attached Garage
Parking Description: driveway
Roof: Shingle
Pool: Association, Community
Lot Dimensions: 92x57
Additional Exterior/Lot Features: Private Yard, Sprinkler/Irrigation, Covered, Front Porch, Landscaped, Buyer Approval Required, Outside City Limits
Community Features
Community Features: Golf Carts OK, Pool, Clubhouse
Association Amenities: Clubhouse, Recreation Facilities, Cable TV, Pool
HOA Dues Include: Internet, Cable TV, Water, Recreation Facilities, Sewer, Reserve Fund, Road Maintenance, Pool(s)
Homeowners Association: Yes
HOA Dues: $180 / Monthly
Driving Directions
Take SR540E, cross over HWY-27 on Waverly Rd, turn L onto Scenic hwy (SR17), then turn L onto Twin Fountains, follow the road onto Edgewood Blvd, home is on R.
Financial Considerations
Terms: Cash,Conventional,VA Loan
Tax/Property ID: 27-29-02-853400-001160
Tax Amount: 2208
Tax Year: 2025
A broker reciprocity listing courtesy: RE/MAX HERITAGE PROFESSIONALS
Based on information provided by Stellar MLS as distributed by the MLS GRID. Information from the Internet Data Exchange is provided exclusively for consumers’ personal, non-commercial use, and such information may not be used for any purpose other than to identify prospective properties consumers may be interested in purchasing. This data is deemed reliable but is not guaranteed to be accurate by Edina Realty, Inc., or by the MLS. Edina Realty, Inc., is not a multiple listing service (MLS), nor does it offer MLS access.
Copyright 2026 Stellar MLS as distributed by the MLS GRID. All Rights Reserved.
Payment Calculator
Interest rate and annual percentage rate (APR) are based on current market conditions, are for informational purposes only, are subject to change without notice and may be subject to pricing add-ons related to property type, loan amount, loan-to-value, credit score and other variables. Estimated closing costs used in the APR calculation are assumed to be paid by the borrower at closing. If the closing costs are financed, the loan, APR and payment amounts will be higher. If the down payment is less than 20%, mortgage insurance may be required and could increase the monthly payment and APR. Contact us for details. Additional loan programs may be available. Accuracy is not guaranteed, and all products may not be available in all borrower's geographical areas and are based on their individual situation. This is not a credit decision or a commitment to lend.
Sales History & Tax Summary for 211 Glenwood Drive
Sales History
| Date | Price | |
|---|---|---|
| Currently not available. | ||
Tax Summary
| Tax Year | Estimated Market Value | Total Tax |
|---|---|---|
| Currently not available. | ||
Data powered by ATTOM Data Solutions. Copyright© 2026. Information deemed reliable but not guaranteed.
Schools
Schools nearby 211 Glenwood Drive
| Schools in attendance boundaries | Grades | Distance | Rating |
|---|---|---|---|
| Loading... | |||
| Schools nearby | Grades | Distance | Rating |
|---|---|---|---|
| Loading... | |||
Data powered by ATTOM Data Solutions. Copyright© 2026. Information deemed reliable but not guaranteed.
The schools shown represent both the assigned schools and schools by distance based on local school and district attendance boundaries. Attendance boundaries change based on various factors and proximity does not guarantee enrollment eligibility. Please consult your real estate agent and/or the school district to confirm the schools this property is zoned to attend. Information is deemed reliable but not guaranteed.
SchoolDigger ® Rating
The SchoolDigger rating system is a 1-5 scale with 5 as the highest rating. SchoolDigger ranks schools based on test scores supplied by each state's Department of Education. They calculate an average standard score by normalizing and averaging each school's test scores across all tests and grades.
Coming soon properties will soon be on the market, but are not yet available for showings.