$279,999
Off-Market Date: 02/17/2026213 High Vista Dr Davenport, FL 33837
Pending MLS# O6377157
2 beds 2 baths 1,542 sq ft Single Family
Details for 213 High Vista Dr
MLS# O6377157
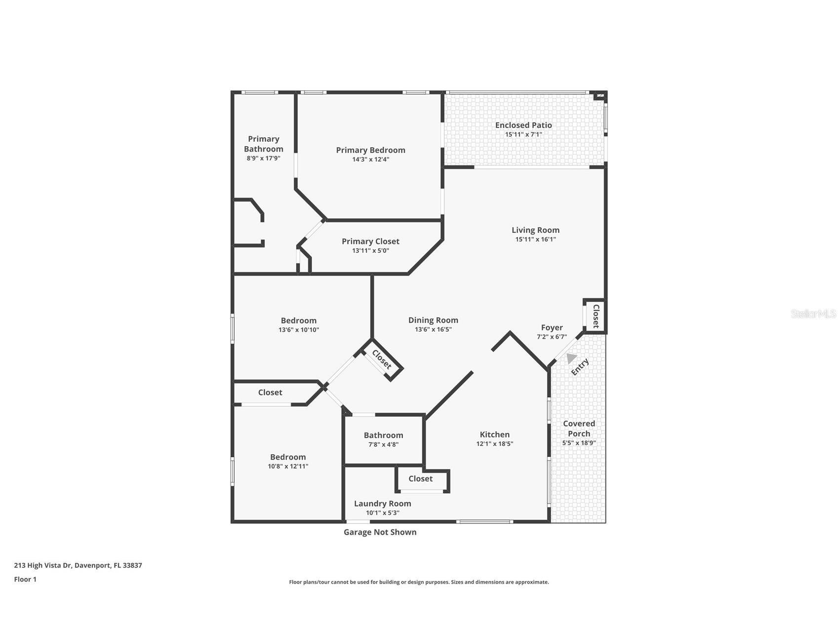
Description for 213 High Vista Dr, Davenport, FL, 33837
Under contract-accepting backup offers. AGGRESSIVELY PRICED and MOVE-IN READY, this highly sought-after RidgeMont model is located in the 55+ guard-gated Ridgewood Lakes – High Vista community in Davenport. Homes in this community are rarely available, and this residence stands out with a BRAND-NEW ROOF INSTALLED IN 2025, extensive system upgrades, and a valuable BONUS ROOM THAT CAN FUNCTION AS A THIRD BEDROOM. Just a short walk from the private High Vista clubhouse, the home offers a bright, open layout with NEW SLIP-RESISTANT PORCELAIN TILE FLOORING, updated lighting, ceiling fans, and abundant natural light throughout the main living areas. The eat-in kitchen features QUARTZ COUNTERTOPS, soft-close cabinetry, a glass tile backsplash, and newer appliances, including a DISHWASHER REPLACED IN 2023. Plantation shutters frame the dining nook, and the kitchen flows seamlessly into the living room, highlighted by crown molding and sliding glass doors that open to the enclosed, south-facing lanai. The lanai extends the living space and overlooks a paved patio, providing a comfortable setting for relaxing or entertaining while maintaining privacy. The split-bedroom floor plan offers both comfort and flexibility. The primary suite includes a walk-in closet and a FULLY RENOVATED PRIMARY BATHROOM COMPLETED IN 2024 WITH QUARTZ COUNTERTOPS, PORCELAIN TILE FLOORING, A PORCELAIN TUB SURROUND, AND A NEW TOILET. On the opposite side of the home, the guest bedroom is located near a full bath, along with a DOUBLE-DOOR BONUS ROOM THAT IS LARGE ENOUGH TO BE USED AS A THIRD BEDROOM, home office, or flex space, adding significant functionality and long-term value. Additional improvements include a WHOLE-HOUSE WATER PURIFICATION SYSTEM INSTALLED IN 2022, a NEW HOT WATER HEATER IN 2022, and a NEW HVAC SYSTEM WITH BUILT-IN UV LIGHTS INSTALLED IN 2022. ALL COUNTERTOPS THROUGHOUT THE HOME ARE QUARTZ. The attached two-car garage includes a utility sink, shelving, attic access, and an automatic opener. The home IS BEING SOLD FURNISHED, offering a truly turnkey opportunity. Residents of High Vista enjoy exclusive access to a private clubhouse with a heated pool and spa, fitness center, library, pub, and an active calendar of social events. The community also offers walking and biking trails, pickleball, tennis, bocce, and shuffleboard courts, and is adjacent to the Golf Club. HOA SERVICES INCLUDE LAWN CARE, HIGH-SPEED INTERNET, BASIC CABLE, TRASH PICKUP, AND 24-HOUR STAFFED SECURITY. Conveniently located near shopping, dining, medical facilities, and major roadways with easy access to I-4, Orlando, and Central Florida attractions, this home delivers exceptional value, lifestyle, and low-maintenance living in one of Davenport’s most desirable 55+ communities.
Listing Information
Property Type: Residential, Single Family Residence
Status: Pending
Bedrooms: 2
Bathrooms: 2
Lot Size: 0.12 Acres
Square Feet: 1,542 sq ft
Year Built: 1996
Garage: Yes
Stories: 1 Story
Construction: Block,Stucco
Construction Display: New Construction
Subdivision: Ridgewood Lakes Village 05b
Builder: RidgeWood Homes
Foundation: Slab
County: Polk
Construction Status: New Construction
School Information
Elementary: Loughman Oaks Elem
Middle: Dundee Ridge Middle
High: Ridge Community Senior High
Room Information
Main Floor
Porch: 16x7
Laundry: 12x5
Bathroom 2: 8x5
Bedroom 2: 13x11
Primary Bathroom: 18x9
Primary Bedroom: 13x15
Den: 14x12
Kitchen: 19x12
Great Room: 21x24
Bathrooms
Full Baths: 2
Additonal Room Information
Laundry: Inside
Interior Features
Appliances: Electric Water Heater, Convection Oven, Range, Refrigerator, Microwave, Dishwasher, Disposal
Flooring: Carpet,Porcelain Tile,Tile
Doors/Windows: Window Treatments
Additional Interior Features: Walk-In Closet(s), Ceiling Fan(s), Eat-In Kitchen, Split Bedrooms, Window Treatments, Living/Dining Room, Main Level Primary, Stone Counters
Utilities
Water: Public
Sewer: Public Sewer
Other Utilities: Cable Connected,Electricity Connected,High Speed Internet Available,Municipal Utilities,Phone Available,Sewer Connected,Underground Utilities,Water Connected
Cooling: Ceiling Fan(s), Central Air
Heating: Heat Pump, Electric
Exterior / Lot Features
Attached Garage: Attached Garage
Garage Spaces: 2
Parking Description: Garage Door Opener, Off Street, Garage, driveway
Roof: Shingle
Pool: Association, Community
Lot Dimensions: 50x101x52x101
Additional Exterior/Lot Features: Rain Gutters, Sprinkler/Irrigation, Rear Porch, Patio, Screened, Flat, Level, Landscaped, Private Road, Buyer Approval Required, Near Golf Course, Outside City Limits
Community Features
Community Features: Recreation Area, Fitness, Golf Carts OK, Street Lights, Golf, Pool, Sidewalks, Tennis Court(s)
Security Features: Key Card Entry, Lobby Secured, Smoke Detector(s)
Association Amenities: Basketball Court, Recreation Facilities, Clubhouse, Fitness Center, Tennis Court(s), Pool, Shuffleboard Court, Pickleball, Gated, Spa/Hot Tub
HOA Dues Include: Maintenance Grounds, Road Maintenance, Common Areas, Pool(s), Cable TV, Taxes, Recreation Facilities, Security
Homeowners Association: Yes
HOA Dues: $230 / Monthly
Driving Directions
I-4 Exit 55, south on Rt 27, Left on Ridgewood Lakes Blvd, follow to end, RIGHT into High Vista Village 1 & 2, LEFT on High Vista Drive. Home on RIGHT.
Financial Considerations
Terms: Cash,Conventional
Tax/Property ID: 27-26-33-710003-040820
Tax Amount: 3290.94
Tax Year: 2025
A broker reciprocity listing courtesy: KELLER WILLIAMS CLASSIC
Based on information provided by Stellar MLS as distributed by the MLS GRID. Information from the Internet Data Exchange is provided exclusively for consumers’ personal, non-commercial use, and such information may not be used for any purpose other than to identify prospective properties consumers may be interested in purchasing. This data is deemed reliable but is not guaranteed to be accurate by Edina Realty, Inc., or by the MLS. Edina Realty, Inc., is not a multiple listing service (MLS), nor does it offer MLS access.
Copyright 2026 Stellar MLS as distributed by the MLS GRID. All Rights Reserved.
Sales History & Tax Summary for 213 High Vista Dr
Sales History
| Date | Price | |
|---|---|---|
| Currently not available. | ||
Tax Summary
| Tax Year | Estimated Market Value | Total Tax |
|---|---|---|
| Currently not available. | ||
Data powered by ATTOM Data Solutions. Copyright© 2026. Information deemed reliable but not guaranteed.
Schools
Schools nearby 213 High Vista Dr
| Schools in attendance boundaries | Grades | Distance | Rating |
|---|---|---|---|
| Loading... | |||
| Schools nearby | Grades | Distance | Rating |
|---|---|---|---|
| Loading... | |||
Data powered by ATTOM Data Solutions. Copyright© 2026. Information deemed reliable but not guaranteed.
The schools shown represent both the assigned schools and schools by distance based on local school and district attendance boundaries. Attendance boundaries change based on various factors and proximity does not guarantee enrollment eligibility. Please consult your real estate agent and/or the school district to confirm the schools this property is zoned to attend. Information is deemed reliable but not guaranteed.
SchoolDigger ® Rating
The SchoolDigger rating system is a 1-5 scale with 5 as the highest rating. SchoolDigger ranks schools based on test scores supplied by each state's Department of Education. They calculate an average standard score by normalizing and averaging each school's test scores across all tests and grades.
Coming soon properties will soon be on the market, but are not yet available for showings.