213 W Mckenzie Street Punta Gorda, FL 33950
For Sale MLS# C7513991
3 beds 2 baths 1,105 sq ft Single Family
Details for 213 W Mckenzie Street
MLS# C7513991
Description for 213 W Mckenzie Street, Punta Gorda, FL, 33950
One or more photo(s) has been virtually staged. Live in a place you don't need a vacation from! Rare find in Historical Punta Gorda! PERFECT HOME FOR AIR BnB OR VRBO! Homes in this neighborhood rarely come to market! Listen to the distant church bells ring on the hour in this home featuring 3 bedrooms / 1.5 bath and sitting on an oversized 0.33 acre lot (two parcels combined), this property offers plenty of room to spread out and enjoy your private sanctuary. Very few lots in this part of town have lots this big! A wood fence surrounds the spacious backyard, and there’s even a concrete slab ready for a shed or workshop. Step inside and you’ll immediately appreciate the attention to detail. The kitchen has been beautifully updated with stainless steel appliances, wood cabinets, and quartz countertops. A redesigned laundry room includes a stackable washer and dryer, folding station, and storage. Plantation Shutters throughout add both style and energy efficiency, helping control sunlight while giving the home a cozy cottage feel. The sliding glass door incorporates a built in blind to give you sun control and privacy. The home includes new metal roof, new cabinets and quartz counter tops, new insulation in ceilings and walls, LED lighting throughout, DC ceiling fans, a tankless water heater, and a brand-new HVAC system. Everything done to keep energy costs low. All drain lines have been updated with PVC, all water lines are now CPVC. Location is unbeatable—you can walk to a local ice cream shop, bike to downtown Punta Gorda, or take a quick 5-minute drive to Fisherman’s Village. Schools, shopping, dining, and entertainment are all close by, making this the ideal place to live, work, and play. With no restrictions on short-term rentals, this home is also an excellent investment opportunity. Don’t miss your chance to own this beautifully renovated, move-in ready property—schedule your showing today! Then start planning how you plan to stage the property for rentals!
Listing Information
Property Type: Residential, Single Family Residence
Status: Active
Bedrooms: 3
Bathrooms: 2
Lot Size: 0.33 Acres
Square Feet: 1,105 sq ft
Year Built: 1960
Stories: 1 Story
Construction: Wood Siding
Construction Display: New Construction
Subdivision: Punta Gorda
Foundation: Crawlspace
County: Charlotte
Construction Status: New Construction
School Information
Elementary: Sallie Jones Elementary
Middle: Punta Gorda Middle
High: Charlotte High
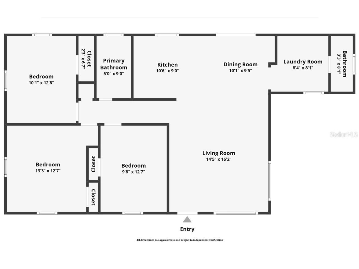
Room Information
Main Floor
Dining Room: 9x10
Laundry: 8x8
Bathroom 2: 8x3
Living Room: 16x14
Bathroom 1: 9x5
Kitchen: 9x10
Bedroom 3: 10x13
Primary Bedroom: 13x13
Bedroom 1: 12x9
Bathrooms
Full Baths: 1
1/2 Baths: 1
Additonal Room Information
Laundry: Inside, Washer Hookup, Laundry Room, Electric Dryer Hookup
Interior Features
Appliances: Washer, Microwave, Range, Refrigerator, Tankless Water Heater, Dishwasher, Disposal, Dryer
Flooring: Luxury Vinyl
Basement: Crawl Space
Doors/Windows: Window Treatments, Shutters
Additional Interior Features: Built-in Features, Dry Bar, Living/Dining Room, Stone Counters, Wood Cabinets, Ceiling Fan(s), Window Treatments
Utilities
Water: Public
Sewer: Public Sewer
Other Utilities: Cable Available,Electricity Connected,High Speed Internet Available,Municipal Utilities,Phone Available,Sewer Connected,Water Connected
Cooling: Ceiling Fan(s), Central Air
Heating: Electric
Exterior / Lot Features
Roof: Metal
Lot View: Trees/Woods
Lot Dimensions: 100x142
Fencing: Wood
Additional Exterior/Lot Features: Flat, Level, City Lot, Landscaped, Flood Zone
Community Features
Community Features: Sidewalks
Driving Directions
From US 41, turn west onto West McKenzie St. Go 200 yards. It's the first residential home on left.
Financial Considerations
Terms: Cash,Conventional,FHA,VA Loan
Tax/Property ID: 412307178005
Tax Amount: 2340
Tax Year: 2024
A broker reciprocity listing courtesy: RE/MAX HARBOR REALTY
Based on information provided by Stellar MLS as distributed by the MLS GRID. Information from the Internet Data Exchange is provided exclusively for consumers’ personal, non-commercial use, and such information may not be used for any purpose other than to identify prospective properties consumers may be interested in purchasing. This data is deemed reliable but is not guaranteed to be accurate by Edina Realty, Inc., or by the MLS. Edina Realty, Inc., is not a multiple listing service (MLS), nor does it offer MLS access.
Copyright 2026 Stellar MLS as distributed by the MLS GRID. All Rights Reserved.
Payment Calculator
Interest rate and annual percentage rate (APR) are based on current market conditions, are for informational purposes only, are subject to change without notice and may be subject to pricing add-ons related to property type, loan amount, loan-to-value, credit score and other variables. Estimated closing costs used in the APR calculation are assumed to be paid by the borrower at closing. If the closing costs are financed, the loan, APR and payment amounts will be higher. If the down payment is less than 20%, mortgage insurance may be required and could increase the monthly payment and APR. Contact us for details. Additional loan programs may be available. Accuracy is not guaranteed, and all products may not be available in all borrower's geographical areas and are based on their individual situation. This is not a credit decision or a commitment to lend.
Sales History & Tax Summary for 213 W Mckenzie Street
Sales History
| Date | Price | |
|---|---|---|
| Currently not available. | ||
Tax Summary
| Tax Year | Estimated Market Value | Total Tax |
|---|---|---|
| Currently not available. | ||
Data powered by ATTOM Data Solutions. Copyright© 2026. Information deemed reliable but not guaranteed.
Schools
Schools nearby 213 W Mckenzie Street
| Schools in attendance boundaries | Grades | Distance | Rating |
|---|---|---|---|
| Loading... | |||
| Schools nearby | Grades | Distance | Rating |
|---|---|---|---|
| Loading... | |||
Data powered by ATTOM Data Solutions. Copyright© 2026. Information deemed reliable but not guaranteed.
The schools shown represent both the assigned schools and schools by distance based on local school and district attendance boundaries. Attendance boundaries change based on various factors and proximity does not guarantee enrollment eligibility. Please consult your real estate agent and/or the school district to confirm the schools this property is zoned to attend. Information is deemed reliable but not guaranteed.
SchoolDigger ® Rating
The SchoolDigger rating system is a 1-5 scale with 5 as the highest rating. SchoolDigger ranks schools based on test scores supplied by each state's Department of Education. They calculate an average standard score by normalizing and averaging each school's test scores across all tests and grades.
Coming soon properties will soon be on the market, but are not yet available for showings.