213 Wisconsin Ave W Gilbert, MN 55741
For Sale MLS# 149382
4 beds 1,182 sq ft Single Family
Details for 213 Wisconsin Ave W
MLS# 149382
Description for 213 Wisconsin Ave W, Gilbert, MN, 55741
This 4-bedroom, 2.5-bath home in Gilbert, MN has solid bones and great character. It’s on a quiet street with friendly neighbors and close to local parks. Inside, you’ll find original woodwork, high ceilings, and large rooms. Fresh paint gives the home a clean feel, and there are hardwood floors in many areas. The roof is about 7 years old, the water heater is around 3 years old, and the furnace fan and tubing were recently replaced. This home is sturdy, comfortable, and ready for its next owner.
Listing Information
Property Type: Residential, 2 Story
Status: Active
Bedrooms: 4
Lot Size: 0.08 Acres
Square Feet: 1,182 sq ft
Year Built: 1910
Construction: Wood Frame
School Information
District: Rock Ridge - 2909
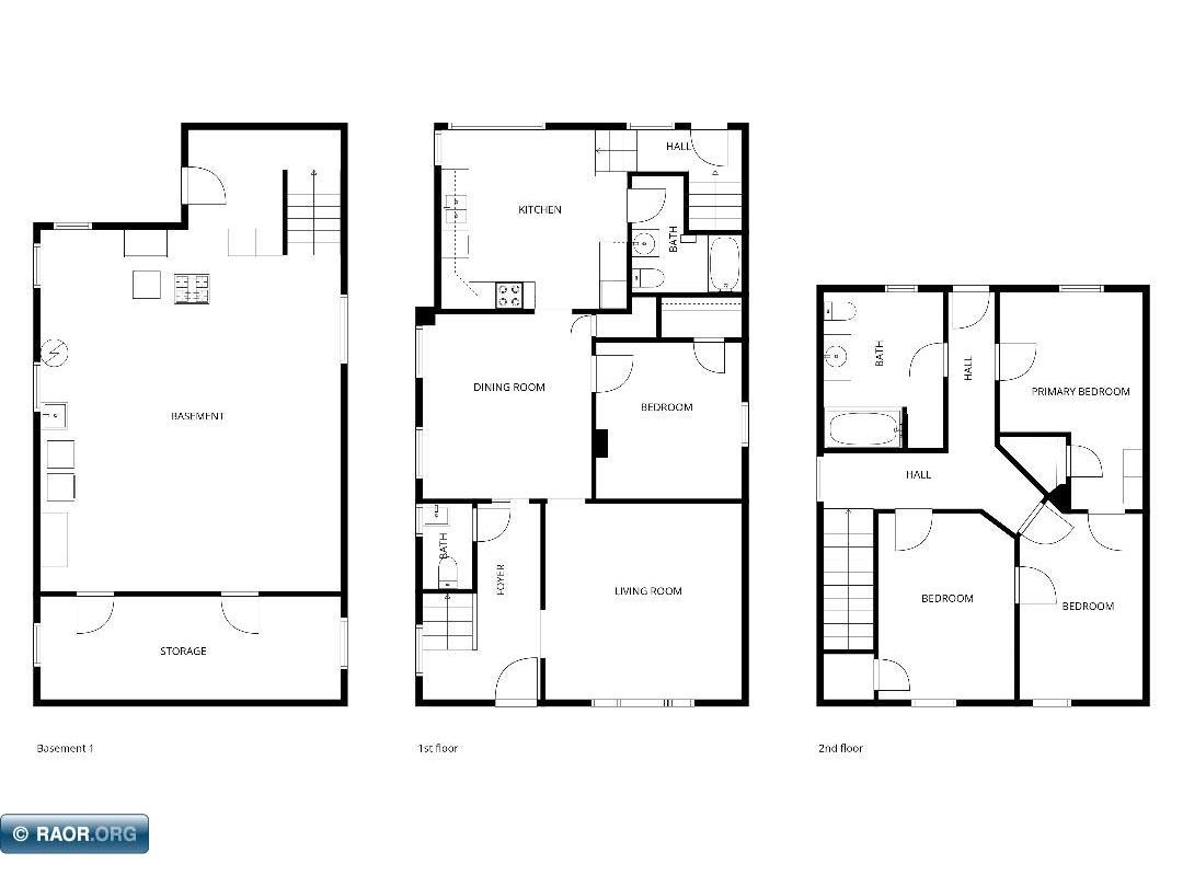
Room Information
Main Floor
Bedroom 1: 11 x 11
Dining Room: 11 x 14
Kitchen: 11 x 13
Living Room: 14 x 15
Upper Floor
Bedroom 2: 9 x 13
Bedroom 3: 9 x 13
Other: 10 x 11
Additonal Room Information
Other: Recreation Room
Interior Features
Square Footage above: 462 sq ft
Square Footage below: 264 sq ft
Appliances: Refrigerator, Washer, Elec. Dryer, Electric Range, Gas Range, Hood
Basement: Rock
Utilities
Other Utilities: City Water,City Sewer,Gas
Cooling: Multi-Window A/C
Heating: Gas
Exterior / Lot Features
Parking Description: Garage Description - None, Garage Dimensions - 0
Exterior: Vinyl
Roof: Asphalt, Shingle
Waterfront Details
Water Front Features: 0 - None
Financial Considerations
Tax/Property ID: 060-0010-03480
Tax Amount: 1290
A broker reciprocity listing courtesy: Pemberton Real Estate, Inc
The data relating to real estate for sale on this web site comes in part from the Broker Reciprocity℠ Program of the RAOR - Range Association of REALTORS®. Real estate listings held by brokerage firms other than Edina Realty, Inc. are marked with the Broker Reciprocity℠ logo or the Broker Reciprocity℠ thumbnail and detailed information about them includes the name of the listing brokers. Edina Realty, Inc. is not a Multiple Listing Service (MLS), nor does it offer MLS access. This website is a service of Edina Realty, Inc., a broker Participant of the RAOR - Range Association of REALTORS®. IDX information is provided exclusively for consumers personal, non-commercial use and may not be used for any purpose other than to identify prospective properties consumers may be interested in purchasing. Open House information is subject to change without notice. Information deemed reliable but not guaranteed.
Copyright 2026 RAOR - Range Association of REALTORS®. All Rights Reserved.
Payment Calculator
Interest rate and annual percentage rate (APR) are based on current market conditions, are for informational purposes only, are subject to change without notice and may be subject to pricing add-ons related to property type, loan amount, loan-to-value, credit score and other variables. Estimated closing costs used in the APR calculation are assumed to be paid by the borrower at closing. If the closing costs are financed, the loan, APR and payment amounts will be higher. If the down payment is less than 20%, mortgage insurance may be required and could increase the monthly payment and APR. Contact us for details. Additional loan programs may be available. Accuracy is not guaranteed, and all products may not be available in all borrower's geographical areas and are based on their individual situation. This is not a credit decision or a commitment to lend.
Sales History & Tax Summary for 213 Wisconsin Ave W
Sales History
| Date | Price | |
|---|---|---|
| Currently not available. | ||
Tax Summary
| Tax Year | Estimated Market Value | Total Tax |
|---|---|---|
| Currently not available. | ||
Data powered by ATTOM Data Solutions. Copyright© 2026. Information deemed reliable but not guaranteed.
Schools
Schools nearby 213 Wisconsin Ave W
| Schools in attendance boundaries | Grades | Distance | Rating |
|---|---|---|---|
| Loading... | |||
| Schools nearby | Grades | Distance | Rating |
|---|---|---|---|
| Loading... | |||
Data powered by ATTOM Data Solutions. Copyright© 2026. Information deemed reliable but not guaranteed.
The schools shown represent both the assigned schools and schools by distance based on local school and district attendance boundaries. Attendance boundaries change based on various factors and proximity does not guarantee enrollment eligibility. Please consult your real estate agent and/or the school district to confirm the schools this property is zoned to attend. Information is deemed reliable but not guaranteed.
SchoolDigger ® Rating
The SchoolDigger rating system is a 1-5 scale with 5 as the highest rating. SchoolDigger ranks schools based on test scores supplied by each state's Department of Education. They calculate an average standard score by normalizing and averaging each school's test scores across all tests and grades.
Coming soon properties will soon be on the market, but are not yet available for showings.