$600,000
21310 Poate Court Rogers, MN 55374
Active Contingent MLS# 6812985
5 beds 3 baths 2,328 sq ft Single Family
Details for 21310 Poate Court
MLS# 6812985
Description for 21310 Poate Court, Rogers, MN, 55374
Welcome home to this beautifully designed 4-bedroom, 3-bath residence built in 2020! All four spacious bedrooms are conveniently located on the same upper level, including a luxurious primary suite featuring a walk-through full bathroom with a separate soaking tub, tiled shower, and dual sinks. Three of the bedrooms offer walk-in closets, providing plenty of storage space. The open-concept main level is perfect for entertaining, with a bright living room flowing seamlessly into the dining area and modern kitchen. A convenient main-floor half bath adds functionality. The unfinished basement offers endless possibilities for future expansion or extra storage. Don’t miss the opportunity to make this contemporary home yours!
Listing Information
Property Type: Residential, Single Family
Status: Active Contingent-Sale of Another Property
Bedrooms: 5
Bathrooms: 3
Lot Size: 0.35 Acres
Square Feet: 2,328 sq ft
Year Built: 2020
Foundation: 1,164 sq ft
Garage: Yes
Stories: 2 Stories
Subdivision: Fletcher Hills 2nd Add
County: Hennepin
Days On Market: 129
Construction Status: Previously Owned
School Information
District: 728 - Elk River
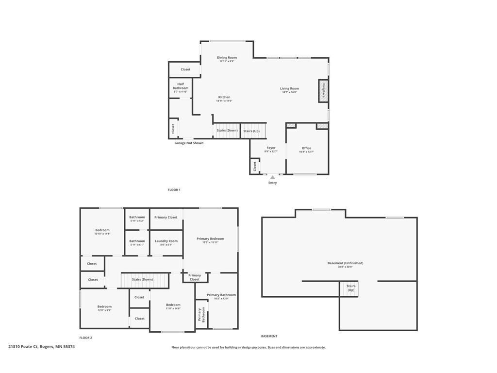
Room Information
Main Floor
Bedroom 1: 12.7x10.4
Deck: 12x12
Dining Room: 12.11x8.9
Foyer: 12.7x8.9
Kitchen: 14.11x11
Living Room: 18.7x16
Upper Floor
Bedroom 2: 15.11x13.5
Bedroom 3: 11.8x10.10
Bedroom 4: 12x9.9
Bedroom 5: 13.9x10.5
Laundry: 8x6.1
Bathrooms
Full Baths: 2
1/2 Baths: 1
Additonal Room Information
Dining: Eat In Kitchen,Kitchen/Dining Room,Living/Dining Room
Laundry: Washer Hookup, Laundry Room, Upper Level, Sink
Bath Description: Double Sink,Bathroom Ensuite,Full Primary,Main Floor 1/2 Bath,Primary Walk-Thru,Private Primary,Rough In,Separate Tub & Shower,Upper Level Full Bath,Walk-In Shower Stall
Interior Features
Square Footage above: 2,328 sq ft
Appliances: Stainless Steel Appliances, Energy Star Appliances, Electric Water Heater, Refrigerator, Dryer, Disposal, Air-To-Air Exchanger, Microwave, Range, Dishwasher, Washer, Exhaust Fan/Hood
Basement: Full, Egress Windows, Unfinished, Daylight/Lookout Windows
Fireplaces: 1, Electric, Living Room, Decorative
Additional Interior Features: Walk-In Closet, Washer/Dryer Hookup, Ceiling Fan(s), Tile Floors, Kitchen Center Island, Paneled Doors, Primary Bdr Suite, 3 BR on One Level, 4 BR on One Level
Utilities
Water: City Water/Connected
Sewer: City Sewer/Connected
Cooling: Central
Heating: Forced Air, Natural Gas
Exterior / Lot Features
Attached Garage: Attached Garage
Garage Spaces: 4
Parking Description: Driveway - Asphalt, Insulated Garage, Attached Garage, Garage Door Opener, Storage, Garage Sq Ft - 690.0
Exterior: Fiber Board, Brick/Stone
Roof: Asphalt Shingles, Age 8 Years or Less
Lot Dimensions: 89x190x65x202
Zoning: Residential-Single Family
Additional Exterior/Lot Features: Porch, Deck, Tree Coverage - Light, Road Frontage - City, Cul De Sac, Paved Streets
Driving Directions
94 W to 101, S onto 101, turn onto Main St, E onto Foxtail Ln S, turn onto Poate Ct, home on right.
Financial Considerations
Tax/Property ID: 2612023130084
Tax Amount: 6415
Tax Year: 2025
HomeStead Description: Homesteaded
A broker reciprocity listing courtesy: Compass
The data relating to real estate for sale on this web site comes in part from the Broker Reciprocity℠ Program of the Regional Multiple Listing Service of Minnesota, Inc. Real estate listings held by brokerage firms other than Edina Realty, Inc. are marked with the Broker Reciprocity℠ logo or the Broker Reciprocity℠ thumbnail and detailed information about them includes the name of the listing brokers. Edina Realty, Inc. is not a Multiple Listing Service (MLS), nor does it offer MLS access. This website is a service of Edina Realty, Inc., a broker Participant of the Regional Multiple Listing Service of Minnesota, Inc. IDX information is provided exclusively for consumers personal, non-commercial use and may not be used for any purpose other than to identify prospective properties consumers may be interested in purchasing. Open House information is subject to change without notice. Information deemed reliable but not guaranteed.
Copyright 2026 Regional Multiple Listing Service of Minnesota, Inc. All Rights Reserved.
Payment Calculator
Interest rate and annual percentage rate (APR) are based on current market conditions, are for informational purposes only, are subject to change without notice and may be subject to pricing add-ons related to property type, loan amount, loan-to-value, credit score and other variables. Estimated closing costs used in the APR calculation are assumed to be paid by the borrower at closing. If the closing costs are financed, the loan, APR and payment amounts will be higher. If the down payment is less than 20%, mortgage insurance may be required and could increase the monthly payment and APR. Contact us for details. Additional loan programs may be available. Accuracy is not guaranteed, and all products may not be available in all borrower's geographical areas and are based on their individual situation. This is not a credit decision or a commitment to lend.
Sales History & Tax Summary for 21310 Poate Court
Sales History
| Date | Price | |
|---|---|---|
| Currently not available. | ||
Tax Summary
| Tax Year | Estimated Market Value | Total Tax |
|---|---|---|
| Currently not available. | ||
Data powered by ATTOM Data Solutions. Copyright© 2026. Information deemed reliable but not guaranteed.
Schools
Schools nearby 21310 Poate Court
| Schools in attendance boundaries | Grades | Distance | Rating |
|---|---|---|---|
| Loading... | |||
| Schools nearby | Grades | Distance | Rating |
|---|---|---|---|
| Loading... | |||
Data powered by ATTOM Data Solutions. Copyright© 2026. Information deemed reliable but not guaranteed.
The schools shown represent both the assigned schools and schools by distance based on local school and district attendance boundaries. Attendance boundaries change based on various factors and proximity does not guarantee enrollment eligibility. Please consult your real estate agent and/or the school district to confirm the schools this property is zoned to attend. Information is deemed reliable but not guaranteed.
SchoolDigger ® Rating
The SchoolDigger rating system is a 1-5 scale with 5 as the highest rating. SchoolDigger ranks schools based on test scores supplied by each state's Department of Education. They calculate an average standard score by normalizing and averaging each school's test scores across all tests and grades.
Coming soon properties will soon be on the market, but are not yet available for showings.