21351 Canal Drive Brooksville, FL 34601
For Sale MLS# P4936949
3 beds 2 baths 1,280 sq ft Single Family
Details for 21351 Canal Drive
MLS# P4936949
Description for 21351 Canal Drive, Brooksville, FL, 34601
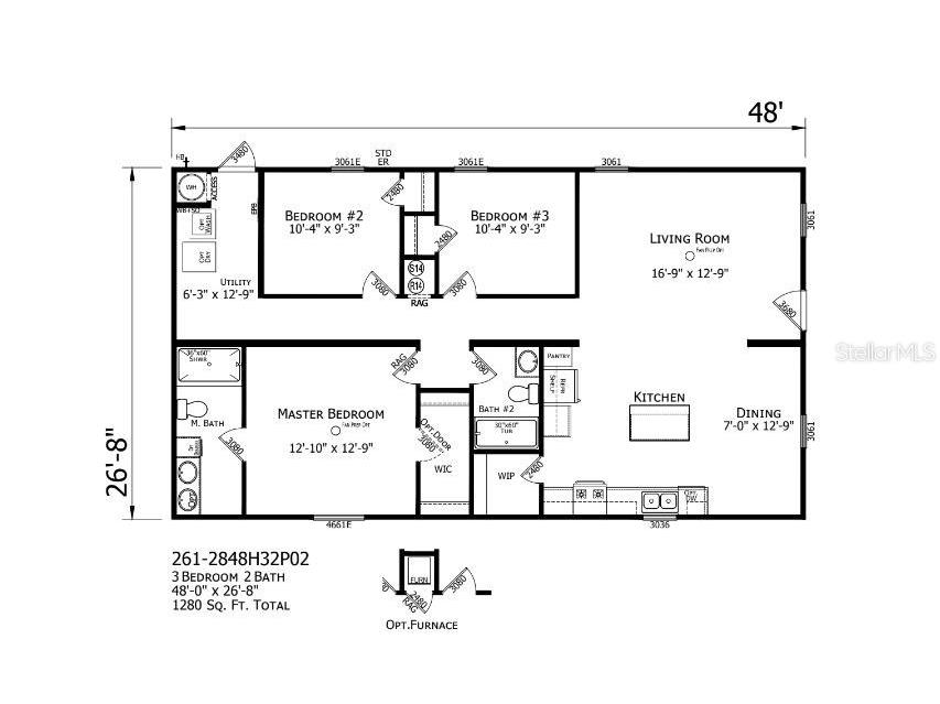
Pre-Construction. To be built. Welcome to your dream home, 21351 Canal Drive, Brooksville, FL 34601! Corner lot with a cul-de-sac, offering less through-traffic and a sense of privacy. This beautifully designed 3-bedroom, 2-bathroom brand-new manufactured home offers a spacious, open floor plan ideal for modern living. From the moment you step inside, you’ll appreciate the high-quality finishes and attention to detail with vinyl flooring throughout. The spacious living room seamlessly flows into the kitchen and dining area, perfect for entertaining guests. The master bedroom is a serene retreat, with a luxurious en-suite master bath with a dual sink vanity, shower and a walk-in closet. The second bathroom offers a tub, perfect for unwinding after a long day. The chef-inspired kitchen is equipped with brand-new stainless-steel appliances, featuring a central island with a breakfast bar, shaker-style cabinets and walk-in pantry. Two additional bedrooms provide plenty of space for family members or guests, each with walk-in closet. The added family room provides even more space to spread out, whether you need a home office, playroom, or second living area. Additionally, the utility room is a great space for laundry and storage, adding to the home’s overall convenience. Situated just a short drive from essential services and local attractions. Downtown Brooksville, with its historic charm, festivals, shops, and eateries, is approximately 2 miles away. Nature lovers will appreciate the proximity to the Withlacoochee State Trail, about 4 miles away, offering expansive pathways perfect for biking, walking, and enjoying the beautiful Florida outdoors. For a classic Florida experience, attractions like Weeki Wachee Springs are also easily accessible. This home is a prime location with no HOA or lot rent to worry about. Don't miss out on this incredible opportunity to make this brand-new home yours! Schedule your viewing today and experience the best of Florida living.
Listing Information
Property Type: Residential, Manufactured Home, Other
Status: Active
Bedrooms: 3
Bathrooms: 2
Lot Size: 0.14 Acres
Square Feet: 1,280 sq ft
Year Built: 2025
Stories: 1 Story
Construction: Vinyl Siding
Construction Display: New Construction
Subdivision: Damac Modular Home Park
Foundation: Concrete Perimeter,Crawlspace,Pillar/Post/Pier
County: Hernando
School Information
Elementary: Brooksville Elementary
Middle: D.S. Parrot Middle
High: Hernando High
Room Information
Main Floor
Bathroom 2:
Bedroom 3: 12x9.3
Bedroom 2: 13.1x9.3
Primary Bathroom:
Primary Bedroom: 16.7x12
Dining Room: 11x12.9
Kitchen: 13x12.9
Living Room: 20.3x12.9
Bathrooms
Full Baths: 2
Additonal Room Information
Laundry: Washer Hookup, Laundry Room, Electric Dryer Hookup, Inside
Interior Features
Appliances: Electric Water Heater, Range, Refrigerator, Dishwasher
Flooring: Vinyl
Basement: Crawl Space
Additional Interior Features: Walk-In Closet(s), Eat-In Kitchen, Main Level Primary, Kitchen/Family Room Combo, Open Floorplan
Utilities
Water: Public
Sewer: Public Sewer
Other Utilities: Cable Available,Electricity Connected,High Speed Internet Available,Phone Available,Sewer Connected,Water Connected
Cooling: Central Air
Heating: Central
Exterior / Lot Features
Parking Description: Off Street, Guest, driveway
Roof: Shingle
Additional Exterior/Lot Features: Other, Side Porch, Front Porch, Flat, Level, Cul-de-Sac, Outside City Limits
Community Features
Security Features: Smoke Detector(s)
Driving Directions
Head North on US N 41. Turn Left onto Campbell Dr. (This is the entrance to the DeMac Estates subdivision). Turn Left onto Canal Drive. The property will be on your right in approximately 0.3 miles, as it is located on a corner lot with a cul-de-sac.
Financial Considerations
Terms: Cash,Conventional,FHA,USDA Loan,VA Loan
Tax/Property ID: R11-222-19-1660-0000-0700
Tax Amount: 1107
Tax Year: 2024
A broker reciprocity listing courtesy: LA ROSA REALTY PRESTIGE
Based on information provided by Stellar MLS as distributed by the MLS GRID. Information from the Internet Data Exchange is provided exclusively for consumers’ personal, non-commercial use, and such information may not be used for any purpose other than to identify prospective properties consumers may be interested in purchasing. This data is deemed reliable but is not guaranteed to be accurate by Edina Realty, Inc., or by the MLS. Edina Realty, Inc., is not a multiple listing service (MLS), nor does it offer MLS access.
Copyright 2026 Stellar MLS as distributed by the MLS GRID. All Rights Reserved.
Payment Calculator
Interest rate and annual percentage rate (APR) are based on current market conditions, are for informational purposes only, are subject to change without notice and may be subject to pricing add-ons related to property type, loan amount, loan-to-value, credit score and other variables. Estimated closing costs used in the APR calculation are assumed to be paid by the borrower at closing. If the closing costs are financed, the loan, APR and payment amounts will be higher. If the down payment is less than 20%, mortgage insurance may be required and could increase the monthly payment and APR. Contact us for details. Additional loan programs may be available. Accuracy is not guaranteed, and all products may not be available in all borrower's geographical areas and are based on their individual situation. This is not a credit decision or a commitment to lend.
Sales History & Tax Summary for 21351 Canal Drive
Sales History
| Date | Price | |
|---|---|---|
| Currently not available. | ||
Tax Summary
| Tax Year | Estimated Market Value | Total Tax |
|---|---|---|
| Currently not available. | ||
Data powered by ATTOM Data Solutions. Copyright© 2026. Information deemed reliable but not guaranteed.
Schools
Schools nearby 21351 Canal Drive
| Schools in attendance boundaries | Grades | Distance | Rating |
|---|---|---|---|
| Loading... | |||
| Schools nearby | Grades | Distance | Rating |
|---|---|---|---|
| Loading... | |||
Data powered by ATTOM Data Solutions. Copyright© 2026. Information deemed reliable but not guaranteed.
The schools shown represent both the assigned schools and schools by distance based on local school and district attendance boundaries. Attendance boundaries change based on various factors and proximity does not guarantee enrollment eligibility. Please consult your real estate agent and/or the school district to confirm the schools this property is zoned to attend. Information is deemed reliable but not guaranteed.
SchoolDigger ® Rating
The SchoolDigger rating system is a 1-5 scale with 5 as the highest rating. SchoolDigger ranks schools based on test scores supplied by each state's Department of Education. They calculate an average standard score by normalizing and averaging each school's test scores across all tests and grades.
Coming soon properties will soon be on the market, but are not yet available for showings.