2136 Kerwood Loop The Villages, FL 32162
For Sale MLS# G5104968
2 beds 2 baths 1,135 sq ft Single Family
Details for 2136 Kerwood Loop
MLS# G5104968
Description for 2136 Kerwood Loop, The Villages, FL, 32162
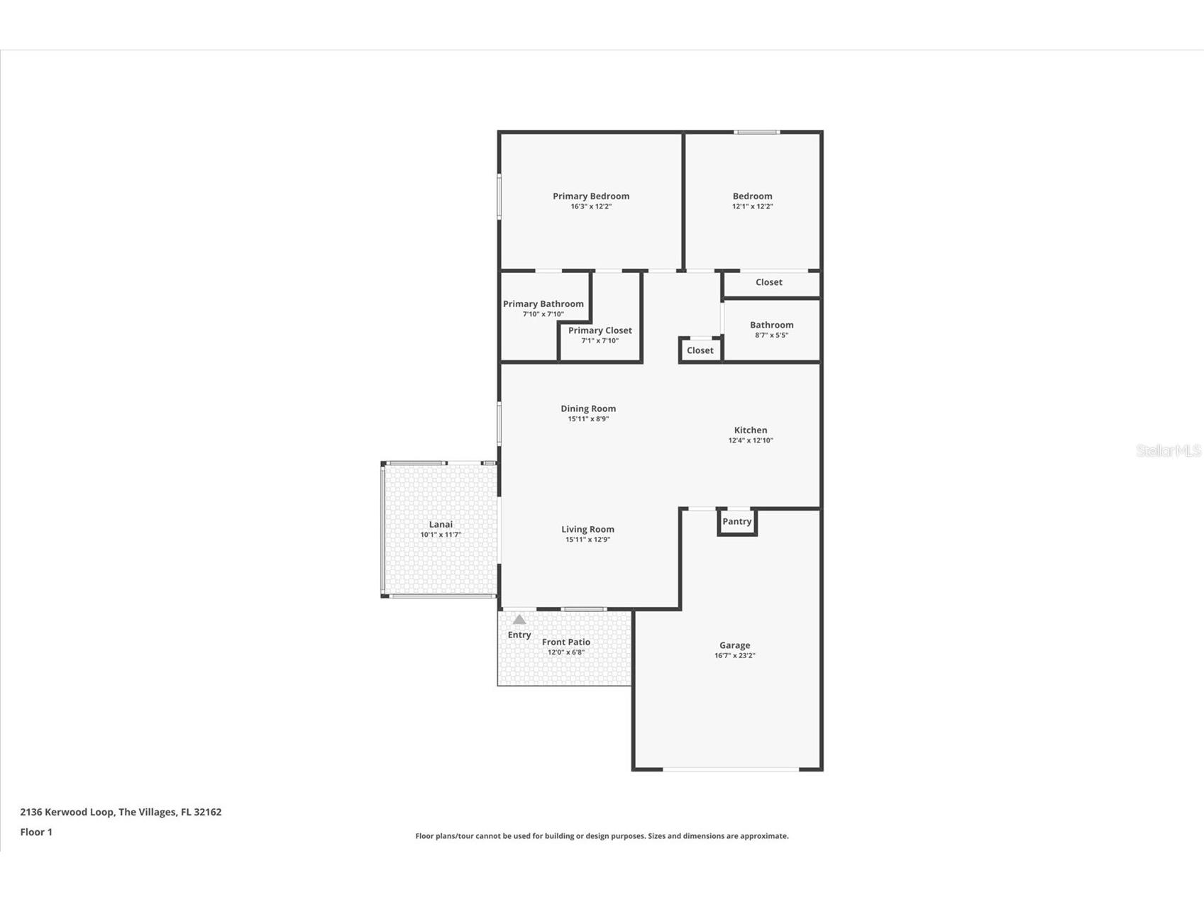
LOCATION!! Lake Sumter Landing is just 2 miles away! GOLF CART INCLUDED!!! Charming 2/2 Cottage Home in the Village of Amelia. NO BOND! This delightful home offers comfort, convenience, and fantastic outdoor living. A welcoming covered front porch sets the tone as you enter the open floor plan, enhanced by luxury vinyl plank flooring, ceiling fans with light kits and blinds with cornices throughout. The kitchen offers a convenient breakfast bar and pantry closet. The master bedroom features a walk-in closet and en-suite bath with a shower. Guests will appreciate the updated bath with a shower/tub combo and a linen closet for added storage. Enjoy Florida living in your screened lanai, complete with roll-down sun shades and a ceiling fan for year-round comfort. Step outside to your outdoor patio—perfect for grilling, dining, or entertaining—enhanced with a privacy fence. Garage parking for car and golf cart. 2008 gas powered Yamaha golf cart conveys with the home. Additional features include garage storage shelves, belt driven garage door opener, and a water filtration system. Be sure to watch our virtual tour of this wonderful home and schedule your appointment to see it today so you can start living The Villages dream.
Listing Information
Property Type: Residential, Single Family Residence
Status: Active
Bedrooms: 2
Bathrooms: 2
Lot Size: 0.13 Acres
Square Feet: 1,135 sq ft
Year Built: 2008
Garage: Yes
Stories: 1 Story
Construction: Vinyl Siding,Wood Frame
Subdivision: The Villages
Foundation: Slab
County: Sumter
Room Information
Main Floor
Porch: 11.7x10
Bedroom 2: 12x12
Primary Bedroom: 12x16
Kitchen: 13x12
Dining Room: 9x16
Living Room: 12.9x16
Bathrooms
Full Baths: 2
Additonal Room Information
Laundry: In Garage
Interior Features
Appliances: Washer, Dishwasher, Disposal, Dryer, Microwave, Range, Refrigerator, Water Purifier
Flooring: Laminate
Doors/Windows: Blinds, Window Treatments
Additional Interior Features: Walk-In Closet(s), Window Treatments, Ceiling Fan(s), Eat-In Kitchen, Open Floorplan, Solid Surface Counters
Utilities
Water: Public
Sewer: Public Sewer
Other Utilities: Cable Available,Electricity Available,Electricity Connected,High Speed Internet Available,Phone Available,Sewer Connected,Water Available,Water Connected
Cooling: Ceiling Fan(s), Central Air
Heating: Central
Exterior / Lot Features
Attached Garage: Attached Garage
Garage Spaces: 1
Parking Description: driveway, Golf Cart Garage
Roof: Shingle
Pool: Association, Community
Additional Exterior/Lot Features: Rain Gutters, Front Porch, Covered, Screened, Landscaped
Community Features
Community Features: Pool, Sidewalks, Playground, Golf, Park, Racquetball, Fitness, Golf Carts OK, Community Mailbox
Association Amenities: Recreation Facilities, Pool, Tennis Court(s), Golf Course, Fitness Center, Basketball Court, Pickleball, Racquetball, Shuffleboard Court, Park
HOA Dues Include: Pool(s), Recreation Facilities
Driving Directions
Take Morse Blvd south to Odell Circle go east. At Harston Trial turn left. Turn right onto Kerwood Loop. Go around the 1st curve and the house will be on the right.
Financial Considerations
Terms: Cash,Conventional,FHA,VA Loan
Tax/Property ID: D36G018
Tax Amount: 3255.24
Tax Year: 2025
A broker reciprocity listing courtesy: KELLER WILLIAMS CORNERSTONE RE
Based on information provided by Stellar MLS as distributed by the MLS GRID. Information from the Internet Data Exchange is provided exclusively for consumers’ personal, non-commercial use, and such information may not be used for any purpose other than to identify prospective properties consumers may be interested in purchasing. This data is deemed reliable but is not guaranteed to be accurate by Edina Realty, Inc., or by the MLS. Edina Realty, Inc., is not a multiple listing service (MLS), nor does it offer MLS access.
Copyright 2026 Stellar MLS as distributed by the MLS GRID. All Rights Reserved.
Payment Calculator
Interest rate and annual percentage rate (APR) are based on current market conditions, are for informational purposes only, are subject to change without notice and may be subject to pricing add-ons related to property type, loan amount, loan-to-value, credit score and other variables. Estimated closing costs used in the APR calculation are assumed to be paid by the borrower at closing. If the closing costs are financed, the loan, APR and payment amounts will be higher. If the down payment is less than 20%, mortgage insurance may be required and could increase the monthly payment and APR. Contact us for details. Additional loan programs may be available. Accuracy is not guaranteed, and all products may not be available in all borrower's geographical areas and are based on their individual situation. This is not a credit decision or a commitment to lend.
Sales History & Tax Summary for 2136 Kerwood Loop
Sales History
| Date | Price | |
|---|---|---|
| Currently not available. | ||
Tax Summary
| Tax Year | Estimated Market Value | Total Tax |
|---|---|---|
| Currently not available. | ||
Data powered by ATTOM Data Solutions. Copyright© 2026. Information deemed reliable but not guaranteed.
Schools
Schools nearby 2136 Kerwood Loop
| Schools in attendance boundaries | Grades | Distance | Rating |
|---|---|---|---|
| Loading... | |||
| Schools nearby | Grades | Distance | Rating |
|---|---|---|---|
| Loading... | |||
Data powered by ATTOM Data Solutions. Copyright© 2026. Information deemed reliable but not guaranteed.
The schools shown represent both the assigned schools and schools by distance based on local school and district attendance boundaries. Attendance boundaries change based on various factors and proximity does not guarantee enrollment eligibility. Please consult your real estate agent and/or the school district to confirm the schools this property is zoned to attend. Information is deemed reliable but not guaranteed.
SchoolDigger ® Rating
The SchoolDigger rating system is a 1-5 scale with 5 as the highest rating. SchoolDigger ranks schools based on test scores supplied by each state's Department of Education. They calculate an average standard score by normalizing and averaging each school's test scores across all tests and grades.
Coming soon properties will soon be on the market, but are not yet available for showings.