214 E 18th Street Sanford, FL 32771
For Sale MLS# O6334069
4 beds 3 baths 2,044 sq ft Single Family
Details for 214 E 18th Street
MLS# O6334069
Description for 214 E 18th Street, Sanford, FL, 32771
Back on the market with additional improvements 4/6/26, including permitted electrical upgrades, a new electrical panel, a new main feeder wire, and the addition of a second-story mini-split heating and cooling system for enhanced efficiency. Price has been adjusted to reflect the recent updates. -Welcome to 214 E 18th St, located in the heart of historic downtown Sanford’s coveted golf cart district with no HOA. This oversized Craftsman bungalow blends classic character with thoughtful modern updates and resort-style outdoor living. Major improvements include a brand-new HVAC system, a beautifully renovated kitchen and bathrooms, and a fully resurfaced in-ground pool with a freshly painted pool deck and brand-new pool pump. Inside, you’ll find new luxury vinyl plank flooring, updated lighting, and fresh interior paint and texture throughout. The four-bedroom, three-bath layout offers flexibility and functionality, including a conveniently located half bath near the rear entry for easy pool access. The fully renovated kitchen features soft-close white shaker cabinetry, quartz countertops, stainless steel appliances, open wood shelving, a sleek vent hood, and modern fixtures. The bright living and dining areas are filled with natural light and flow seamlessly to the open back porch, creating the perfect space for entertaining or relaxing. The bathrooms have been tastefully updated with new vanities, toilets, and upgraded fixtures, including a newly tiled walk-in shower with a sliding glass door in the primary suite. Step outside to your private backyard retreat featuring a fully fenced yard with white vinyl privacy fencing, mature trees, and expansive patio space surrounding the pool. A separate screened porch offers a shaded space for lounging and enjoying Florida living. The property also offers ample off-street parking for multiple vehicles. Located just minutes from Sanford’s vibrant downtown, the Riverwalk, parks, restaurants, breweries, and local shops, this move-in-ready home offers a rare opportunity to own a beautifully updated piece of Sanford history.
Listing Information
Property Type: Residential, Single Family Residence
Status: Active
Bedrooms: 4
Bathrooms: 3
Lot Size: 0.23 Acres
Square Feet: 2,044 sq ft
Year Built: 1930
Stories: 2 Story
Construction: Wood Siding,Wood Frame
Construction Display: New Construction
Subdivision: Markham Park Heights
Foundation: Crawlspace
County: Seminole
Construction Status: New Construction
School Information
Elementary: Pine Crest Elementary
Middle: Sanford Middle
High: Seminole High
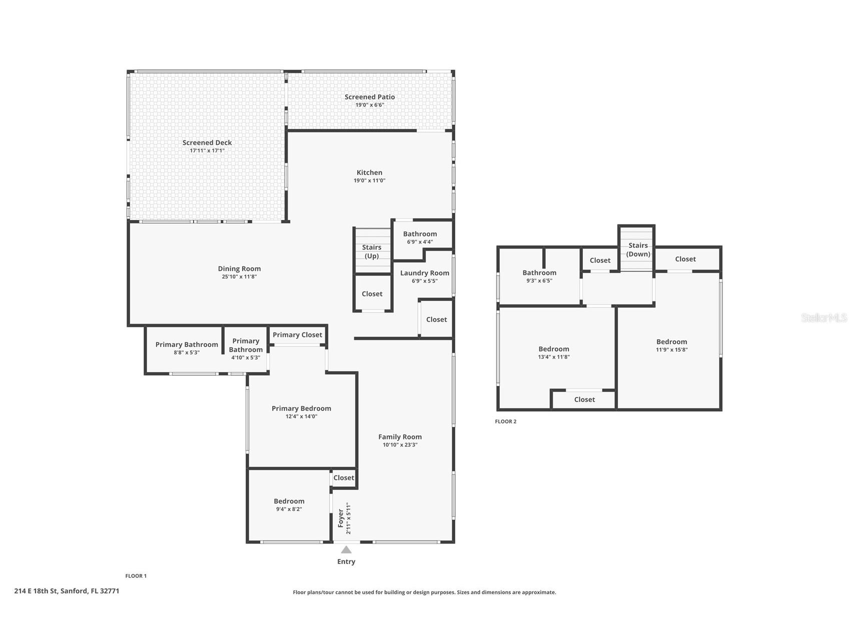
Room Information
Main Floor
Living Room: 11.8x25.1
Kitchen: 11x19
Bedroom 2: 8.2x9.4
Laundry: 5x7
Bathroom 2: 4x7
Primary Bathroom: 5x13
Primary Bedroom: 12.4x14
Family Room: 10.1x23.3
Upper Floor
Bathroom 3: 6.5x9.3
Bedroom 4: 11.8x13.4
Bedroom 3: 11.9x15.8
Bathrooms
Full Baths: 2
1/2 Baths: 1
Additonal Room Information
Laundry: Laundry Room, Inside
Interior Features
Appliances: Range Hood, Dishwasher, Range, Refrigerator
Flooring: Luxury Vinyl
Basement: Crawl Space
Additional Interior Features: Ceiling Fan(s), Living/Dining Room, Main Level Primary
Utilities
Water: Public
Sewer: Public Sewer
Other Utilities: Cable Available,Electricity Connected,Sewer Connected,Water Connected
Cooling: Ceiling Fan(s), Central Air
Heating: Central
Exterior / Lot Features
Parking Description: driveway, Off Street
Roof: Shingle
Pool: In Ground, Gunite
Lot View: Pool
Lot Dimensions: 75.0X135.0
Fencing: Vinyl
Additional Exterior/Lot Features: Rear Porch, Enclosed, Screened, Deck, City Lot
Community Features
Community Features: Sidewalks
Security Features: Smoke Detector(s)
Driving Directions
From I-4 exit 101A (46-A)Towards Sanford 46A/25th Street. Travel East. Turn Left on Park Ave. Travel North until E 18th Street, and Turn Right. Go through the Stop sign (Magnolia Ave). House will be on the Left.
Financial Considerations
Terms: Cash,Conventional,FHA,VA Loan
Tax/Property ID: 36-19-30-509-0E00-0090
Tax Amount: 2784
Tax Year: 2024
A broker reciprocity listing courtesy: LPT REALTY, LLC
Based on information provided by Stellar MLS as distributed by the MLS GRID. Information from the Internet Data Exchange is provided exclusively for consumers’ personal, non-commercial use, and such information may not be used for any purpose other than to identify prospective properties consumers may be interested in purchasing. This data is deemed reliable but is not guaranteed to be accurate by Edina Realty, Inc., or by the MLS. Edina Realty, Inc., is not a multiple listing service (MLS), nor does it offer MLS access.
Copyright 2026 Stellar MLS as distributed by the MLS GRID. All Rights Reserved.
Payment Calculator
Interest rate and annual percentage rate (APR) are based on current market conditions, are for informational purposes only, are subject to change without notice and may be subject to pricing add-ons related to property type, loan amount, loan-to-value, credit score and other variables. Estimated closing costs used in the APR calculation are assumed to be paid by the borrower at closing. If the closing costs are financed, the loan, APR and payment amounts will be higher. If the down payment is less than 20%, mortgage insurance may be required and could increase the monthly payment and APR. Contact us for details. Additional loan programs may be available. Accuracy is not guaranteed, and all products may not be available in all borrower's geographical areas and are based on their individual situation. This is not a credit decision or a commitment to lend.
Sales History & Tax Summary for 214 E 18th Street
Sales History
| Date | Price | |
|---|---|---|
| Currently not available. | ||
Tax Summary
| Tax Year | Estimated Market Value | Total Tax |
|---|---|---|
| Currently not available. | ||
Data powered by ATTOM Data Solutions. Copyright© 2026. Information deemed reliable but not guaranteed.
Schools
Schools nearby 214 E 18th Street
| Schools in attendance boundaries | Grades | Distance | Rating |
|---|---|---|---|
| Loading... | |||
| Schools nearby | Grades | Distance | Rating |
|---|---|---|---|
| Loading... | |||
Data powered by ATTOM Data Solutions. Copyright© 2026. Information deemed reliable but not guaranteed.
The schools shown represent both the assigned schools and schools by distance based on local school and district attendance boundaries. Attendance boundaries change based on various factors and proximity does not guarantee enrollment eligibility. Please consult your real estate agent and/or the school district to confirm the schools this property is zoned to attend. Information is deemed reliable but not guaranteed.
SchoolDigger ® Rating
The SchoolDigger rating system is a 1-5 scale with 5 as the highest rating. SchoolDigger ranks schools based on test scores supplied by each state's Department of Education. They calculate an average standard score by normalizing and averaging each school's test scores across all tests and grades.
Coming soon properties will soon be on the market, but are not yet available for showings.