214 E Floribraska Avenue Tampa, FL 33603
For Sale MLS# TB8461747
3 beds 3 baths 1,893 sq ft Single Family
Details for 214 E Floribraska Avenue
MLS# TB8461747
Description for 214 E Floribraska Avenue, Tampa, FL, 33603
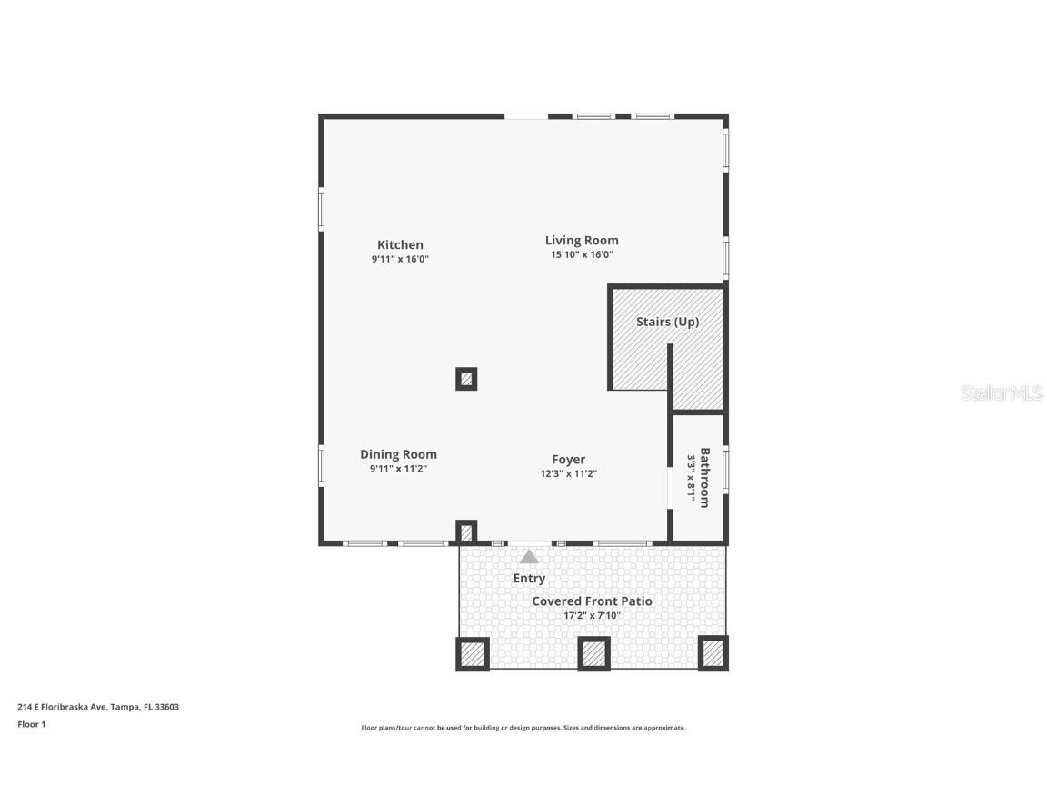
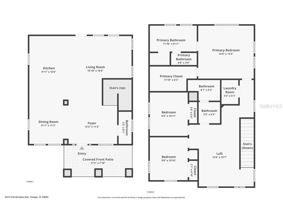
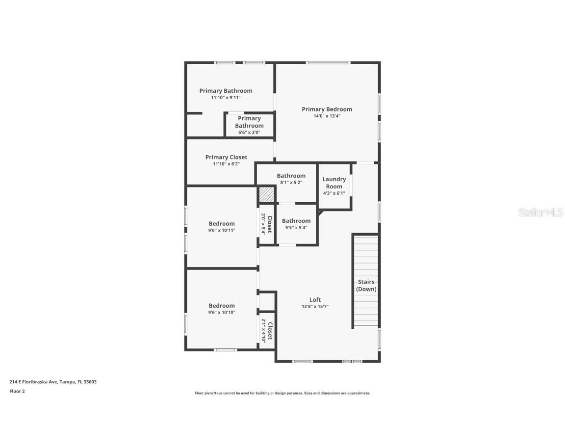
Elegant 2018-built residence offering refined modern living in a prime Tampa location. This 3-bedroom, 2.5-bath home features 1,893 sq ft of thoughtfully curated space with an open-concept layout, soaring 10’ ceilings, and hardwood flooring throughout the main living areas. The designer kitchen showcases quartz countertops, custom shaker cabinetry, stainless steel appliances, and an oversized center island ideal for entertaining. Upstairs, the expansive primary suite offers a spa-inspired en-suite bath, complemented by additional bedrooms and a versatile loft perfect for a home office or retreat. Covered front and rear porches enhance indoor-outdoor living. Ideally situated just minutes from downtown Tampa, Armature Works, the Riverwalk, fine dining, shopping, and major commuter routes. No HOA.
Listing Information
Property Type: Residential, Single Family Residence
Status: Active
Bedrooms: 3
Bathrooms: 3
Lot Size: 0.08 Acres
Square Feet: 1,893 sq ft
Year Built: 2018
Stories: 2 Story
Construction: Block
Construction Display: New Construction
Subdivision: Fairburn
Foundation: Slab
County: Hillsborough
Construction Status: New Construction
Room Information
Main Floor
Kitchen: 20x14
Living Room: 14x12
Upper Floor
Primary Bedroom: 13x15
Bathrooms
Full Baths: 2
1/2 Baths: 1
Additonal Room Information
Laundry: Inside
Interior Features
Appliances: Dishwasher, Range, Refrigerator
Flooring: Marble,Wood
Additional Interior Features: Open Floorplan
Utilities
Water: Public
Sewer: Public Sewer
Other Utilities: High Speed Internet Available
Cooling: Central Air
Heating: Electric
Exterior / Lot Features
Parking Description: driveway
Roof: Shingle
Additional Exterior/Lot Features: Sprinkler/Irrigation, Storm/Security Shutters, Front Porch, Rear Porch, Covered, Corner Lot
Driving Directions
From Palm Ave, go north on Morgan St. 6 blocks, home will be straight ahead!
Financial Considerations
Terms: Cash,Conventional
Tax/Property ID: A-12-29-18-4RP-000001-00004.2
Tax Amount: 5171.95
Tax Year: 2025
A broker reciprocity listing courtesy: EXP REALTY LLC
Based on information provided by Stellar MLS as distributed by the MLS GRID. Information from the Internet Data Exchange is provided exclusively for consumers’ personal, non-commercial use, and such information may not be used for any purpose other than to identify prospective properties consumers may be interested in purchasing. This data is deemed reliable but is not guaranteed to be accurate by Edina Realty, Inc., or by the MLS. Edina Realty, Inc., is not a multiple listing service (MLS), nor does it offer MLS access.
Copyright 2026 Stellar MLS as distributed by the MLS GRID. All Rights Reserved.
Payment Calculator
Interest rate and annual percentage rate (APR) are based on current market conditions, are for informational purposes only, are subject to change without notice and may be subject to pricing add-ons related to property type, loan amount, loan-to-value, credit score and other variables. Estimated closing costs used in the APR calculation are assumed to be paid by the borrower at closing. If the closing costs are financed, the loan, APR and payment amounts will be higher. If the down payment is less than 20%, mortgage insurance may be required and could increase the monthly payment and APR. Contact us for details. Additional loan programs may be available. Accuracy is not guaranteed, and all products may not be available in all borrower's geographical areas and are based on their individual situation. This is not a credit decision or a commitment to lend.
Sales History & Tax Summary for 214 E Floribraska Avenue
Sales History
| Date | Price | |
|---|---|---|
| Currently not available. | ||
Tax Summary
| Tax Year | Estimated Market Value | Total Tax |
|---|---|---|
| Currently not available. | ||
Data powered by ATTOM Data Solutions. Copyright© 2026. Information deemed reliable but not guaranteed.
Schools
Schools nearby 214 E Floribraska Avenue
| Schools in attendance boundaries | Grades | Distance | Rating |
|---|---|---|---|
| Loading... | |||
| Schools nearby | Grades | Distance | Rating |
|---|---|---|---|
| Loading... | |||
Data powered by ATTOM Data Solutions. Copyright© 2026. Information deemed reliable but not guaranteed.
The schools shown represent both the assigned schools and schools by distance based on local school and district attendance boundaries. Attendance boundaries change based on various factors and proximity does not guarantee enrollment eligibility. Please consult your real estate agent and/or the school district to confirm the schools this property is zoned to attend. Information is deemed reliable but not guaranteed.
SchoolDigger ® Rating
The SchoolDigger rating system is a 1-5 scale with 5 as the highest rating. SchoolDigger ranks schools based on test scores supplied by each state's Department of Education. They calculate an average standard score by normalizing and averaging each school's test scores across all tests and grades.
Coming soon properties will soon be on the market, but are not yet available for showings.