2142 Lakemont Avenue Orlando, FL 32814 - LAKE BALDWIN
For Sale MLS# O6354684
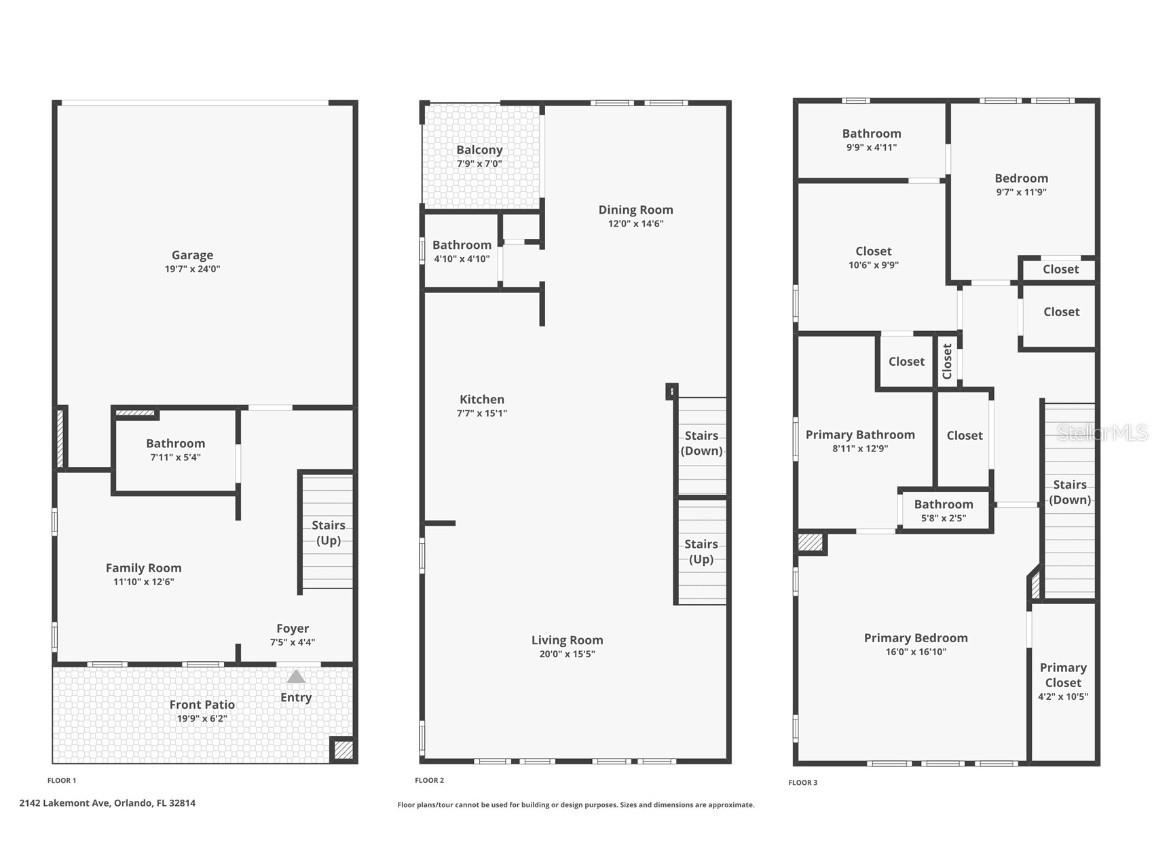
3 beds 4 baths 2,179 sq ft Townhouse/Twinhome
Details for 2142 Lakemont Avenue
MLS# O6354684
Description for 2142 Lakemont Avenue, Orlando, FL, 32814 - LAKE BALDWIN
Price improvement! Enjoy one of Baldwin Park’s most coveted locations with direct, uninterrupted views of Lake Baldwin, and even rocket launches on a clear evening. This special City Home is 3-story, 3-bedroom, 3.5-bath residence blends timeless architectural detail with thoughtful modern upgrades, all set in the heart of one of Orlando’s most walkable communities. Step in from the oversized front porch into the ground-floor open study, perfect as a dedicated office, den, or guest suite, complete with a full bath and a built-in beverage station. Up the oak-tread stairs, the main living level opens to an entertainer’s floorplan: a spacious kitchen with custom cabinetry, quartz countertops, and elevated lighting flows seamlessly into a bright dining area and living room framed by tall double-pane windows. The third level hosts the serene primary suite featuring a massage-jet shower, dual vanities, and a large walk-in closet. The two secondary bedrooms are connected by a convenient Jack-and-Jill bath, ideal for family living or guests , with an additional half bath on the main living floor for convenience. Throughout the home you’ll find meticulous craftsmanship, 8-foot doors, double crown molding, oak risers, custom fixtures, and more. The location is truly unmatched, set directly on Blue Jacket Park with a premier vantage point over Lake Baldwin where you can watch rocket launches from your own porch. You’re just steps to the Baldwin Park Town Center, with several dining, coffee, and retail at your doorstep, plus an additional parking lot on Philmont Lane that adds rare convenience. Winter Park is only minutes away, and the neighborhood’s highly walkable grid, trails, and green spaces make this one of the most desirable places to live in Central Florida.
Listing Information
Property Type: Residential, Townhouse
Status: Active
Bedrooms: 3
Bathrooms: 4
Lot Size: 0.03 Acres
Square Feet: 2,179 sq ft
Year Built: 2015
Garage: Yes
Construction: Block,Stucco
Subdivision: Baldwin Park Un #3 Rep 3
Builder: David Weekley Homes
Foundation: Stem Wall
County: Orange
School Information
Elementary: Baldwin Park Elementary
Middle: Glenridge Middle
High: Winter Park High
Room Information
Main Floor
Den: 12x11
Upper Floor
Bathroom 2: 11x10
Primary Bedroom: 16x16
Great Room: 15x20
Dining Room: 14x12
Kitchen: 15x8
Bathrooms
Full Baths: 3
1/2 Baths: 1
Additonal Room Information
Laundry: Inside, Laundry Closet
Interior Features
Appliances: Electric Water Heater, Convection Oven, Washer, Dryer, Microwave, Refrigerator
Flooring: Engineered Hardwood,Tile
Additional Interior Features: Ceiling Fan(s), Walk-In Closet(s), Crown Molding, Kitchen/Family Room Combo, Living/Dining Room, High Ceilings, Open Floorplan, Solid Surface Counters, Upper Level Primary
Utilities
Water: Public
Sewer: Public Sewer
Other Utilities: Cable Available,Electricity Connected,Municipal Utilities,Sewer Connected,Underground Utilities
Cooling: Zoned, Central Air, Ceiling Fan(s)
Heating: Exhaust Fan, Electric, Heat Pump, Central, Zoned
Exterior / Lot Features
Attached Garage: Attached Garage
Garage Spaces: 2
Roof: Concrete
Pool: Community
Lot View: Lake,Water
Additional Exterior/Lot Features: Rain Gutters, In-Wall Pest Control System, Sprinkler/Irrigation
Waterfront Details
Standard Water Body: LAKE BALDWIN
Water Front Features: Lake Front
Community Features
Community Features: Pool, Tennis Court(s), Playground, Sidewalks, Street Lights, Park, Fitness, Clubhouse, Restaurant
Security Features: Fire Hydrant(s)
HOA Dues Include: Association Management, Insurance, Maintenance Structure, Pool(s)
Homeowners Association: Yes
HOA Dues: $555 / Semi-Annually
Driving Directions
From Winter Park Aloma head south on Lakemont into Baldwin Park, Turn right onto Philmont Lane and parking on the south side of the Townhome is the best place to park. The parking in public parking.
Financial Considerations
Terms: Cash,Conventional,FHA,VA Loan
Tax/Property ID: 17-22-30-0512-01-921
Tax Amount: 8582
Tax Year: 2024
A broker reciprocity listing courtesy: BALDWIN PARK REALTY LLC
Based on information provided by Stellar MLS as distributed by the MLS GRID. Information from the Internet Data Exchange is provided exclusively for consumers’ personal, non-commercial use, and such information may not be used for any purpose other than to identify prospective properties consumers may be interested in purchasing. This data is deemed reliable but is not guaranteed to be accurate by Edina Realty, Inc., or by the MLS. Edina Realty, Inc., is not a multiple listing service (MLS), nor does it offer MLS access.
Copyright 2026 Stellar MLS as distributed by the MLS GRID. All Rights Reserved.
Payment Calculator
Interest rate and annual percentage rate (APR) are based on current market conditions, are for informational purposes only, are subject to change without notice and may be subject to pricing add-ons related to property type, loan amount, loan-to-value, credit score and other variables. Estimated closing costs used in the APR calculation are assumed to be paid by the borrower at closing. If the closing costs are financed, the loan, APR and payment amounts will be higher. If the down payment is less than 20%, mortgage insurance may be required and could increase the monthly payment and APR. Contact us for details. Additional loan programs may be available. Accuracy is not guaranteed, and all products may not be available in all borrower's geographical areas and are based on their individual situation. This is not a credit decision or a commitment to lend.
Sales History & Tax Summary for 2142 Lakemont Avenue
Sales History
| Date | Price | |
|---|---|---|
| Currently not available. | ||
Tax Summary
| Tax Year | Estimated Market Value | Total Tax |
|---|---|---|
| Currently not available. | ||
Data powered by ATTOM Data Solutions. Copyright© 2026. Information deemed reliable but not guaranteed.
Schools
Schools nearby 2142 Lakemont Avenue
| Schools in attendance boundaries | Grades | Distance | Rating |
|---|---|---|---|
| Loading... | |||
| Schools nearby | Grades | Distance | Rating |
|---|---|---|---|
| Loading... | |||
Data powered by ATTOM Data Solutions. Copyright© 2026. Information deemed reliable but not guaranteed.
The schools shown represent both the assigned schools and schools by distance based on local school and district attendance boundaries. Attendance boundaries change based on various factors and proximity does not guarantee enrollment eligibility. Please consult your real estate agent and/or the school district to confirm the schools this property is zoned to attend. Information is deemed reliable but not guaranteed.
SchoolDigger ® Rating
The SchoolDigger rating system is a 1-5 scale with 5 as the highest rating. SchoolDigger ranks schools based on test scores supplied by each state's Department of Education. They calculate an average standard score by normalizing and averaging each school's test scores across all tests and grades.
Coming soon properties will soon be on the market, but are not yet available for showings.