$995,000
2144 Charlotte Amalie Court Punta Gorda, FL 33950
For Sale MLS# C7516985
4 beds 4 baths 2,872 sq ft Single Family
Details for 2144 Charlotte Amalie Court
MLS# C7516985
Description for 2144 Charlotte Amalie Court, Punta Gorda, FL, 33950
Custom-Built Waterfront Luxury in Punta Gorda Isles. Discover an exceptional example of waterfront craftsmanship in this custom-built 4-bedroom, 3.5-bath pool home with a 3-car garage, masterfully designed by Tim Towles, Punta Gorda’s premier builder. Perfectly situated at the end of a peaceful cul-de-sac in the coveted Punta Gorda Isles community, this residence captures breathtaking intersecting canal views and offers direct sailboat access to Charlotte Harbor and the Gulf of Mexico—just minutes away by boat. From the moment you arrive, elegant curb appeal welcomes you with a circular driveway, new metal roof, and lush landscaping that complements the home’s refined architectural lines. Inside, a sense of light and space defines the open and split-bedroom floor plan, where high ceilings, arched windows, and expansive glass sliders frame the sparkling water views beyond. The gourmet-inspired kitchen is both spacious and inviting, featuring light cabinetry, a massive center island with cooktop, built-in oven and microwave, desk area, breakfast bar, closet pantry, and an aquarium glass dining nook overlooking the pool and canals. Two first-floor primary suites each offer private en-suite baths, while the upstairs guest suite includes its own full bath and access to an expansive bonus living area with a full custom kitchenette and cabinetry—ideal for multi-generational living, a media space, office, recreational room, or guest retreat. The home’s indoor living spaces extend seamlessly to the expansive screened lanai, designed for luxurious outdoor enjoyment. The large heated pool and spa take center stage, accompanied by an outdoor kitchen, covered lounging area, and open sundeck that all showcase spectacular panoramic canal views. Just beyond, you’ll find a 42-foot concrete dock with a 24,000 lb boat lift and a 69-foot concrete seawall, both maintained by the City of Punta Gorda—making this a true boater’s paradise. This residence is also a fully integrated smart home, allowing you to control lighting, temperature, security, and more directly from your phone—bringing convenience and peace of mind whether you’re home or away. Additional highlights include accordion and roll-down shutters, two-zone A/C, an air-conditioned workshop perfect for projects or hobbies, an inside laundry room, a bonus room ideal for storage or a small office, and a 250 lb buried propane tank that fuels the pool heater and dryer. Furniture is also available for optional purchase, offering a seamless, move-in-ready opportunity to enjoy the waterfront lifestyle immediately. All of this, just minutes from golfing, Fishermen’s Village, waterfront parks, boutique shopping, fine dining, and historic downtown Punta Gorda—yet tucked away in a serene setting that feels worlds apart. Experience the best of luxury coastal living at 2144 Charlotte Amalie Court, where timeless design, unmatched craftsmanship, smart technology, and mesmerizing water views come together in perfect harmony.
Listing Information
Property Type: Residential, Single Family Residence
Status: Active
Bedrooms: 4
Bathrooms: 4
Lot Size: 0.22 Acres
Square Feet: 2,872 sq ft
Year Built: 2000
Garage: Yes
Stories: 2 Story
Construction: Block,Stucco
Subdivision: Punta Gorda Isles Sec 12
Foundation: Slab
County: Charlotte
School Information
Elementary: Sallie Jones Elementary
Middle: Punta Gorda Middle
High: Charlotte High
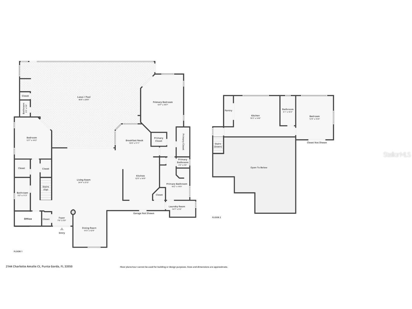
Room Information
Main Floor
Primary Bedroom: 19.5x14.5
Kitchen: 14.75x12.5
Living Room: 21.5x24.25
Dining Room: 12.75x11.5
Foyer: 5x7
Bathroom 2: 11.25x5.25
Bedroom 1: 14.25x12.5
Bathroom 1: 5.5x3.5
Porch: 29.75x46.75
Laundry: 5.5x14.5
Primary Bathroom: 14.75x10.25
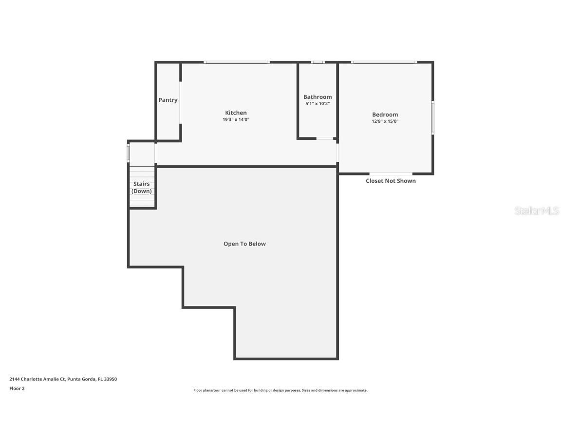
Upper Floor
Kitchen: 14x19.25
Bathroom 3: 10.25x5
Bedroom 3: 15x12.75
Bathrooms
Full Baths: 3
1/2 Baths: 1
Additonal Room Information
Laundry: Laundry Room, Inside
Interior Features
Appliances: Electric Water Heater, Dishwasher, Disposal, Dryer, Microwave, Range
Flooring: Carpet,Tile,Wood
Additional Interior Features: Split Bedrooms, Walk-In Closet(s), Vaulted Ceiling(s), Eat-In Kitchen, Ceiling Fan(s), High Ceilings, Built-in Features, Living/Dining Room, Open Floorplan, Solid Surface Counters, Wood Cabinets, Smart Home
Utilities
Water: Public
Sewer: Public Sewer
Other Utilities: Cable Connected,Electricity Connected,High Speed Internet Available,Sewer Connected,Water Connected
Cooling: Ceiling Fan(s), Central Air
Heating: Electric, Central
Exterior / Lot Features
Attached Garage: Attached Garage
Garage Spaces: 3
Roof: Metal
Pool: In Ground, Screen Enclosure, Gunite, Heated
Lot View: Bay,Canal,Ocean,Water
Additional Exterior/Lot Features: Storm/Security Shutters, Rain Gutters, French Patio Doors, Outdoor Kitchen
Waterfront Details
Water Front Features: Gulf Access, Ocean Access, Bay Access, Canal Access
Community Features
Community Features: Street Lights
Driving Directions
From Interstate 75, take Exit 164 toward US-17 South / Duncan Road heading toward Punta Gorda. Continue on US-17 for about 2 miles, then turn right onto Marion Avenue, following the signs for Downtown / Punta Gorda Isles. Stay on Marion Avenue for several miles as it winds through the heart of Punta Gorda. Turn left onto Bal Harbor Boulevard, and continue straight for about 1.5 miles. Then turn right onto Deborah Drive, followed by a quick left onto Charlotte Amalie Court. The home at 2144 Charlotte Amalie Court will be located near the end of the quiet cul-de-sac, nestled within the beautiful Punta Gorda Isles waterfront community.
Financial Considerations
Terms: Cash,Conventional,FHA,VA Loan
Tax/Property ID: 412223201003
Tax Amount: 14501
Tax Year: 2025
A broker reciprocity listing courtesy: GRANT TEAM REAL ESTATE, LLC
Based on information provided by Stellar MLS as distributed by the MLS GRID. Information from the Internet Data Exchange is provided exclusively for consumers’ personal, non-commercial use, and such information may not be used for any purpose other than to identify prospective properties consumers may be interested in purchasing. This data is deemed reliable but is not guaranteed to be accurate by Edina Realty, Inc., or by the MLS. Edina Realty, Inc., is not a multiple listing service (MLS), nor does it offer MLS access.
Copyright 2025 Stellar MLS as distributed by the MLS GRID. All Rights Reserved.
Payment Calculator
Interest rate and annual percentage rate (APR) are based on current market conditions, are for informational purposes only, are subject to change without notice and may be subject to pricing add-ons related to property type, loan amount, loan-to-value, credit score and other variables. Estimated closing costs used in the APR calculation are assumed to be paid by the borrower at closing. If the closing costs are financed, the loan, APR and payment amounts will be higher. If the down payment is less than 20%, mortgage insurance may be required and could increase the monthly payment and APR. Contact us for details. Additional loan programs may be available. Accuracy is not guaranteed, and all products may not be available in all borrower's geographical areas and are based on their individual situation. This is not a credit decision or a commitment to lend.
Sales History & Tax Summary for 2144 Charlotte Amalie Court
Sales History
| Date | Price | Change |
|---|---|---|
| Currently not available. | ||
Tax Summary
| Tax Year | Estimated Market Value | Total Tax |
|---|---|---|
| Currently not available. | ||
Data powered by ATTOM Data Solutions. Copyright© 2025. Information deemed reliable but not guaranteed.
Schools
Schools nearby 2144 Charlotte Amalie Court
| Schools in attendance boundaries | Grades | Distance | Rating |
|---|---|---|---|
| Loading... | |||
| Schools nearby | Grades | Distance | Rating |
|---|---|---|---|
| Loading... | |||
Data powered by ATTOM Data Solutions. Copyright© 2025. Information deemed reliable but not guaranteed.
The schools shown represent both the assigned schools and schools by distance based on local school and district attendance boundaries. Attendance boundaries change based on various factors and proximity does not guarantee enrollment eligibility. Please consult your real estate agent and/or the school district to confirm the schools this property is zoned to attend. Information is deemed reliable but not guaranteed.
SchoolDigger ® Rating
The SchoolDigger rating system is a 1-5 scale with 5 as the highest rating. SchoolDigger ranks schools based on test scores supplied by each state's Department of Education. They calculate an average standard score by normalizing and averaging each school's test scores across all tests and grades.
Coming soon properties will soon be on the market, but are not yet available for showings.