$259,000
21523 Queen Anne Court Leesburg, FL 34748
For Sale MLS# O6365043
3 beds 2 baths 1,671 sq ft Single Family
Details for 21523 Queen Anne Court
MLS# O6365043
Description for 21523 Queen Anne Court, Leesburg, FL, 34748
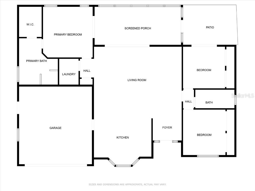
Welcome home to this 3-bed, 2-bath split floorplan property! The 1,671 square foot home is in the highly sought out guard gated 55+ community of Royal Highlands. Once you step through the front door, you are greeted with an open concept floor plan. The great room opens right into the kitchen featuring granite countertops. Opposite the kitchen is a large screened in lanai perfect for entertaining. The master bedroom features a walk-in closet, dual sink vanity, garden tub and walk in shower. Additionally, a new roof was installed in June 2019. Royal Highlands offers an amazing array of amenities, including a restaurant, library, heated indoor pool, gym, outdoor pool, golf course and community center. The community of Royal Highlands is easily accessible from Hwy 27 and the Florida Turnpike making it convenient to get to where you need to go. Don’t miss out on this opportunity. Schedule your showing today.
Listing Information
Property Type: Residential, Single Family Residence
Status: Active
Bedrooms: 3
Bathrooms: 2
Lot Size: 0.23 Acres
Square Feet: 1,671 sq ft
Year Built: 1997
Garage: Yes
Stories: 1 Story
Construction: Vinyl Siding,Wood Frame
Subdivision: Royal Highlands
Foundation: Slab
County: Lake
Room Information
Main Floor
Living Room: 16x23
Kitchen: 14x16
Bedroom 3: 11x11
Bedroom 2: 12x11
Primary Bedroom: 14x13
Bathrooms
Full Baths: 2
Additonal Room Information
Laundry: Laundry Room
Interior Features
Appliances: Water Softener, Dishwasher, Disposal, Dryer, Microwave, Range, Refrigerator, Washer
Flooring: Carpet,Ceramic Tile
Additional Interior Features: Ceiling Fan(s), High Ceilings, Open Floorplan, Kitchen/Family Room Combo
Utilities
Water: Public
Sewer: Public Sewer
Other Utilities: Cable Available,Cable Connected,Electricity Connected,Natural Gas Connected,High Speed Internet Available,Sewer Connected,Water Connected
Cooling: Central Air, Ceiling Fan(s)
Heating: Heat Pump
Exterior / Lot Features
Attached Garage: Attached Garage
Garage Spaces: 2
Roof: Shingle
Additional Exterior/Lot Features: Sprinkler/Irrigation
Community Features
Homeowners Association: Yes
HOA Dues: $212 / Monthly
Driving Directions
US-27 N, Turn left onto Monarch Blvd, Turn left onto King Richards Way, Turn right onto Queen Victoria Dr, Turn right onto Queen Anne Ct, Destination will be on the left
Financial Considerations
Terms: Cash,Conventional,FHA,VA Loan
Tax/Property ID: 13-21-24-1800-000-07100
Tax Amount: 4030.39
Tax Year: 2025
A broker reciprocity listing courtesy: AVANTI WAY REALTY LLC
Based on information provided by Stellar MLS as distributed by the MLS GRID. Information from the Internet Data Exchange is provided exclusively for consumers’ personal, non-commercial use, and such information may not be used for any purpose other than to identify prospective properties consumers may be interested in purchasing. This data is deemed reliable but is not guaranteed to be accurate by Edina Realty, Inc., or by the MLS. Edina Realty, Inc., is not a multiple listing service (MLS), nor does it offer MLS access.
Copyright 2025 Stellar MLS as distributed by the MLS GRID. All Rights Reserved.
Payment Calculator
Interest rate and annual percentage rate (APR) are based on current market conditions, are for informational purposes only, are subject to change without notice and may be subject to pricing add-ons related to property type, loan amount, loan-to-value, credit score and other variables. Estimated closing costs used in the APR calculation are assumed to be paid by the borrower at closing. If the closing costs are financed, the loan, APR and payment amounts will be higher. If the down payment is less than 20%, mortgage insurance may be required and could increase the monthly payment and APR. Contact us for details. Additional loan programs may be available. Accuracy is not guaranteed, and all products may not be available in all borrower's geographical areas and are based on their individual situation. This is not a credit decision or a commitment to lend.
Sales History & Tax Summary for 21523 Queen Anne Court
Sales History
| Date | Price | Change |
|---|---|---|
| Currently not available. | ||
Tax Summary
| Tax Year | Estimated Market Value | Total Tax |
|---|---|---|
| Currently not available. | ||
Data powered by ATTOM Data Solutions. Copyright© 2025. Information deemed reliable but not guaranteed.
Schools
Schools nearby 21523 Queen Anne Court
| Schools in attendance boundaries | Grades | Distance | Rating |
|---|---|---|---|
| Loading... | |||
| Schools nearby | Grades | Distance | Rating |
|---|---|---|---|
| Loading... | |||
Data powered by ATTOM Data Solutions. Copyright© 2025. Information deemed reliable but not guaranteed.
The schools shown represent both the assigned schools and schools by distance based on local school and district attendance boundaries. Attendance boundaries change based on various factors and proximity does not guarantee enrollment eligibility. Please consult your real estate agent and/or the school district to confirm the schools this property is zoned to attend. Information is deemed reliable but not guaranteed.
SchoolDigger ® Rating
The SchoolDigger rating system is a 1-5 scale with 5 as the highest rating. SchoolDigger ranks schools based on test scores supplied by each state's Department of Education. They calculate an average standard score by normalizing and averaging each school's test scores across all tests and grades.
Coming soon properties will soon be on the market, but are not yet available for showings.