$465,000
2157 Emerald Springs Drive Apopka, FL 32712
For Sale MLS# O6356640
4 beds 3 baths 2,296 sq ft Single Family
Details for 2157 Emerald Springs Drive
MLS# O6356640
Description for 2157 Emerald Springs Drive, Apopka, FL, 32712
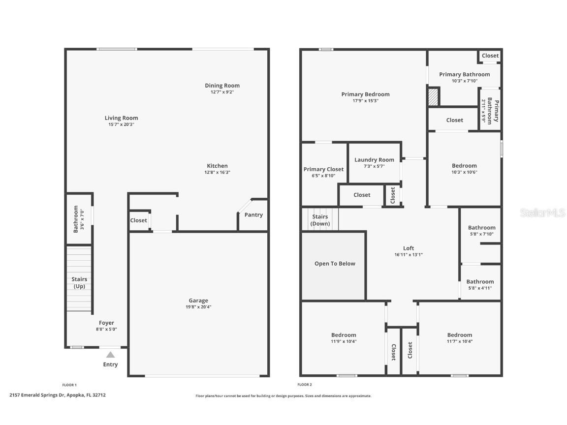
One or more photo(s) has been virtually staged. LOCATED MINUTES FROM ONE OF APOPKA’S MOST EXCITING NEW DEVELOPMENTS: WYLD OAKS. This LIKE-NEW home is also close to the 429, Kelly Park, dining, shopping, nature trails, and major future growth. This bright and inviting 4-bedroom, 2.5-bath home in the GATED community of San Sebastian Reserve offers the perfect blend of comfort, convenience, and low-maintenance living. Inside, the open layout is ideal for everyday life and entertaining. The luxury kitchen, includes a GAS cooktop and built-in oven and microwave, stainless steel appliances, pull-out drawers, stone counters, walk-in pantry, and a large island. This space flows to a spacious living and dining area and connects to the backyard perfect for cookouts and relaxing evenings. A convenient downstairs half bath keeps hosting simple. Recessed lighting, ceiling fans, and a tankless water heater add comfort and efficiency. Upstairs, a spacious LOFT offers the perfect flex space for a media room, playroom, office, or den. The LARGE PRIMARY BEDROOM (17'9" x 15'3") includes a spacious en-suite bathroom, and all secondary bedrooms are light, welcoming, and well-sized, giving everyone room to spread out. (Two bedrooms even offer pond view.) The community feels like resort living with a POOL, cabana, walking paths around a pond, gazebo and dock, dog park, and PLAYGROUND. And because the HOA maintains your lawn, you enjoy a truly LOW-MAINTENANCE lifestyle. Built in 2022 with newer systems, durable block construction, and located outside a flood zone, this home may offer homeowners more favorable insurance costs compared to older properties. With nature trails, stores, and main roads nearby, this home offers peace, convenience, and comfort. And with quick access to major highways, parks, and schools, you’re positioned near the highly anticipated Wyld Oaks project, a 215-acre development bringing new restaurants, shops, parks, entertainment, hotels, and medical services to the Kelly Park area. As this project develops, this home in San Sebastian Reserve is positioned to benefit from the added convenience and increased value of being so close to one of Apopka’s largest and most exciting new developments. https://www.zillow.com/view-imx/fc826784-1886-4f48-8450-0fea1b966bbb?wl=true&setAttribution=mls&initialViewType=pano https://www.zillow.com/view-imx/fc826784-1886-4f48-8450-0fea1b966bbb?wl=true&setAttribution=mls&initialViewType=pano
Listing Information
Property Type: Residential, Single Family Residence
Status: Active
Bedrooms: 4
Bathrooms: 3
Lot Size: 0.10 Acres
Square Feet: 2,296 sq ft
Year Built: 2022
Garage: Yes
Stories: 2 Story
Construction: Block,Stucco
Subdivision: San Sebastian Reserve
Foundation: Slab
County: Orange
Room Information
Main Floor
Living Room: 20x15
Dining Room: 9x12
Kitchen: 16x12
Upper Floor
Primary Bathroom:
Bathroom 4: 10x10
Bathroom 3: 10x11
Bathroom 2: 10x11
Loft: 13x16
Bathroom 2:
Primary Bedroom: 15x17
Bathrooms
Full Baths: 2
1/2 Baths: 1
Additonal Room Information
Laundry: Inside, Washer Hookup, Laundry Room, Electric Dryer Hookup
Interior Features
Appliances: Ice Maker, Gas Water Heater, Built-In Oven, Range Hood, Cooktop, Dishwasher, Disposal, Microwave, Refrigerator
Flooring: Carpet,Ceramic Tile
Additional Interior Features: Ceiling Fan(s), Loft, Walk-In Closet(s), High Ceilings, Living/Dining Room, Open Floorplan, Upper Level Primary, Kitchen/Family Room Combo, Solid Surface Counters
Utilities
Water: Public
Sewer: Public Sewer
Other Utilities: Cable Available,Cable Connected,Electricity Available,Electricity Connected,Natural Gas Available,Natural Gas Connected,Municipal Utilities,Underground Utilities,Water Available,Water Connected
Cooling: Central Air, Ceiling Fan(s)
Heating: Central
Exterior / Lot Features
Attached Garage: Attached Garage
Garage Spaces: 2
Roof: Shingle
Pool: Community, Association
Lot View: Trees/Woods
Additional Exterior/Lot Features: Sprinkler/Irrigation, Lighting
Community Features
Community Features: Street Lights, Gated
Security Features: Gated Community, Smoke Detector(s)
Association Amenities: Recreation Facilities, Playground, Pool, Maintenance Grounds, Park, Gated
HOA Dues Include: Maintenance Grounds, Recreation Facilities, Pool(s), Maintenance Structure
Homeowners Association: Yes
HOA Dues: $253 / Monthly
Driving Directions
From downtown Apopka, head northwest on W Orange Ave, which becomes FL-414 (W. Bronson Rd). Take the exit for McDonald Rd (CR-437) and turn right. Continue north, then turn right onto Emerald Springs Dr. Follow the road into the San Sebastian Reserve community, and 2157 Emerald Springs Dr will be on your right. Buyers coming from the 429 beltway can take the exit for Rock Springs Rd (CR-437), head east toward Apopka, and enter the gated community of San Sebastian Reserve, continuing straight onto Emerald Springs Dr until reaching the home on the left.
Financial Considerations
Tax/Property ID: 28-20-28-7826-01-100
Tax Amount: 5801.53
Tax Year: 2024
A broker reciprocity listing courtesy: COMPASS FLORIDA LLC
Based on information provided by Stellar MLS as distributed by the MLS GRID. Information from the Internet Data Exchange is provided exclusively for consumers’ personal, non-commercial use, and such information may not be used for any purpose other than to identify prospective properties consumers may be interested in purchasing. This data is deemed reliable but is not guaranteed to be accurate by Edina Realty, Inc., or by the MLS. Edina Realty, Inc., is not a multiple listing service (MLS), nor does it offer MLS access.
Copyright 2025 Stellar MLS as distributed by the MLS GRID. All Rights Reserved.
Payment Calculator
Interest rate and annual percentage rate (APR) are based on current market conditions, are for informational purposes only, are subject to change without notice and may be subject to pricing add-ons related to property type, loan amount, loan-to-value, credit score and other variables. Estimated closing costs used in the APR calculation are assumed to be paid by the borrower at closing. If the closing costs are financed, the loan, APR and payment amounts will be higher. If the down payment is less than 20%, mortgage insurance may be required and could increase the monthly payment and APR. Contact us for details. Additional loan programs may be available. Accuracy is not guaranteed, and all products may not be available in all borrower's geographical areas and are based on their individual situation. This is not a credit decision or a commitment to lend.
Sales History & Tax Summary for 2157 Emerald Springs Drive
Sales History
| Date | Price | Change |
|---|---|---|
| Currently not available. | ||
Tax Summary
| Tax Year | Estimated Market Value | Total Tax |
|---|---|---|
| Currently not available. | ||
Data powered by ATTOM Data Solutions. Copyright© 2025. Information deemed reliable but not guaranteed.
Schools
Schools nearby 2157 Emerald Springs Drive
| Schools in attendance boundaries | Grades | Distance | Rating |
|---|---|---|---|
| Loading... | |||
| Schools nearby | Grades | Distance | Rating |
|---|---|---|---|
| Loading... | |||
Data powered by ATTOM Data Solutions. Copyright© 2025. Information deemed reliable but not guaranteed.
The schools shown represent both the assigned schools and schools by distance based on local school and district attendance boundaries. Attendance boundaries change based on various factors and proximity does not guarantee enrollment eligibility. Please consult your real estate agent and/or the school district to confirm the schools this property is zoned to attend. Information is deemed reliable but not guaranteed.
SchoolDigger ® Rating
The SchoolDigger rating system is a 1-5 scale with 5 as the highest rating. SchoolDigger ranks schools based on test scores supplied by each state's Department of Education. They calculate an average standard score by normalizing and averaging each school's test scores across all tests and grades.
Coming soon properties will soon be on the market, but are not yet available for showings.