216 Spoonbill Lane Poinciana, FL 34759
Pending MLS# C7515544
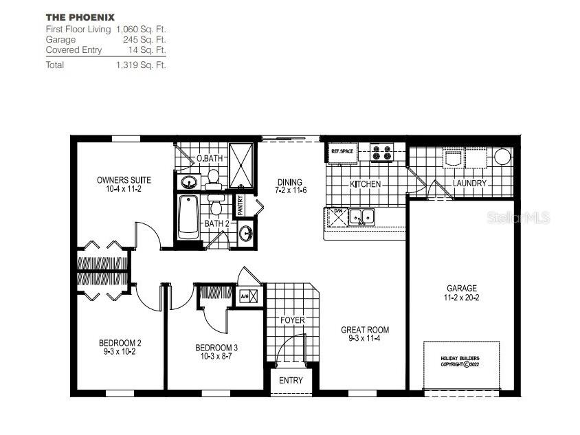
3 beds 2 baths 1,060 sq ft Single Family
Details for 216 Spoonbill Lane
MLS# C7515544
Description for 216 Spoonbill Lane, Poinciana, FL, 34759
BRAND NEW! READY NOW!! 10 Year Structural Warranty, 1 year Builders Warranty & all Manufacturers warranties are all included.. Welcome to the world of homeownership with the Phoenix floorplan from Holiday Builders’ Inspire Collection. Step into a cozy and inviting space that instantly feels like home. This thoughtfully designed three-bedroom, two-bathroom residence is crafted for comfort and style. As you enter, you’ll discover the heart of the home—the kitchen seamlessly blending with the combined dining and great room area. Say goodbye to formal living and dining rooms and embrace a contemporary layout that effortlessly accommodates entertaining friends and family.
Listing Information
Property Type: Residential, Single Family Residence
Status: Pending
Bedrooms: 3
Bathrooms: 2
Lot Size: 0.16 Acres
Square Feet: 1,060 sq ft
Year Built: 2025
Garage: Yes
Stories: 1 Story
Construction: Block,Stucco
Construction Display: New Construction
Subdivision: Poinciana Neighborhood 6 South Village 3
Builder: Holiday Builders
Foundation: Slab
County: Polk
Construction Status: New Construction
Room Information
Main Floor
Dining Room: 11x7
Bedroom 3: 8x10
Bedroom 2: 10x9
Great Room: 11x9
Kitchen: 8.06x11.04
Primary Bedroom: 11x10
Bathrooms
Full Baths: 2
Additonal Room Information
Laundry: Inside
Interior Features
Appliances: Dishwasher, Range, Electric Water Heater
Flooring: Carpet,Vinyl
Additional Interior Features: Walk-In Closet(s), Main Level Primary, Open Floorplan
Utilities
Water: Public
Sewer: Public Sewer
Other Utilities: Electricity Available,Electricity Connected,Municipal Utilities,Underground Utilities,Water Available,Water Connected
Cooling: Central Air
Heating: Central, Electric
Exterior / Lot Features
Attached Garage: Attached Garage
Garage Spaces: 1
Roof: Shingle
Community Features
Homeowners Association: Yes
HOA Dues: $1,020 / Annually
Driving Directions
Driving Directions: From Kissimmee: take John Young Parkway South to Pleasant Hill Road, Left/South on Pleasant Hill Rd, Pleasant Hill Rd becomes Cypress Parkway, Left on Marigold Ave, right on Sheldrake, right Spoonbill Lane
Financial Considerations
Terms: Cash,Conventional,FHA,VA Loan
Tax/Property ID: 28-27-35-934560-281190
Tax Amount: 245
Tax Year: 2024
A broker reciprocity listing courtesy: HOLIDAY BUILDERS GULF COAST
Based on information provided by Stellar MLS as distributed by the MLS GRID. Information from the Internet Data Exchange is provided exclusively for consumers’ personal, non-commercial use, and such information may not be used for any purpose other than to identify prospective properties consumers may be interested in purchasing. This data is deemed reliable but is not guaranteed to be accurate by Edina Realty, Inc., or by the MLS. Edina Realty, Inc., is not a multiple listing service (MLS), nor does it offer MLS access.
Copyright 2026 Stellar MLS as distributed by the MLS GRID. All Rights Reserved.
Sales History & Tax Summary for 216 Spoonbill Lane
Sales History
| Date | Price | |
|---|---|---|
| Currently not available. | ||
Tax Summary
| Tax Year | Estimated Market Value | Total Tax |
|---|---|---|
| Currently not available. | ||
Data powered by ATTOM Data Solutions. Copyright© 2026. Information deemed reliable but not guaranteed.
Schools
Schools nearby 216 Spoonbill Lane
| Schools in attendance boundaries | Grades | Distance | Rating |
|---|---|---|---|
| Loading... | |||
| Schools nearby | Grades | Distance | Rating |
|---|---|---|---|
| Loading... | |||
Data powered by ATTOM Data Solutions. Copyright© 2026. Information deemed reliable but not guaranteed.
The schools shown represent both the assigned schools and schools by distance based on local school and district attendance boundaries. Attendance boundaries change based on various factors and proximity does not guarantee enrollment eligibility. Please consult your real estate agent and/or the school district to confirm the schools this property is zoned to attend. Information is deemed reliable but not guaranteed.
SchoolDigger ® Rating
The SchoolDigger rating system is a 1-5 scale with 5 as the highest rating. SchoolDigger ranks schools based on test scores supplied by each state's Department of Education. They calculate an average standard score by normalizing and averaging each school's test scores across all tests and grades.
Coming soon properties will soon be on the market, but are not yet available for showings.