$159,900
217 N Central Avenue Truman, MN 56088
For Sale MLS# 7042894
3 beds 2 baths 1,027 sq ft Single Family
Details for 217 N Central Avenue
MLS# 7042894
Description for 217 N Central Avenue, Truman, MN, 56088
This 3-bedroom, 2-bath home blends character with a long list of recent updates. The main floor offers two bedrooms, a full bath, and an open living–dining space that flows into the refreshed kitchen. Upstairs you’ll find a large third bedroom with a distinctive window feature.Notable improvements include central air, new flooring throughout much of the home, a partial roof replacement, updated plumbing, all-new lighting and ceiling work, stainless-steel appliances, and a kitchen opened up for better flow. The property also includes a two-stall garage plus a welcoming front foyer entry and a good-sized yard.Move-in-ready updates plus classic curb appeal make this property easy to picture as your next home.
Listing Information
Property Type: Residential, Single Family
Status: Active
Bedrooms: 3
Bathrooms: 2
Lot Size: 0.26 Acres
Square Feet: 1,027 sq ft
Year Built: 1925
Foundation: 645 sq ft
Garage: Yes
Stories: 1.5 Stories
Subdivision: Auditors
County: Martin
Days On Market: 8
Construction Status: Previously Owned
School Information
District: 458 - Truman
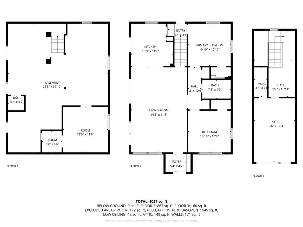
Room Information
Main Floor
Bedroom 1: 10'10 x 10'10
Bedroom 2: 10'10 x 10'08
Kitchen: 10'9 x 11'2
Living Room: 14'3 x 21'8
Upper Floor
Bedroom 3: 10'6 x 16'3
Bathrooms
Full Baths: 1
1/4 Baths: 1
Additonal Room Information
Bath Description: Shower Only,Basement,Main Floor Full Bath
Interior Features
Square Footage above: 1,027 sq ft
Appliances: Range, Refrigerator
Basement: Full, Sump Pump
Additional Interior Features: Ceiling Fan(s), Kitchen Window
Utilities
Water: City Water/Connected
Sewer: City Sewer/Connected
Cooling: Central
Heating: Forced Air, Natural Gas
Exterior / Lot Features
Garage Spaces: 2
Parking Description: Detached Garage, Garage Dimensions - 45 x 24, Garage Sq Ft - 824.0
Exterior: Stucco
Roof: Asphalt Shingles
Lot Dimensions: 150 x 75
Zoning: Residential-Single Family
Additional Exterior/Lot Features: Deck
Driving Directions
Hwy 15, turn onto E Ciro St, right on N Central Ave. House will be on the left
Financial Considerations
Other Annual Tax: $69
Tax/Property ID: 411000315
Tax Amount: 1501
Tax Year: 2025
HomeStead Description: Non-Homesteaded
A broker reciprocity listing courtesy: True Real Estate
The data relating to real estate for sale on this web site comes in part from the Broker Reciprocity℠ Program of the Regional Multiple Listing Service of Minnesota, Inc. Real estate listings held by brokerage firms other than Edina Realty, Inc. are marked with the Broker Reciprocity℠ logo or the Broker Reciprocity℠ thumbnail and detailed information about them includes the name of the listing brokers. Edina Realty, Inc. is not a Multiple Listing Service (MLS), nor does it offer MLS access. This website is a service of Edina Realty, Inc., a broker Participant of the Regional Multiple Listing Service of Minnesota, Inc. IDX information is provided exclusively for consumers personal, non-commercial use and may not be used for any purpose other than to identify prospective properties consumers may be interested in purchasing. Open House information is subject to change without notice. Information deemed reliable but not guaranteed.
Copyright 2026 Regional Multiple Listing Service of Minnesota, Inc. All Rights Reserved.
Payment Calculator
Interest rate and annual percentage rate (APR) are based on current market conditions, are for informational purposes only, are subject to change without notice and may be subject to pricing add-ons related to property type, loan amount, loan-to-value, credit score and other variables. Estimated closing costs used in the APR calculation are assumed to be paid by the borrower at closing. If the closing costs are financed, the loan, APR and payment amounts will be higher. If the down payment is less than 20%, mortgage insurance may be required and could increase the monthly payment and APR. Contact us for details. Additional loan programs may be available. Accuracy is not guaranteed, and all products may not be available in all borrower's geographical areas and are based on their individual situation. This is not a credit decision or a commitment to lend.
Sales History & Tax Summary for 217 N Central Avenue
Sales History
| Date | Price | |
|---|---|---|
| Currently not available. | ||
Tax Summary
| Tax Year | Estimated Market Value | Total Tax |
|---|---|---|
| Currently not available. | ||
Data powered by ATTOM Data Solutions. Copyright© 2026. Information deemed reliable but not guaranteed.
Schools
Schools nearby 217 N Central Avenue
| Schools in attendance boundaries | Grades | Distance | Rating |
|---|---|---|---|
| Loading... | |||
| Schools nearby | Grades | Distance | Rating |
|---|---|---|---|
| Loading... | |||
Data powered by ATTOM Data Solutions. Copyright© 2026. Information deemed reliable but not guaranteed.
The schools shown represent both the assigned schools and schools by distance based on local school and district attendance boundaries. Attendance boundaries change based on various factors and proximity does not guarantee enrollment eligibility. Please consult your real estate agent and/or the school district to confirm the schools this property is zoned to attend. Information is deemed reliable but not guaranteed.
SchoolDigger ® Rating
The SchoolDigger rating system is a 1-5 scale with 5 as the highest rating. SchoolDigger ranks schools based on test scores supplied by each state's Department of Education. They calculate an average standard score by normalizing and averaging each school's test scores across all tests and grades.
Coming soon properties will soon be on the market, but are not yet available for showings.