$265,000
2183 Fox Chase Boulevard Palm Harbor, FL 34683
For Sale MLS# TB8482459
2 beds 3 baths 1,161 sq ft Townhouse/Twinhome
Details for 2183 Fox Chase Boulevard
MLS# TB8482459
Description for 2183 Fox Chase Boulevard, Palm Harbor, FL, 34683
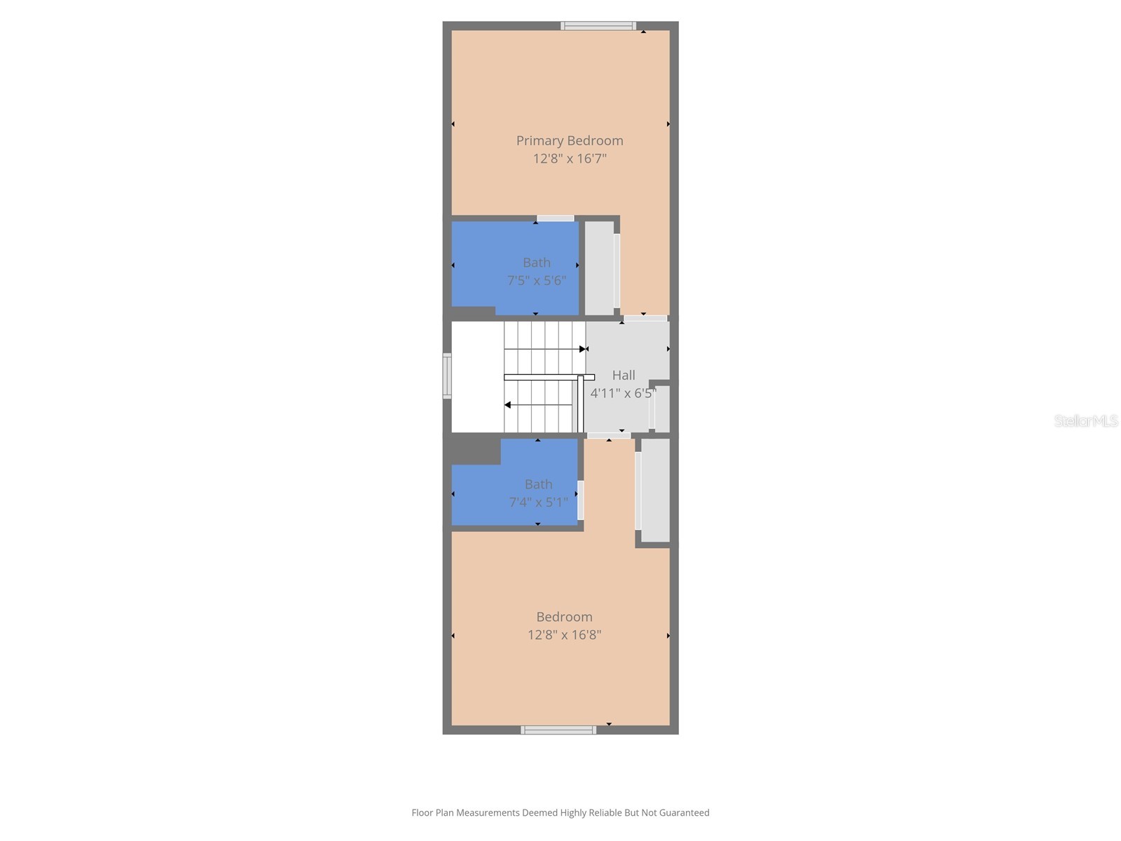
Welcome to this beautifully updated two-bedroom, two-and-a-half-bathroom townhome in the Fox Chase community in the heart of Palm Harbor. With a 2019 roof (maintained by the HOA) and tasteful upgrades throughout, this home offers low-maintenance living in a highly desirable location. Step inside to find wood-look laminate flooring and a spacious living room featuring a ceiling fan and comfortable layout for everyday living or entertaining. The updated kitchen features granite countertops, stainless steel appliances, a breakfast bar for casual dining, and ample cabinet space. A convenient half bath is located downstairs, along with an included washer and dryer for added ease. Sliding doors lead to a screened-in back patio overlooking peaceful trees - perfect for enjoying your morning coffee or relaxing in the evenings. Upstairs, both bedrooms offer privacy and comfort. The primary suite features a ceiling fan and a private en-suite bathroom with an updated vanity, mirror, and light fixture. The second bedroom is also generously sized with a ceiling fan and has access to a full bathroom with a walk-in shower and updated vanity and mirror. Additional highlights include an assigned parking space and access to a community pool. Conveniently located near zoned schools, numerous dining and shopping options, golf courses, and parks, this townhome combines comfort, updates, and location for easy Florida living. Schedule your tour today!
Listing Information
Property Type: Residential, Townhouse
Status: Active
Bedrooms: 2
Bathrooms: 3
Lot Size: 0.02 Acres
Square Feet: 1,161 sq ft
Year Built: 1989
Stories: 2 Story
Construction: Other
Subdivision: Fox Chase Twnhms
Foundation: Slab
County: Pinellas
School Information
Elementary: Sutherland Elementary-Pn
Middle: Palm Harbor Middle-Pn
High: Palm Harbor Univ High-Pn
Room Information
Bathrooms
Full Baths: 2
1/2 Baths: 1
Additonal Room Information
Laundry: Laundry Room, Outside
Interior Features
Appliances: Dishwasher, Microwave, Range, Refrigerator
Flooring: Laminate
Additional Interior Features: Ceiling Fan(s), Living/Dining Room, Open Floorplan, Stone Counters
Utilities
Water: Public
Sewer: Public Sewer
Other Utilities: Cable Connected,Electricity Connected,Water Connected
Cooling: Central Air, Ceiling Fan(s)
Heating: Central
Exterior / Lot Features
Parking Description: Off Street
Roof: Shingle
Pool: Community
Additional Exterior/Lot Features: Storage, Tennis Court(s)
Community Features
Community Features: Pool
HOA Dues Include: Trash, Maintenance Grounds
Homeowners Association: Yes
HOA Dues: $258 / Monthly
Driving Directions
Driving North On Belcher Rd, Turn Left On Bee Pond R, Turn Left On Fox Hunt Dr, Turn Right On Fox Chase Blvd, Unit On The Right.
Financial Considerations
Terms: Cash,Conventional,FHA,VA Loan
Tax/Property ID: 31-27-16-29289-002-0090
Tax Amount: 4572
Tax Year: 2025
A broker reciprocity listing courtesy: EXP REALTY LLC
Based on information provided by Stellar MLS as distributed by the MLS GRID. Information from the Internet Data Exchange is provided exclusively for consumers’ personal, non-commercial use, and such information may not be used for any purpose other than to identify prospective properties consumers may be interested in purchasing. This data is deemed reliable but is not guaranteed to be accurate by Edina Realty, Inc., or by the MLS. Edina Realty, Inc., is not a multiple listing service (MLS), nor does it offer MLS access.
Copyright 2026 Stellar MLS as distributed by the MLS GRID. All Rights Reserved.
Payment Calculator
Interest rate and annual percentage rate (APR) are based on current market conditions, are for informational purposes only, are subject to change without notice and may be subject to pricing add-ons related to property type, loan amount, loan-to-value, credit score and other variables. Estimated closing costs used in the APR calculation are assumed to be paid by the borrower at closing. If the closing costs are financed, the loan, APR and payment amounts will be higher. If the down payment is less than 20%, mortgage insurance may be required and could increase the monthly payment and APR. Contact us for details. Additional loan programs may be available. Accuracy is not guaranteed, and all products may not be available in all borrower's geographical areas and are based on their individual situation. This is not a credit decision or a commitment to lend.
Sales History & Tax Summary for 2183 Fox Chase Boulevard
Sales History
| Date | Price | |
|---|---|---|
| Currently not available. | ||
Tax Summary
| Tax Year | Estimated Market Value | Total Tax |
|---|---|---|
| Currently not available. | ||
Data powered by ATTOM Data Solutions. Copyright© 2026. Information deemed reliable but not guaranteed.
Schools
Schools nearby 2183 Fox Chase Boulevard
| Schools in attendance boundaries | Grades | Distance | Rating |
|---|---|---|---|
| Loading... | |||
| Schools nearby | Grades | Distance | Rating |
|---|---|---|---|
| Loading... | |||
Data powered by ATTOM Data Solutions. Copyright© 2026. Information deemed reliable but not guaranteed.
The schools shown represent both the assigned schools and schools by distance based on local school and district attendance boundaries. Attendance boundaries change based on various factors and proximity does not guarantee enrollment eligibility. Please consult your real estate agent and/or the school district to confirm the schools this property is zoned to attend. Information is deemed reliable but not guaranteed.
SchoolDigger ® Rating
The SchoolDigger rating system is a 1-5 scale with 5 as the highest rating. SchoolDigger ranks schools based on test scores supplied by each state's Department of Education. They calculate an average standard score by normalizing and averaging each school's test scores across all tests and grades.
Coming soon properties will soon be on the market, but are not yet available for showings.