2187 Main Street Sarasota, FL 34237
For Sale MLS# C7522020
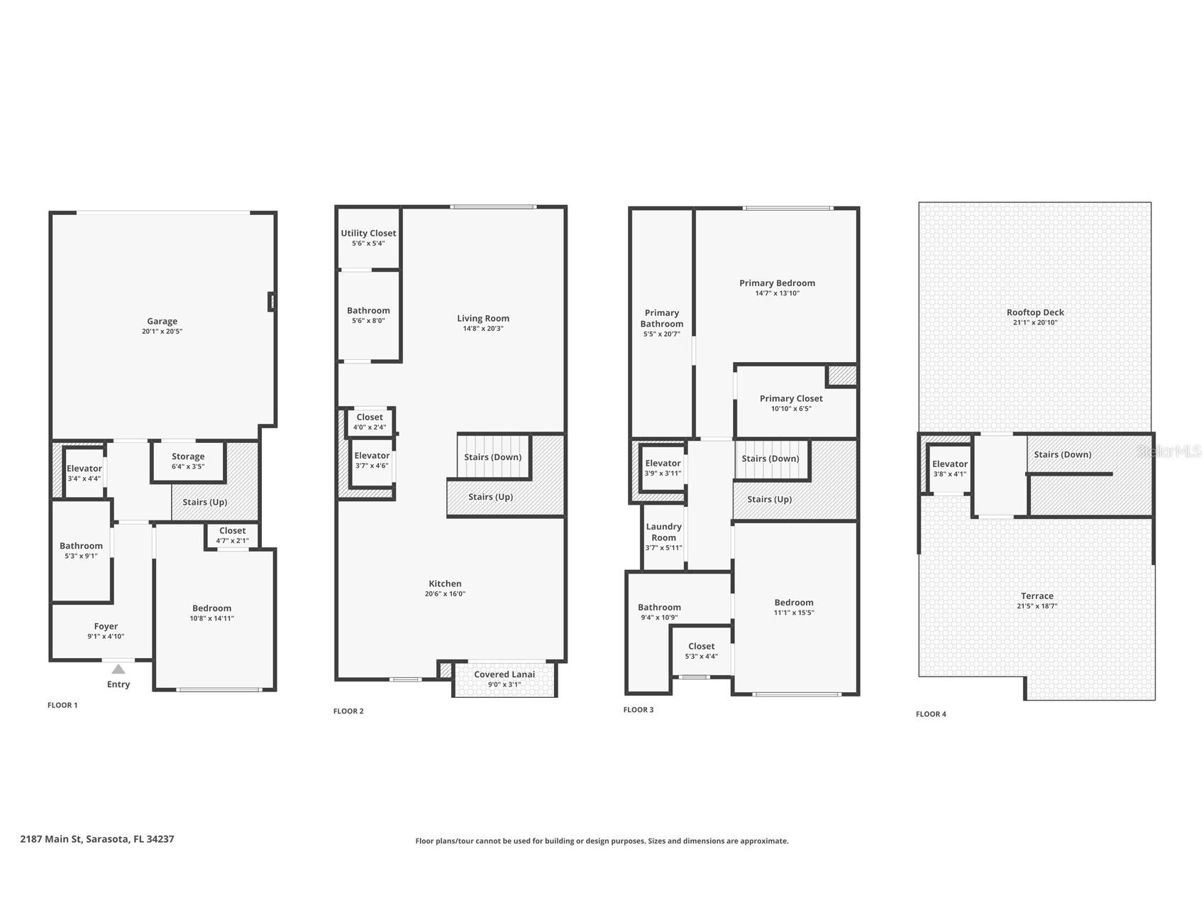
3 beds 4 baths 2,350 sq ft Townhouse/Twinhome
OPEN HOUSE: Friday, 5/1 01:00 PM - 04:00 PM
Show more open houses';
OPEN HOUSE: Saturday, 5/9 01:00 PM - 03:00 PM
Details for 2187 Main Street
MLS# C7522020
Description for 2187 Main Street, Sarasota, FL, 34237
Luxury Downtown Sarasota Townhome - 2023 Build - Elevator - Private Lockout Experience elevated downtown living in this meticulously maintained 2,350 sq ft, four-story townhome built in 2023. Located in the heart of Sarasota and just steps to cafés, restaurants, boutiques, nightlife, and the waterfront, the location truly cannot be beat. Designed with modern sophistication, the home features porcelain flooring throughout, stunning wood staircases with sleek glass railings, and high-end finishes at every turn. The chef’s kitchen is ideal for entertaining with Frigidaire Gallery appliances, an Electrolux vented hood, gas cooktop, convection double oven, soft-close cabinetry, and a spacious open layout. A rare and versatile feature is the first-floor bedroom with full bath and private lockout — perfect for guests, a home office, multi-generational living, or potential rental income. With four levels of living space and a private elevator servicing each floor, the layout offers flexibility few downtown properties can match. Enjoy Florida living year-round with an outdoor kitchen plumbed for gas and equipped with a sink. Additional highlights include a two-car attached garage and thoughtful design throughout. Whether you’re seeking a polished primary residence, a luxurious downtown second home, or an investment opportunity in one of Sarasota’s most desirable locations, this property delivers unmatched versatility and value.
Listing Information
Property Type: Residential, Townhouse
Status: Active
Bedrooms: 3
Bathrooms: 4
Lot Size: 0.03 Acres
Square Feet: 2,350 sq ft
Year Built: 2023
Garage: Yes
Stories: 4 Story
Construction: Block,Stucco
Property Attached: Yes
Construction Display: New Construction
Subdivision: School Ave Twnhms
Foundation: Concrete Perimeter,Slab
County: Sarasota
Construction Status: New Construction
School Information
Elementary: Alta Vista Elementary
Middle: Booker Middle
High: Booker High
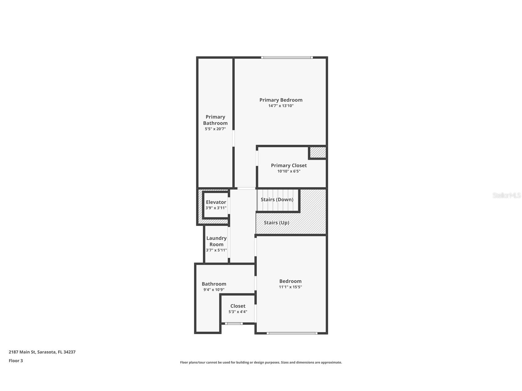
Room Information
Main Floor
Foyer: 9x5
Bathroom 4: 9x5
Bedroom 3: 11x15
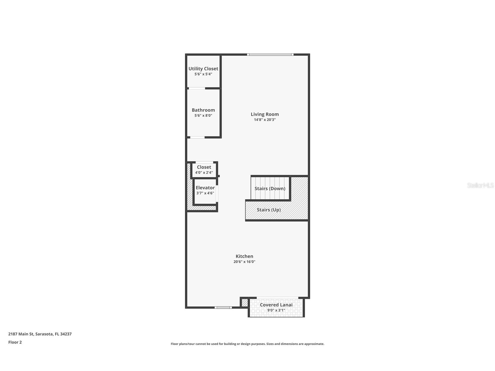
Upper Floor
Porch: 21x21
Kitchen: 16x20
Dining Room: 10.5x12
Living Room: 19x14
Bathroom 3: 11x9
Bathroom 2: 9x5
Porch: 18x22
Bedroom 2: 12x10
Primary Bedroom: 14x13
Primary Bathroom: 21x6
Bathrooms
Full Baths: 3
1/2 Baths: 1
Additonal Room Information
Laundry: Inside, Laundry Room
Interior Features
Appliances: Ice Maker, Built-In Oven, Exhaust Fan, Tankless Water Heater, Refrigerator, Washer, Range Hood, Cooktop, Dishwasher, Disposal, Dryer, Freezer, Microwave
Flooring: Carpet,Porcelain Tile,Tile,Wood
Doors/Windows: Low-Emissivity Windows, Window Treatments, Aluminum Frames, ENERGY STAR Qualified Windows
Fireplaces: Electric
Additional Interior Features: Split Bedrooms, Eat-In Kitchen, Elevator, Upper Level Primary, Dry Bar, High Ceilings, Built-in Features, Walk-In Closet(s), Window Treatments, Open Floorplan, Solid Surface Counters, Stone Counters, Wood Cabinets
Utilities
Water: Public
Sewer: Public Sewer
Other Utilities: Cable Connected,Electricity Connected,Natural Gas Connected,Sewer Connected,Underground Utilities,Water Connected
Cooling: Central Air
Heating: Electric, Central
Exterior / Lot Features
Attached Garage: Attached Garage
Garage Spaces: 2
Parking Description: Garage Door Opener, Covered, Garage, Garage Faces Rear
Roof: Membrane
Lot View: City
Additional Exterior/Lot Features: Balcony, Storage, Lighting, Balcony, Patio, Porch, Rear Porch, Near Public Transit, City Lot
Community Features
Community Features: Street Lights, Sidewalks
Security Features: Fire Alarm, Fire Sprinkler System, Fire Hydrant(s), Smoke Detector(s)
Association Amenities: Other
HOA Dues Include: Maintenance Grounds, Association Management, Trash, Sewer
Homeowners Association: Yes
HOA Dues: $1,338 / Quarterly
Driving Directions
I-75 N left on Fruitville exit, Left on School Ave, at the roundabout turn Right on Main st. turn Right on Audubon (free parking) entrance on Main st.
Financial Considerations
Terms: Cash,Conventional,FHA,USDA Loan,VA Loan
Tax/Property ID: 2029040137
Tax Amount: 14176.42
Tax Year: 2025
A broker reciprocity listing courtesy: JOHN R WOOD PROPERTIES
Based on information provided by Stellar MLS as distributed by the MLS GRID. Information from the Internet Data Exchange is provided exclusively for consumers’ personal, non-commercial use, and such information may not be used for any purpose other than to identify prospective properties consumers may be interested in purchasing. This data is deemed reliable but is not guaranteed to be accurate by Edina Realty, Inc., or by the MLS. Edina Realty, Inc., is not a multiple listing service (MLS), nor does it offer MLS access.
Copyright 2026 Stellar MLS as distributed by the MLS GRID. All Rights Reserved.
Payment Calculator
Interest rate and annual percentage rate (APR) are based on current market conditions, are for informational purposes only, are subject to change without notice and may be subject to pricing add-ons related to property type, loan amount, loan-to-value, credit score and other variables. Estimated closing costs used in the APR calculation are assumed to be paid by the borrower at closing. If the closing costs are financed, the loan, APR and payment amounts will be higher. If the down payment is less than 20%, mortgage insurance may be required and could increase the monthly payment and APR. Contact us for details. Additional loan programs may be available. Accuracy is not guaranteed, and all products may not be available in all borrower's geographical areas and are based on their individual situation. This is not a credit decision or a commitment to lend.
Sales History & Tax Summary for 2187 Main Street
Sales History
| Date | Price | |
|---|---|---|
| Currently not available. | ||
Tax Summary
| Tax Year | Estimated Market Value | Total Tax |
|---|---|---|
| Currently not available. | ||
Data powered by ATTOM Data Solutions. Copyright© 2026. Information deemed reliable but not guaranteed.
Schools
Schools nearby 2187 Main Street
| Schools in attendance boundaries | Grades | Distance | Rating |
|---|---|---|---|
| Loading... | |||
| Schools nearby | Grades | Distance | Rating |
|---|---|---|---|
| Loading... | |||
Data powered by ATTOM Data Solutions. Copyright© 2026. Information deemed reliable but not guaranteed.
The schools shown represent both the assigned schools and schools by distance based on local school and district attendance boundaries. Attendance boundaries change based on various factors and proximity does not guarantee enrollment eligibility. Please consult your real estate agent and/or the school district to confirm the schools this property is zoned to attend. Information is deemed reliable but not guaranteed.
SchoolDigger ® Rating
The SchoolDigger rating system is a 1-5 scale with 5 as the highest rating. SchoolDigger ranks schools based on test scores supplied by each state's Department of Education. They calculate an average standard score by normalizing and averaging each school's test scores across all tests and grades.
Coming soon properties will soon be on the market, but are not yet available for showings.