22 Washington Street Brainerd, MN 56401
For Sale MLS# 6706091
Other
Details for 22 Washington Street
MLS# 6706091
Description for 22 Washington Street, Brainerd, MN, 56401
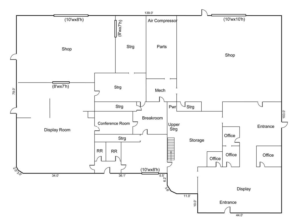
Exceptional opportunity to secure a highly visible, high-traffic corner lot along the busy Washington Street corridor in Brainerd. This premier commercial site offers outstanding exposure and accessibility—an ideal location for redevelopment or repositioning. The property currently features a former car dealership building with showroom space, offices, multiple shops with drive-in doors, and ample storage, providing immediate utility or a strong foundation for future development. Don’t miss your chance to capitalize on one of Brainerd’s most strategic commercial locations.
Listing Information
Property Type: Commercial
Status: Active
Lot Size: 0.68 Acres
Square Feet: 12,788 sq ft
Year Built: 1936
Foundation: 12,788 sq ft
Garage: Yes
Stories: 1 Story
Subdivision: Auditors Of Unplatted Portions Sec
Number Of Units Total: 1
Current Use: Commercial,Other,Retail,Warehouse
County: Crow Wing
Days On Market: 245
Construction Status: Previously Owned
School Information
District: 181 - Brainerd
Interior Features
Accessibility: Other
Utilities
Water: City Water/Connected
Sewer: City Sewer/Connected
Other Utilities: Electric Common,Heating Common,Hot Water Common
Cooling: Central
Heating: Forced Air, Natural Gas, Boiler
Exterior / Lot Features
Garage Spaces: 3
Open Parking: 35
Parking Description: Uncovered/Open, Paved Lot
Exterior: Block, Stucco
Roof: Flat, Rubber
Lot Dimensions: 206x145
Zoning: Business/Commercial
Topography: Gently Rolling
Additional Exterior/Lot Features: Overhead Doors, Corner Lot, Land Inclusions - Building,Land, Road Frontage - Sidewalks, State, City, Curbs, Street Lights, Storm Sewer, Paved Streets
Driving Directions
From Hwy 210 (Washington Street) / Hwy 371 (S 6th Street) intersection in Brainerd - West on Washington Street 5 blocks - Property is the SW corner of Washington Street and N 1st Street
Financial Considerations
Tax/Property ID: 41251117
Tax Amount: 6528
Tax Year: 2025
HomeStead Description: Non-Homesteaded
A broker reciprocity listing courtesy: Close-Converse Commercial Prop
The data relating to real estate for sale on this web site comes in part from the Broker Reciprocity℠ Program of the Regional Multiple Listing Service of Minnesota, Inc. Real estate listings held by brokerage firms other than Edina Realty, Inc. are marked with the Broker Reciprocity℠ logo or the Broker Reciprocity℠ thumbnail and detailed information about them includes the name of the listing brokers. Edina Realty, Inc. is not a Multiple Listing Service (MLS), nor does it offer MLS access. This website is a service of Edina Realty, Inc., a broker Participant of the Regional Multiple Listing Service of Minnesota, Inc. IDX information is provided exclusively for consumers personal, non-commercial use and may not be used for any purpose other than to identify prospective properties consumers may be interested in purchasing. Open House information is subject to change without notice. Information deemed reliable but not guaranteed.
Copyright 2025 Regional Multiple Listing Service of Minnesota, Inc. All Rights Reserved.
Payment Calculator
Interest rate and annual percentage rate (APR) are based on current market conditions, are for informational purposes only, are subject to change without notice and may be subject to pricing add-ons related to property type, loan amount, loan-to-value, credit score and other variables. Estimated closing costs used in the APR calculation are assumed to be paid by the borrower at closing. If the closing costs are financed, the loan, APR and payment amounts will be higher. If the down payment is less than 20%, mortgage insurance may be required and could increase the monthly payment and APR. Contact us for details. Additional loan programs may be available. Accuracy is not guaranteed, and all products may not be available in all borrower's geographical areas and are based on their individual situation. This is not a credit decision or a commitment to lend.
Sales History & Tax Summary for 22 Washington Street
Sales History
| Date | Price | Change |
|---|---|---|
| Currently not available. | ||
Tax Summary
| Tax Year | Estimated Market Value | Total Tax |
|---|---|---|
| Currently not available. | ||
Data powered by ATTOM Data Solutions. Copyright© 2025. Information deemed reliable but not guaranteed.
Schools
Schools nearby 22 Washington Street
| Schools in attendance boundaries | Grades | Distance | Rating |
|---|---|---|---|
| Loading... | |||
| Schools nearby | Grades | Distance | Rating |
|---|---|---|---|
| Loading... | |||
Data powered by ATTOM Data Solutions. Copyright© 2025. Information deemed reliable but not guaranteed.
The schools shown represent both the assigned schools and schools by distance based on local school and district attendance boundaries. Attendance boundaries change based on various factors and proximity does not guarantee enrollment eligibility. Please consult your real estate agent and/or the school district to confirm the schools this property is zoned to attend. Information is deemed reliable but not guaranteed.
SchoolDigger ® Rating
The SchoolDigger rating system is a 1-5 scale with 5 as the highest rating. SchoolDigger ranks schools based on test scores supplied by each state's Department of Education. They calculate an average standard score by normalizing and averaging each school's test scores across all tests and grades.
Coming soon properties will soon be on the market, but are not yet available for showings.