2209 Callaway Court Davenport, FL 33837
For Sale MLS# O6320951
4 beds 4 baths 4,034 sq ft Single Family
Details for 2209 Callaway Court
MLS# O6320951
Description for 2209 Callaway Court, Davenport, FL, 33837
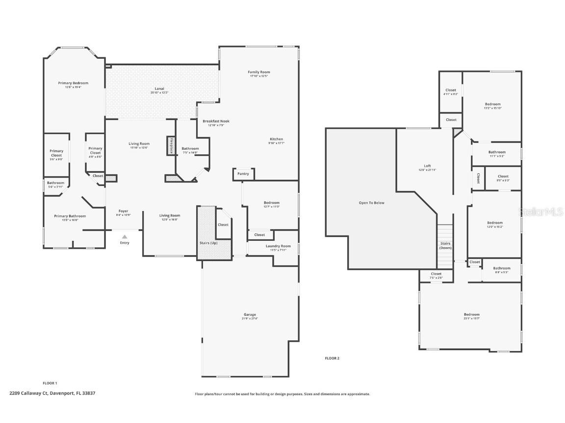
Beautiful ABD Development home located in Heritage Green, Providence. The Bristol Model is one of the most popular models and the fantastic floorplan explains why. Large 2 stroy vaulted ceilings in the entry, living room and dining room create a sense of grandeur most homes cannot rival. The master Bedroom is split from the rest of the house proving peace and privacy. the downstairs boasts all the common areas with the master suite while the upstairs is reserved for all other bedrooms and a large bonus room above the 3 car garage. Don't miss the chance to own this magnificent home in Davenport
Listing Information
Property Type: Residential, Single Family Residence
Status: Active
Bedrooms: 4
Bathrooms: 4
Lot Size: 0.20 Acres
Square Feet: 4,034 sq ft
Year Built: 2007
Garage: Yes
Stories: 2 Story
Construction: Stucco
Subdivision: Greens At Providence
Foundation: Slab
County: Polk
Room Information
Main Floor
Primary Bedroom: 22x15.4
Kitchen: 17.7x9.9
Living Room: 14.4x17
Bathrooms
Full Baths: 4
Additonal Room Information
Laundry: Inside, Washer Hookup, Electric Dryer Hookup
Interior Features
Appliances: Built-In Oven, Washer, Cooktop
Flooring: Carpet,Engineered Hardwood
Fireplaces: Wood Burning
Additional Interior Features: Ceiling Fan(s)
Utilities
Water: Public
Sewer: Public Sewer
Other Utilities: Cable Available,Electricity Connected,Sewer Connected,Water Connected
Cooling: Ceiling Fan(s), Central Air
Heating: Heat Pump
Exterior / Lot Features
Attached Garage: Attached Garage
Garage Spaces: 3
Roof: Tile
Additional Exterior/Lot Features: French Patio Doors
Community Features
Community Features: Sidewalks
Homeowners Association: Yes
HOA Dues: $430 / Quarterly
Driving Directions
i-4 west bound take the champions gate exit, go left until you get to old lake Wilson then take a right until you hit ronald reagan followed by a left on ronald reagan until you get to US17. Take a right on US17 and the Main entrance to providence will be on your left. Follow the main boulevard in the community, past the round about and take a left into the heritage green community subdivision. Callaway court if the first left and the home is the second home on the left
Financial Considerations
Terms: Cash,Conventional,FHA
Tax/Property ID: 28-26-18-932901-020020
Tax Amount: 7832.71
Tax Year: 2024
A broker reciprocity listing courtesy: WINDMAKER REALTY
Based on information provided by Stellar MLS as distributed by the MLS GRID. Information from the Internet Data Exchange is provided exclusively for consumers’ personal, non-commercial use, and such information may not be used for any purpose other than to identify prospective properties consumers may be interested in purchasing. This data is deemed reliable but is not guaranteed to be accurate by Edina Realty, Inc., or by the MLS. Edina Realty, Inc., is not a multiple listing service (MLS), nor does it offer MLS access.
Copyright 2025 Stellar MLS as distributed by the MLS GRID. All Rights Reserved.
Payment Calculator
Interest rate and annual percentage rate (APR) are based on current market conditions, are for informational purposes only, are subject to change without notice and may be subject to pricing add-ons related to property type, loan amount, loan-to-value, credit score and other variables. Estimated closing costs used in the APR calculation are assumed to be paid by the borrower at closing. If the closing costs are financed, the loan, APR and payment amounts will be higher. If the down payment is less than 20%, mortgage insurance may be required and could increase the monthly payment and APR. Contact us for details. Additional loan programs may be available. Accuracy is not guaranteed, and all products may not be available in all borrower's geographical areas and are based on their individual situation. This is not a credit decision or a commitment to lend.
Sales History & Tax Summary for 2209 Callaway Court
Sales History
| Date | Price | Change |
|---|---|---|
| Currently not available. | ||
Tax Summary
| Tax Year | Estimated Market Value | Total Tax |
|---|---|---|
| Currently not available. | ||
Data powered by ATTOM Data Solutions. Copyright© 2025. Information deemed reliable but not guaranteed.
Schools
Schools nearby 2209 Callaway Court
| Schools in attendance boundaries | Grades | Distance | Rating |
|---|---|---|---|
| Loading... | |||
| Schools nearby | Grades | Distance | Rating |
|---|---|---|---|
| Loading... | |||
Data powered by ATTOM Data Solutions. Copyright© 2025. Information deemed reliable but not guaranteed.
The schools shown represent both the assigned schools and schools by distance based on local school and district attendance boundaries. Attendance boundaries change based on various factors and proximity does not guarantee enrollment eligibility. Please consult your real estate agent and/or the school district to confirm the schools this property is zoned to attend. Information is deemed reliable but not guaranteed.
SchoolDigger ® Rating
The SchoolDigger rating system is a 1-5 scale with 5 as the highest rating. SchoolDigger ranks schools based on test scores supplied by each state's Department of Education. They calculate an average standard score by normalizing and averaging each school's test scores across all tests and grades.
Coming soon properties will soon be on the market, but are not yet available for showings.