221 N Jefferson Street Saint Croix Falls, WI 54024
For Sale MLS# 6803598
5 beds 3 baths 3,120 sq ft Single Family
Details for 221 N Jefferson Street
MLS# 6803598
Description for 221 N Jefferson Street, Saint Croix Falls, WI, 54024
This well-maintained St. Croix Falls home offers space, updates, and versatility! Featuring 4+ bedrooms, large updated windows, newer siding and roof, and fresh flooring throughout. The main level includes a remodeled bath, convenient laundry, and spacious rooms filled with natural light. Step outside to a beautiful paver patio surrounded by mature trees on nearly a half-acre lot. The lower level hosts a complete mother-in-law suite with its own kitchen, bath, and laundry—perfect for extended family. The rear alley access offers room to add a future garage. Move-in ready and close to schools, parks, and downtown amenities!
Listing Information
Property Type: Residential, Single Family
Status: Active
Bedrooms: 5
Bathrooms: 3
Lot Size: 0.41 Acres
Square Feet: 3,120 sq ft
Year Built: 1935
Foundation: 1,443 sq ft
Garage: Yes
Stories: 1.5 Stories
Subdivision: Original C St Croix Falls
County: Polk
Days On Market: 67
Construction Status: Previously Owned
School Information
District: 5019 - Saint Croix Falls
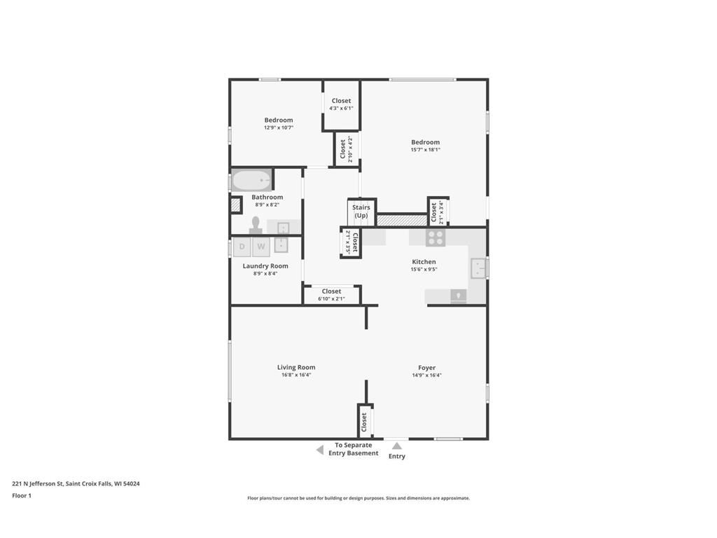
Room Information
Main Floor
Bedroom 1: 12.9x10.7
Bedroom 2: 15.7x18.1
Foyer: 14.9x16.4
Kitchen: 15.6x9.5
Laundry: 8.9x8.4
Living Room: 16.8x16.4
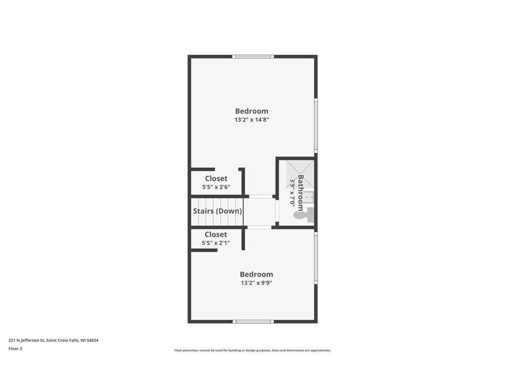
Upper Floor
Bedroom 3: 13.2x14.8
Bedroom 4: 13.2x9.9
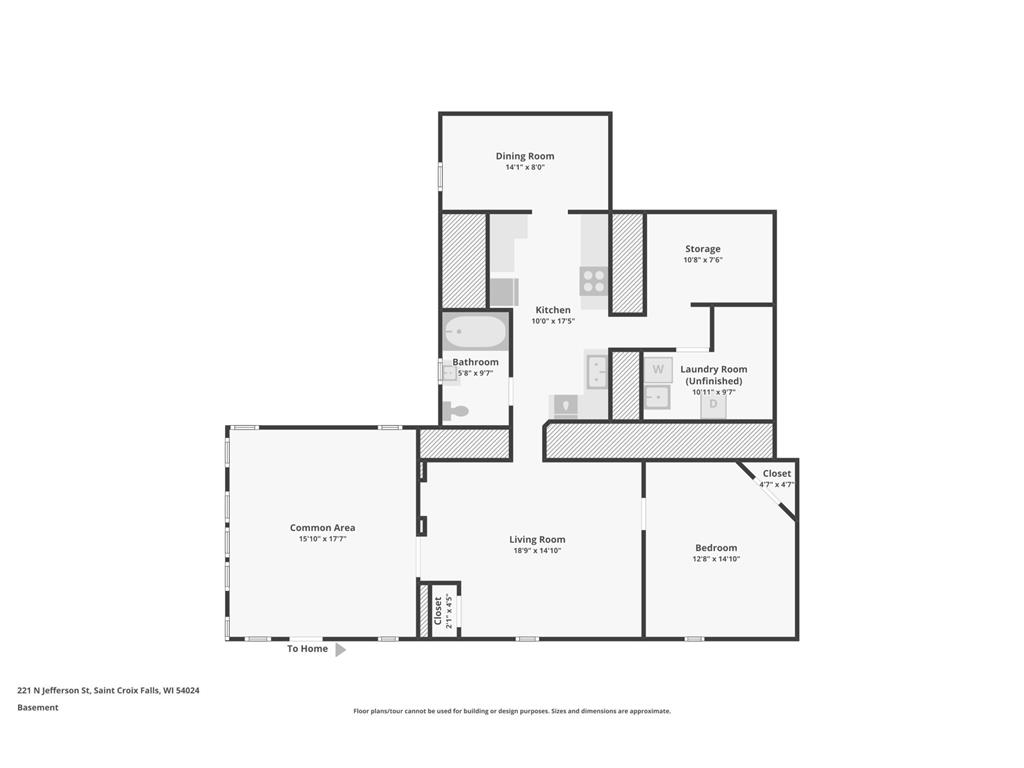
Lower Floor
Bedroom 5: 12.8x14.10
Bonus Room: 15.10x17.7
Dining Room: 14.1x8
Living Room: 18.9x14.10
Second Kitchen: 10x17.5
Bathrooms
Full Baths: 2
3/4 Baths: 1
Additonal Room Information
Dining: Informal Dining Room
Bath Description: Full Basement,Main Floor Full Bath,Upper Level 3/4 Bath
Interior Features
Square Footage above: 1,920 sq ft
Square Footage below: 1,200 sq ft
Appliances: Dishwasher, Dryer, Range, Refrigerator, Washer
Basement: Finished (Livable), Full, Walkout
Facilities: Existing In-Law w/Bath, Existing In-Law w/Kitchen
Fireplaces: 1, Living Room
Additional Interior Features: Main Floor Bedroom, Rehabbed, Main Floor Laundry
Utilities
Water: City Water/Connected
Sewer: City Sewer/Connected
Heating: Natural Gas, Hot Water
Exterior / Lot Features
Garage Spaces: 1
Parking Description: gravel lot, Garage Sq Ft - 240.0
Exterior: Vinyl
Roof: Age 8 Years or Less, Asphalt Shingles
Lot Dimensions: city lot
Zoning: Residential-Single Family
Additional Exterior/Lot Features: Road Frontage - City
Out Buildings: Shed - Storage
Driving Directions
From SCF take Louisiana St East to Jefferson S North, fire number 221
Financial Considerations
Tax/Property ID: 281007170000
Tax Amount: 3385
Tax Year: 2024
HomeStead Description: Homesteaded
A broker reciprocity listing courtesy: Century 21 Affiliated
The data relating to real estate for sale on this web site comes in part from the Broker Reciprocity℠ Program of the Regional Multiple Listing Service of Minnesota, Inc. Real estate listings held by brokerage firms other than Edina Realty, Inc. are marked with the Broker Reciprocity℠ logo or the Broker Reciprocity℠ thumbnail and detailed information about them includes the name of the listing brokers. Edina Realty, Inc. is not a Multiple Listing Service (MLS), nor does it offer MLS access. This website is a service of Edina Realty, Inc., a broker Participant of the Regional Multiple Listing Service of Minnesota, Inc. IDX information is provided exclusively for consumers personal, non-commercial use and may not be used for any purpose other than to identify prospective properties consumers may be interested in purchasing. Open House information is subject to change without notice. Information deemed reliable but not guaranteed.
Copyright 2025 Regional Multiple Listing Service of Minnesota, Inc. All Rights Reserved.
Payment Calculator
Interest rate and annual percentage rate (APR) are based on current market conditions, are for informational purposes only, are subject to change without notice and may be subject to pricing add-ons related to property type, loan amount, loan-to-value, credit score and other variables. Estimated closing costs used in the APR calculation are assumed to be paid by the borrower at closing. If the closing costs are financed, the loan, APR and payment amounts will be higher. If the down payment is less than 20%, mortgage insurance may be required and could increase the monthly payment and APR. Contact us for details. Additional loan programs may be available. Accuracy is not guaranteed, and all products may not be available in all borrower's geographical areas and are based on their individual situation. This is not a credit decision or a commitment to lend.
Sales History & Tax Summary for 221 N Jefferson Street
Sales History
| Date | Price | Change |
|---|---|---|
| Currently not available. | ||
Tax Summary
| Tax Year | Estimated Market Value | Total Tax |
|---|---|---|
| Currently not available. | ||
Data powered by ATTOM Data Solutions. Copyright© 2025. Information deemed reliable but not guaranteed.
Schools
Schools nearby 221 N Jefferson Street
| Schools in attendance boundaries | Grades | Distance | Rating |
|---|---|---|---|
| Loading... | |||
| Schools nearby | Grades | Distance | Rating |
|---|---|---|---|
| Loading... | |||
Data powered by ATTOM Data Solutions. Copyright© 2025. Information deemed reliable but not guaranteed.
The schools shown represent both the assigned schools and schools by distance based on local school and district attendance boundaries. Attendance boundaries change based on various factors and proximity does not guarantee enrollment eligibility. Please consult your real estate agent and/or the school district to confirm the schools this property is zoned to attend. Information is deemed reliable but not guaranteed.
SchoolDigger ® Rating
The SchoolDigger rating system is a 1-5 scale with 5 as the highest rating. SchoolDigger ranks schools based on test scores supplied by each state's Department of Education. They calculate an average standard score by normalizing and averaging each school's test scores across all tests and grades.
Coming soon properties will soon be on the market, but are not yet available for showings.