2213 River Pine Drive Fort Myers, FL 33905
For Sale MLS# 2026002667
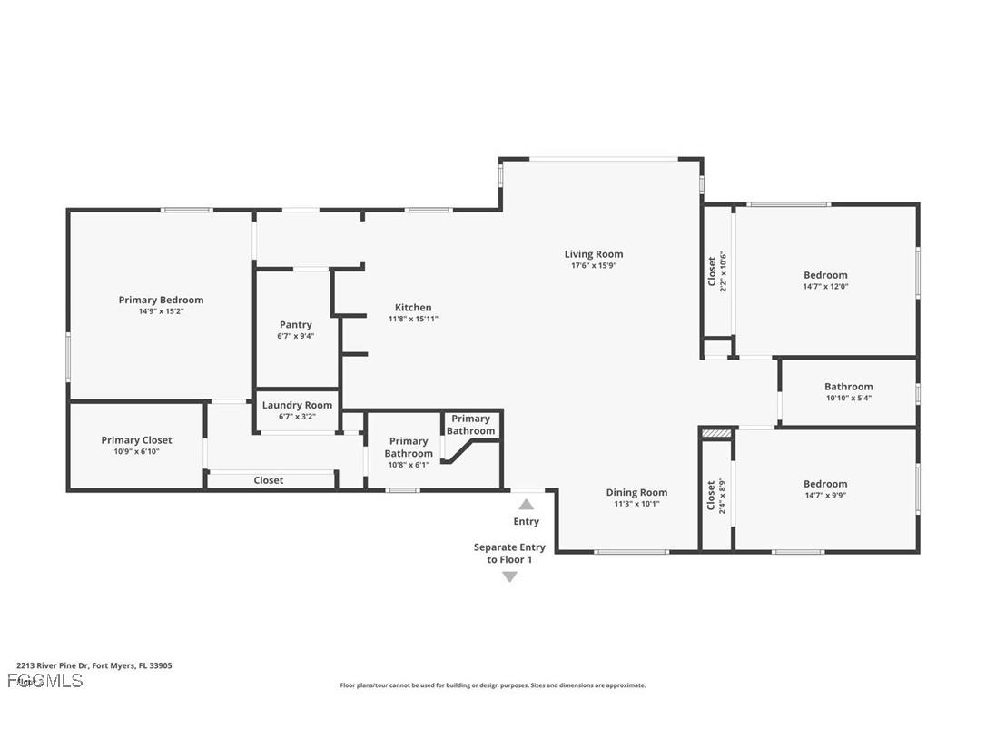
3 beds 2 baths 1,898 sq ft Single Family
Details for 2213 River Pine Drive
MLS# 2026002667
Description for 2213 River Pine Drive, Fort Myers, FL, 33905
DRASTIC PRICE IMPROVEMENT: Set on over 1.5 acres of direct Caloosahatchee River frontage, this is a rare combination of privacy, acreage, and waterfront living. The elevated residence has been completely renovated down to stud walls post-Ian, with impact windows/doors/ raised way above flood plain - blending peace of mind with comfortable coastal style. Positioned along the Intracoastal Waterway and facing a scenic island backdrop, the setting is quiet, picturesque, and unmistakably Old Florida. The property features a cement seawall, new composite dock, boat lift, and electric and water at the dock—ideal for boating, fishing, or enjoying life on the river. Mature landscaping and expansive grounds provide a sense of space that’s increasingly hard to find on the water. The home may be enjoyed as-is, expanded, or reimagined as a larger estate. Buyers also have the option to purchase the neighboring one-acre parcel at 2212 River Pine, which includes a charming Key West–style fishing cottage, allowing for a combined waterfront compound with exceptional flexibility and long-term potential. A unique opportunity to own a substantial riverfront property in a truly special setting. Please see documents for potential options for redevelopment
Listing Information
Property Type: Residential, Single Family Residence
Status: Active
Bedrooms: 3
Bathrooms: 2
Lot Size: 1.57 Acres
Square Feet: 1,898 sq ft
Year Built: 1969
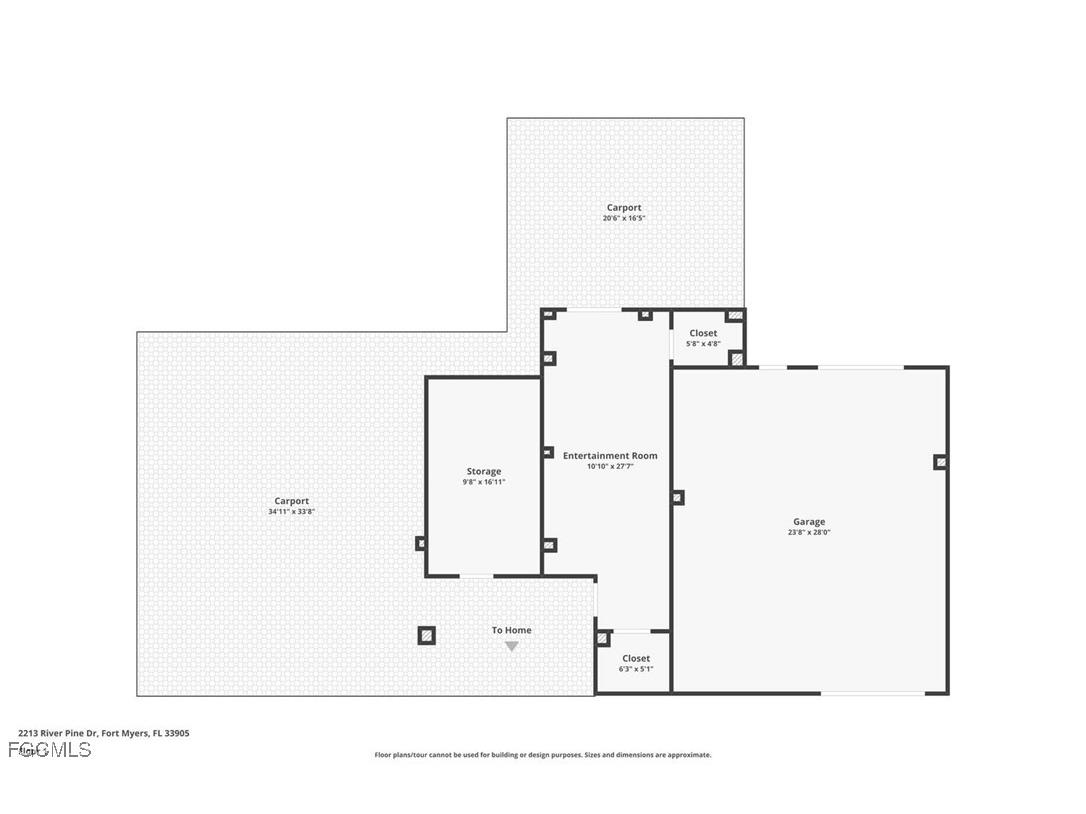
Garage: Yes
Stories: 2 Story
Construction: Block,Concrete,Stucco
Subdivision: Engleside Lanes Subd
Foundation: Pillar/Post/Pier
Furnished: Yes
County: Lee
Days On Market: 47
Construction Status: Resale
School Information
Elementary: Choice
Middle: Choice
High: Choice
Room Information
Bathrooms
Full Baths: 2
Additonal Room Information
Laundry: Inside, Laundry Tub
Interior Features
Appliances: Built-In Oven, Dishwasher, Dryer, Freezer, Microwave, Refrigerator, Washer, Gas Cooktop
Flooring: Laminate
Doors/Windows: Impact Glass, Sliding
Additional Interior Features: Walk-In Closet(s), Kitchen Island, Split Bedrooms, Separate Shower, Family/Dining Room, Living/Dining Room, Pantry, Elevator, Walk-In Pantry, Shower Only, Dual Sinks
Utilities
Water: Public
Sewer: Septic Tank
Other Utilities: Cable Available
Cooling: Electric, Ceiling Fan(s), Central Air
Heating: Central, Electric
Exterior / Lot Features
Attached Garage: Attached Garage
Garage Spaces: 2
Parking Description: Attached, Unpaved, Attached Carport, Garage, Covered, Underground, driveway, Two Spaces
Roof: Shingle
Lot View: River
Lot Dimensions: 200 x 324 x 211 x 383
Zoning: RS-3
Additional Exterior/Lot Features: Sprinkler/Irrigation, Fire Pit, Lanai, Porch, Screened, Oversized Lot, Sprinklers Automatic
Waterfront Details
Water Front Features: River Front
Community Features
Community Features: Non-Gated
Security Features: Smoke Detector(s), None
Driving Directions
From 75 - EXIT 141 - to Palm Beach Blvd east to north Old Olga Rd. The road will bend to the right, stay straight to Bigelow and make a left and then right on to River Pine. Go to end of road to the gate.
Financial Considerations
Terms: All Financing Considered,Cash
Tax/Property ID: 21-43-26-01-00004.0010
Tax Amount: 11585.64
Tax Year: 2024
A broker reciprocity listing courtesy: iConnect RE
Based on information provided by FGCMLS. Internet Data Exchange information is provided exclusively for consumers’ personal, non-commercial use, and such information may not be used for any purpose other than to identify prospective properties consumers may be interested in purchasing. This data is deemed reliable but is not guaranteed to be accurate by Edina Realty, Inc., or by the MLS. Edina Realty, Inc., is not a multiple listing service (MLS), nor does it offer MLS access.
Copyright 2026 FGCMLS. All Rights Reserved.
Payment Calculator
Interest rate and annual percentage rate (APR) are based on current market conditions, are for informational purposes only, are subject to change without notice and may be subject to pricing add-ons related to property type, loan amount, loan-to-value, credit score and other variables. Estimated closing costs used in the APR calculation are assumed to be paid by the borrower at closing. If the closing costs are financed, the loan, APR and payment amounts will be higher. If the down payment is less than 20%, mortgage insurance may be required and could increase the monthly payment and APR. Contact us for details. Additional loan programs may be available. Accuracy is not guaranteed, and all products may not be available in all borrower's geographical areas and are based on their individual situation. This is not a credit decision or a commitment to lend.
Sales History & Tax Summary for 2213 River Pine Drive
Sales History
| Date | Price | |
|---|---|---|
| Currently not available. | ||
Tax Summary
| Tax Year | Estimated Market Value | Total Tax |
|---|---|---|
| Currently not available. | ||
Data powered by ATTOM Data Solutions. Copyright© 2026. Information deemed reliable but not guaranteed.
Schools
Schools nearby 2213 River Pine Drive
| Schools in attendance boundaries | Grades | Distance | Rating |
|---|---|---|---|
| Loading... | |||
| Schools nearby | Grades | Distance | Rating |
|---|---|---|---|
| Loading... | |||
Data powered by ATTOM Data Solutions. Copyright© 2026. Information deemed reliable but not guaranteed.
The schools shown represent both the assigned schools and schools by distance based on local school and district attendance boundaries. Attendance boundaries change based on various factors and proximity does not guarantee enrollment eligibility. Please consult your real estate agent and/or the school district to confirm the schools this property is zoned to attend. Information is deemed reliable but not guaranteed.
SchoolDigger ® Rating
The SchoolDigger rating system is a 1-5 scale with 5 as the highest rating. SchoolDigger ranks schools based on test scores supplied by each state's Department of Education. They calculate an average standard score by normalizing and averaging each school's test scores across all tests and grades.
Coming soon properties will soon be on the market, but are not yet available for showings.