2213 SE 7th Street Cape Coral, FL 33990
Pending MLS# 2025011731
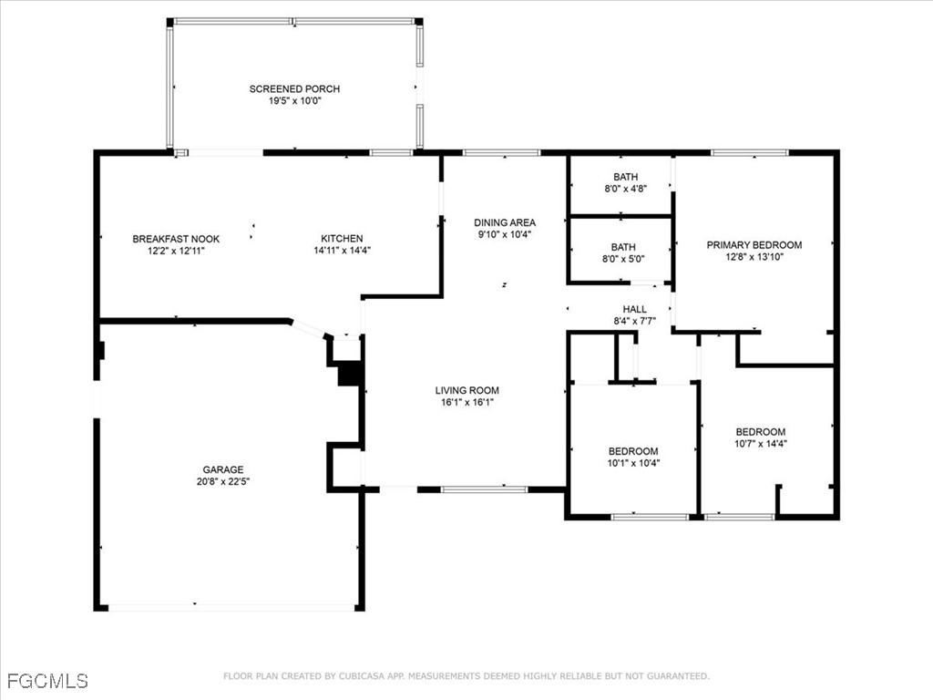
3 beds 2 baths 1,462 sq ft Single Family
Details for 2213 SE 7th Street
MLS# 2025011731
Description for 2213 SE 7th Street, Cape Coral, FL, 33990
Welcome to 2213 SE 7th St, Cape Coral, FL 33990! This 3-bedroom, 2-bathroom, 2-car garage home features IMPACT WINDOWS, vaulted ceilings, newer ductwork and newer AC unit, 2019 ROOF, a large mango tree in the FENCED rear yard, and custom interior paint colors. NO HOA. Located close to Rosen Park, Paradise Marina, Four Mile Cove Fishing Pier, north of Veterans Parkway, and just south of Hancock Bridge Parkway, close to shopping, entertainment, restaurants, waterways, beach, and all of what Southwest Florida has to offer. Take a quick trip over the bridge into the downtown Fort Myers River District, where you can enjoy dining, Art and Music walk, festivals, and the annual Edison Light Parade. Inside, vaulted ceilings give the living room an open, airy feel, and there’s plenty of room for both a sectional and reclining chairs.
Listing Information
Property Type: Residential, Single Family Residence
Status: Pending-Financing
Bedrooms: 3
Bathrooms: 2
Lot Size: 0.24 Acres
Square Feet: 1,462 sq ft
Year Built: 1987
Garage: Yes
Stories: 1 Story
Construction: Block,Concrete,Stucco
Subdivision: Cape Coral
Furnished: Yes
County: Lee
Days On Market: 134
Construction Status: Resale
Room Information
Bathrooms
Full Baths: 2
Additonal Room Information
Other: Kitchen (15x14), Dining Room (9.1x10.4), Bedroom (10x14), Bedroom (10x10), Primary Bedroom (12.8x13.1), Living Room (16x16)
Laundry: Dryer Hookup, In Garage, Washer Hookup
Interior Features
Appliances: Dishwasher, Dryer, Freezer, Range, Refrigerator, Washer
Flooring: Tile
Doors/Windows: Impact Glass, Single Hung, Window Coverings
Additional Interior Features: Eat-In Kitchen, Pantry, Vaulted Ceiling(s), Kitchen Island, Window Treatments, Separate Shower, Separate/Formal Dining Room, Shower Only, Breakfast Area
Utilities
Water: Public, Assessment Paid
Sewer: Assessment Paid, Public Sewer
Other Utilities: Cable Available,High Speed Internet Available
Cooling: Ceiling Fan(s)
Heating: Electric, Central
Exterior / Lot Features
Attached Garage: Attached Garage
Garage Spaces: 2
Parking Description: Garage Door Opener, Attached, Paved, driveway, on street, Garage, Two Spaces
Roof: Shingle
Lot View: Landscaped
Lot Dimensions: 85 x 126 x 85 x 126
Zoning: R1-D
Additional Exterior/Lot Features: Fence, Patio, Patio, Porch, Screened, Lanai, Rectangular Lot
Community Features
Security Features: Smoke Detector(s)
Financial Considerations
Terms: All Financing Considered,Cash,FHA,VA Loan
Tax/Property ID: 17-44-24-C3-01383.0150
Tax Amount: 2003.33
Tax Year: 2024
A broker reciprocity listing courtesy: DomainRealty.com LLC
Based on information provided by FGCMLS. Internet Data Exchange information is provided exclusively for consumers’ personal, non-commercial use, and such information may not be used for any purpose other than to identify prospective properties consumers may be interested in purchasing. This data is deemed reliable but is not guaranteed to be accurate by Edina Realty, Inc., or by the MLS. Edina Realty, Inc., is not a multiple listing service (MLS), nor does it offer MLS access.
Copyright 2026 FGCMLS. All Rights Reserved.
Sales History & Tax Summary for 2213 SE 7th Street
Sales History
| Date | Price | |
|---|---|---|
| Currently not available. | ||
Tax Summary
| Tax Year | Estimated Market Value | Total Tax |
|---|---|---|
| Currently not available. | ||
Data powered by ATTOM Data Solutions. Copyright© 2026. Information deemed reliable but not guaranteed.
Schools
Schools nearby 2213 SE 7th Street
| Schools in attendance boundaries | Grades | Distance | Rating |
|---|---|---|---|
| Loading... | |||
| Schools nearby | Grades | Distance | Rating |
|---|---|---|---|
| Loading... | |||
Data powered by ATTOM Data Solutions. Copyright© 2026. Information deemed reliable but not guaranteed.
The schools shown represent both the assigned schools and schools by distance based on local school and district attendance boundaries. Attendance boundaries change based on various factors and proximity does not guarantee enrollment eligibility. Please consult your real estate agent and/or the school district to confirm the schools this property is zoned to attend. Information is deemed reliable but not guaranteed.
SchoolDigger ® Rating
The SchoolDigger rating system is a 1-5 scale with 5 as the highest rating. SchoolDigger ranks schools based on test scores supplied by each state's Department of Education. They calculate an average standard score by normalizing and averaging each school's test scores across all tests and grades.
Coming soon properties will soon be on the market, but are not yet available for showings.