$100,000
Off-Market Date: 03/05/202622441 Westchester Boulevard #1500G Punta Gorda, FL 33980
Pending MLS# C7521243
2 beds 2 baths 960 sq ft Condo
Details for 22441 Westchester Boulevard #1500G
MLS# C7521243
Description for 22441 Westchester Boulevard #1500G, Punta Gorda, FL, 33980
Under contract-accepting backup offers. Welcome to this well-located 2-bedroom, 2-bath second-floor condo in the Westchester Woods Condominiums. Residents enjoy a community low-maintenance condo living, making this property an excellent investment opportunity, first home, or Florida getaway. This bright and functional unit offers comfortable living in a peaceful community, perfect for year-round residents or seasonal owners. Ideally situated near Sunseeker Resort at Charlotte Harbor, enjoy access to world-class fishing, boating, and waterfront activities. Just minutes away, downtown Punta Gorda offers waterfront dining, boutique shopping, entertainment, and vibrant local charm. This location truly delivers the best of Southwest Florida living. Don't miss this opportunity!
Listing Information
Property Type: Residential, Condominium
Status: Pending
Bedrooms: 2
Bathrooms: 2
Lot Size: 0.49 Acres
Square Feet: 960 sq ft
Year Built: 1989
Stories: 1 Story
Construction: Wood Frame
Subdivision: Cedar Woods 02
Foundation: Slab
County: Charlotte
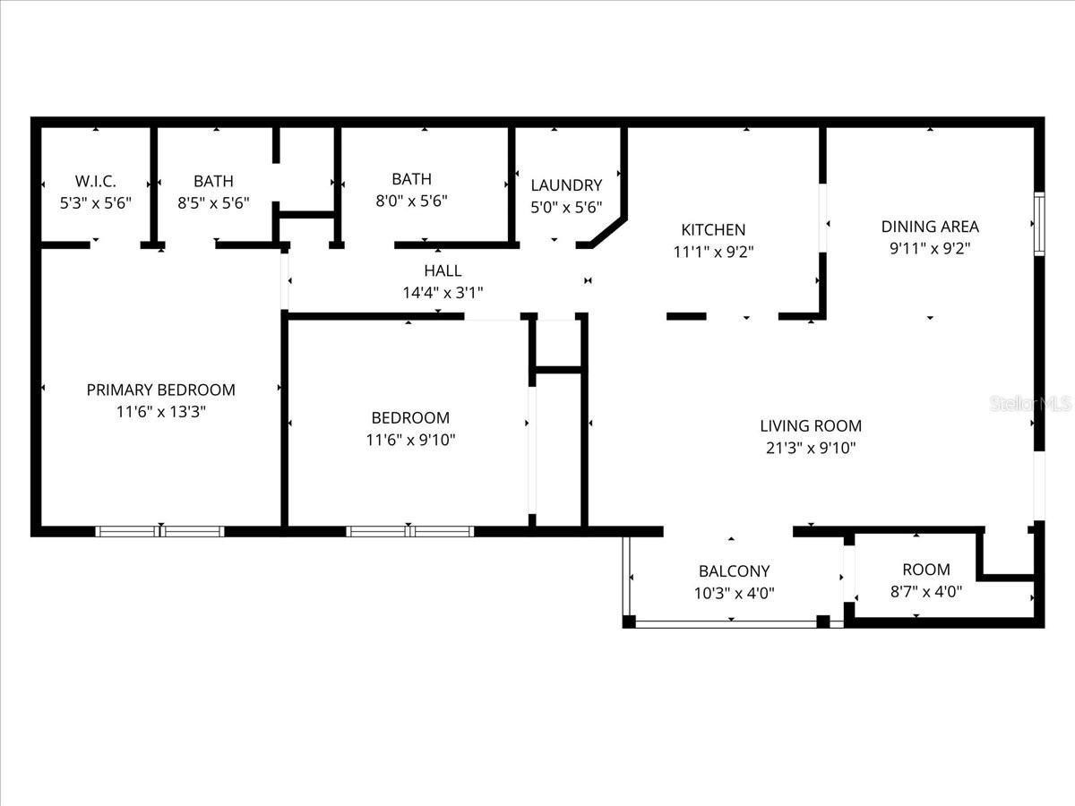
Room Information
Main Floor
Porch: 4x10
Bathroom 2: 5x8
Bedroom 2: 9x11
Laundry: 5x5
Dining Room: 9x9
Kitchen: 9x11
Living Room: 9x21
Primary Bathroom: 5x8
Primary Bedroom: 13x11
Bathrooms
Full Baths: 2
Additonal Room Information
Laundry: In Kitchen, Inside, Laundry Room
Interior Features
Appliances: Dishwasher, Range, Refrigerator
Flooring: Ceramic Tile,Vinyl
Additional Interior Features: Ceiling Fan(s), Walk-In Closet(s), Living/Dining Room
Utilities
Water: Public
Sewer: Public Sewer
Other Utilities: Cable Available,Electricity Connected,High Speed Internet Available,Municipal Utilities,Sewer Available,Water Available
Cooling: Central Air, Ceiling Fan(s)
Heating: Central, Electric
Exterior / Lot Features
Roof: Shingle
Additional Exterior/Lot Features: Rain Gutters, Storm/Security Shutters, Balcony, Balcony
Community Features
HOA Dues Include: Trash, Water, Recreation Facilities, Sewer, Maintenance Structure, Pest Control, Reserve Fund
Homeowners Association: Yes
HOA Dues: $445 / Monthly
Driving Directions
From Tamiami Trail, turn left on Gardner Dr, turn right onto Tamiami Trail N, turn right, property is on your right.
Financial Considerations
Terms: Cash
Tax/Property ID: 402226630015
Tax Amount: 2197
Tax Year: 2025
A broker reciprocity listing courtesy: SELLSTATE VISION REALTY
Based on information provided by Stellar MLS as distributed by the MLS GRID. Information from the Internet Data Exchange is provided exclusively for consumers’ personal, non-commercial use, and such information may not be used for any purpose other than to identify prospective properties consumers may be interested in purchasing. This data is deemed reliable but is not guaranteed to be accurate by Edina Realty, Inc., or by the MLS. Edina Realty, Inc., is not a multiple listing service (MLS), nor does it offer MLS access.
Copyright 2026 Stellar MLS as distributed by the MLS GRID. All Rights Reserved.
Sales History & Tax Summary for 22441 Westchester Boulevard #1500G
Sales History
| Date | Price | |
|---|---|---|
| Currently not available. | ||
Tax Summary
| Tax Year | Estimated Market Value | Total Tax |
|---|---|---|
| Currently not available. | ||
Data powered by ATTOM Data Solutions. Copyright© 2026. Information deemed reliable but not guaranteed.
Schools
Schools nearby 22441 Westchester Boulevard #1500G
| Schools in attendance boundaries | Grades | Distance | Rating |
|---|---|---|---|
| Loading... | |||
| Schools nearby | Grades | Distance | Rating |
|---|---|---|---|
| Loading... | |||
Data powered by ATTOM Data Solutions. Copyright© 2026. Information deemed reliable but not guaranteed.
The schools shown represent both the assigned schools and schools by distance based on local school and district attendance boundaries. Attendance boundaries change based on various factors and proximity does not guarantee enrollment eligibility. Please consult your real estate agent and/or the school district to confirm the schools this property is zoned to attend. Information is deemed reliable but not guaranteed.
SchoolDigger ® Rating
The SchoolDigger rating system is a 1-5 scale with 5 as the highest rating. SchoolDigger ranks schools based on test scores supplied by each state's Department of Education. They calculate an average standard score by normalizing and averaging each school's test scores across all tests and grades.
Coming soon properties will soon be on the market, but are not yet available for showings.