$595,000
2260 Starburst Drive SW Rochester, MN 55902
For Sale MLS# 7023466
5 beds 3 baths 2,843 sq ft Single Family
Details for 2260 Starburst Drive SW
MLS# 7023466
Description for 2260 Starburst Drive SW, Rochester, MN, 55902
Welcome home to this stunning 5-bedroom, 3-bath, 3-car garage retreat in desirable Hart Farms, where peaceful country views offer rare privacy. From the moment you step inside, you’ll feel the thoughtful design and welcoming warmth of this truly unique floor plan. The heart of the home is the beautifully appointed kitchen, featuring bright white cherry cabinetry, gleaming granite countertops, a spacious oversized center-island breakfast bar, a tile backsplash, and under-cabinet lighting that adds both elegance and function. Stainless steel appliances shine, including a gas cooktop, double ovens, and stainless vent hood. Rich cherry wood floors flow throughout the main level, enhancing the open, airy layout. A conveniently located main-floor laundry room with tiled floors adds ease to daily life. Upstairs, a versatile loft area provides flexible living space leading to an expansive owner’s suite. The ensuite bath offers a whirlpool tub, separate shower, double-sink vanity, and a large walk-in closet. The walk-out lower level features a spacious family room with a cozy corner gas fireplace, perfect for relaxing evenings. Step outside to enjoy the fully fenced backyard on a large third-acre lot, complete with a large deck and cement patio—ideal for gatherings or simply taking in the peaceful views. Don’t miss the opportunity to make this extraordinary home your own.
Listing Information
Property Type: Residential, Single Family
Status: Active
Bedrooms: 5
Bathrooms: 3
Lot Size: 0.33 Acres
Square Feet: 2,843 sq ft
Year Built: 2014
Foundation: 1,144 sq ft
Garage: Yes
Stories: Three Level Split
Subdivision: Hart Farm South 5th
County: Olmsted
Days On Market: 34
Construction Status: Previously Owned
School Information
District: 535 - Rochester
Elementary: Bamber Valley
Middle: Willow Creek
High: Mayo
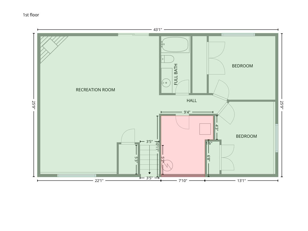
Room Information
Main Floor
Bathroom:
Bedroom 2:
Bedroom 3:
Kitchen:
Laundry:
Living Room:
Upper Floor
Bathroom:
Bedroom 1:
Walk-In Closet:
Lower Floor
Bathroom:
Bedroom 4:
Bedroom 5:
Family Room:
Bathrooms
Full Baths: 3
Additonal Room Information
Family: Family Room,Lower Level
Dining: Breakfast Bar,Kitchen/Dining Room,Living/Dining Room
Laundry: Laundry Room, Main Level, Sink
Bath Description: Double Sink,Bathroom Ensuite,Full Basement,Main Floor Full Bath,Private Primary,Separate Tub & Shower,Upper Level Full Bath
Interior Features
Square Footage above: 1,781 sq ft
Square Footage below: 1,062 sq ft
Appliances: Double Oven, Washer, Range, Refrigerator, Cooktop, Dryer, Exhaust Fan/Hood, Furnace Humidifier, Dishwasher, Disposal, Microwave
Basement: Finished (Livable), Concrete Block, Full, Sump Pump, Walkout, Sump Basket, Daylight/Lookout Windows
Fireplaces: 1, Family Room, Gas Burning, Stone
Additional Interior Features: Natural Woodwork, Hardwood Floors, Kitchen Window, Vaulted Ceiling(s), Washer/Dryer Hookup, Walk-In Closet, Paneled Doors, Kitchen Center Island, Primary Bdr Suite, Divided Bdr Flr Plan, Tile Floors, Main Floor Laundry
Utilities
Water: City Water/Connected
Sewer: City Sewer/Connected
Cooling: Central
Heating: Fireplace, Forced Air, Natural Gas
Exterior / Lot Features
Attached Garage: Attached Garage
Garage Spaces: 3
Parking Description: Heated Garage, Driveway - Concrete, Garage Door Opener, Attached Garage, Garage Dimensions - 34x22, Garage Sq Ft - 780.0
Exterior: Brick/Stone, Vinyl
Roof: Age 8 Years or Less, Asphalt Shingles
Lot Dimensions: 155x140x122x39
Zoning: Residential-Single Family
Fencing: Full, Chain Link
Additional Exterior/Lot Features: Porch, Panoramic View, Patio, Deck, In-Ground Sprinkler, Tree Coverage - Light, Underground Utilities, Road Frontage - Street Lights, Paved Streets, Sidewalks, City, No Outlet/Dead End
Driving Directions
South on 18th Ave SW, turn west onto Starburst Dr., and the home is on the left.
Financial Considerations
Tax/Property ID: 642233080732
Tax Amount: 6996
Tax Year: 2025
HomeStead Description: Homesteaded
A broker reciprocity listing courtesy: Dwell Realty Group LLC
The data relating to real estate for sale on this web site comes in part from the Broker Reciprocity℠ Program of the Regional Multiple Listing Service of Minnesota, Inc. Real estate listings held by brokerage firms other than Edina Realty, Inc. are marked with the Broker Reciprocity℠ logo or the Broker Reciprocity℠ thumbnail and detailed information about them includes the name of the listing brokers. Edina Realty, Inc. is not a Multiple Listing Service (MLS), nor does it offer MLS access. This website is a service of Edina Realty, Inc., a broker Participant of the Regional Multiple Listing Service of Minnesota, Inc. IDX information is provided exclusively for consumers personal, non-commercial use and may not be used for any purpose other than to identify prospective properties consumers may be interested in purchasing. Open House information is subject to change without notice. Information deemed reliable but not guaranteed.
Copyright 2026 Regional Multiple Listing Service of Minnesota, Inc. All Rights Reserved.
Payment Calculator
Interest rate and annual percentage rate (APR) are based on current market conditions, are for informational purposes only, are subject to change without notice and may be subject to pricing add-ons related to property type, loan amount, loan-to-value, credit score and other variables. Estimated closing costs used in the APR calculation are assumed to be paid by the borrower at closing. If the closing costs are financed, the loan, APR and payment amounts will be higher. If the down payment is less than 20%, mortgage insurance may be required and could increase the monthly payment and APR. Contact us for details. Additional loan programs may be available. Accuracy is not guaranteed, and all products may not be available in all borrower's geographical areas and are based on their individual situation. This is not a credit decision or a commitment to lend.
Sales History & Tax Summary for 2260 Starburst Drive SW
Sales History
| Date | Price | |
|---|---|---|
| Currently not available. | ||
Tax Summary
| Tax Year | Estimated Market Value | Total Tax |
|---|---|---|
| Currently not available. | ||
Data powered by ATTOM Data Solutions. Copyright© 2026. Information deemed reliable but not guaranteed.
Schools
Schools nearby 2260 Starburst Drive SW
| Schools in attendance boundaries | Grades | Distance | Rating |
|---|---|---|---|
| Loading... | |||
| Schools nearby | Grades | Distance | Rating |
|---|---|---|---|
| Loading... | |||
Data powered by ATTOM Data Solutions. Copyright© 2026. Information deemed reliable but not guaranteed.
The schools shown represent both the assigned schools and schools by distance based on local school and district attendance boundaries. Attendance boundaries change based on various factors and proximity does not guarantee enrollment eligibility. Please consult your real estate agent and/or the school district to confirm the schools this property is zoned to attend. Information is deemed reliable but not guaranteed.
SchoolDigger ® Rating
The SchoolDigger rating system is a 1-5 scale with 5 as the highest rating. SchoolDigger ranks schools based on test scores supplied by each state's Department of Education. They calculate an average standard score by normalizing and averaging each school's test scores across all tests and grades.
Coming soon properties will soon be on the market, but are not yet available for showings.