$1,349,900
22643 Oriole Circle Madison Lake, MN 56063 - Madison
For Sale MLS# 7040084
5 beds 4 baths 4,709 sq ft Single Family
Details for 22643 Oriole Circle
MLS# 7040084
Description for 22643 Oriole Circle, Madison Lake, MN, 56063 - Madison
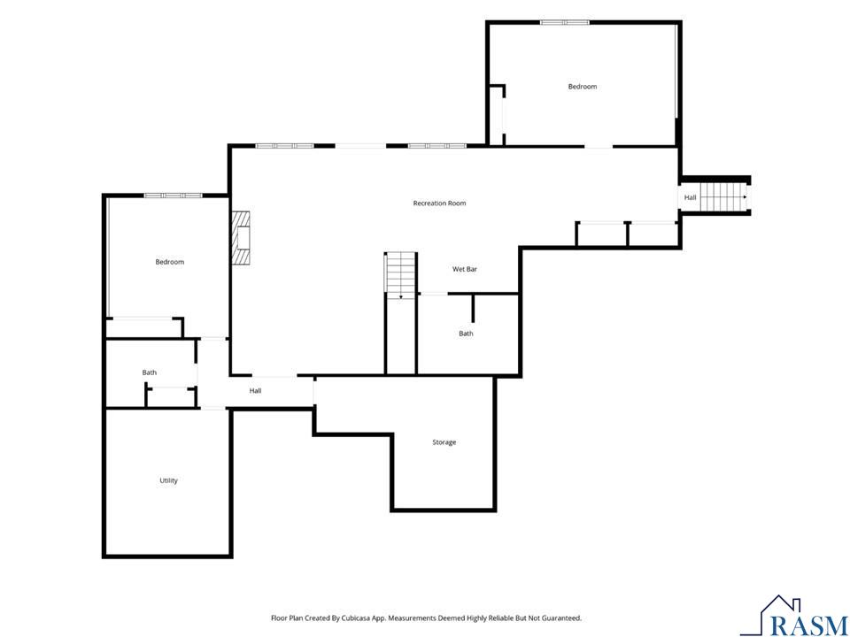
Welcome to your dream lake home on beautiful Madison Lake. 5 bedrooms, 4 bathrooms perfectly positioned on 5.28 acres with 514’ of shoreline. Step inside to a stunning great room with 14.5' vaulted ceilings, a cozy gas fireplace, and expansive windows that capture breathtaking sunrises and sunset views over the water. The completely remodeled custom kitchen with both an island and peninsula flow seamlessly into a formal dining room, both offering incredible views of the lake. The main level features three bedrooms, including a luxurious primary suite with heated bathroom floors, a walk-in jetted tub, tile shower, and more stunning lake views, plus convenient main floor laundry. The walkout lower level is built for entertaining and everyday living with a wet bar, two additional bedrooms (5th bedroom currently used as a workout room), two bathrooms, garage access, and impressive storage. A heated three-stall garage with epoxy flooring adds additional entertaining space. Outside, enjoy your own private pond, abundant wildlife, and direct lake access with dock and lift included, making this property feel like a year-round retreat. Major updates include all new paint and flooring throughout, multiple-zone HVAC, water softener, water heater with recirculation pump, roof, kitchen, primary bathroom, built-in living room cabinetry, and updated light fixtures - just to name a few!
Listing Information
Property Type: Residential, Single Family, Ranch/Rambler (L)
Status: Active
Bedrooms: 5
Bathrooms: 4
Lot Size: 5.28 Acres
Square Feet: 4,709 sq ft
Year Built: 2004
Foundation: 2,509 sq ft
Garage: Yes
Stories: 1 Story
Construction: Frame/Wood
County: Blue Earth
Days On Market: 1
Construction Status: Previously Owned
School Information
District: Mankato #77
Room Information
Main Floor
Living Room: 26'3x17'4
Bedroom: 13'7x14'4
Bathroom: 10'7x8'4
Bedroom: 13'6x14'4
Kitchen: 20'7x12'6
Laundry Room: 7'4x5'10
Primary Bedroom: 19'04x13'5
Other: 8'6x5'11
Primary Bath: 8'5x13'1
Dining Room: 14'11x12'5
Foyer: 15'3x6'4
Lower Floor
Living Room: 7'6x26'6
Other: 28'11x16'8
Bathroom: 9'4x12'3
Bedroom: 13'7x22'3
Den/Office: 20'6x14'7
Bedroom: 15'11x14'5
Bathroom: 9'8x7'5
Utility Room: 16'7x14'1
Bathrooms
Full Baths: 3
3/4 Baths: 1
Additonal Room Information
Dining: Breakfast Nook,Combine with Kitchen,Eat-In Kitchen,Formal Dining Room,Open Floor Plan
Bath Description: 3/4 Basement,Full Basement,Main Floor Full Bath,Private Primary,Separate Tub & Shower,Two Basement Baths,Whirlpool
Interior Features
Square Footage above: 2,509 sq ft
Square Footage below: 2,200 sq ft
Appliances: Microwave, Freezer, Dryer, Dishwasher, Range/Stove, Refrigerator, Washer
Basement: Full, Poured Concrete, Sump Pump, Walk-out, Walkout, Finished
Fireplaces: Two Fireplaces
Additional Interior Features: Tiled Floors, Walk-In Closet, Vaulted Ceilings, Smoke Alarms (L), Window Coverings (L), Wet Bar, Ceiling Fans, Eat-In Kitchen, CO Detectors (L), Mechanicals - Air to Air Exchange,Fuel Tank-Rented,Water Heater-Gas,Water Softener-Owned,Sump Pump
Utilities
Water: Shared
Sewer: City
Cooling: Central
Heating: Forced Air, Propane - Tank Rented
Exterior / Lot Features
Attached Garage: Attached Garage
Garage Spaces: 3
Parking Description: Attached, Garage Door Opener, Garage Dimensions - 36x32, Garage Sq Ft - 1034
Exterior: Vinyl, Brick
Roof: Asphalt Shingles
Lot Dimensions: 914x514
Additional Exterior/Lot Features: Patio, Dock, Driveway - Concrete, Driveway - Gravel, Deck, Accessible Shoreline, Irregular Lot, Road Frontage - Paved
Waterfront Details
Boat Facilities: Boat Facilities
Standard Water Body: Madison
DNR Lake ID: 7004400
Water Front Features: Lake
Water Frontage Length: 514 Ft.
Lake Acres: 1,446
Lake Depth: 59 Ft.
Road Between Waterfront And Home: 1
Financial Considerations
Covenants/Deed Restrictions: Other Covenants, Builder Restriction
Terms: Cash,Conventional,DVA
Tax/Property ID: R39.10.01.100.014, R39.10.01.100.009, R39.10.01.20
Tax Amount: 7870.98
Tax Year: 2026
A broker reciprocity listing courtesy: CENTURY 21 ATWOOD
The data relating to real estate for sale on this web site comes in part from the Broker Reciprocity℠ Program of the REALTOR® Association of So MN Multiple Listing Service. Real estate listings held by brokerage firms other than Edina Realty, Inc. are marked with the Broker Reciprocity℠ logo or the Broker Reciprocity℠ thumbnail and detailed information about them includes the name of the listing brokers. Edina Realty, Inc. is not a Multiple Listing Service (MLS), nor does it offer MLS access. This website is a service of Edina Realty, Inc., a broker Participant of the REALTOR® Association of So MN Multiple Listing Service. IDX information is provided exclusively for consumers personal, non-commercial use and may not be used for any purpose other than to identify prospective properties consumers may be interested in purchasing. Open House information is subject to change without notice. Information deemed reliable but not guaranteed.
Copyright 2026 REALTOR® Association of So MN Multiple Listing Service. All Rights Reserved.
Payment Calculator
Interest rate and annual percentage rate (APR) are based on current market conditions, are for informational purposes only, are subject to change without notice and may be subject to pricing add-ons related to property type, loan amount, loan-to-value, credit score and other variables. Estimated closing costs used in the APR calculation are assumed to be paid by the borrower at closing. If the closing costs are financed, the loan, APR and payment amounts will be higher. If the down payment is less than 20%, mortgage insurance may be required and could increase the monthly payment and APR. Contact us for details. Additional loan programs may be available. Accuracy is not guaranteed, and all products may not be available in all borrower's geographical areas and are based on their individual situation. This is not a credit decision or a commitment to lend.
Sales History & Tax Summary for 22643 Oriole Circle
Sales History
| Date | Price | |
|---|---|---|
| Currently not available. | ||
Tax Summary
| Tax Year | Estimated Market Value | Total Tax |
|---|---|---|
| Currently not available. | ||
Data powered by ATTOM Data Solutions. Copyright© 2026. Information deemed reliable but not guaranteed.
Schools
Schools nearby 22643 Oriole Circle
| Schools in attendance boundaries | Grades | Distance | Rating |
|---|---|---|---|
| Loading... | |||
| Schools nearby | Grades | Distance | Rating |
|---|---|---|---|
| Loading... | |||
Data powered by ATTOM Data Solutions. Copyright© 2026. Information deemed reliable but not guaranteed.
The schools shown represent both the assigned schools and schools by distance based on local school and district attendance boundaries. Attendance boundaries change based on various factors and proximity does not guarantee enrollment eligibility. Please consult your real estate agent and/or the school district to confirm the schools this property is zoned to attend. Information is deemed reliable but not guaranteed.
SchoolDigger ® Rating
The SchoolDigger rating system is a 1-5 scale with 5 as the highest rating. SchoolDigger ranks schools based on test scores supplied by each state's Department of Education. They calculate an average standard score by normalizing and averaging each school's test scores across all tests and grades.
Coming soon properties will soon be on the market, but are not yet available for showings.