228 104th Lane NW Coon Rapids, MN 55448
Pending MLS# 6816777
2 beds 2 baths 2,364 sq ft Single Family
Details for 228 104th Lane NW
MLS# 6816777
Description for 228 104th Lane NW, Coon Rapids, MN, 55448
Seller will pay $3,000 in repairs, interest buy down or whatever the buyer wants to use it on. Seller will also entertain Contract for Deed scenatio with minimum 10% down payment and 6% interest rate and 2 year balloon. Spacious rambler in a fantastic Coon Rapids neighborhood! This home sits on a great lot with an awesome yard and a hard-to-beat location close to parks, schools and everyday conveniences. The mail level offers, generous living spaces and an older addition that provided extra room to spread out. Downstairs you'll find a non conforming bedroom that just needs an egress window to create additional legal bedroom space, plus tons of storage fora ll your extras. With its size, layout and setting, this home is a perfect opportunity to build equity and make it your own in a wonderful neighborhood.
Listing Information
Property Type: Residential, Single Family
Status: Pending
Bedrooms: 2
Bathrooms: 2
Lot Size: 0.31 Acres
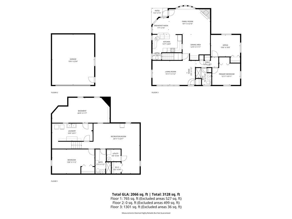
Square Feet: 2,364 sq ft
Year Built: 1960
Foundation: 1,364 sq ft
Garage: Yes
Stories: 1 Story
Subdivision: Rustic Oaks
County: Anoka
Days On Market: 87
Construction Status: Previously Owned
School Information
District: 11 - Anoka-Hennepin
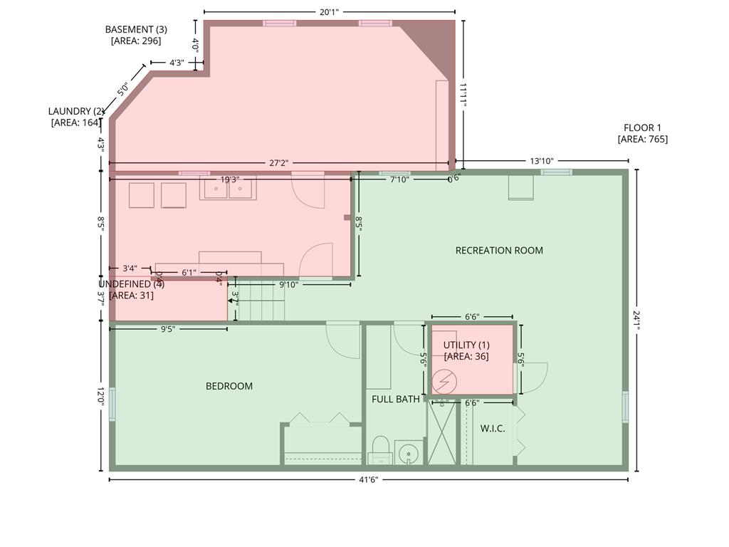
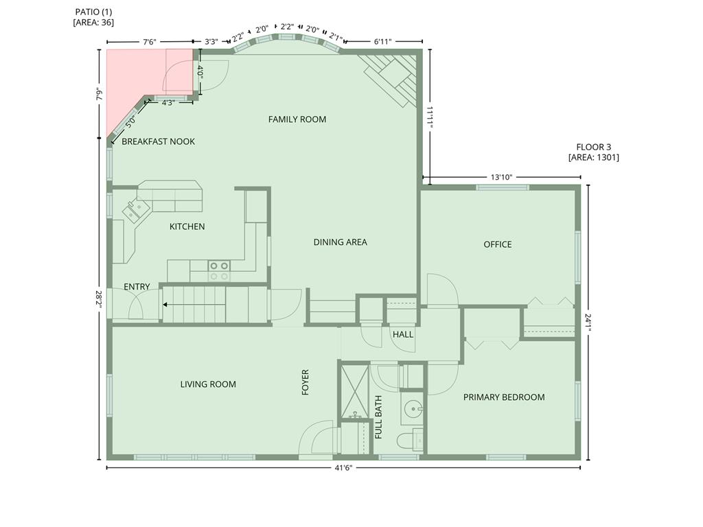
Room Information
Main Floor
Bedroom 1: 10x13
Bedroom 2: 10x13
Dining Room: 8x13
Family Room: 11x16
Informal Dining Room: 8x13
Kitchen: 7x12
Living Room: 11x16
Lower Floor
Amusement Room: 11x30
Flex Room: 8x11
Office: 12x19
Storage Room: 12x25
Bathrooms
Full Baths: 1
3/4 Baths: 1
Additonal Room Information
Family: Lower Level
Dining: Breakfast Area,Breakfast Bar,Eat In Kitchen,Kitchen/Dining Room
Laundry: In Basement
Bath Description: 3/4 Basement,Main Floor Full Bath
Interior Features
Square Footage above: 1,364 sq ft
Square Footage below: 1,000 sq ft
Appliances: Gas Water Heater, Refrigerator, Dryer, Dishwasher, Washer, Microwave
Basement: Concrete Block
Fireplaces: 1, Gas Burning
Additional Interior Features: Main Floor Bedroom, Main Floor Primary
Utilities
Water: City Water/Connected
Sewer: City Sewer/Connected
Cooling: Central
Heating: Forced Air, Natural Gas
Exterior / Lot Features
Garage Spaces: 2
Parking Description: Detached Garage, Garage Sq Ft - 540.0
Exterior: Vinyl, Brick/Stone
Roof: Architectural Shingle, Asphalt Shingles
Lot Dimensions: 81x170x79x170
Zoning: Residential-Single Family
Fencing: Chain Link, Wood
Additional Exterior/Lot Features: Tree Coverage - Medium
Driving Directions
Foley Blvd to 105th Ave, turn Right/East to Dogwood, turn right to 104th Lane, turn right, home is towards the end of the closed-ended Street
Financial Considerations
Tax/Property ID: 243124420064
Tax Amount: 2972.3
Tax Year: 2025
HomeStead Description: Non-Homesteaded
A broker reciprocity listing courtesy: RE/MAX Synergy
The data relating to real estate for sale on this web site comes in part from the Broker Reciprocity℠ Program of the Regional Multiple Listing Service of Minnesota, Inc. Real estate listings held by brokerage firms other than Edina Realty, Inc. are marked with the Broker Reciprocity℠ logo or the Broker Reciprocity℠ thumbnail and detailed information about them includes the name of the listing brokers. Edina Realty, Inc. is not a Multiple Listing Service (MLS), nor does it offer MLS access. This website is a service of Edina Realty, Inc., a broker Participant of the Regional Multiple Listing Service of Minnesota, Inc. IDX information is provided exclusively for consumers personal, non-commercial use and may not be used for any purpose other than to identify prospective properties consumers may be interested in purchasing. Open House information is subject to change without notice. Information deemed reliable but not guaranteed.
Copyright 2026 Regional Multiple Listing Service of Minnesota, Inc. All Rights Reserved.
Sales History & Tax Summary for 228 104th Lane NW
Sales History
| Date | Price | |
|---|---|---|
| Currently not available. | ||
Tax Summary
| Tax Year | Estimated Market Value | Total Tax |
|---|---|---|
| Currently not available. | ||
Data powered by ATTOM Data Solutions. Copyright© 2026. Information deemed reliable but not guaranteed.
Schools
Schools nearby 228 104th Lane NW
| Schools in attendance boundaries | Grades | Distance | Rating |
|---|---|---|---|
| Loading... | |||
| Schools nearby | Grades | Distance | Rating |
|---|---|---|---|
| Loading... | |||
Data powered by ATTOM Data Solutions. Copyright© 2026. Information deemed reliable but not guaranteed.
The schools shown represent both the assigned schools and schools by distance based on local school and district attendance boundaries. Attendance boundaries change based on various factors and proximity does not guarantee enrollment eligibility. Please consult your real estate agent and/or the school district to confirm the schools this property is zoned to attend. Information is deemed reliable but not guaranteed.
SchoolDigger ® Rating
The SchoolDigger rating system is a 1-5 scale with 5 as the highest rating. SchoolDigger ranks schools based on test scores supplied by each state's Department of Education. They calculate an average standard score by normalizing and averaging each school's test scores across all tests and grades.
Coming soon properties will soon be on the market, but are not yet available for showings.