$395,000
Off-Market Date: 02/16/2026228 Grovebrook Circle Mankato, MN 56001
Pending MLS# 7012067
5 beds 2 baths 2,339 sq ft Single Family
Details for 228 Grovebrook Circle
MLS# 7012067
Description for 228 Grovebrook Circle, Mankato, MN, 56001
Designed with comfort, flow, and versatility in mind, this thoughtfully maintained five-bedroom, two-bath home in Country Club Estates offers spaces that adapt easily to everyday living and gathering alike. Natural light fills the main level, where the living room connects seamlessly to the dining area and extends outdoors to a generous Trex composite deck, creating an easy transition between indoor and outdoor living. The kitchen serves as a functional centerpiece with granite countertops, a center island, and abundant storage. Three bedrooms are located on the main level, including a private primary bedroom featuring a custom walk-in closet and direct access to the nearby bathroom. The finished lower level expands the home’s possibilities with a spacious family room, fireplace, built-in bar, and a dedicated projector setup ideal for relaxing or hosting. Two additional bedrooms and a second bathroom complete the lower level. A whole-home audio system, fenced yard, and finished; heated garage adds everyday convenience. Recent updates include kitchen appliances, roofing, newer carpet upstairs & stairwell, garage door, and key mechanical components. A well-rounded home offering space, comfort, and flexibility. Experience it firsthand; call us for a private showing.
Listing Information
Property Type: Residential, Single Family
Status: Pending
Bedrooms: 5
Bathrooms: 2
Lot Size: 0.26 Acres
Square Feet: 2,339 sq ft
Year Built: 2008
Foundation: 1,264 sq ft
Garage: Yes
Stories: Split Entry (Bi-Level)
County: Blue Earth
Days On Market: 4
Construction Status: Previously Owned
School Information
District: 77 - Mankato
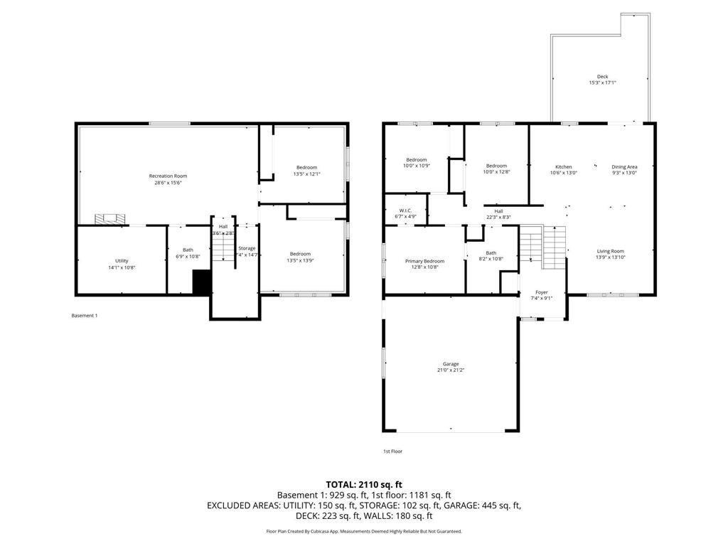
Room Information
Main Floor
Foyer: 7'6"x9
Garage: 22X22
Upper Floor
Bathroom: 8x11
Bedroom 1: 13x11
Bedroom 2: 10x11
Bedroom 3: 10x13
Deck: 15'6"x17'
Dining Room: 9'6"x13
Kitchen: 10'6"x13
Living Room: 14x14
Walk-In Closet: 7x5
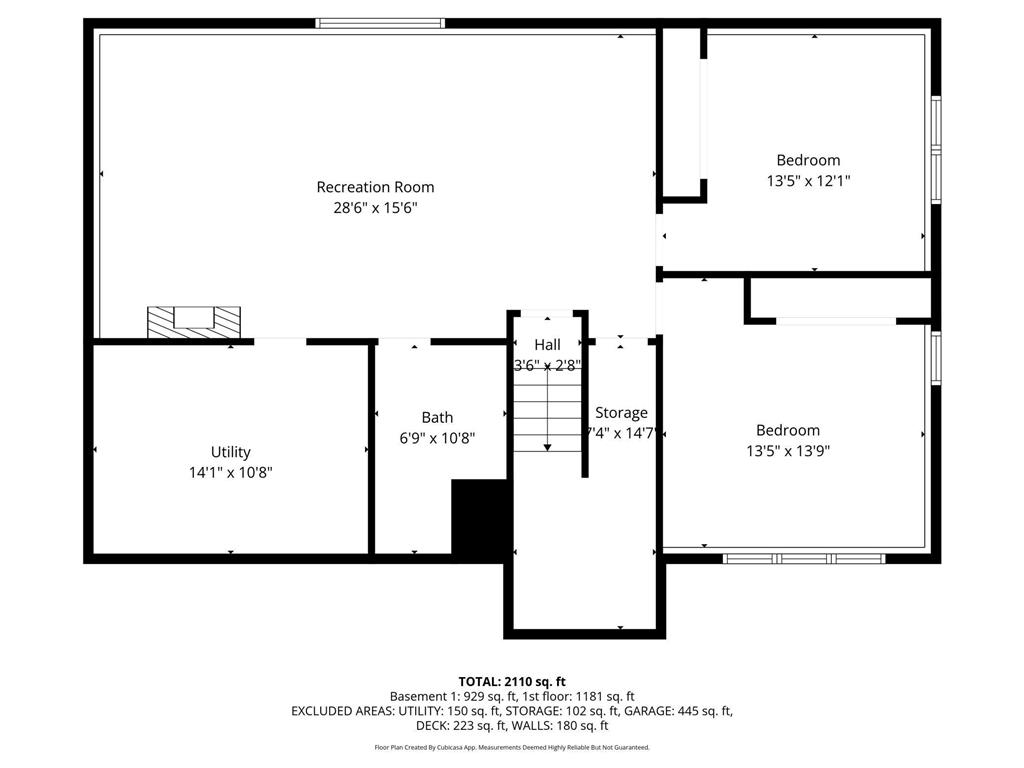
Lower Floor
Bathroom: 7x11
Bedroom 4: 13'6"x14
Bedroom 5: 13'6"x12
Recreation Room: 28'6"x15'6"
Storage Room: 7'6"x15
Utility Room: 14x11
Bathrooms
Full Baths: 1
3/4 Baths: 1
Additonal Room Information
Family: 2 or More,Entertainment/Media Center
Dining: Eat In Kitchen,Kitchen/Dining Room,Living/Dining Room
Laundry: In Basement, Washer Hookup, Lower Level, Sink
Bath Description: 3/4 Basement,Primary Walk-Thru,Upper Level Full Bath
Interior Features
Square Footage above: 1,264 sq ft
Square Footage below: 1,075 sq ft
Appliances: Stainless Steel Appliances, Water Softener - Owned, Washer, Gas Water Heater, Microwave, Range, Refrigerator, Dishwasher, Disposal, Dryer, Exhaust Fan/Hood
Basement: Concrete Block, Finished (Livable), Egress Windows, Full, Sump Pump, Daylight/Lookout Windows
Fireplaces: 1, Gas Burning
Additional Interior Features: Ceiling Fan(s), Vaulted Ceiling(s), Walk-In Closet, Kitchen Window, 3 BR on One Level, Washer/Dryer Hookup, Kitchen Center Island, Tile Floors, Hardwood Floors
Utilities
Water: City Water/Connected
Sewer: City Sewer/Connected
Cooling: Central
Heating: Fireplace, Forced Air, Natural Gas
Exterior / Lot Features
Attached Garage: Attached Garage
Garage Spaces: 2
Parking Description: Driveway - Concrete, Attached Garage, Heated Garage, Insulated Garage, Garage Dimensions - 22x22, Garage Sq Ft - 484.0
Exterior: Metal, Steel Siding
Roof: Age 8 Years or Less, Asphalt Shingles
Lot Dimensions: 75x150
Zoning: Residential-Single Family
Fencing: Partial
Additional Exterior/Lot Features: Deck, Patio, Tree Coverage - Medium, Road Frontage - Paved Streets, City, Curbs
Driving Directions
Hwy 14 to Riverfront Drive North. Right on Augusta Drive, right on Grovebrook Circle.
Financial Considerations
Other Annual Tax: $20
Tax/Property ID: R010904304009
Tax Amount: 3998
Tax Year: 2025
HomeStead Description: Homesteaded
A broker reciprocity listing courtesy: Massad Real Estate
The data relating to real estate for sale on this web site comes in part from the Broker Reciprocity℠ Program of the Regional Multiple Listing Service of Minnesota, Inc. Real estate listings held by brokerage firms other than Edina Realty, Inc. are marked with the Broker Reciprocity℠ logo or the Broker Reciprocity℠ thumbnail and detailed information about them includes the name of the listing brokers. Edina Realty, Inc. is not a Multiple Listing Service (MLS), nor does it offer MLS access. This website is a service of Edina Realty, Inc., a broker Participant of the Regional Multiple Listing Service of Minnesota, Inc. IDX information is provided exclusively for consumers personal, non-commercial use and may not be used for any purpose other than to identify prospective properties consumers may be interested in purchasing. Open House information is subject to change without notice. Information deemed reliable but not guaranteed.
Copyright 2026 Regional Multiple Listing Service of Minnesota, Inc. All Rights Reserved.
Sales History & Tax Summary for 228 Grovebrook Circle
Sales History
| Date | Price | |
|---|---|---|
| Currently not available. | ||
Tax Summary
| Tax Year | Estimated Market Value | Total Tax |
|---|---|---|
| Currently not available. | ||
Data powered by ATTOM Data Solutions. Copyright© 2026. Information deemed reliable but not guaranteed.
Schools
Schools nearby 228 Grovebrook Circle
| Schools in attendance boundaries | Grades | Distance | Rating |
|---|---|---|---|
| Loading... | |||
| Schools nearby | Grades | Distance | Rating |
|---|---|---|---|
| Loading... | |||
Data powered by ATTOM Data Solutions. Copyright© 2026. Information deemed reliable but not guaranteed.
The schools shown represent both the assigned schools and schools by distance based on local school and district attendance boundaries. Attendance boundaries change based on various factors and proximity does not guarantee enrollment eligibility. Please consult your real estate agent and/or the school district to confirm the schools this property is zoned to attend. Information is deemed reliable but not guaranteed.
SchoolDigger ® Rating
The SchoolDigger rating system is a 1-5 scale with 5 as the highest rating. SchoolDigger ranks schools based on test scores supplied by each state's Department of Education. They calculate an average standard score by normalizing and averaging each school's test scores across all tests and grades.
Coming soon properties will soon be on the market, but are not yet available for showings.