$420,000
2282 Nuthatch Street Saint Cloud, FL 34771
For Sale MLS# O6380295
4 beds 3 baths 2,204 sq ft Single Family
Details for 2282 Nuthatch Street
MLS# O6380295
Description for 2282 Nuthatch Street, Saint Cloud, FL, 34771
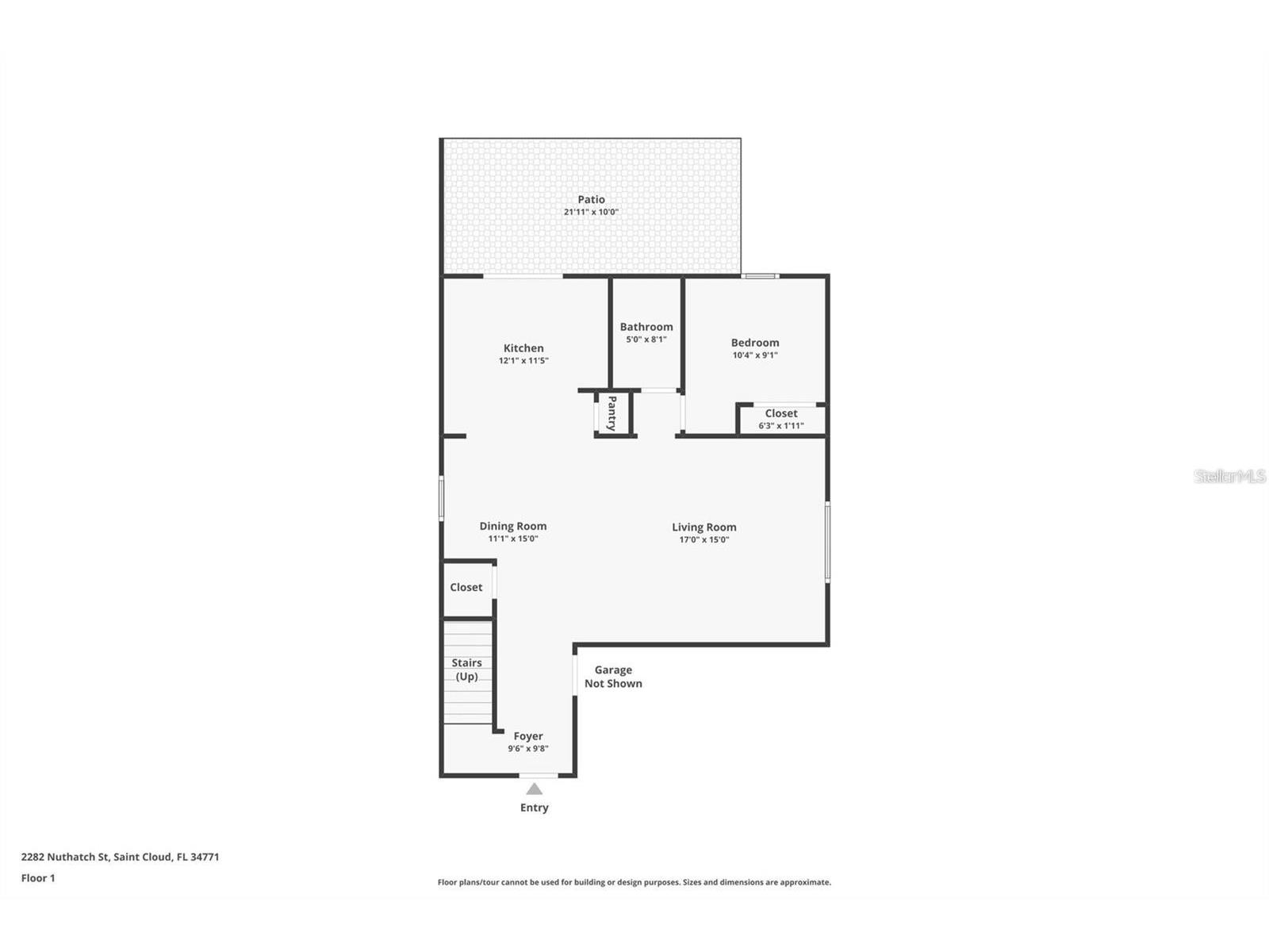
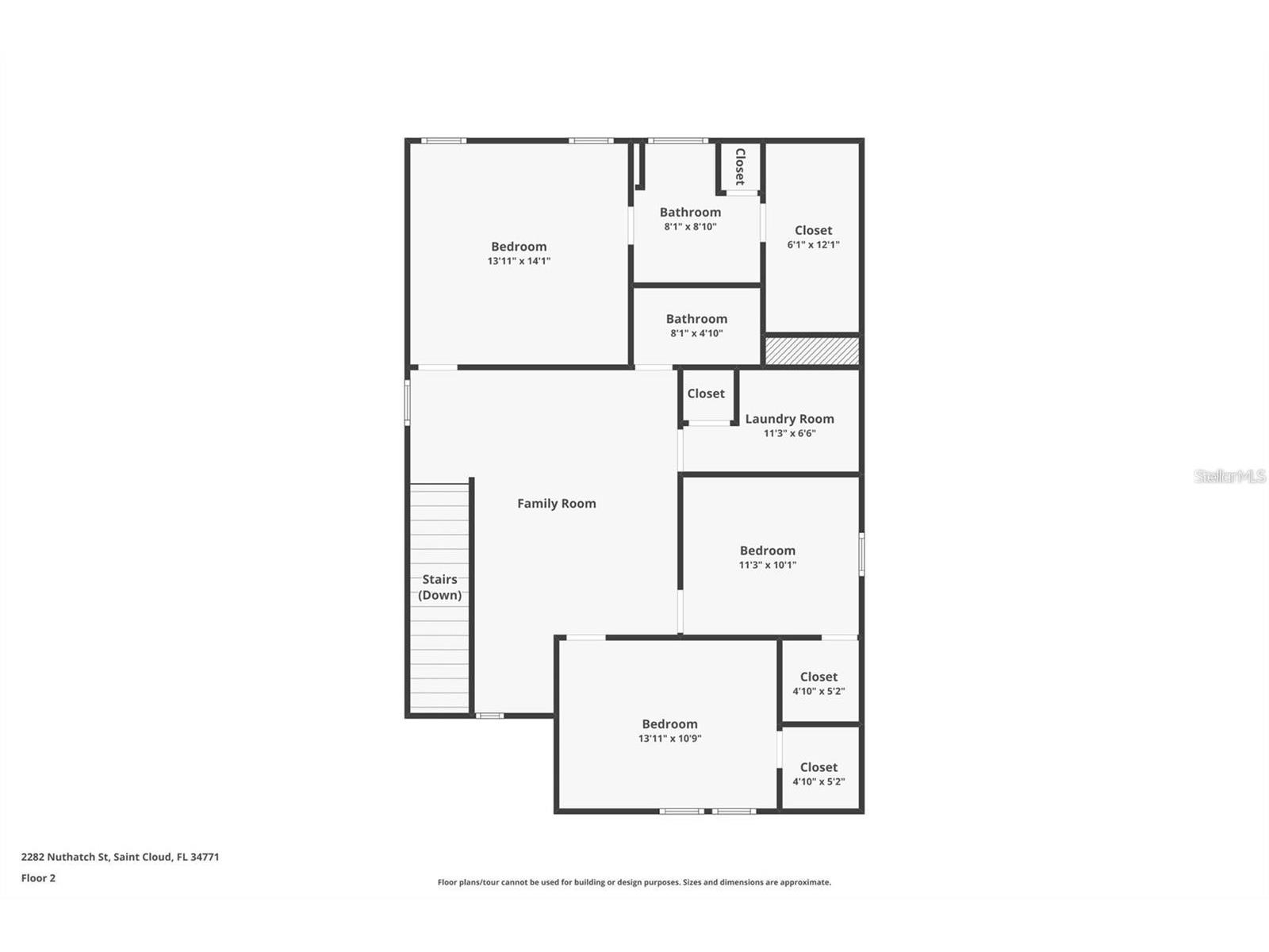
One or more photo(s) has been virtually staged. **You can purchase this home with NO INCOME VERIFICATION NEEDED** Welcome home to 2282 Nuthatch Street, located in the highly desirable Live Oak Lake community in the beautiful and fast-growing city of St. Cloud, Florida. This newer 2020-built home offers the perfect blend of modern design, comfort, privacy, and an unbeatable location—ideal for anyone relocating to the area or looking to settle into a vibrant, welcoming community. This pet-friendly neighborhood is a dream for dog lovers and outdoor enthusiasts, featuring a resort-style community pool, clubhouse, fitness center, park, playground, and scenic walking areas. Best of all, amenities are included in the rent, making everyday living convenient & enjoyable. The home itself sits on a premium lot with no rear neighbors, offering added privacy and serene greenbelt views, all within a fully fenced backyard. Inside, you’ll immediately notice the open floor plan and stylish upgrades, including stainless steel appliances, recessed lighting, and modern light fixtures throughout. The home also features a WATER SOFTNER SYSTEM, providing softer water throughout the property—helping protect plumbing and appliances, reducing mineral buildup, and leaving skin and hair feeling softer while improving cleaning efficiency. This home is also equipped with a UV LIGHT AIR PURIFICATION SYSTEM integrated into the AC, designed to help reduce airborne bacteria, mold, and unwanted odors—providing cleaner, healthier indoor air throughout the home. The beautifully updated kitchen flows seamlessly into a spacious living area and features sliding glass doors that open to the backyard, allowing natural light and stunning greenbelt views to be enjoyed while cooking or entertaining. Step outside to your paved covered porch with a summer kitchen, perfect for hosting guests or relaxing while overlooking the peaceful green space—bringing indoor and outdoor living together effortlessly. The first floor offers an ample storage closet, a convenient bedroom & a full guest bathroom, ideal for visitors. The second floor offers a generous loft that can be used as a media room, home office, play area, or a quiet space to unwind with three additional bedrooms and two full bathrooms, providing plenty of space for families or home office needs. Additional highlights include a spacious laundry room, two-car garage, and thoughtful layout designed for comfort and functionality. Located near top-rated schools, shopping, dining, and entertainment, with easy access to major roadways, this home truly has it all. Whether you’re new to the area or simply looking for a modern home in a safe, beautiful, and amenity-rich community, this property stands out. No rear neighbors, greenbelt views, modern upgrades, resort-style amenities, and the added comfort of a whole-home water softener—this is St. Cloud living at its finest.
Listing Information
Property Type: Residential, Single Family Residence
Status: Active
Bedrooms: 4
Bathrooms: 3
Lot Size: 0.12 Acres
Square Feet: 2,204 sq ft
Year Built: 2020
Garage: Yes
Stories: 2 Story
Construction: Block,Concrete,Stucco
Subdivision: Live Oak Lake Ph 1
Foundation: Slab
County: Osceola
School Information
Elementary: Hickory Tree Elem
Middle: Harmony Middle
High: Harmony High
Room Information
Main Floor
Living Room:
Kitchen:
Upper Floor
Primary Bathroom:
Primary Bedroom:
Bathrooms
Full Baths: 3
Additonal Room Information
Laundry: Washer Hookup, Laundry Room, Electric Dryer Hookup
Interior Features
Appliances: Convection Oven, Electric Water Heater, Water Softener, Range Hood, Cooktop, Dishwasher, Microwave, Refrigerator
Flooring: Carpet,Ceramic Tile
Doors/Windows: Blinds
Additional Interior Features: Ceiling Fan(s), Living/Dining Room, Upper Level Primary, Loft, Kitchen/Family Room Combo, Stone Counters, Open Floorplan
Utilities
Water: Public
Sewer: Public Sewer
Other Utilities: Municipal Utilities
Cooling: Ceiling Fan(s), Central Air
Heating: Central, Electric
Exterior / Lot Features
Attached Garage: Attached Garage
Garage Spaces: 2
Roof: Shingle
Pool: Community, Association
Lot View: Park/Greenbelt
Additional Exterior/Lot Features: Outdoor Kitchen, Lighting, Sprinkler/Irrigation, Patio, Rear Porch, Landscaped, Greenbelt
Out Buildings: Outdoor Kitchen
Community Features
Community Features: Fitness, Pool, Playground, Sidewalks, Clubhouse
Association Amenities: Clubhouse, Playground, Pool, Fitness Center, Park
Homeowners Association: Yes
HOA Dues: $95 / Monthly
Driving Directions
Start at the intersection of U.S. 192 (East Irlo Bronson Memorial Hwy) and Narcoossee Rd (County Rd 15). Head east on U.S. 192 (toward St. Cloud residential areas). Turn left into the Live Oak Lake community entrance onto Bur Oak Blvd. Continue on Bur Oak Blvd you’ll pass through a roundabout. Take the first right exit at the circle to stay on Bur Oak Blvd. Turn right onto Chickadee St at the stop sign. Turn left onto Nuthatch St. 2282 Nuthatch St will be on your left
Financial Considerations
Terms: Cash,Conventional,FHA,VA Loan
Tax/Property ID: 08-26-31-3973-0001-0550
Tax Amount: 6427.92
Tax Year: 2025
A broker reciprocity listing courtesy: NETWORTH REALTY OF ORLANDO, LLC
Based on information provided by Stellar MLS as distributed by the MLS GRID. Information from the Internet Data Exchange is provided exclusively for consumers’ personal, non-commercial use, and such information may not be used for any purpose other than to identify prospective properties consumers may be interested in purchasing. This data is deemed reliable but is not guaranteed to be accurate by Edina Realty, Inc., or by the MLS. Edina Realty, Inc., is not a multiple listing service (MLS), nor does it offer MLS access.
Copyright 2026 Stellar MLS as distributed by the MLS GRID. All Rights Reserved.
Payment Calculator
Interest rate and annual percentage rate (APR) are based on current market conditions, are for informational purposes only, are subject to change without notice and may be subject to pricing add-ons related to property type, loan amount, loan-to-value, credit score and other variables. Estimated closing costs used in the APR calculation are assumed to be paid by the borrower at closing. If the closing costs are financed, the loan, APR and payment amounts will be higher. If the down payment is less than 20%, mortgage insurance may be required and could increase the monthly payment and APR. Contact us for details. Additional loan programs may be available. Accuracy is not guaranteed, and all products may not be available in all borrower's geographical areas and are based on their individual situation. This is not a credit decision or a commitment to lend.
Sales History & Tax Summary for 2282 Nuthatch Street
Sales History
| Date | Price | |
|---|---|---|
| Currently not available. | ||
Tax Summary
| Tax Year | Estimated Market Value | Total Tax |
|---|---|---|
| Currently not available. | ||
Data powered by ATTOM Data Solutions. Copyright© 2026. Information deemed reliable but not guaranteed.
Schools
Schools nearby 2282 Nuthatch Street
| Schools in attendance boundaries | Grades | Distance | Rating |
|---|---|---|---|
| Loading... | |||
| Schools nearby | Grades | Distance | Rating |
|---|---|---|---|
| Loading... | |||
Data powered by ATTOM Data Solutions. Copyright© 2026. Information deemed reliable but not guaranteed.
The schools shown represent both the assigned schools and schools by distance based on local school and district attendance boundaries. Attendance boundaries change based on various factors and proximity does not guarantee enrollment eligibility. Please consult your real estate agent and/or the school district to confirm the schools this property is zoned to attend. Information is deemed reliable but not guaranteed.
SchoolDigger ® Rating
The SchoolDigger rating system is a 1-5 scale with 5 as the highest rating. SchoolDigger ranks schools based on test scores supplied by each state's Department of Education. They calculate an average standard score by normalizing and averaging each school's test scores across all tests and grades.
Coming soon properties will soon be on the market, but are not yet available for showings.