$4,800,000
2300 Scenic Highway N #51 Lake Wales, FL 33898 - MOUNTAIN LAKE
For Sale MLS# P4935296
5 beds 5 baths 6,536 sq ft Single Family
Details for 2300 Scenic Highway N #51
MLS# P4935296
Description for 2300 Scenic Highway N #51, Lake Wales, FL, 33898 - MOUNTAIN LAKE
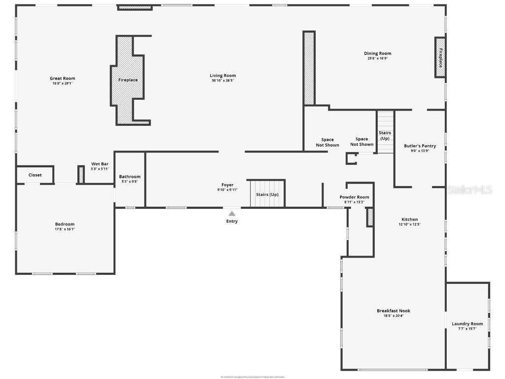
Welcome to Maison sur la Colline, an extraordinary estate home nestled in the historic Mountain Lake community, designed by the renowned architect Charles R. Wait in 1925. This stunning residence has recently undergone a meticulous two and a half year renovation, beautifully merging its rich architectural heritage with contemporary luxury. As you approach the home, you’ll be captivated by the exquisite millwork and intricate detailing that define this stately property. Spanning an impressive 6,536 square feet, the main home features multiple spacious living areas, ideal for grand entertaining and intimate family gatherings alike. Additionally, the charming carriage house, encompassing 528 square feet, provides ample guest accommodations or flexible living space. Upon entering, you are greeted by the grandeur of the living room, where soaring ceilings are complemented by a striking second-floor promenade. The focal point is the remarkable pecky cypress mantle that surrounds the fireplace, showcasing the meticulous craftsmanship that permeates the entire home. The gourmet kitchen is a chef’s dream, outfitted with top-of-the-line appliances and custom finishes that elevate the home’s elegance and functionality. Each of the five bedrooms serves as a serene retreat, thoughtfully designed to blend exquisite details with modern comforts, ensuring a restful haven for all who reside here. The primary suite is a true sanctuary, with a luxurious ensuite bath that exudes spa-like tranquility. Set aside a rolling hill, the property’s 4.03 acres invites outdoor living, offering breathtaking views and peaceful spaces for relaxation and reflection. The meticulously landscaped grounds enhance the sense of serenity, providing the perfect backdrop for gatherings or restful solitude. With its rich history and modern upgrades, this estate presents a rare opportunity to own a piece of architectural artistry in one of the region’s most desirable locations. Don’t miss your chance to experience this exceptional home—schedule your private showing today and discover the perfect blend of classic charm and contemporary luxury.
Listing Information
Property Type: Residential, Single Family Residence
Status: Active
Bedrooms: 5
Bathrooms: 5
Lot Size: 4.03 Acres
Square Feet: 6,536 sq ft
Year Built: 1925
Garage: Yes
Construction: Wood Frame
Subdivision: Mountain Lake Unrec
Foundation: Basement
County: Polk
Room Information
Main Floor
Porch: 13x30
Kitchen: 12x16
Dining Room: 18x22
Foyer: 4x29
Living Room: 26x30
Bedroom 2: 17x17
Family Room: 17x28
Kitchen: 9x13
Upper Floor
Bedroom 5: 12x17
Bedroom 4: 12x17
Bedroom 3: 16x17
Primary Bedroom: 17x18
Lower Floor
Basement: 14x38
Bathrooms
Full Baths: 4
1/2 Baths: 1
Additonal Room Information
Laundry: Laundry Room, Inside
Interior Features
Appliances: Ice Maker, Convection Oven, Range Hood, Electric Water Heater, Built-In Oven, Range, Refrigerator, Trash Compactor, Dishwasher, Dryer, Washer, Exhaust Fan, Wine Refrigerator
Flooring: Ceramic Tile,Tile,Wood
Basement: Unfinished
Doors/Windows: Blinds, Window Treatments, Shutters
Fireplaces: Other, Family Room, Decorative
Additional Interior Features: Split Bedrooms, Wet Bar, Walk-In Closet(s), Attic, Built-in Features, Window Treatments, Crown Molding, Coffered Ceiling(s), Upper Level Primary, High Ceilings, Separate/Formal Dining Room, Wood Cabinets, Separate/Formal Living Room
Utilities
Water: Well, Private
Sewer: Septic Tank
Other Utilities: Cable Connected,Electricity Connected,High Speed Internet Available,Propane,Municipal Utilities,Sewer Connected,Underground Utilities,Water Connected
Cooling: Zoned, Central Air
Heating: Central, Zoned
Exterior / Lot Features
Garage Spaces: 4
Parking Description: Guest, Bath In Garage, Circular Driveway, Covered
Roof: Shingle
Pool: Heated, Salt Water, Community, Gunite
Lot View: Lake,Water
Additional Exterior/Lot Features: French Patio Doors, Rain Gutters, Sprinkler/Irrigation, Lighting, Storage, Balcony, Balcony, Covered, Deck, Patio, Rear Porch, Front Porch, Private Road, Oversized Lot, Historic District, Near Golf Course, Outside City Limits
Out Buildings: Guest House, Storage, Garage Apartment, Kennel/Dog Run
Waterfront Details
Standard Water Body: MOUNTAIN LAKE
Community Features
Community Features: Recreation Area, Golf Carts OK, Park, Street Lights, Waterfront, Golf, Pool, Tennis Court(s)
HOA Dues Include: Taxes, Security, Association Management, Common Areas, Maintenance Grounds, Road Maintenance
Driving Directions
From 27 Mountain Cut, turn onto Scenic Hwy, Gate on the left.
Financial Considerations
Terms: Cash,Conventional,USDA Loan,VA Loan
Tax/Property ID: 27-29-22-866300-008060
Tax Amount: 15506.96
Tax Year: 2024
A broker reciprocity listing courtesy: MOUNTAIN LAKE CORPORATION
Based on information provided by Stellar MLS as distributed by the MLS GRID. Information from the Internet Data Exchange is provided exclusively for consumers’ personal, non-commercial use, and such information may not be used for any purpose other than to identify prospective properties consumers may be interested in purchasing. This data is deemed reliable but is not guaranteed to be accurate by Edina Realty, Inc., or by the MLS. Edina Realty, Inc., is not a multiple listing service (MLS), nor does it offer MLS access.
Copyright 2025 Stellar MLS as distributed by the MLS GRID. All Rights Reserved.
Payment Calculator
Interest rate and annual percentage rate (APR) are based on current market conditions, are for informational purposes only, are subject to change without notice and may be subject to pricing add-ons related to property type, loan amount, loan-to-value, credit score and other variables. Estimated closing costs used in the APR calculation are assumed to be paid by the borrower at closing. If the closing costs are financed, the loan, APR and payment amounts will be higher. If the down payment is less than 20%, mortgage insurance may be required and could increase the monthly payment and APR. Contact us for details. Additional loan programs may be available. Accuracy is not guaranteed, and all products may not be available in all borrower's geographical areas and are based on their individual situation. This is not a credit decision or a commitment to lend.
Sales History & Tax Summary for 2300 Scenic Highway N #51
Sales History
| Date | Price | Change |
|---|---|---|
| Currently not available. | ||
Tax Summary
| Tax Year | Estimated Market Value | Total Tax |
|---|---|---|
| Currently not available. | ||
Data powered by ATTOM Data Solutions. Copyright© 2025. Information deemed reliable but not guaranteed.
Schools
Schools nearby 2300 Scenic Highway N #51
| Schools in attendance boundaries | Grades | Distance | Rating |
|---|---|---|---|
| Loading... | |||
| Schools nearby | Grades | Distance | Rating |
|---|---|---|---|
| Loading... | |||
Data powered by ATTOM Data Solutions. Copyright© 2025. Information deemed reliable but not guaranteed.
The schools shown represent both the assigned schools and schools by distance based on local school and district attendance boundaries. Attendance boundaries change based on various factors and proximity does not guarantee enrollment eligibility. Please consult your real estate agent and/or the school district to confirm the schools this property is zoned to attend. Information is deemed reliable but not guaranteed.
SchoolDigger ® Rating
The SchoolDigger rating system is a 1-5 scale with 5 as the highest rating. SchoolDigger ranks schools based on test scores supplied by each state's Department of Education. They calculate an average standard score by normalizing and averaging each school's test scores across all tests and grades.
Coming soon properties will soon be on the market, but are not yet available for showings.