$609,900
Off-Market Date: 11/04/20252313 W Spruce Street Tampa, FL 33607
Pending MLS# TB8405115
4 beds 4 baths 1,974 sq ft Single Family
Details for 2313 W Spruce Street
MLS# TB8405115
Description for 2313 W Spruce Street, Tampa, FL, 33607
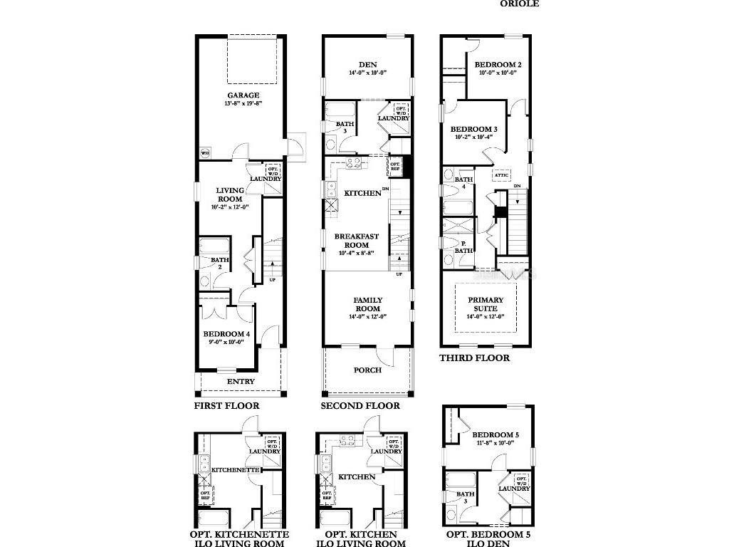
Under Construction. 2025 NEW DOMAIN HOMES Construction qualifies for NO DOWN PAYMENT program and closing costs incentive with the use of our preferred lender. DOWNTOWN TAMPA VIEWS in the heart of West Tampa! Welcome to the "Oriole" – Domain Homes' newest stand-alone townhouse, offering exceptional value with no HOA in the heart of West Tampa! This stunning 3-story, drive-under home boasts 4 bedrooms, 4 full bathrooms, and a versatile lower-level unit with endless income-generating opportunity or multi-generational living. Unbeatable Location! Minutes from Armature Works and Downtown Tampa. Conveniently situated between Armenia Ave I-275 exit, Columbus St/Cass St bridges, and International Plaza/Tampa International Airport. Centrally located to enjoy West Tampa’s growth, near the highly anticipated Rome Yard project, as well as the new Riverside Publix. Whether you're looking for an income-producing property, a primary residence with rental flexibility, or a modern home in an unbeatable location, this brand-new home checks all the boxes. Plus, enjoy the benefits of new construction with IMPACT WINDOWS, QUARTZ countertops, and a 1-2-10 year warranty and third-party energy efficiency certification. Contact one of our New Home Specialists now to schedule a tour.
Listing Information
Property Type: Residential, Single Family Residence
Status: Pending
Bedrooms: 4
Bathrooms: 4
Lot Size: 0.12 Acres
Square Feet: 1,974 sq ft
Year Built: 2025
Garage: Yes
Construction: Block,Stucco,Wood Frame
Construction Display: New Construction
Subdivision: West Tampa
Builder: Domain Homes. Inc.
Foundation: Slab
County: Hillsborough
Construction Status: Under Construction
School Information
Elementary: Tampa Bay Boluevard-Hb
Middle: Stewart-Hb
High: Blake-Hb
Room Information
Main Floor
Living Room: 12x10
Bedroom 4: 10x9
Upper Floor
Den: 10x14
Bedroom 2: 10x10
Bedroom 3: 10x10
Primary Bedroom: 12x14
Living Room: 12x14
Dining Room: 9x10
Kitchen: 9x10
Bathrooms
Full Baths: 4
Additonal Room Information
Laundry: Inside, Washer Hookup, Laundry Room, Upper Level, Electric Dryer Hookup
Interior Features
Appliances: Electric Water Heater, Range, Dishwasher, Disposal, Microwave
Flooring: Carpet,Ceramic Tile
Doors/Windows: Blinds, ENERGY STAR Qualified Windows, Storm Window(s)
Additional Interior Features: Eat-In Kitchen, Walk-In Closet(s), Open Floorplan, Kitchen/Family Room Combo, Upper Level Primary, Built-in Features
Utilities
Water: Public
Sewer: Public Sewer
Other Utilities: Cable Available,Electricity Connected,High Speed Internet Available,Municipal Utilities,Water Connected
Cooling: Central Air
Heating: Central
Exterior / Lot Features
Attached Garage: Attached Garage
Garage Spaces: 1
Parking Description: Garage Faces Rear
Roof: Shingle
Lot Dimensions: 25X95
Additional Exterior/Lot Features: Sprinkler/Irrigation, Rain Gutters, In-Wall Pest Control System, Lighting, Covered, Patio, Landscaped, City Lot
Community Features
Community Features: Sidewalks
Driving Directions
Head south on US-92 W (Dale Mabry Hwy) toward FL-161 W. Use the left 2 lanes to turn left onto W Columbus Dr. Turn right onto N Armenia Ave. Turn left onto W Spruce Street and the destination will be on the left.
Financial Considerations
Terms: Cash,Conventional,FHA,VA Loan
Tax/Property ID: A-14-29-18-4PQ-000039-00022.1
Tax Amount: 4449.74
Tax Year: 2024
A broker reciprocity listing courtesy: DOMAIN REALTY LLC
Based on information provided by Stellar MLS as distributed by the MLS GRID. Information from the Internet Data Exchange is provided exclusively for consumers’ personal, non-commercial use, and such information may not be used for any purpose other than to identify prospective properties consumers may be interested in purchasing. This data is deemed reliable but is not guaranteed to be accurate by Edina Realty, Inc., or by the MLS. Edina Realty, Inc., is not a multiple listing service (MLS), nor does it offer MLS access.
Copyright 2026 Stellar MLS as distributed by the MLS GRID. All Rights Reserved.
Sales History & Tax Summary for 2313 W Spruce Street
Sales History
| Date | Price | |
|---|---|---|
| Currently not available. | ||
Tax Summary
| Tax Year | Estimated Market Value | Total Tax |
|---|---|---|
| Currently not available. | ||
Data powered by ATTOM Data Solutions. Copyright© 2026. Information deemed reliable but not guaranteed.
Schools
Schools nearby 2313 W Spruce Street
| Schools in attendance boundaries | Grades | Distance | Rating |
|---|---|---|---|
| Loading... | |||
| Schools nearby | Grades | Distance | Rating |
|---|---|---|---|
| Loading... | |||
Data powered by ATTOM Data Solutions. Copyright© 2026. Information deemed reliable but not guaranteed.
The schools shown represent both the assigned schools and schools by distance based on local school and district attendance boundaries. Attendance boundaries change based on various factors and proximity does not guarantee enrollment eligibility. Please consult your real estate agent and/or the school district to confirm the schools this property is zoned to attend. Information is deemed reliable but not guaranteed.
SchoolDigger ® Rating
The SchoolDigger rating system is a 1-5 scale with 5 as the highest rating. SchoolDigger ranks schools based on test scores supplied by each state's Department of Education. They calculate an average standard score by normalizing and averaging each school's test scores across all tests and grades.
Coming soon properties will soon be on the market, but are not yet available for showings.