2315 E 148th Avenue Lutz, FL 33549
For Sale MLS# TB8434937
4 beds 3 baths 2,837 sq ft Single Family
Details for 2315 E 148th Avenue
MLS# TB8434937
Description for 2315 E 148th Avenue, Lutz, FL, 33549
JUST REDUCED by $25,000!! MOTIVATED SELLER!! Welcome to this 2,873 square foot family powerhouse, offering four spacious bedrooms and three full bathrooms, perfectly positioned near Tampa's major medical and educational centers. Inside, the abundant square footage is elevated by rich woodwork and custom details throughout. The kitchen and main areas open to the amazing pool patio, turning everyday life into a resort experience. Beyond the main house, the detached Oversized Two-Car Garage presents a prime chance to create an Accessory Dwelling Unit (ADU), perfect for an in-law-apartment or long-term rental income. Say goodbye to parking woes! The property features two separate driveways, a standard carport, plus a dedicated large carport for RV or boat storage. Its prime location offers a rapid commute to USF, Moffitt, Florida Hospital, and I-275, placing you at the heart of convenience. This home also features upgrades such as a new Plumbing 2022, new Hot Water Heater 2022, Roof 2020, new A/C 2021, a whole house surge protections system, and extensive plantings throughout the yard including Kumquat, Loquat, Papaya, Blueberries, Key Lime, Barbados Cherry Tree, Carambola (Starfruit), Mulberry, Peaches, and Much, Much more! Call today to explore the potential!
Listing Information
Property Type: Residential, Single Family Residence
Status: Active
Bedrooms: 4
Bathrooms: 3
Lot Size: 0.33 Acres
Square Feet: 2,837 sq ft
Year Built: 1973
Garage: Yes
Stories: 2 Story
Construction: Block,Stucco,Wood Frame
Construction Display: New Construction
Subdivision: Clewell Heights
Foundation: Crawlspace,Slab
County: Hillsborough
Construction Status: New Construction
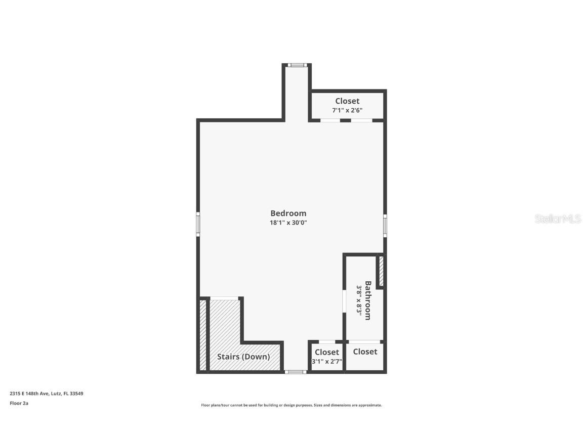
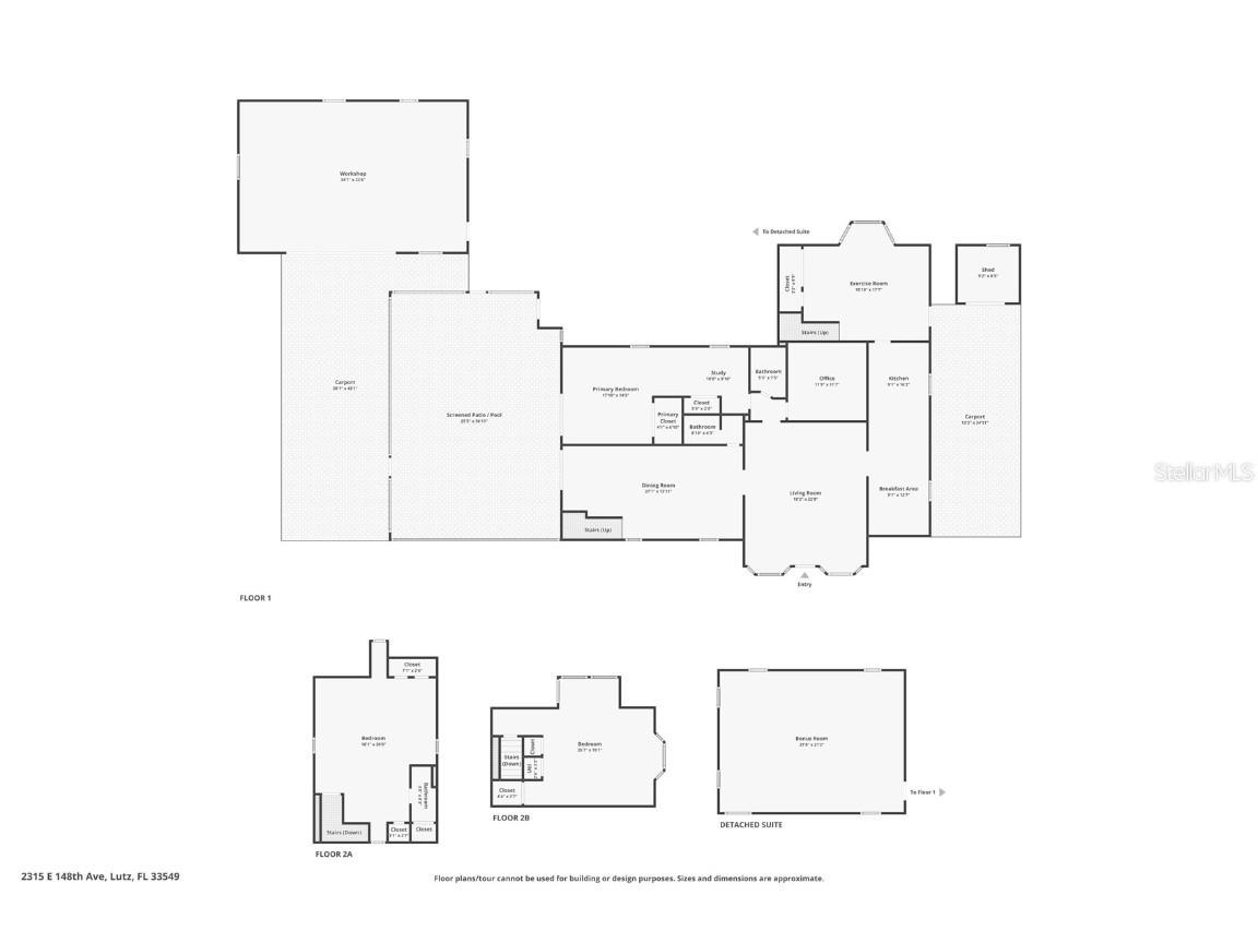
Room Information
Main Floor
Bedroom 4:
Kitchen: 16.2x9
Living Room: 22.8x18.2
Dining Room: 13.11x27.1
Den: 9.1x10
Primary Bedroom: 14.5x17.1
Bonus Room: 17.7x18.1
Kitchen: 12.7x9.1
Upper Floor
Bedroom 3:
Primary Bedroom: 30x18.1
Loft: 21.2x27.8
Bathrooms
Full Baths: 3
Additonal Room Information
Laundry: Inside
Interior Features
Appliances: Range Hood, Dishwasher, Dryer, Microwave, Range, Refrigerator, Washer
Flooring: Carpet,Concrete,Laminate
Basement: Crawl Space
Additional Interior Features: Wood Cabinets, Split Bedrooms, Built-in Features, Ceiling Fan(s), Eat-In Kitchen
Utilities
Sewer: Septic Tank
Other Utilities: Electricity Connected,High Speed Internet Available,Water Connected,Water Not Available
Cooling: Central Air, Ceiling Fan(s), Wall/Window Unit(s)
Heating: Electric, Central
Exterior / Lot Features
Garage Spaces: 2
Parking Description: Off Street, Covered, driveway, Guest, Oversized, RV Carport, RV Access/Parking
Roof: Shingle
Pool: Fiberglass, In Ground, Pool Sweep
Lot View: Garden,Pool
Fencing: Chain Link
Additional Exterior/Lot Features: Other, Garden, Side Porch, Screened, Landscaped
Driving Directions
For the Best approach- Take Livingston Ave off of Bearss and then left onto E 148th. Home is on the left-hand side.
Financial Considerations
Terms: Cash,Conventional
Tax/Property ID: U-05-28-19-1FO-000000-00014.0
Tax Amount: 5995
Tax Year: 2024
A broker reciprocity listing courtesy: WORTH CLARK REALTY
Based on information provided by Stellar MLS as distributed by the MLS GRID. Information from the Internet Data Exchange is provided exclusively for consumers’ personal, non-commercial use, and such information may not be used for any purpose other than to identify prospective properties consumers may be interested in purchasing. This data is deemed reliable but is not guaranteed to be accurate by Edina Realty, Inc., or by the MLS. Edina Realty, Inc., is not a multiple listing service (MLS), nor does it offer MLS access.
Copyright 2026 Stellar MLS as distributed by the MLS GRID. All Rights Reserved.
Payment Calculator
Interest rate and annual percentage rate (APR) are based on current market conditions, are for informational purposes only, are subject to change without notice and may be subject to pricing add-ons related to property type, loan amount, loan-to-value, credit score and other variables. Estimated closing costs used in the APR calculation are assumed to be paid by the borrower at closing. If the closing costs are financed, the loan, APR and payment amounts will be higher. If the down payment is less than 20%, mortgage insurance may be required and could increase the monthly payment and APR. Contact us for details. Additional loan programs may be available. Accuracy is not guaranteed, and all products may not be available in all borrower's geographical areas and are based on their individual situation. This is not a credit decision or a commitment to lend.
Sales History & Tax Summary for 2315 E 148th Avenue
Sales History
| Date | Price | Change |
|---|---|---|
| Currently not available. | ||
Tax Summary
| Tax Year | Estimated Market Value | Total Tax |
|---|---|---|
| Currently not available. | ||
Data powered by ATTOM Data Solutions. Copyright© 2026. Information deemed reliable but not guaranteed.
Schools
Schools nearby 2315 E 148th Avenue
| Schools in attendance boundaries | Grades | Distance | Rating |
|---|---|---|---|
| Loading... | |||
| Schools nearby | Grades | Distance | Rating |
|---|---|---|---|
| Loading... | |||
Data powered by ATTOM Data Solutions. Copyright© 2026. Information deemed reliable but not guaranteed.
The schools shown represent both the assigned schools and schools by distance based on local school and district attendance boundaries. Attendance boundaries change based on various factors and proximity does not guarantee enrollment eligibility. Please consult your real estate agent and/or the school district to confirm the schools this property is zoned to attend. Information is deemed reliable but not guaranteed.
SchoolDigger ® Rating
The SchoolDigger rating system is a 1-5 scale with 5 as the highest rating. SchoolDigger ranks schools based on test scores supplied by each state's Department of Education. They calculate an average standard score by normalizing and averaging each school's test scores across all tests and grades.
Coming soon properties will soon be on the market, but are not yet available for showings.