$154,900
2339 Glenmore Circle Sun City Center, FL 33573
For Sale MLS# TB8438490
2 beds 2 baths 960 sq ft Condo
Details for 2339 Glenmore Circle
MLS# TB8438490
Description for 2339 Glenmore Circle, Sun City Center, FL, 33573
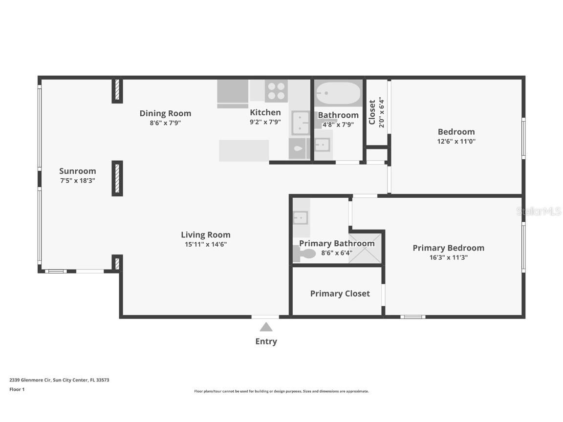
Your Waterfront Oasis Awaits in Kings Point! Imagine waking up to sparkling water views every day in this lovely 2-bedroom, 2-bathroom waterfront condo nestled in the highly sought-after, active 55+ community of Kings Point in Sun City Center. This charming condo offers the perfect blend of comfort and convenience. You'll appreciate the ease of a covered carport right outside your door, and a welcoming, screened-in side porch provides a pleasant entryway. Inside, the common areas feature low-maintenance laminate flooring, with tile in the kitchen and cozy carpet in the bedrooms. The kitchen is the heart of the home, offering an open flow with views into the dining and living rooms—perfect for entertaining! The dining room also features attractive built-in cabinets for extra storage and display. The primary bedroom is a true retreat with a private en suite bathroom featuring a walk-in shower. The second bedroom is nicely sized and sits conveniently next to the second full bathroom, which includes a tub. The real highlight is the Florida room across the back of the condo. It's the ideal spot to relax, sip your coffee, and soak in the beautiful water views that make living here so special. You’ll love the gated community of Kings Point, which has amazing facilities, pools, clubs and events just waiting for you to enjoy. Located between Sarasota and Tampa, this home is perfectly positioned for a convenient ride to airports, great shopping, dining, and professional entertainment. With easy access to award-winning, sandy beaches, you’ll experience the best of all worlds—without the stress of big city life. Leave the hustle behind and embrace a new chapter in Sun City Center, Florida, the state's top-ranked and most affordable 55+ retirement community.
Listing Information
Property Type: Residential, Condominium
Status: Active
Bedrooms: 2
Bathrooms: 2
Lot Size: 0.02 Acres
Square Feet: 960 sq ft
Year Built: 1981
Stories: 1 Story
Construction: Block,Stucco
Subdivision: Gloucester M Condo
Foundation: Slab
County: Hillsborough
Room Information
Main Floor
Florida Room: 18.3x7.5
Dining Room: 7.9x8.6
Bedroom 2: 11x12.6
Kitchen: 7.9x9.2
Living Room: 14.6x15.11
Primary Bedroom: 11.3x16.3
Bathrooms
Full Baths: 2
Interior Features
Appliances: Range, Refrigerator, Microwave, Dishwasher
Flooring: Carpet,Ceramic Tile,Laminate
Accessibility: Wheelchair Access
Additional Interior Features: Built-in Features, Walk-In Closet(s), Ceiling Fan(s), Eat-In Kitchen, High Ceilings, Living/Dining Room, Open Floorplan, Kitchen/Family Room Combo, Solid Surface Counters, Wood Cabinets
Utilities
Water: Public
Sewer: Public Sewer
Other Utilities: Cable Available,Electricity Available
Cooling: Ceiling Fan(s), Central Air
Heating: Central
Exterior / Lot Features
Roof: Shingle
Pool: Community
Additional Exterior/Lot Features: Side Porch, Covered, Screened, Flat, Level, Landscaped, City Lot, Buyer Approval Required, Outside City Limits
Community Features
Community Features: Community Mailbox, Fitness, Golf Carts OK, Gated, Restaurant, Sidewalks, Clubhouse, Golf, Handicap Access, Pool, Tennis Court(s)
Security Features: Gated Community, Gated with Guard
Association Amenities: Cable TV, Tennis Court(s), Recreation Facilities, Clubhouse, Golf Course, Pickleball, Shuffleboard Court, Maintenance Grounds, Gated
HOA Dues Include: Road Maintenance, Pest Control, Reserve Fund, Maintenance Structure, Pool(s), Security, Sewer, Water, Recreation Facilities, Internet, Cable TV
Driving Directions
Heading East on College Ave towards Sun City Center, right onto Kings Blvd, right Gloucester Blvd, left on Glenmore Cir, 100ft left onto Glenmore Cir, home is on the left.
Financial Considerations
Terms: Cash,Conventional
Tax/Property ID: U-11-32-19-1W1-000000-00301.0
Tax Amount: 513.74
Tax Year: 2024
A broker reciprocity listing courtesy: KELLER WILLIAMS SOUTH SHORE
Based on information provided by Stellar MLS as distributed by the MLS GRID. Information from the Internet Data Exchange is provided exclusively for consumers’ personal, non-commercial use, and such information may not be used for any purpose other than to identify prospective properties consumers may be interested in purchasing. This data is deemed reliable but is not guaranteed to be accurate by Edina Realty, Inc., or by the MLS. Edina Realty, Inc., is not a multiple listing service (MLS), nor does it offer MLS access.
Copyright 2026 Stellar MLS as distributed by the MLS GRID. All Rights Reserved.
Payment Calculator
Interest rate and annual percentage rate (APR) are based on current market conditions, are for informational purposes only, are subject to change without notice and may be subject to pricing add-ons related to property type, loan amount, loan-to-value, credit score and other variables. Estimated closing costs used in the APR calculation are assumed to be paid by the borrower at closing. If the closing costs are financed, the loan, APR and payment amounts will be higher. If the down payment is less than 20%, mortgage insurance may be required and could increase the monthly payment and APR. Contact us for details. Additional loan programs may be available. Accuracy is not guaranteed, and all products may not be available in all borrower's geographical areas and are based on their individual situation. This is not a credit decision or a commitment to lend.
Sales History & Tax Summary for 2339 Glenmore Circle
Sales History
| Date | Price | |
|---|---|---|
| Currently not available. | ||
Tax Summary
| Tax Year | Estimated Market Value | Total Tax |
|---|---|---|
| Currently not available. | ||
Data powered by ATTOM Data Solutions. Copyright© 2026. Information deemed reliable but not guaranteed.
Schools
Schools nearby 2339 Glenmore Circle
| Schools in attendance boundaries | Grades | Distance | Rating |
|---|---|---|---|
| Loading... | |||
| Schools nearby | Grades | Distance | Rating |
|---|---|---|---|
| Loading... | |||
Data powered by ATTOM Data Solutions. Copyright© 2026. Information deemed reliable but not guaranteed.
The schools shown represent both the assigned schools and schools by distance based on local school and district attendance boundaries. Attendance boundaries change based on various factors and proximity does not guarantee enrollment eligibility. Please consult your real estate agent and/or the school district to confirm the schools this property is zoned to attend. Information is deemed reliable but not guaranteed.
SchoolDigger ® Rating
The SchoolDigger rating system is a 1-5 scale with 5 as the highest rating. SchoolDigger ranks schools based on test scores supplied by each state's Department of Education. They calculate an average standard score by normalizing and averaging each school's test scores across all tests and grades.
Coming soon properties will soon be on the market, but are not yet available for showings.