234 33rd Avenue N Saint Cloud, MN 56303
For Sale MLS# 6796944
3 beds 2 baths 1,607 sq ft Single Family
Details for 234 33rd Avenue N
MLS# 6796944
Description for 234 33rd Avenue N, Saint Cloud, MN, 56303
Welcome home to this charming and well-maintained 3-bedroom, 2-bath property in St. Cloud with 1,607 finished square feet and a comfortable layout that blends character with smart updates. The major improvements are already done for you with the roof and siding only about 1 year old, plus updated mechanicals including the furnace, central air conditioner, and water heater, offering peace of mind for years to come. Inside, you’ll find inviting living spaces, functional bedrooms, and flexibility for a home office, hobby space, or extra storage. Outside, enjoy a yard with room to relax, garden, or entertain, all in a convenient location near shopping, dining, parks, and main commuter routes. Schedule your showing today!
Listing Information
Property Type: Residential, Single Family
Status: Active
Bedrooms: 3
Bathrooms: 2
Lot Size: 0.23 Acres
Square Feet: 1,607 sq ft
Year Built: 1948
Foundation: 1,048 sq ft
Garage: Yes
Stories: 1 Story
Subdivision: Rosedale Park Add
County: Stearns
Days On Market: 144
Construction Status: Previously Owned
School Information
District: 742 - St. Cloud
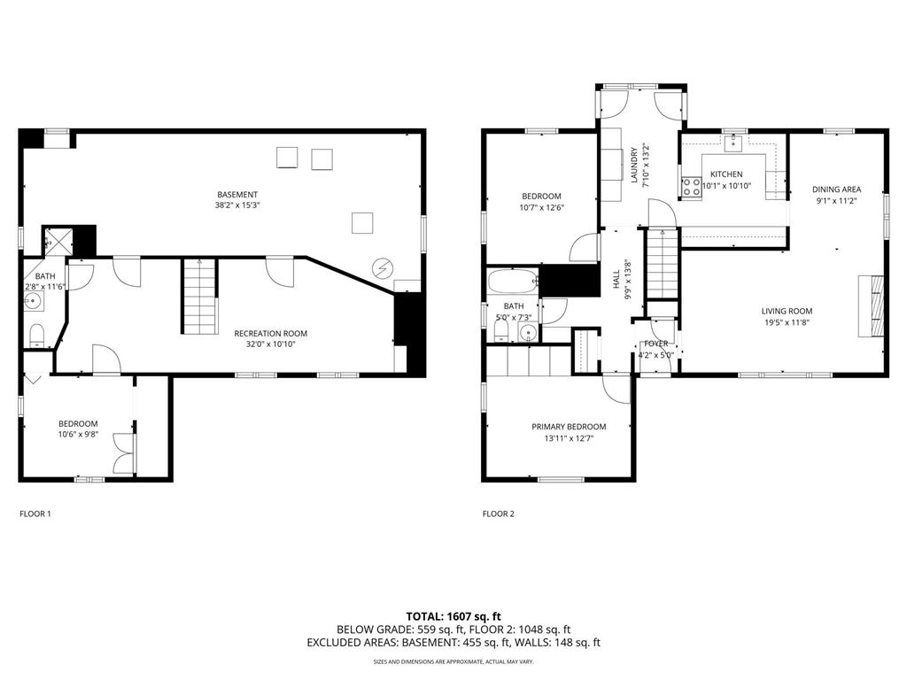
Room Information
Main Floor
Bathroom: 5x7.3
Bedroom 1: 13.11x12.7
Bedroom 2: 10.7x12.6
Dining Room: 9.1x 11.2
Kitchen: 10.1x10.10
Living Room: 19.5x11.8
Lower Floor
Bedroom 3: 10.6x9.8
Recreation Room: 30x10.10
Bathrooms
Full Baths: 1
3/4 Baths: 1
Additonal Room Information
Laundry: Lower Level
Bath Description: 3/4 Basement,Main Floor Full Bath
Interior Features
Square Footage above: 1,048 sq ft
Square Footage below: 559 sq ft
Appliances: Washer, Range, Refrigerator, Dishwasher, Dryer
Basement: Concrete Block, Partial Finished
Fireplaces: 1, Gas Burning
Additional Interior Features: Hardwood Floors, Main Floor Primary
Utilities
Water: City Water/Connected
Sewer: City Sewer/Connected
Cooling: Central
Heating: Natural Gas, Forced Air
Exterior / Lot Features
Garage Spaces: 2
Parking Description: Detached Garage, Garage Sq Ft - 480.0
Exterior: Vinyl
Roof: Age 8 Years or Less, Asphalt Shingles
Lot Dimensions: 126x80
Zoning: Residential-Single Family
Fencing: Wood
Additional Exterior/Lot Features: Deck, Tree Coverage - Light, Road Frontage - City
Driving Directions
From downtown St. Cloud, head N on 9th Ave. Turn left onto 2nd St N, then right onto 33rd Ave N. Continue straight, 234 33rd Ave N is on the left.
Financial Considerations
Tax/Property ID: 82505320000
Tax Amount: 2186
Tax Year: 2024
HomeStead Description: Homesteaded
A broker reciprocity listing courtesy: Pemberton RE
The data relating to real estate for sale on this web site comes in part from the Broker Reciprocity℠ Program of the Regional Multiple Listing Service of Minnesota, Inc. Real estate listings held by brokerage firms other than Edina Realty, Inc. are marked with the Broker Reciprocity℠ logo or the Broker Reciprocity℠ thumbnail and detailed information about them includes the name of the listing brokers. Edina Realty, Inc. is not a Multiple Listing Service (MLS), nor does it offer MLS access. This website is a service of Edina Realty, Inc., a broker Participant of the Regional Multiple Listing Service of Minnesota, Inc. IDX information is provided exclusively for consumers personal, non-commercial use and may not be used for any purpose other than to identify prospective properties consumers may be interested in purchasing. Open House information is subject to change without notice. Information deemed reliable but not guaranteed.
Copyright 2026 Regional Multiple Listing Service of Minnesota, Inc. All Rights Reserved.
Payment Calculator
Interest rate and annual percentage rate (APR) are based on current market conditions, are for informational purposes only, are subject to change without notice and may be subject to pricing add-ons related to property type, loan amount, loan-to-value, credit score and other variables. Estimated closing costs used in the APR calculation are assumed to be paid by the borrower at closing. If the closing costs are financed, the loan, APR and payment amounts will be higher. If the down payment is less than 20%, mortgage insurance may be required and could increase the monthly payment and APR. Contact us for details. Additional loan programs may be available. Accuracy is not guaranteed, and all products may not be available in all borrower's geographical areas and are based on their individual situation. This is not a credit decision or a commitment to lend.
Sales History & Tax Summary for 234 33rd Avenue N
Sales History
| Date | Price | |
|---|---|---|
| Currently not available. | ||
Tax Summary
| Tax Year | Estimated Market Value | Total Tax |
|---|---|---|
| Currently not available. | ||
Data powered by ATTOM Data Solutions. Copyright© 2026. Information deemed reliable but not guaranteed.
Schools
Schools nearby 234 33rd Avenue N
| Schools in attendance boundaries | Grades | Distance | Rating |
|---|---|---|---|
| Loading... | |||
| Schools nearby | Grades | Distance | Rating |
|---|---|---|---|
| Loading... | |||
Data powered by ATTOM Data Solutions. Copyright© 2026. Information deemed reliable but not guaranteed.
The schools shown represent both the assigned schools and schools by distance based on local school and district attendance boundaries. Attendance boundaries change based on various factors and proximity does not guarantee enrollment eligibility. Please consult your real estate agent and/or the school district to confirm the schools this property is zoned to attend. Information is deemed reliable but not guaranteed.
SchoolDigger ® Rating
The SchoolDigger rating system is a 1-5 scale with 5 as the highest rating. SchoolDigger ranks schools based on test scores supplied by each state's Department of Education. They calculate an average standard score by normalizing and averaging each school's test scores across all tests and grades.
Coming soon properties will soon be on the market, but are not yet available for showings.