2340 Valencia Drive Sarasota, FL 34239
Pending MLS# A4665584
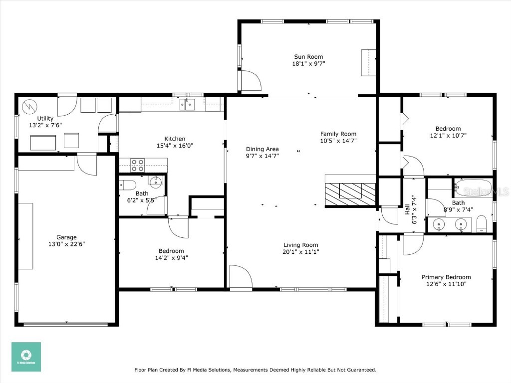
3 beds 2 baths 1,574 sq ft Single Family
Details for 2340 Valencia Drive
MLS# A4665584
Description for 2340 Valencia Drive, Sarasota, FL, 34239
Under contract-accepting backup offers. Unlock the possibilities with this 3-bedroom, 2-bath fixer-upper in Sarasota’s sought-after Southgate neighborhood. Featuring a new roof (2020) and new AC (2021), the big-ticket updates are already done — leaving plenty of room to customize the rest to your taste or investment goals. With a circle driveway, 1-car garage, and spacious lot, this property is ready for a fresh vision. Just minutes from Siesta Key Beach, downtown Sarasota, and top schools, this is an excellent opportunity for investors or buyers looking to create instant equity. Sight-unseen and wholesale offers will not be entertained by the sellers.
Listing Information
Property Type: Residential, Single Family Residence
Status: Pending
Bedrooms: 3
Bathrooms: 2
Lot Size: 0.25 Acres
Square Feet: 1,574 sq ft
Year Built: 1955
Garage: Yes
Stories: 1 Story
Construction: Block,Stucco
Subdivision: South Gate
Foundation: Slab
County: Sarasota
School Information
Elementary: Southside Elementary
Middle: Brookside Middle
High: Sarasota High
Room Information
Main Floor
Primary Bedroom: 12x13
Living Room: 15x15
Kitchen: 12x12
Bathrooms
Full Baths: 2
Additonal Room Information
Laundry: Inside, Laundry Room
Interior Features
Appliances: Cooktop, Dishwasher, Disposal, Microwave, Range, Refrigerator
Flooring: Carpet,Ceramic Tile
Fireplaces: Family Room, Living Room
Additional Interior Features: Ceiling Fan(s)
Utilities
Water: Public
Sewer: Public Sewer
Other Utilities: Cable Available,Electricity Connected
Cooling: Central Air, Ceiling Fan(s)
Heating: Central
Exterior / Lot Features
Attached Garage: Attached Garage
Garage Spaces: 1
Roof: Shingle
Additional Exterior/Lot Features: Dog Run
Community Features
Community Features: Sidewalks
Driving Directions
Webber to South on shade Ave, Property will be on the right hand corner of Shade and Valencia Dr
Financial Considerations
Terms: Cash,Conventional
Tax/Property ID: 0057060018
Tax Amount: 2389
Tax Year: 2024
A broker reciprocity listing courtesy: HARRY ROBBINS ASSOC INC
Based on information provided by Stellar MLS as distributed by the MLS GRID. Information from the Internet Data Exchange is provided exclusively for consumers’ personal, non-commercial use, and such information may not be used for any purpose other than to identify prospective properties consumers may be interested in purchasing. This data is deemed reliable but is not guaranteed to be accurate by Edina Realty, Inc., or by the MLS. Edina Realty, Inc., is not a multiple listing service (MLS), nor does it offer MLS access.
Copyright 2026 Stellar MLS as distributed by the MLS GRID. All Rights Reserved.
Sales History & Tax Summary for 2340 Valencia Drive
Sales History
| Date | Price | Change |
|---|---|---|
| Currently not available. | ||
Tax Summary
| Tax Year | Estimated Market Value | Total Tax |
|---|---|---|
| Currently not available. | ||
Data powered by ATTOM Data Solutions. Copyright© 2026. Information deemed reliable but not guaranteed.
Schools
Schools nearby 2340 Valencia Drive
| Schools in attendance boundaries | Grades | Distance | Rating |
|---|---|---|---|
| Loading... | |||
| Schools nearby | Grades | Distance | Rating |
|---|---|---|---|
| Loading... | |||
Data powered by ATTOM Data Solutions. Copyright© 2026. Information deemed reliable but not guaranteed.
The schools shown represent both the assigned schools and schools by distance based on local school and district attendance boundaries. Attendance boundaries change based on various factors and proximity does not guarantee enrollment eligibility. Please consult your real estate agent and/or the school district to confirm the schools this property is zoned to attend. Information is deemed reliable but not guaranteed.
SchoolDigger ® Rating
The SchoolDigger rating system is a 1-5 scale with 5 as the highest rating. SchoolDigger ranks schools based on test scores supplied by each state's Department of Education. They calculate an average standard score by normalizing and averaging each school's test scores across all tests and grades.
Coming soon properties will soon be on the market, but are not yet available for showings.