236 Famagusta Drive Davenport, FL 33896
For Sale MLS# S5129997
3 beds 3 baths 1,778 sq ft Townhouse/Twinhome
Details for 236 Famagusta Drive
MLS# S5129997
Description for 236 Famagusta Drive, Davenport, FL, 33896
Imagine coming home to a place that feels like a vacation every single day. Located just minutes from Disney, this fully furnished, turnkey townhome in the boutique Azur Resort delivers true resort-style living in one of Central Florida’s most exciting new communities. Built in 2024, this modern 3-bedroom, 2.5-bath townhome offers over 1,700 square feet of bright, stylish living space—and it includes something incredibly rare for the community: a private carport. With only 10 units in the entire resort offering this upgrade, it’s a standout feature whether you’re living here full-time or welcoming guests. Inside, the open floor plan feels fresh and inviting, with luxury vinyl plank flooring throughout both the main living areas and bedrooms. The design is clean, modern, and easy to maintain—perfect for a primary residence, vacation home, or income-producing rental. Everything is already in place, so you can move in or start generating income right away. One of the best parts of this home? Stepping out onto your private screened lanai, where a relaxing hot tub awaits. Whether you’re unwinding after a day at the parks or giving guests a space to relax and recharge, it’s the perfect Florida retreat. Azur Resort was designed to feel elevated and effortless. Residents and guests enjoy access to a stylish clubhouse, resort-style pool, kids’ play and entertainment areas, and a modern health and wellness fitness center. HOA dues even include internet, basic cable, and trash valet service—making ownership simple and stress-free. The location truly seals the deal. You’re just three exits from Walt Disney World, under a mile from everyday essentials like Publix, Aldi, Wawa, and the new Orlando Health facility, and minutes from major roadways including I-4, US-27, and SR-429. Universal Studios, ChampionsGate, Posner Park, Margaritaville, and Orlando International Airport are all within easy reach. Whether you’re looking for a personal getaway, a full-time home, or a smart investment in the heart of Central Florida’s tourism corridor, this Azur Resort townhome offers flexibility, style, and location in one beautiful package. This is more than a property—it’s a lifestyle. Come see it for yourself and picture what life (or your next investment) could look like here.
Listing Information
Property Type: Residential, Townhouse
Status: Active
Bedrooms: 3
Bathrooms: 3
Lot Size: 0.05 Acres
Square Feet: 1,778 sq ft
Year Built: 2024
Stories: 2 Story
Construction: Block,Stucco
Property Attached: Yes
Construction Display: New Construction
Subdivision: The Azur Resort
Foundation: Slab
County: Polk
Construction Status: New Construction
School Information
Elementary: Loughman Oaks Elem
Middle: Daniel Jenkins Academy Of Technology Middle
High: Davenport High School
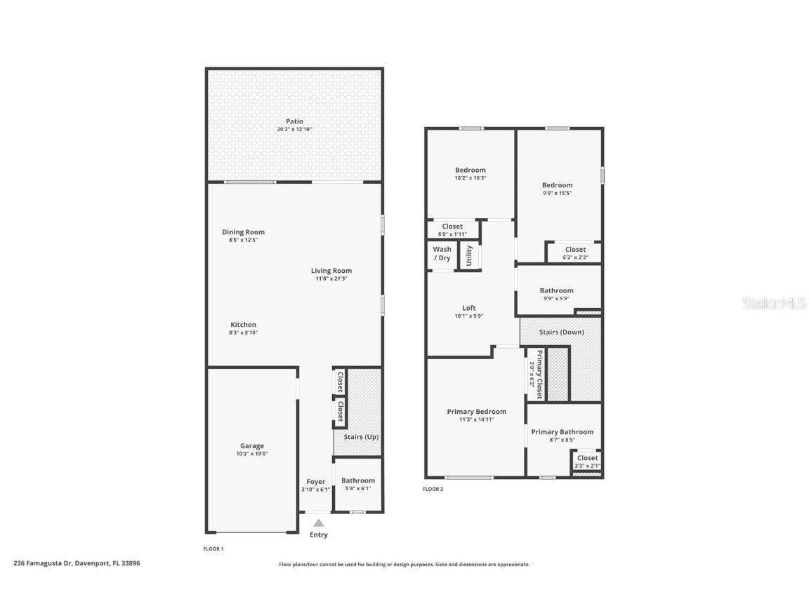
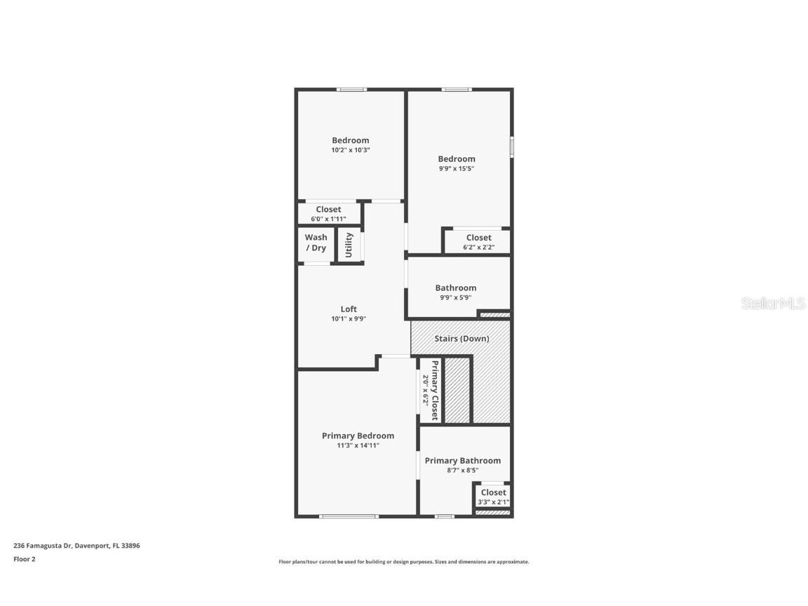
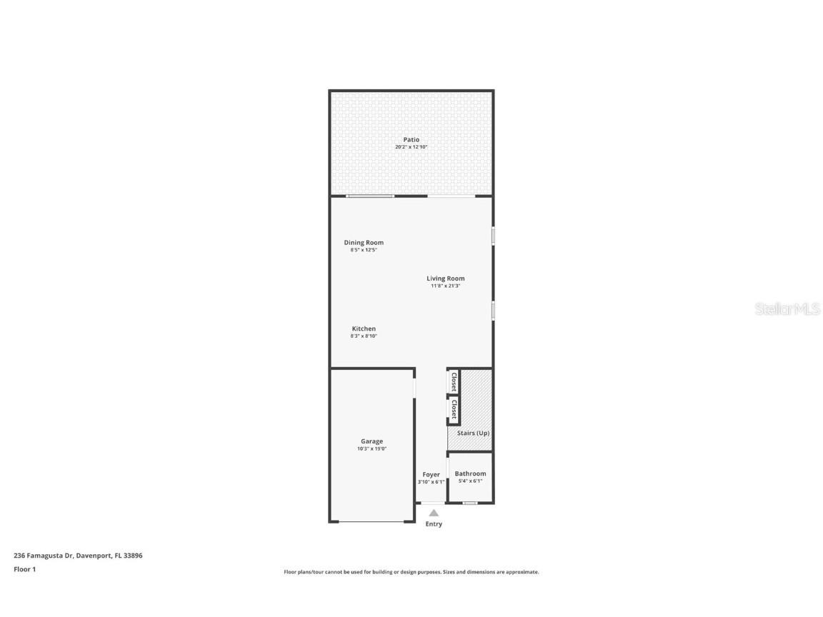
Room Information
Main Floor
Dining Room: 8x11
Kitchen: 9x10
Living Room: 11x21
Upper Floor
Bedroom 3: 9x15
Bedroom 2: 10x11
Primary Bedroom: 13x16
Bathrooms
Full Baths: 2
1/2 Baths: 1
Additonal Room Information
Laundry: Inside, Laundry Closet, Upper Level
Interior Features
Appliances: Electric Water Heater, Range, Refrigerator, Washer, Dishwasher, Disposal, Dryer, Microwave
Flooring: Vinyl
Doors/Windows: Window Treatments, Drapes
Additional Interior Features: Loft, High Ceilings, Window Treatments, Upper Level Primary, Kitchen/Family Room Combo, Solid Surface Counters
Utilities
Water: Public
Sewer: Public Sewer
Other Utilities: Municipal Utilities
Cooling: Central Air
Heating: Central
Exterior / Lot Features
Roof: Membrane
Pool: Community, Association
Additional Exterior/Lot Features: Sprinkler/Irrigation, Lighting, Enclosed, Screened, Patio, Landscaped, Dead End
Community Features
Community Features: Gated, Playground, Clubhouse, Pool, Sidewalks, Fitness
Security Features: Gated Community
Association Amenities: Pool, Gated, Clubhouse
HOA Dues Include: Cable TV, Internet, Taxes, Trash, Maintenance Structure, Pool(s), Maintenance Grounds, Common Areas
Homeowners Association: Yes
HOA Dues: $264 / Monthly
Driving Directions
I-4 to exit #58. East on CR 532. Community is on right hand side, after passing Lake Willson Rd.
Financial Considerations
Terms: Cash,Conventional,FHA,VA Loan
Tax/Property ID: 27-26-02-701017-001220
Tax Amount: 435.25
Tax Year: 2024
A broker reciprocity listing courtesy: WATSON REALTY CORP.
Based on information provided by Stellar MLS as distributed by the MLS GRID. Information from the Internet Data Exchange is provided exclusively for consumers’ personal, non-commercial use, and such information may not be used for any purpose other than to identify prospective properties consumers may be interested in purchasing. This data is deemed reliable but is not guaranteed to be accurate by Edina Realty, Inc., or by the MLS. Edina Realty, Inc., is not a multiple listing service (MLS), nor does it offer MLS access.
Copyright 2026 Stellar MLS as distributed by the MLS GRID. All Rights Reserved.
Payment Calculator
Interest rate and annual percentage rate (APR) are based on current market conditions, are for informational purposes only, are subject to change without notice and may be subject to pricing add-ons related to property type, loan amount, loan-to-value, credit score and other variables. Estimated closing costs used in the APR calculation are assumed to be paid by the borrower at closing. If the closing costs are financed, the loan, APR and payment amounts will be higher. If the down payment is less than 20%, mortgage insurance may be required and could increase the monthly payment and APR. Contact us for details. Additional loan programs may be available. Accuracy is not guaranteed, and all products may not be available in all borrower's geographical areas and are based on their individual situation. This is not a credit decision or a commitment to lend.
Sales History & Tax Summary for 236 Famagusta Drive
Sales History
| Date | Price | Change |
|---|---|---|
| Currently not available. | ||
Tax Summary
| Tax Year | Estimated Market Value | Total Tax |
|---|---|---|
| Currently not available. | ||
Data powered by ATTOM Data Solutions. Copyright© 2026. Information deemed reliable but not guaranteed.
Schools
Schools nearby 236 Famagusta Drive
| Schools in attendance boundaries | Grades | Distance | Rating |
|---|---|---|---|
| Loading... | |||
| Schools nearby | Grades | Distance | Rating |
|---|---|---|---|
| Loading... | |||
Data powered by ATTOM Data Solutions. Copyright© 2026. Information deemed reliable but not guaranteed.
The schools shown represent both the assigned schools and schools by distance based on local school and district attendance boundaries. Attendance boundaries change based on various factors and proximity does not guarantee enrollment eligibility. Please consult your real estate agent and/or the school district to confirm the schools this property is zoned to attend. Information is deemed reliable but not guaranteed.
SchoolDigger ® Rating
The SchoolDigger rating system is a 1-5 scale with 5 as the highest rating. SchoolDigger ranks schools based on test scores supplied by each state's Department of Education. They calculate an average standard score by normalizing and averaging each school's test scores across all tests and grades.
Coming soon properties will soon be on the market, but are not yet available for showings.