2385 Whisper Walk Drive Spring Hill, FL 34606
Pending MLS# W7883228
2 beds 2 baths 1,788 sq ft Single Family
Details for 2385 Whisper Walk Drive
MLS# W7883228
Description for 2385 Whisper Walk Drive, Spring Hill, FL, 34606
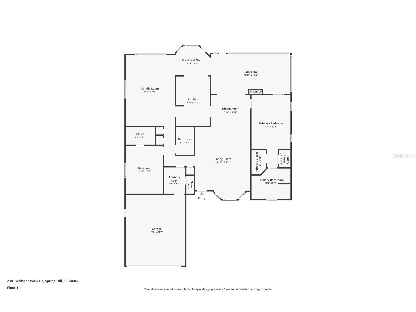
Under contract-accepting backup offers. Located in the gated 55+ community of Timber Pines, this well-maintained 2-bedroom, 2-bath home with a 2-car garage offers comfortable living in one of Spring Hill’s most amenity-rich neighborhoods, featuring a roof installed in 2015 and an AC system replaced in 2024, with pricing that reflects the opportunity for updates and personal touches. The garage includes convenient sliding screened doors, and a welcoming front walkway leads to a covered front porch. Inside, the foyer showcases tile and wood-look laminate flooring, opening into a spacious living and dining room combination with plush carpeting. The living room is highlighted by a dramatic floor-to-ceiling bay window that fills the space with natural light, while the dining area features two sliding glass doors that open directly to the expansive rear sunroom. The kitchen is bright and functional with white tile floors, white cabinetry, white countertops on three sides, recessed lighting, all-white appliances, and a double sink positioned beneath a passthrough that overlooks the family room. A cozy breakfast nook with bay windows offers views of the backyard and includes sliding glass doors leading to the sunroom. The adjacent family room features wood-look laminate flooring, large windows, cathedral ceilings shared with the kitchen, and an open bar-style connection to the opposite side of the kitchen, creating an easy flow between spaces. The primary suite offers wood-look laminate floors, multiple windows, dual walk-in closets, and an ensuite bath with white tile floors, dual white vanities, white cabinetry, a window for natural light, and a step-in shower with glass doors, built-in bench, built-in shelving, and grab bars on three walls. The second bedroom includes carpet, a window, and a built-in closet, while the guest bath features a charming white-and-pink motif with white tile floors, white cabinetry and tub, a pink vanity counter, and pink tile in the tub/shower combo with glass sliding doors. The laundry room is conveniently located next to the guest bath and includes a utility sink and overhead storage. The oversized sunroom offers carpeted floors, three walls of windows, two sets of sliding glass doors, and a passthrough window to the kitchen, creating a bright and versatile space for relaxing or entertaining. Timber Pines residents enjoy an exceptional array of amenities including four golf courses, a clubhouse with dining and year-round social events, multiple pools, tennis and pickleball courts, a fitness center, performing arts center, billiards room, walking paths, and 24-hour guarded gate access, along with a vibrant calendar of clubs and activities. Conveniently located in Spring Hill, this home is also near Weeki Wachee Springs State Park for kayaking in crystal-clear waters and Pine Island Park for Gulf sunsets and waterfront relaxation, offering a lifestyle that blends comfort, recreation, and connection to nature.
Listing Information
Property Type: Residential, Single Family Residence
Status: Pending
Bedrooms: 2
Bathrooms: 2
Lot Size: 0.17 Acres
Square Feet: 1,788 sq ft
Year Built: 1994
Garage: Yes
Stories: 1 Story
Construction: Block,Stucco
Construction Display: New Construction
Subdivision: Timber Pines
Foundation: Concrete Perimeter
County: Hernando
Construction Status: New Construction
School Information
Elementary: Deltona Elementary
Middle: Fox Chapel Middle School
High: Weeki Wachee High School
Room Information
Main Floor
Primary Bedroom: 20.1x11.4
Living Room: 20.11x15.11
Kitchen: 14.3x9.1
Bathrooms
Full Baths: 2
Additonal Room Information
Laundry: Washer Hookup, Inside, Laundry Room, Electric Dryer Hookup
Interior Features
Appliances: Range Hood, Washer, Range, Refrigerator, Dishwasher, Dryer
Flooring: Carpet,Laminate,Tile
Fireplaces: Electric
Additional Interior Features: Eat-In Kitchen, Split Bedrooms, Ceiling Fan(s), Vaulted Ceiling(s), Walk-In Closet(s), Main Level Primary, Solid Surface Counters, Kitchen/Family Room Combo
Utilities
Water: Public
Sewer: Public Sewer
Other Utilities: Electricity Available,High Speed Internet Available,Phone Available,Sewer Available,Water Available
Cooling: Ceiling Fan(s), Central Air
Heating: Electric, Central
Exterior / Lot Features
Attached Garage: Attached Garage
Garage Spaces: 2
Parking Description: Off Street, Garage, Garage Door Opener
Roof: Shingle
Pool: Association, Community
Additional Exterior/Lot Features: Rain Gutters, Lighting, Screened, Rear Porch, Front Porch, Covered, Level, Flat, Cleared, Near Golf Course
Community Features
Community Features: Fitness, Gated, Park, Restaurant, Tennis Court(s), Clubhouse, Golf, Pool
Security Features: Gated Community, Gated with Guard
Association Amenities: Pickleball, Golf Course, Gated, Pool, Tennis Court(s), Fitness Center, Playground, Clubhouse
Homeowners Association: Yes
HOA Dues: $332 / Monthly
Driving Directions
From Deltona Blvd & Northcliffe Blvd, go S on Deltona Blvd, turn R onto Grand Club Dr (Timber Pines entrance), continue through the gate, then turn L onto Whisper Walk Dr. The property will be on the R.
Financial Considerations
Terms: Cash,Conventional,FHA,VA Loan
Tax/Property ID: R22-223-17-6320-0000-0240
Tax Amount: 4550
Tax Year: 2025
A broker reciprocity listing courtesy: RE/MAX MARKETING SPECIALISTS
Based on information provided by Stellar MLS as distributed by the MLS GRID. Information from the Internet Data Exchange is provided exclusively for consumers’ personal, non-commercial use, and such information may not be used for any purpose other than to identify prospective properties consumers may be interested in purchasing. This data is deemed reliable but is not guaranteed to be accurate by Edina Realty, Inc., or by the MLS. Edina Realty, Inc., is not a multiple listing service (MLS), nor does it offer MLS access.
Copyright 2026 Stellar MLS as distributed by the MLS GRID. All Rights Reserved.
Sales History & Tax Summary for 2385 Whisper Walk Drive
Sales History
| Date | Price | |
|---|---|---|
| Currently not available. | ||
Tax Summary
| Tax Year | Estimated Market Value | Total Tax |
|---|---|---|
| Currently not available. | ||
Data powered by ATTOM Data Solutions. Copyright© 2026. Information deemed reliable but not guaranteed.
Schools
Schools nearby 2385 Whisper Walk Drive
| Schools in attendance boundaries | Grades | Distance | Rating |
|---|---|---|---|
| Loading... | |||
| Schools nearby | Grades | Distance | Rating |
|---|---|---|---|
| Loading... | |||
Data powered by ATTOM Data Solutions. Copyright© 2026. Information deemed reliable but not guaranteed.
The schools shown represent both the assigned schools and schools by distance based on local school and district attendance boundaries. Attendance boundaries change based on various factors and proximity does not guarantee enrollment eligibility. Please consult your real estate agent and/or the school district to confirm the schools this property is zoned to attend. Information is deemed reliable but not guaranteed.
SchoolDigger ® Rating
The SchoolDigger rating system is a 1-5 scale with 5 as the highest rating. SchoolDigger ranks schools based on test scores supplied by each state's Department of Education. They calculate an average standard score by normalizing and averaging each school's test scores across all tests and grades.
Coming soon properties will soon be on the market, but are not yet available for showings.