23961 SW Dogwood Lane Dunnellon, FL 34431
For Sale MLS# OM714262
2 beds 1 baths 864 sq ft Single Family
Details for 23961 SW Dogwood Lane
MLS# OM714262
Description for 23961 SW Dogwood Lane, Dunnellon, FL, 34431
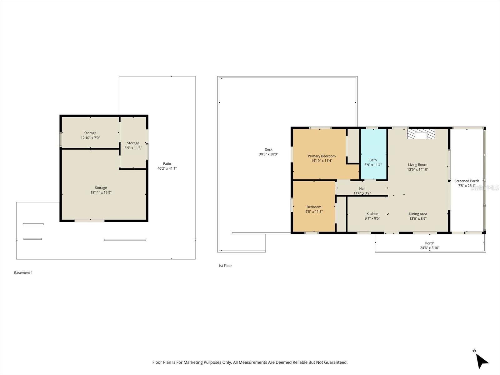
Set at the end of a quiet cul-de-sac, this exceptional property offers privacy, beauty, and room to roam. The backyard is framed by mature crepe myrtles, creating a peaceful, park-like setting, while wooded walking trails wind through the property for nature lovers and outdoor enthusiasts. Fully fenced with four separate pastures, the land is ideal for horses and livestock. Bring your horses and enjoy a true country lifestyle—peaceful, private, and perfectly suited for outdoor living. The property includes a charming 2-bedroom, 1-bath stilt home that offers elevated views and a breezy, open feel. Beneath the house is a spacious area with ample room to expand, providing you with the opportunity to create additional living space, storage, or a workshop, whatever suits your vision. With a wood-burning fireplace, newer deck, and fresh interior paint, this home is move-in ready. Whether you're looking for your own mini-farm, a peaceful retreat, or a property with room to grow, this unique acreage provides endless potential. Enjoy the freedom, the space, and the possibilities that come with true country living: roof 2018, AC 2019.
Listing Information
Property Type: Residential, Farm
Status: Active
Bedrooms: 2
Bathrooms: 1
Lot Size: 9.62 Acres
Square Feet: 864 sq ft
Year Built: 1976
Stories: 2 Story
Construction: Vinyl Siding,Wood Frame
Subdivision: Rainbow Lake Estates
Foundation: Pillar/Post/Pier
County: Marion
School Information
Elementary: Romeo Elementary School
Middle: Dunnellon Middle School
High: Dunnellon High School
Room Information
Upper Floor
Living Room: 19x24
Primary Bedroom: 14x11
Kitchen: 24x12
Bathrooms
Full Baths: 1
Additonal Room Information
Laundry: Inside
Interior Features
Appliances: Range, Refrigerator, Cooktop
Flooring: Laminate
Fireplaces: Wood Burning
Additional Interior Features: Ceiling Fan(s)
Utilities
Water: Well
Sewer: Septic Tank
Other Utilities: Electricity Connected,High Speed Internet Available
Cooling: Central Air, Ceiling Fan(s)
Heating: Central
Exterior / Lot Features
Roof: Shingle
Lot View: Trees/Woods
Fencing: Wire
Additional Exterior/Lot Features: Deck, Porch, Flat, Level, Farm, Pasture
Driving Directions
Hwy 41 N, (L) Rainbow Lakes Blvd, (R) Bluegill, (L) Marine, (R) Breezy Point to end, (L) Indian Hill, (R) Tamiani to end, (L) Dogwood, home is straight ahead.
Financial Considerations
Terms: Cash,Conventional,FHA,VA Loan
Tax/Property ID: 17325-005-00
Tax Amount: 1939.46
Tax Year: 2025
A broker reciprocity listing courtesy: CB/ELLISON RLTY WEST
Based on information provided by Stellar MLS as distributed by the MLS GRID. Information from the Internet Data Exchange is provided exclusively for consumers’ personal, non-commercial use, and such information may not be used for any purpose other than to identify prospective properties consumers may be interested in purchasing. This data is deemed reliable but is not guaranteed to be accurate by Edina Realty, Inc., or by the MLS. Edina Realty, Inc., is not a multiple listing service (MLS), nor does it offer MLS access.
Copyright 2026 Stellar MLS as distributed by the MLS GRID. All Rights Reserved.
Payment Calculator
Interest rate and annual percentage rate (APR) are based on current market conditions, are for informational purposes only, are subject to change without notice and may be subject to pricing add-ons related to property type, loan amount, loan-to-value, credit score and other variables. Estimated closing costs used in the APR calculation are assumed to be paid by the borrower at closing. If the closing costs are financed, the loan, APR and payment amounts will be higher. If the down payment is less than 20%, mortgage insurance may be required and could increase the monthly payment and APR. Contact us for details. Additional loan programs may be available. Accuracy is not guaranteed, and all products may not be available in all borrower's geographical areas and are based on their individual situation. This is not a credit decision or a commitment to lend.
Sales History & Tax Summary for 23961 SW Dogwood Lane
Sales History
| Date | Price | |
|---|---|---|
| Currently not available. | ||
Tax Summary
| Tax Year | Estimated Market Value | Total Tax |
|---|---|---|
| Currently not available. | ||
Data powered by ATTOM Data Solutions. Copyright© 2026. Information deemed reliable but not guaranteed.
Schools
Schools nearby 23961 SW Dogwood Lane
| Schools in attendance boundaries | Grades | Distance | Rating |
|---|---|---|---|
| Loading... | |||
| Schools nearby | Grades | Distance | Rating |
|---|---|---|---|
| Loading... | |||
Data powered by ATTOM Data Solutions. Copyright© 2026. Information deemed reliable but not guaranteed.
The schools shown represent both the assigned schools and schools by distance based on local school and district attendance boundaries. Attendance boundaries change based on various factors and proximity does not guarantee enrollment eligibility. Please consult your real estate agent and/or the school district to confirm the schools this property is zoned to attend. Information is deemed reliable but not guaranteed.
SchoolDigger ® Rating
The SchoolDigger rating system is a 1-5 scale with 5 as the highest rating. SchoolDigger ranks schools based on test scores supplied by each state's Department of Education. They calculate an average standard score by normalizing and averaging each school's test scores across all tests and grades.
Coming soon properties will soon be on the market, but are not yet available for showings.