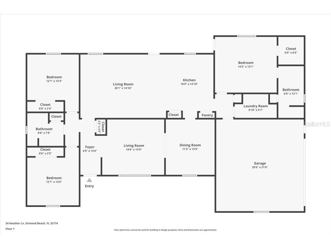
24 Heather Lane Ormond Beach, FL 32174
For Sale MLS# V4945060
3 beds 2 baths 1,766 sq ft Single Family
Details for 24 Heather Lane
MLS# V4945060
Description for 24 Heather Lane, Ormond Beach, FL, 32174
Welcome to this beautifully updated 3 bedroom, 2 bath home situated on a desirable corner lot in Ormond Beach. From the moment you arrive, you'll notice the attention to detail and pride of ownership throughout. The property has been thoughtfully maintained and upgraded, giving you peace of mind with a new roof and HVAC system installed in 2022, as well as new double-pane windows from 2018 that enhance both efficiency and comfort. The home also features replaced water lines in 2018, and new gutters added in 2023, ensuring the major systems are up to date. Step inside to find an inviting open layout with skylights that fill the home with natural light and tile flooring throughout, no carpet anywhere, for easy maintenance and modern appeal. The kitchen is a highlight with granite countertops and updated finishes, perfect for cooking, entertaining, and gathering with family and friends. The outdoor living space truly sets this home apart. The backyard is fully enclosed with a vinyl privacy fence, creating a private oasis complete with an above-ground saltwater pool for cooling off on hot summer days. Brand new pool pump installed for a peace of mind. Enjoy a peaceful fire pit area ideal for relaxing evenings under the stars. New outlet for a generator hookup. New rain sensor for sprinkler system. The corner lot not only provides extra yard space but also adds to the home's curb appeal. This home blends comfort, functionality, and style with practical updates and plenty of room to entertain both indoors and outdoors. Conveniently located near shopping, dining, schools, and just minutes from the beautiful Ormond Beach coastline, you'll enjoy the best of Florida living in a home that is move-in ready and waiting for its new owners.
Listing Information
Property Type: Residential, Single Family Residence
Status: Active
Bedrooms: 3
Bathrooms: 2
Lot Size: 0.28 Acres
Square Feet: 1,766 sq ft
Year Built: 1980
Garage: Yes
Stories: 1 Story
Construction: Wood Siding,Wood Frame
Subdivision: Oak Forest Ph 01-05
Foundation: Slab
County: Volusia
Room Information
Main Floor
Laundry: 5.7x9.1
Living Room: 14.1x20.1
Living Room: 13x14.6
Dining Room: 13x11.5
Kitchen: 14.1x10.9
Bedroom 3: 13.6x12.1
Bedroom 2: 13.4x12.1
Primary Bedroom: 13.1x14.5
Bathrooms
Full Baths: 2
Additonal Room Information
Laundry: Inside, Laundry Room
Interior Features
Appliances: Dishwasher, Dryer, Microwave, Range, Refrigerator, Washer
Flooring: Vinyl
Additional Interior Features: Other
Utilities
Water: Public
Sewer: Public Sewer
Other Utilities: Cable Connected,Electricity Connected,Sewer Connected,Water Connected
Cooling: Central Air
Heating: Central
Exterior / Lot Features
Attached Garage: Attached Garage
Garage Spaces: 2
Roof: Shingle
Pool: Above Ground
Additional Exterior/Lot Features: Other
Driving Directions
W Granda Blvd, North on Beach Street, Left on Heather Lane, House down on Left
Financial Considerations
Terms: Cash,Conventional,FHA,VA Loan
Tax/Property ID: 3242-21-05-0180
Tax Amount: 2441
Tax Year: 2024
A broker reciprocity listing courtesy: REAGAN REALTY, LLC
Based on information provided by Stellar MLS as distributed by the MLS GRID. Information from the Internet Data Exchange is provided exclusively for consumers’ personal, non-commercial use, and such information may not be used for any purpose other than to identify prospective properties consumers may be interested in purchasing. This data is deemed reliable but is not guaranteed to be accurate by Edina Realty, Inc., or by the MLS. Edina Realty, Inc., is not a multiple listing service (MLS), nor does it offer MLS access.
Copyright 2025 Stellar MLS as distributed by the MLS GRID. All Rights Reserved.
Payment Calculator
Interest rate and annual percentage rate (APR) are based on current market conditions, are for informational purposes only, are subject to change without notice and may be subject to pricing add-ons related to property type, loan amount, loan-to-value, credit score and other variables. Estimated closing costs used in the APR calculation are assumed to be paid by the borrower at closing. If the closing costs are financed, the loan, APR and payment amounts will be higher. If the down payment is less than 20%, mortgage insurance may be required and could increase the monthly payment and APR. Contact us for details. Additional loan programs may be available. Accuracy is not guaranteed, and all products may not be available in all borrower's geographical areas and are based on their individual situation. This is not a credit decision or a commitment to lend.
Sales History & Tax Summary for 24 Heather Lane
Sales History
| Date | Price | Change |
|---|---|---|
| Currently not available. | ||
Tax Summary
| Tax Year | Estimated Market Value | Total Tax |
|---|---|---|
| Currently not available. | ||
Data powered by ATTOM Data Solutions. Copyright© 2025. Information deemed reliable but not guaranteed.
Schools
Schools nearby 24 Heather Lane
| Schools in attendance boundaries | Grades | Distance | Rating |
|---|---|---|---|
| Loading... | |||
| Schools nearby | Grades | Distance | Rating |
|---|---|---|---|
| Loading... | |||
Data powered by ATTOM Data Solutions. Copyright© 2025. Information deemed reliable but not guaranteed.
The schools shown represent both the assigned schools and schools by distance based on local school and district attendance boundaries. Attendance boundaries change based on various factors and proximity does not guarantee enrollment eligibility. Please consult your real estate agent and/or the school district to confirm the schools this property is zoned to attend. Information is deemed reliable but not guaranteed.
SchoolDigger ® Rating
The SchoolDigger rating system is a 1-5 scale with 5 as the highest rating. SchoolDigger ranks schools based on test scores supplied by each state's Department of Education. They calculate an average standard score by normalizing and averaging each school's test scores across all tests and grades.
Coming soon properties will soon be on the market, but are not yet available for showings.