$2,279,000
240 N Phelps Avenue Winter Park, FL 32789
For Sale MLS# O6389035
5 beds 5 baths 2,889 sq ft Single Family
Details for 240 N Phelps Avenue
MLS# O6389035
Description for 240 N Phelps Avenue, Winter Park, FL, 32789
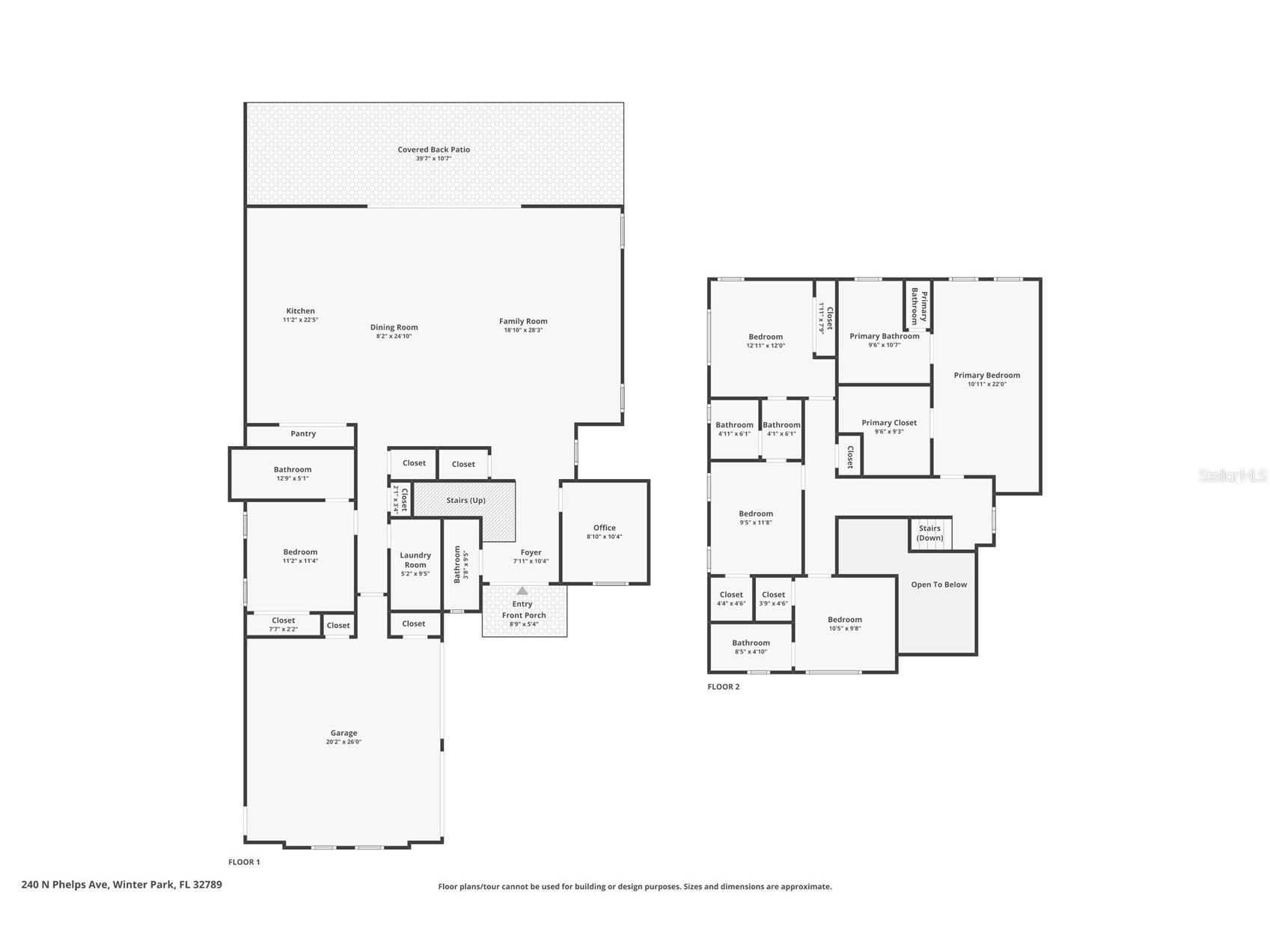
Brand new construction luxury home in the heart of Winter Park! This stunning two-story custom residence offers nearly 3,000 sq ft of heated living space with 5 bedrooms and 4 1/2 bathrooms. A soaring two-story foyer creates a dramatic first impression and opens into an expansive great room featuring 12-foot ceilings, wide-plank flooring, and abundant natural light. The family room showcases a custom paneled feature wall with a sleek built-in electric fireplace, creating a striking focal point for the space. The gourmet kitchen is designed for both everyday living and entertaining, highlighted by a large center island with seating, European slab cabinetry, premium hardware, designer countertops, and high-end appliances. Ample storage and a clean modern aesthetic make this kitchen as functional as it is beautiful. Tucked beneath the staircase is a custom wine storage feature, adding a unique luxury detail. The first floor also includes a private guest suite with its own en suite bathroom, perfect for visitors or multi-generational living. A dedicated home office provides a quiet workspace, while the main-floor laundry room adds convenience. Outside, a professionally designed outdoor kitchen extends the living space and creates the perfect setting for year-round entertaining under the Florida sky. Upstairs, the luxurious primary suite serves as a private retreat. The spacious walk-in closet features a fully custom organization system, while the spa-inspired primary bathroom includes a dual-sink vanity, elegant freestanding soaking tub, and oversized walk-in shower with premium tile work. Three additional bedrooms complete the second floor. Two share a beautifully appointed Jack-and-Jill bathroom, while the fourth bedroom features its own private en suite bath, offering flexibility for guests or family members. Located at 240 N. Phelps Avenue, this home places you just minutes from Winter Park’s iconic Park Avenue — a vibrant destination known for its boutique shopping, award-winning restaurants, art galleries, and charming sidewalk cafés. Residents enjoy access to top-rated schools, including Winter Park High School, as well as renowned cultural destinations such as the Morse Museum of American Art and the Polasek Museum. Outdoor lovers will appreciate nearby Central Park, Mead Garden, and the scenic Winter Park Chain of Lakes. Conveniently located near I-4, SR-417, downtown Orlando, Lake Nona Medical City, UCF, and Orlando International Airport, this home offers the perfect balance of luxury, convenience, and the timeless charm that makes Winter Park one of Central Florida’s most sought-after communities. Schedule your private showing today.
Listing Information
Property Type: Residential, Single Family Residence
Status: Active
Bedrooms: 5
Bathrooms: 5
Lot Size: 0.21 Acres
Square Feet: 2,889 sq ft
Year Built: 2026
Garage: Yes
Stories: 2 Story
Construction: Block,Stucco,Wood Frame
Construction Display: New Construction
Subdivision: Sylvan Heights
Foundation: Slab
County: Orange
Construction Status: New Construction
School Information
Elementary: Brookshire Elem
Middle: Glenridge Middle
High: Winter Park High
Room Information
Main Floor
Primary Bedroom: 14x15
Living Room: 18x22
Kitchen: 12x13
Bathrooms
Full Baths: 4
1/2 Baths: 1
Additonal Room Information
Laundry: Inside, Laundry Room
Interior Features
Appliances: Convection Oven, Cooktop, Dishwasher, Range, Refrigerator
Flooring: Tile
Fireplaces: Electric, Family Room, Decorative
Additional Interior Features: Walk-In Closet(s), Vaulted Ceiling(s), Eat-In Kitchen, Open Floorplan, Stone Counters, High Ceilings, Split Bedrooms, Main Level Primary
Utilities
Water: Public
Sewer: Public Sewer
Other Utilities: Cable Available,Electricity Available,Sewer Available,Water Available
Cooling: Central Air
Heating: Central, Electric
Exterior / Lot Features
Attached Garage: Attached Garage
Garage Spaces: 2
Parking Description: driveway
Roof: Shingle
Pool: Tile, In Ground
Additional Exterior/Lot Features: Outdoor Shower, City Lot, Outside City Limits
Community Features
Community Features: Street Lights, Sidewalks
Driving Directions
West on Aloma, Left on Phelps, Home will be on the left side
Financial Considerations
Terms: Cash,Conventional,FHA,Other,USDA Loan,VA Loan
Tax/Property ID: 05-22-30-8504-04-080
Tax Amount: 6605
Tax Year: 2025
A broker reciprocity listing courtesy: GOLDEN GROUP REALTY LLC
Based on information provided by Stellar MLS as distributed by the MLS GRID. Information from the Internet Data Exchange is provided exclusively for consumers’ personal, non-commercial use, and such information may not be used for any purpose other than to identify prospective properties consumers may be interested in purchasing. This data is deemed reliable but is not guaranteed to be accurate by Edina Realty, Inc., or by the MLS. Edina Realty, Inc., is not a multiple listing service (MLS), nor does it offer MLS access.
Copyright 2026 Stellar MLS as distributed by the MLS GRID. All Rights Reserved.
Payment Calculator
Interest rate and annual percentage rate (APR) are based on current market conditions, are for informational purposes only, are subject to change without notice and may be subject to pricing add-ons related to property type, loan amount, loan-to-value, credit score and other variables. Estimated closing costs used in the APR calculation are assumed to be paid by the borrower at closing. If the closing costs are financed, the loan, APR and payment amounts will be higher. If the down payment is less than 20%, mortgage insurance may be required and could increase the monthly payment and APR. Contact us for details. Additional loan programs may be available. Accuracy is not guaranteed, and all products may not be available in all borrower's geographical areas and are based on their individual situation. This is not a credit decision or a commitment to lend.
Sales History & Tax Summary for 240 N Phelps Avenue
Sales History
| Date | Price | |
|---|---|---|
| Currently not available. | ||
Tax Summary
| Tax Year | Estimated Market Value | Total Tax |
|---|---|---|
| Currently not available. | ||
Data powered by ATTOM Data Solutions. Copyright© 2026. Information deemed reliable but not guaranteed.
Schools
Schools nearby 240 N Phelps Avenue
| Schools in attendance boundaries | Grades | Distance | Rating |
|---|---|---|---|
| Loading... | |||
| Schools nearby | Grades | Distance | Rating |
|---|---|---|---|
| Loading... | |||
Data powered by ATTOM Data Solutions. Copyright© 2026. Information deemed reliable but not guaranteed.
The schools shown represent both the assigned schools and schools by distance based on local school and district attendance boundaries. Attendance boundaries change based on various factors and proximity does not guarantee enrollment eligibility. Please consult your real estate agent and/or the school district to confirm the schools this property is zoned to attend. Information is deemed reliable but not guaranteed.
SchoolDigger ® Rating
The SchoolDigger rating system is a 1-5 scale with 5 as the highest rating. SchoolDigger ranks schools based on test scores supplied by each state's Department of Education. They calculate an average standard score by normalizing and averaging each school's test scores across all tests and grades.
Coming soon properties will soon be on the market, but are not yet available for showings.