2401 19th Street S Saint Petersburg, FL 33712
For Sale MLS# TB8441079
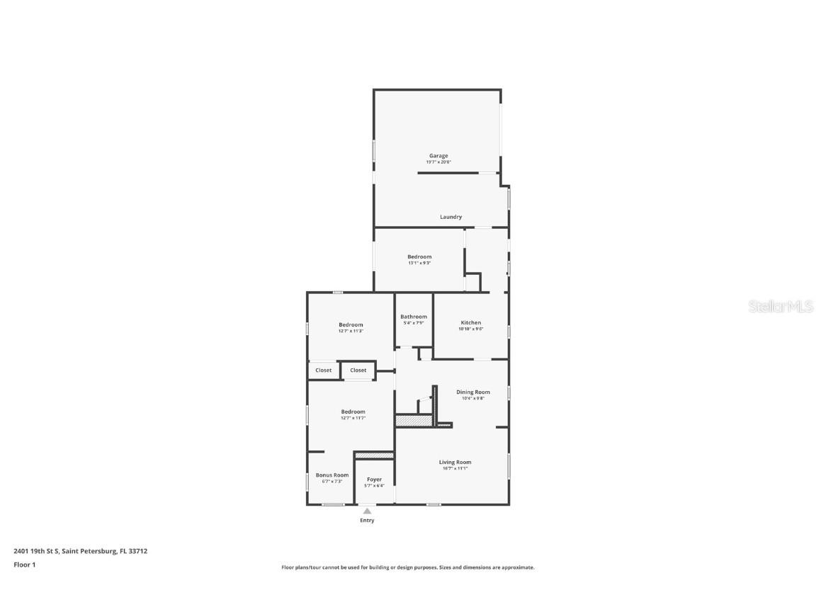
3 beds 1 baths 1,320 sq ft Single Family
Details for 2401 19th Street S
MLS# TB8441079
Description for 2401 19th Street S, Saint Petersburg, FL, 33712
UPDATED MOVE-IN READY 2 BED + BONUS ROOM ON A CORNER LOT IN NON-FLOOD ZONE ST. PETE. Recent major improvements include a NEW ROOF (2025), NEW HVAC (2025), IMPACT WINDOWS (2022) and NEW GUTTERS (2025) - providing comfort and peace of mind for years to come. Inside, 1,300 sqft is thoughtfully arranged across 2 bedrooms plus a bonus room, ideal for a home office, guest space, or playroom. A spacious living area flows through charming archways into the dining room and kitchen, creating an inviting layout for everyday living. Outside, the fully fenced in yard offers just the right amount of space for weekend barbecues or relaxing in the Florida sunshine without the hassle of extensive yard maintenance. The oversized one-car garage provides excellent storage and includes existing plumbing with a shower, allowing for an easy conversion into a full bath off the bonus room. Ideally located in the heart of 33712 with quick access to I-275, shopping, dining, parks, and downtown St. Petersburg, this move-in-ready home delivers low overhead, solid value, and exceptional convenience - an ideal choice for first-time buyers, downsizers or investors. No flood insurance required - this property is located in Flood Zone X.
Listing Information
Property Type: Residential, Single Family Residence
Status: Active
Bedrooms: 3
Bathrooms: 1
Lot Size: 0.10 Acres
Square Feet: 1,320 sq ft
Year Built: 1951
Garage: Yes
Stories: 1 Story
Construction: Block,Vinyl Siding,Wood Frame
Subdivision: Lakeview Grove
Foundation: Crawlspace
County: Pinellas
Room Information
Main Floor
Bonus Room:
Dining Room:
Kitchen:
Living Room:
Bedroom 2:
Primary Bedroom:
Bathrooms
Full Baths: 1
Additonal Room Information
Laundry: In Garage
Interior Features
Appliances: Electric Water Heater, Dryer, Range, Refrigerator, Washer
Flooring: Tile,Vinyl
Basement: Crawl Space
Doors/Windows: Storm Window(s)
Additional Interior Features: Ceiling Fan(s)
Utilities
Water: Public
Sewer: Public Sewer
Other Utilities: Municipal Utilities
Cooling: Ceiling Fan(s), Central Air
Heating: Electric
Exterior / Lot Features
Attached Garage: Attached Garage
Garage Spaces: 1
Roof: Shingle
Lot Dimensions: 45x100
Additional Exterior/Lot Features: Rain Gutters
Driving Directions
22nd Ave S to 19th St to address
Financial Considerations
Terms: Cash,Conventional,FHA,VA Loan
Tax/Property ID: 36-31-16-48942-000-0130
Tax Amount: 3439.72
Tax Year: 2024
A broker reciprocity listing courtesy: THE TENPENNY COLLECTION
Based on information provided by Stellar MLS as distributed by the MLS GRID. Information from the Internet Data Exchange is provided exclusively for consumers’ personal, non-commercial use, and such information may not be used for any purpose other than to identify prospective properties consumers may be interested in purchasing. This data is deemed reliable but is not guaranteed to be accurate by Edina Realty, Inc., or by the MLS. Edina Realty, Inc., is not a multiple listing service (MLS), nor does it offer MLS access.
Copyright 2025 Stellar MLS as distributed by the MLS GRID. All Rights Reserved.
Payment Calculator
Interest rate and annual percentage rate (APR) are based on current market conditions, are for informational purposes only, are subject to change without notice and may be subject to pricing add-ons related to property type, loan amount, loan-to-value, credit score and other variables. Estimated closing costs used in the APR calculation are assumed to be paid by the borrower at closing. If the closing costs are financed, the loan, APR and payment amounts will be higher. If the down payment is less than 20%, mortgage insurance may be required and could increase the monthly payment and APR. Contact us for details. Additional loan programs may be available. Accuracy is not guaranteed, and all products may not be available in all borrower's geographical areas and are based on their individual situation. This is not a credit decision or a commitment to lend.
Sales History & Tax Summary for 2401 19th Street S
Sales History
| Date | Price | Change |
|---|---|---|
| Currently not available. | ||
Tax Summary
| Tax Year | Estimated Market Value | Total Tax |
|---|---|---|
| Currently not available. | ||
Data powered by ATTOM Data Solutions. Copyright© 2025. Information deemed reliable but not guaranteed.
Schools
Schools nearby 2401 19th Street S
| Schools in attendance boundaries | Grades | Distance | Rating |
|---|---|---|---|
| Loading... | |||
| Schools nearby | Grades | Distance | Rating |
|---|---|---|---|
| Loading... | |||
Data powered by ATTOM Data Solutions. Copyright© 2025. Information deemed reliable but not guaranteed.
The schools shown represent both the assigned schools and schools by distance based on local school and district attendance boundaries. Attendance boundaries change based on various factors and proximity does not guarantee enrollment eligibility. Please consult your real estate agent and/or the school district to confirm the schools this property is zoned to attend. Information is deemed reliable but not guaranteed.
SchoolDigger ® Rating
The SchoolDigger rating system is a 1-5 scale with 5 as the highest rating. SchoolDigger ranks schools based on test scores supplied by each state's Department of Education. They calculate an average standard score by normalizing and averaging each school's test scores across all tests and grades.
Coming soon properties will soon be on the market, but are not yet available for showings.