2409 White Tail Street Davenport, FL 33837
For Sale MLS# P4937564
3 beds 2 baths 1,485 sq ft Single Family
Details for 2409 White Tail Street
MLS# P4937564
Description for 2409 White Tail Street, Davenport, FL, 33837
Like new and move-in ready, this thoughtfully designed 2024-built Davenport home delivers the fresh, low-maintenance lifestyle today’s first-time buyers and downsizers are seeking—without sacrificing comfort or style. Inside, an inviting open-concept layout seamlessly connects the living and dining areas to a bright, functional kitchen anchored by a large island ideal for everyday meals and entertaining. Stainless steel appliances, granite countertops, 42" white cabinetry, and a walk-in pantry provide a balanced blend of clean, modern finishes and practical storage. The split-bedroom floor plan offers privacy where it matters most, with two secondary bedrooms and a full bath positioned toward the front of the home for guests, family, or a dedicated office, while the primary suite is set apart with a well-appointed ensuite featuring a spacious walk-in closet, dual-sink vanity, private water closet, and walk-in shower. A dedicated laundry room and attached two-car garage enhance daily convenience, while the fully fenced backyard creates a secure, private outdoor space that is easy to enjoy and simple to maintain. Located in a newer community with quick access to the Hwy 27 and I-4 corridor, the home is well-positioned for everyday shopping, dining, and errands at Posner Park, along with nearby medical facilities, and services. You’re also within an easy drive of Central Florida’s major attractions, including Walt Disney World, Universal Studios, SeaWorld, LEGOLAND, and more. Schedule your private showing and experience how effortlessly this home lives.
Listing Information
Property Type: Residential, Single Family Residence
Status: Active
Bedrooms: 3
Bathrooms: 2
Lot Size: 0.13 Acres
Square Feet: 1,485 sq ft
Year Built: 2024
Garage: Yes
Stories: 1 Story
Construction: Block,Stucco
Subdivision: Deer Run
Foundation: Slab
County: Polk
School Information
Elementary: Dundee Elem
Middle: Dundee Ridge Middle
High: Ridge Community Senior High
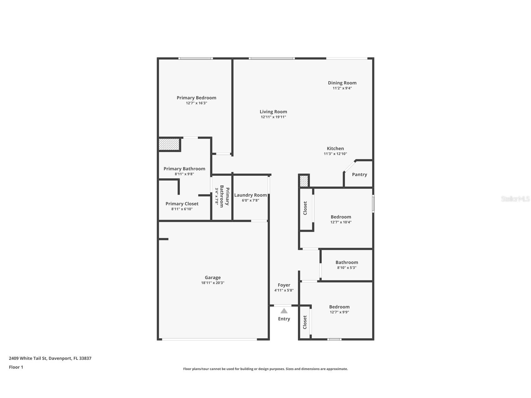
Room Information
Main Floor
Dinette: 9.04x11.02
Laundry: 7.08x6
Living Room: 19.11x12.11
Kitchen: 12.1x11.03
Bathroom 2: 5.03x8.1
Bedroom 3: 10.04x12.07
Bedroom 2: 9.09x12.07
Primary Bathroom: 9.08x8.11
Primary Bedroom: 16.03x12.07
Bathrooms
Full Baths: 2
Additonal Room Information
Laundry: Inside, Laundry Room
Interior Features
Appliances: Range, Refrigerator, Washer, Dishwasher, Dryer, Microwave
Flooring: Carpet,Tile
Doors/Windows: Blinds, Drapes, Rods
Additional Interior Features: Eat-In Kitchen, Ceiling Fan(s), Walk-In Closet(s), Split Bedrooms, Smart Home, Built-in Features, Living/Dining Room, Main Level Primary, Kitchen/Family Room Combo, Open Floorplan, Solid Surface Counters, Stone Counters, Wood Cabinets
Utilities
Water: Public
Sewer: Public Sewer
Other Utilities: Cable Connected,Electricity Connected,High Speed Internet Available,Sewer Connected,Water Connected
Cooling: Ceiling Fan(s), Central Air
Heating: Central, Electric
Exterior / Lot Features
Attached Garage: Attached Garage
Garage Spaces: 2
Parking Description: driveway, Garage Door Opener, Garage
Roof: Shingle
Lot Dimensions: 50 X 110 X 50 X 110
Fencing: Vinyl
Additional Exterior/Lot Features: Sprinkler/Irrigation, Lighting, Patio, City Lot, Outside City Limits
Community Features
Community Features: Dog Park, Sidewalks, Playground
Security Features: Security System, Security System Owned, Smoke Detector(s)
Homeowners Association: Yes
HOA Dues: $169 / Quarterly
Driving Directions
Follow I-4 West to exit 58. Take Pine Tree Trail and County Rd 547/Lee Jackson Hwy to Mystery House Rd in Polk County. The entrance to the community will be on your left.
Financial Considerations
Terms: Cash,Conventional,FHA,USDA Loan,VA Loan
Tax/Property ID: 27-27-10-733520-017120
Tax Amount: 6604.99
Tax Year: 2025
A broker reciprocity listing courtesy: IAD FLORIDA LLC
Based on information provided by Stellar MLS as distributed by the MLS GRID. Information from the Internet Data Exchange is provided exclusively for consumers’ personal, non-commercial use, and such information may not be used for any purpose other than to identify prospective properties consumers may be interested in purchasing. This data is deemed reliable but is not guaranteed to be accurate by Edina Realty, Inc., or by the MLS. Edina Realty, Inc., is not a multiple listing service (MLS), nor does it offer MLS access.
Copyright 2026 Stellar MLS as distributed by the MLS GRID. All Rights Reserved.
Payment Calculator
Interest rate and annual percentage rate (APR) are based on current market conditions, are for informational purposes only, are subject to change without notice and may be subject to pricing add-ons related to property type, loan amount, loan-to-value, credit score and other variables. Estimated closing costs used in the APR calculation are assumed to be paid by the borrower at closing. If the closing costs are financed, the loan, APR and payment amounts will be higher. If the down payment is less than 20%, mortgage insurance may be required and could increase the monthly payment and APR. Contact us for details. Additional loan programs may be available. Accuracy is not guaranteed, and all products may not be available in all borrower's geographical areas and are based on their individual situation. This is not a credit decision or a commitment to lend.
Sales History & Tax Summary for 2409 White Tail Street
Sales History
| Date | Price | |
|---|---|---|
| Currently not available. | ||
Tax Summary
| Tax Year | Estimated Market Value | Total Tax |
|---|---|---|
| Currently not available. | ||
Data powered by ATTOM Data Solutions. Copyright© 2026. Information deemed reliable but not guaranteed.
Schools
Schools nearby 2409 White Tail Street
| Schools in attendance boundaries | Grades | Distance | Rating |
|---|---|---|---|
| Loading... | |||
| Schools nearby | Grades | Distance | Rating |
|---|---|---|---|
| Loading... | |||
Data powered by ATTOM Data Solutions. Copyright© 2026. Information deemed reliable but not guaranteed.
The schools shown represent both the assigned schools and schools by distance based on local school and district attendance boundaries. Attendance boundaries change based on various factors and proximity does not guarantee enrollment eligibility. Please consult your real estate agent and/or the school district to confirm the schools this property is zoned to attend. Information is deemed reliable but not guaranteed.
SchoolDigger ® Rating
The SchoolDigger rating system is a 1-5 scale with 5 as the highest rating. SchoolDigger ranks schools based on test scores supplied by each state's Department of Education. They calculate an average standard score by normalizing and averaging each school's test scores across all tests and grades.
Coming soon properties will soon be on the market, but are not yet available for showings.