24138 Twin Court Land O Lakes, FL 34639
For Sale MLS# W7880273
4 beds 3 baths 1,767 sq ft Single Family
Details for 24138 Twin Court
MLS# W7880273
Description for 24138 Twin Court, Land O Lakes, FL, 34639
Discover a practical and well-sized home in the desirable Twin Lake neighborhood of Land O Lakes. This two-story single-family residence offers 4 bedrooms, 2½ baths and approximately 1,767 heated sq ft of living space. The lower level features a comfortable living area with vaulted ceilings, a dining space, and an adjacent kitchen. Upstairs you'll find three additional bedrooms, giving flexible space for family, guests or a home-office setup. The home all hard surface floors for easy maintenance. A major update: the roof was replaced in 2021—giving you peace of mind on the exterior. Enjoy privacy and outdoor living in a fully fenced yard, plus a screened lanai at the rear—ideal for relaxing or hosting under the Florida sky. Located within Twin Lake, this community is known for mid-sized single-family homes in a well-established setting. With convenient access to nearby shopping, dining and major commute routes, this home offers a solid value in a trusted neighborhood.
Listing Information
Property Type: Residential, Single Family Residence
Status: Active
Bedrooms: 4
Bathrooms: 3
Lot Size: 0.15 Acres
Square Feet: 1,767 sq ft
Year Built: 1991
Garage: Yes
Stories: 2 Story
Construction: Brick,Wood Siding
Subdivision: Twin Lake Phase One
Foundation: Slab
County: Pasco
School Information
Elementary: Denham Oaks Elementary-Po
Middle: Charles S. Rushe Middle-Po
High: Sunlake High School-Po
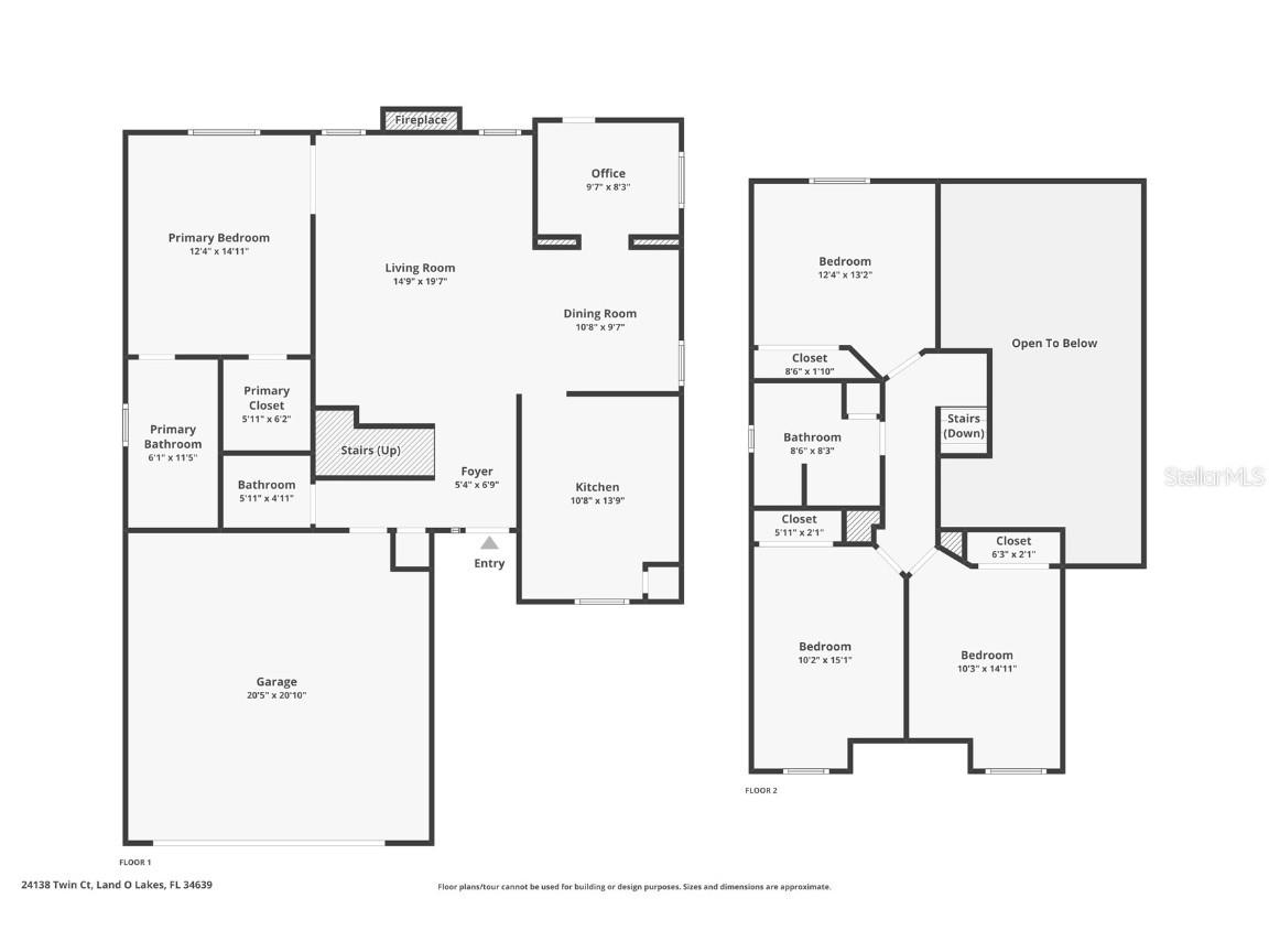
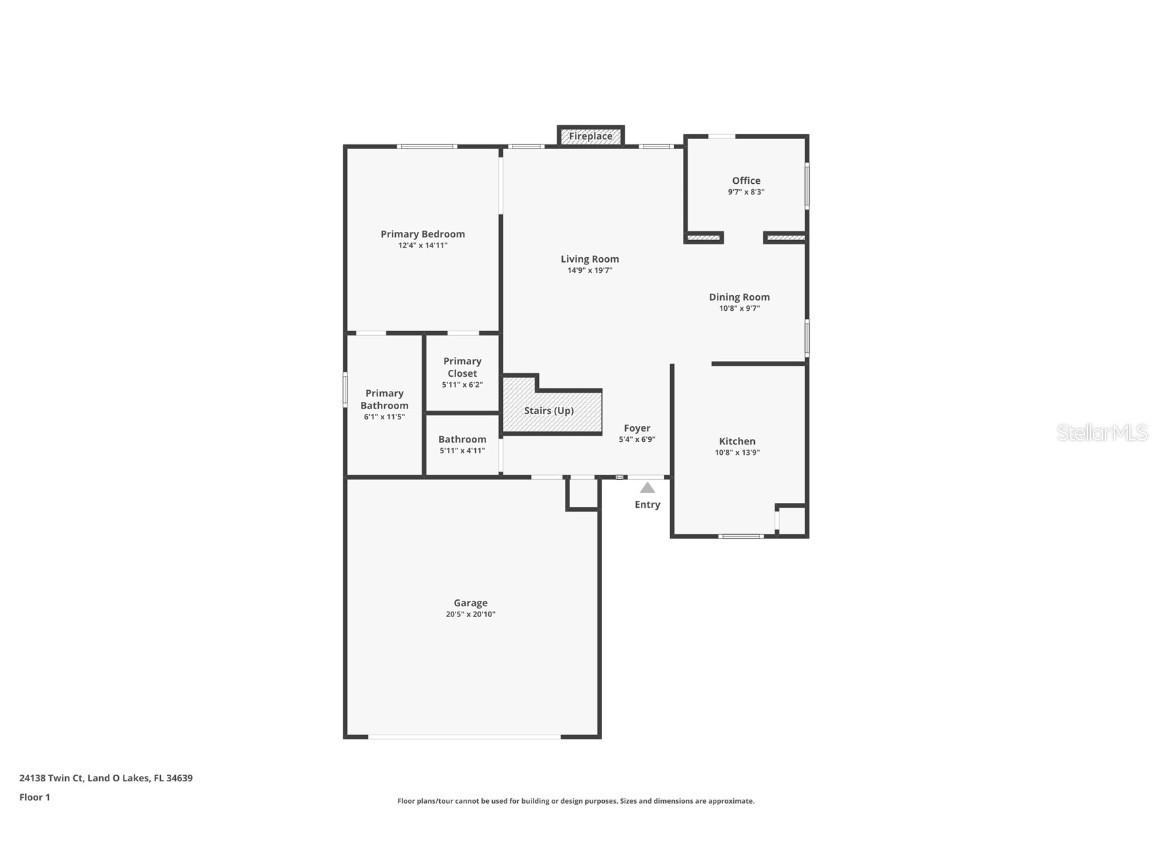
Room Information
Main Floor
Primary Bathroom: 11x6
Primary Bedroom: 15x12
Kitchen: 14x10
Office: 8x9
Living Room: 19x15
Dining Room: 10x10
Bathroom 2: 5x6
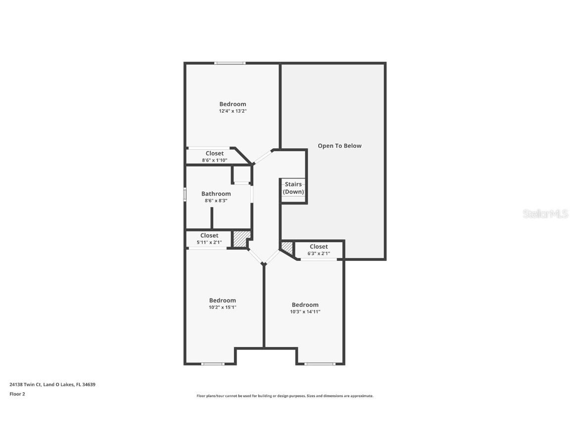
Upper Floor
Bedroom 4: 15x10
Bedroom 3: 15x10
Bathroom 3: 8x8
Bedroom 2: 13x12
Bathrooms
Full Baths: 2
1/2 Baths: 1
Additonal Room Information
Laundry: In Garage
Interior Features
Appliances: Water Softener, Dishwasher, Dryer, Microwave, Range, Refrigerator, Washer
Flooring: Ceramic Tile,Laminate
Fireplaces: Wood Burning
Additional Interior Features: Walk-In Closet(s), Ceiling Fan(s), Vaulted Ceiling(s), Main Level Primary, Open Floorplan
Utilities
Water: Public
Sewer: Public Sewer
Other Utilities: Electricity Connected,Water Connected
Cooling: Ceiling Fan(s), Central Air
Heating: Central
Exterior / Lot Features
Attached Garage: Attached Garage
Garage Spaces: 2
Roof: Shingle
Pool: Community
Fencing: Wood
Additional Exterior/Lot Features: Rain Gutters
Community Features
Community Features: Pool, Playground, Clubhouse
Homeowners Association: Yes
HOA Dues: $184 / Quarterly
Driving Directions
Head east on SR 54 toward Land O' Lakes Blvd (US-41). Turn left onto Land O' Lakes Blvd (US-41) and continue north. Turn right onto Twin Lake Blvd. Turn left onto Twin Ct. 24138 Twin Ct will be on your right.
Financial Considerations
Terms: Cash,Conventional,FHA,VA Loan
Tax/Property ID: 28-26-19-0020-00000-0440
Tax Amount: 4270.81
Tax Year: 2024
A broker reciprocity listing courtesy: BRIDGE POINT BUSINESS REAL EST
Based on information provided by Stellar MLS as distributed by the MLS GRID. Information from the Internet Data Exchange is provided exclusively for consumers’ personal, non-commercial use, and such information may not be used for any purpose other than to identify prospective properties consumers may be interested in purchasing. This data is deemed reliable but is not guaranteed to be accurate by Edina Realty, Inc., or by the MLS. Edina Realty, Inc., is not a multiple listing service (MLS), nor does it offer MLS access.
Copyright 2026 Stellar MLS as distributed by the MLS GRID. All Rights Reserved.
Payment Calculator
Interest rate and annual percentage rate (APR) are based on current market conditions, are for informational purposes only, are subject to change without notice and may be subject to pricing add-ons related to property type, loan amount, loan-to-value, credit score and other variables. Estimated closing costs used in the APR calculation are assumed to be paid by the borrower at closing. If the closing costs are financed, the loan, APR and payment amounts will be higher. If the down payment is less than 20%, mortgage insurance may be required and could increase the monthly payment and APR. Contact us for details. Additional loan programs may be available. Accuracy is not guaranteed, and all products may not be available in all borrower's geographical areas and are based on their individual situation. This is not a credit decision or a commitment to lend.
Sales History & Tax Summary for 24138 Twin Court
Sales History
| Date | Price | |
|---|---|---|
| Currently not available. | ||
Tax Summary
| Tax Year | Estimated Market Value | Total Tax |
|---|---|---|
| Currently not available. | ||
Data powered by ATTOM Data Solutions. Copyright© 2026. Information deemed reliable but not guaranteed.
Schools
Schools nearby 24138 Twin Court
| Schools in attendance boundaries | Grades | Distance | Rating |
|---|---|---|---|
| Loading... | |||
| Schools nearby | Grades | Distance | Rating |
|---|---|---|---|
| Loading... | |||
Data powered by ATTOM Data Solutions. Copyright© 2026. Information deemed reliable but not guaranteed.
The schools shown represent both the assigned schools and schools by distance based on local school and district attendance boundaries. Attendance boundaries change based on various factors and proximity does not guarantee enrollment eligibility. Please consult your real estate agent and/or the school district to confirm the schools this property is zoned to attend. Information is deemed reliable but not guaranteed.
SchoolDigger ® Rating
The SchoolDigger rating system is a 1-5 scale with 5 as the highest rating. SchoolDigger ranks schools based on test scores supplied by each state's Department of Education. They calculate an average standard score by normalizing and averaging each school's test scores across all tests and grades.
Coming soon properties will soon be on the market, but are not yet available for showings.