2425 Pine Way Sanford, FL 32773
For Sale MLS# O6356097
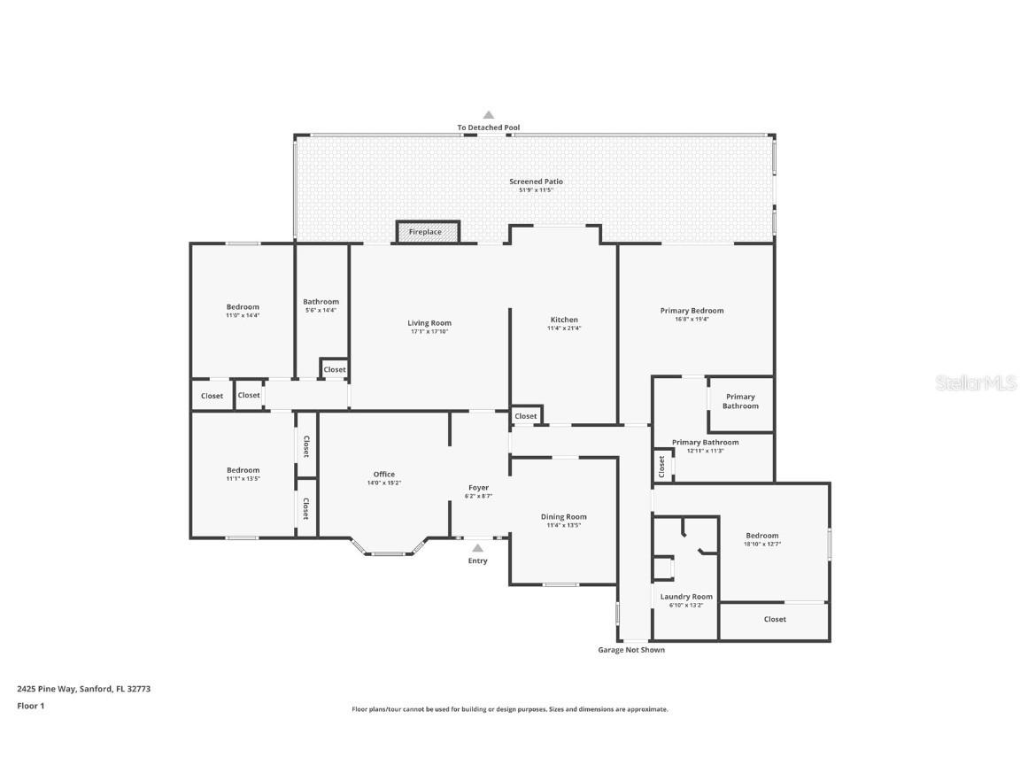
4 beds 3 baths 2,468 sq ft Single Family
Details for 2425 Pine Way
MLS# O6356097
Description for 2425 Pine Way, Sanford, FL, 32773
This stunning 4-bedroom, 3-bath multi use property sits on nearly 9 acres with everything you could ask for in a property and more. Just minutes from the Sanford Orlando airport and major highways, you pull down the driveway and feel at peace. Step inside to find a spacious, light filled layout with thoughtful upgrades throughout. The inviting living spaces open out to a screened lanai and sparkling pool the perfect spot to unwind after a long day or host family and friends under the stars. Outside, the property truly shines with two fenced pastures offering room for horses, livestock, or expansion, while the 5-bay commercial-grade garage is a dream setup for collectors, contractors, or anyone needing serious storage and workspace. There’s even a separate barn WITH AC perfect for projects or animal care. Two cleared and fenced pastures are currently rented and can produce income for horses or livestock. In addition to many major upgrades, this property includes a whole house generator capable of powering up to two weeks. Modern updates, peaceful surroundings, and easy access to major highways make this the perfect retreat or homestead opportunity. The world is yours here at Pine Way, come make yourself at home !
Listing Information
Property Type: Residential, Single Family Residence
Status: Active
Bedrooms: 4
Bathrooms: 3
Lot Size: 9.95 Acres
Square Feet: 2,468 sq ft
Year Built: 1985
Garage: Yes
Stories: 1 Story
Construction: Brick
Subdivision: Palm Hammock
Foundation: Other
County: Seminole
Room Information
Main Floor
Bedroom 4:
Bedroom 3:
Bedroom 2:
Primary Bedroom:
Family Room:
Kitchen:
Dining Room:
Living Room:
Bathrooms
Full Baths: 3
Additonal Room Information
Laundry: Inside
Interior Features
Appliances: Dishwasher, Microwave, Range, Refrigerator
Flooring: Laminate,Tile,Wood
Fireplaces: Family Room
Additional Interior Features: Tray Ceiling(s), Eat-In Kitchen, Crown Molding
Utilities
Water: Well
Sewer: Septic Tank
Other Utilities: Electricity Connected
Cooling: Central Air
Heating: Electric, Central
Exterior / Lot Features
Attached Garage: Attached Garage
Garage Spaces: 2
Parking Description: Other
Roof: Shingle
Pool: In Ground, Screen Enclosure
Fencing: fenced
Additional Exterior/Lot Features: French Patio Doors, Rear Porch, Screened
Out Buildings: Shed(s), Storage, Barn(s)
Driving Directions
FL-417 N, Take exit 49 for County Rd 427 toward Airport/Lake Mary Blvd, Turn right onto County Rd 427 N/N Ronald Reagan Blvd, Turn right onto E Lake Mary Blvd, Turn right onto Brisson Ave S, Turn right onto Pine Way.
Financial Considerations
Terms: Cash,Conventional,VA Loan
Tax/Property ID: 17-20-31-5AZ-0000-044B
Tax Amount: 5219.84
Tax Year: 2024
A broker reciprocity listing courtesy: EXP REALTY LLC
Based on information provided by Stellar MLS as distributed by the MLS GRID. Information from the Internet Data Exchange is provided exclusively for consumers’ personal, non-commercial use, and such information may not be used for any purpose other than to identify prospective properties consumers may be interested in purchasing. This data is deemed reliable but is not guaranteed to be accurate by Edina Realty, Inc., or by the MLS. Edina Realty, Inc., is not a multiple listing service (MLS), nor does it offer MLS access.
Copyright 2025 Stellar MLS as distributed by the MLS GRID. All Rights Reserved.
Payment Calculator
Interest rate and annual percentage rate (APR) are based on current market conditions, are for informational purposes only, are subject to change without notice and may be subject to pricing add-ons related to property type, loan amount, loan-to-value, credit score and other variables. Estimated closing costs used in the APR calculation are assumed to be paid by the borrower at closing. If the closing costs are financed, the loan, APR and payment amounts will be higher. If the down payment is less than 20%, mortgage insurance may be required and could increase the monthly payment and APR. Contact us for details. Additional loan programs may be available. Accuracy is not guaranteed, and all products may not be available in all borrower's geographical areas and are based on their individual situation. This is not a credit decision or a commitment to lend.
Sales History & Tax Summary for 2425 Pine Way
Sales History
| Date | Price | Change |
|---|---|---|
| Currently not available. | ||
Tax Summary
| Tax Year | Estimated Market Value | Total Tax |
|---|---|---|
| Currently not available. | ||
Data powered by ATTOM Data Solutions. Copyright© 2025. Information deemed reliable but not guaranteed.
Schools
Schools nearby 2425 Pine Way
| Schools in attendance boundaries | Grades | Distance | Rating |
|---|---|---|---|
| Loading... | |||
| Schools nearby | Grades | Distance | Rating |
|---|---|---|---|
| Loading... | |||
Data powered by ATTOM Data Solutions. Copyright© 2025. Information deemed reliable but not guaranteed.
The schools shown represent both the assigned schools and schools by distance based on local school and district attendance boundaries. Attendance boundaries change based on various factors and proximity does not guarantee enrollment eligibility. Please consult your real estate agent and/or the school district to confirm the schools this property is zoned to attend. Information is deemed reliable but not guaranteed.
SchoolDigger ® Rating
The SchoolDigger rating system is a 1-5 scale with 5 as the highest rating. SchoolDigger ranks schools based on test scores supplied by each state's Department of Education. They calculate an average standard score by normalizing and averaging each school's test scores across all tests and grades.
Coming soon properties will soon be on the market, but are not yet available for showings.